С Вами с 1993 года!
0
Статистика просмотров:
28
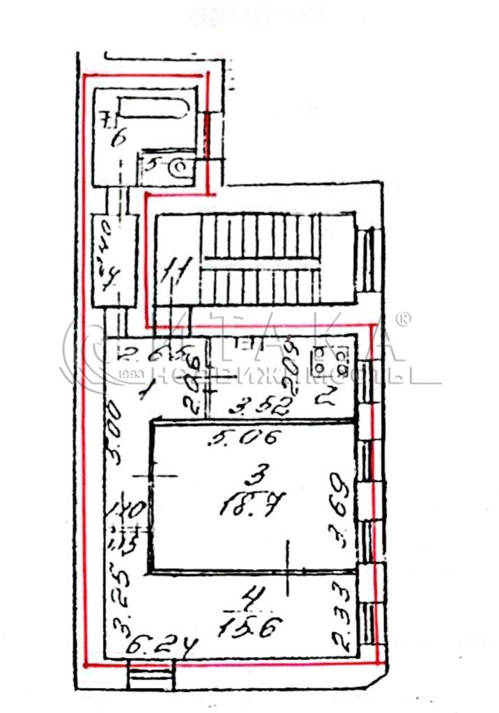
2-комнатная квартира 58.1 м², этаж 4/4
Объект № 1-92905
Размещен: 02.03.2026
Технологический институт 1
г Санкт-Петербург, пр-кт Московский, д. 45, лит. Б
Цена: 11 500 000 ₽
197 934 ₽/м²58.1м² / 34.3м²
Общая/Жилая7.4м²
Кухня-
Потолкираздельный
Санузелнет
Балкон4/4
Этажнет
Лифт1874г.
Год постройки
В свободной продаже двухкомнатная квартира в историческом центре.Всего 3 квартиры в подьезде(1 на этаже)Квартира находится на 4 этаже, по факту третий.Развитая инфраструктура: Вокруг всё необходимое для жизни: супермаркеты, аптеки, лучшие рестораны, бизнес-центры, парки (парк Победы и сад «Олимпия» )Быстрый выход на сделку!2 взрослых собственника.Никто не зарегестрирован.Собственность больше 5 лет.Отличный вариант для инвестиций или собственного гнезда.Поможем с одобрением ипотеки!Звоните,договоримся о просмотре!
загрузка...
