0

+7 (812) 740-70-40

Единый диспетчерский центр
0

8 (800) 333-98-00

Звонок по России бесплатный



e-mail для клиентских обращений:
call@itaka.ru

e-mail для официальных писем:
officeitaka@itaka.ru

Центральный офис:
Коломяжский пр. 15 кор. 2
© 2020 АН «Итака»

Объекты офиса "ул. Малая Балканская, д. 26" - вторичка

Читать полностью >>

Найдено 89 объектов

сортировать

1-комнатная квартира 51 м², этаж 6/10

Комендантский проспект

г Санкт-Петербург, ул Ильюшина, д. 2, лит. А

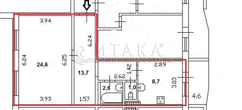
Продаётся очень большая (51 кв.м.) однокомнатная квартира у МЕТРО! До станции метро КОМЕНДАНТСКИЙ ПРОСПЕКТ - 3 минуты пешком! Квартира с отличными параметрами: - комната 25 кв.м. имеет 2 окна, при необходимости можно сделать 2 комнаты; - кухня 9 кв.м. с выходом на застеклённую лоджию; - площадь лоджии 4,6 кв.м. - раздельный санузел; - две вместительные гардеробные; - ремонт 2014 года - можно заехать и жить! Дом 2004 года постройки, чистая парадная. Закрытый двор. Видеонаблюдение. Хорошие соседи. Приморский район - очень популярный и востребованный, с развитой инфраструктурой, с хорошими дорогами и удобным выездом на скоростные трассы ЗСД и КАД. Все необходимое для комфортной жизни - рядом. Документы в полном порядке. Один собственник. Квартира свободна. Никто не проживает и не зарегистрирован. Звоните для получения дополнительной информации и просмотра квартиры!

12 900 000 ₽
252 941 ₽/м²
Объект № 1-92632
Специалист по этому объекту:
{"id":"1-92632","object_type":1,"agents_id":94,"rooms_saled":1,"rooms_total":1,"regions_id":78,"districts_id":"16","station_metro_id":49,"station_rallway":null,"address":"\u0433 \u0421\u0430\u043d\u043a\u0442-\u041f\u0435\u0442\u0435\u0440\u0431\u0443\u0440\u0433, \u0443\u043b \u0418\u043b\u044c\u044e\u0448\u0438\u043d\u0430, \u0434. 2, \u043b\u0438\u0442. \u0410","locality":"\u0433. \u0421\u0430\u043d\u043a\u0442-\u041f\u0435\u0442\u0435\u0440\u0431\u0443\u0440\u0433","price":"12 900 000","price_mkv":"252 941","floor":6,"floors":10,"is_first":0,"is_last":0,"floor_height":2.7,"space_habitable":25,"space_total":51,"space_rooms":"24","space_kitchen":9,"type_of_building_id":40,"is_phone":0,"wc":"\u0440\u0430\u0437\u0434\u0435\u043b\u044c\u043d\u044b\u0439","is_balcon":1,"is_lift":1,"hotwater":"\u0412\u043e\u0434\u043e\u043f\u0440\u043e\u0432\u043e\u0434","is_ipoteka":1,"is_exclusive":1,"is_unique":0,"is_fake":0,"is_counter":0,"is_cession":0,"build_year":2004,"comments":"\u041f\u0440\u043e\u0434\u0430\u0451\u0442\u0441\u044f \u043e\u0447\u0435\u043d\u044c \u0431\u043e\u043b\u044c\u0448\u0430\u044f (51 \u043a\u0432.\u043c.) \u043e\u0434\u043d\u043e\u043a\u043e\u043c\u043d\u0430\u0442\u043d\u0430\u044f \u043a\u0432\u0430\u0440\u0442\u0438\u0440\u0430 \u0443 \u041c\u0415\u0422\u0420\u041e! \u0414\u043e \u0441\u0442\u0430\u043d\u0446\u0438\u0438 \u043c\u0435\u0442\u0440\u043e \u041a\u041e\u041c\u0415\u041d\u0414\u0410\u041d\u0422\u0421\u041a\u0418\u0419 \u041f\u0420\u041e\u0421\u041f\u0415\u041a\u0422 - 3 \u043c\u0438\u043d\u0443\u0442\u044b \u043f\u0435\u0448\u043a\u043e\u043c! \u041a\u0432\u0430\u0440\u0442\u0438\u0440\u0430 \u0441 \u043e\u0442\u043b\u0438\u0447\u043d\u044b\u043c\u0438 \u043f\u0430\u0440\u0430\u043c\u0435\u0442\u0440\u0430\u043c\u0438: - \u043a\u043e\u043c\u043d\u0430\u0442\u0430 25 \u043a\u0432.\u043c. \u0438\u043c\u0435\u0435\u0442 2 \u043e\u043a\u043d\u0430, \u043f\u0440\u0438 \u043d\u0435\u043e\u0431\u0445\u043e\u0434\u0438\u043c\u043e\u0441\u0442\u0438 \u043c\u043e\u0436\u043d\u043e \u0441\u0434\u0435\u043b\u0430\u0442\u044c 2 \u043a\u043e\u043c\u043d\u0430\u0442\u044b; - \u043a\u0443\u0445\u043d\u044f 9 \u043a\u0432.\u043c. \u0441 \u0432\u044b\u0445\u043e\u0434\u043e\u043c \u043d\u0430 \u0437\u0430\u0441\u0442\u0435\u043a\u043b\u0451\u043d\u043d\u0443\u044e \u043b\u043e\u0434\u0436\u0438\u044e; - \u043f\u043b\u043e\u0449\u0430\u0434\u044c \u043b\u043e\u0434\u0436\u0438\u0438 4,6 \u043a\u0432.\u043c. - \u0440\u0430\u0437\u0434\u0435\u043b\u044c\u043d\u044b\u0439 \u0441\u0430\u043d\u0443\u0437\u0435\u043b; - \u0434\u0432\u0435 \u0432\u043c\u0435\u0441\u0442\u0438\u0442\u0435\u043b\u044c\u043d\u044b\u0435 \u0433\u0430\u0440\u0434\u0435\u0440\u043e\u0431\u043d\u044b\u0435; - \u0440\u0435\u043c\u043e\u043d\u0442 2014 \u0433\u043e\u0434\u0430 - \u043c\u043e\u0436\u043d\u043e \u0437\u0430\u0435\u0445\u0430\u0442\u044c \u0438 \u0436\u0438\u0442\u044c! \u0414\u043e\u043c 2004 \u0433\u043e\u0434\u0430 \u043f\u043e\u0441\u0442\u0440\u043e\u0439\u043a\u0438, \u0447\u0438\u0441\u0442\u0430\u044f \u043f\u0430\u0440\u0430\u0434\u043d\u0430\u044f. \u0417\u0430\u043a\u0440\u044b\u0442\u044b\u0439 \u0434\u0432\u043e\u0440. \u0412\u0438\u0434\u0435\u043e\u043d\u0430\u0431\u043b\u044e\u0434\u0435\u043d\u0438\u0435. \u0425\u043e\u0440\u043e\u0448\u0438\u0435 \u0441\u043e\u0441\u0435\u0434\u0438. \u041f\u0440\u0438\u043c\u043e\u0440\u0441\u043a\u0438\u0439 \u0440\u0430\u0439\u043e\u043d - \u043e\u0447\u0435\u043d\u044c \u043f\u043e\u043f\u0443\u043b\u044f\u0440\u043d\u044b\u0439 \u0438 \u0432\u043e\u0441\u0442\u0440\u0435\u0431\u043e\u0432\u0430\u043d\u043d\u044b\u0439, \u0441 \u0440\u0430\u0437\u0432\u0438\u0442\u043e\u0439 \u0438\u043d\u0444\u0440\u0430\u0441\u0442\u0440\u0443\u043a\u0442\u0443\u0440\u043e\u0439, \u0441 \u0445\u043e\u0440\u043e\u0448\u0438\u043c\u0438 \u0434\u043e\u0440\u043e\u0433\u0430\u043c\u0438 \u0438 \u0443\u0434\u043e\u0431\u043d\u044b\u043c \u0432\u044b\u0435\u0437\u0434\u043e\u043c \u043d\u0430 \u0441\u043a\u043e\u0440\u043e\u0441\u0442\u043d\u044b\u0435 \u0442\u0440\u0430\u0441\u0441\u044b \u0417\u0421\u0414 \u0438 \u041a\u0410\u0414. \u0412\u0441\u0435 \u043d\u0435\u043e\u0431\u0445\u043e\u0434\u0438\u043c\u043e\u0435 \u0434\u043b\u044f \u043a\u043e\u043c\u0444\u043e\u0440\u0442\u043d\u043e\u0439 \u0436\u0438\u0437\u043d\u0438 - \u0440\u044f\u0434\u043e\u043c. \u0414\u043e\u043a\u0443\u043c\u0435\u043d\u0442\u044b \u0432 \u043f\u043e\u043b\u043d\u043e\u043c \u043f\u043e\u0440\u044f\u0434\u043a\u0435. \u041e\u0434\u0438\u043d \u0441\u043e\u0431\u0441\u0442\u0432\u0435\u043d\u043d\u0438\u043a. \u041a\u0432\u0430\u0440\u0442\u0438\u0440\u0430 \u0441\u0432\u043e\u0431\u043e\u0434\u043d\u0430. \u041d\u0438\u043a\u0442\u043e \u043d\u0435 \u043f\u0440\u043e\u0436\u0438\u0432\u0430\u0435\u0442 \u0438 \u043d\u0435 \u0437\u0430\u0440\u0435\u0433\u0438\u0441\u0442\u0440\u0438\u0440\u043e\u0432\u0430\u043d. \u0417\u0432\u043e\u043d\u0438\u0442\u0435 \u0434\u043b\u044f \u043f\u043e\u043b\u0443\u0447\u0435\u043d\u0438\u044f \u0434\u043e\u043f\u043e\u043b\u043d\u0438\u0442\u0435\u043b\u044c\u043d\u043e\u0439 \u0438\u043d\u0444\u043e\u0440\u043c\u0430\u0446\u0438\u0438 \u0438 \u043f\u0440\u043e\u0441\u043c\u043e\u0442\u0440\u0430 \u043a\u0432\u0430\u0440\u0442\u0438\u0440\u044b!","date_update":"24.12.2025","yaCoord0":30.255771,"yaCoord1":60.00657,"is_current":1,"is_sold":0,"is_withdrawn":0,"is_private":0,"sale_date":null,"start_date":"2025-12-20","final_price":null,"created_at":"2025-12-20 16:28:02","updated_at":"2025-12-20 20:19:55","checked_at":"2025-12-20 20:19:55","sum":172,"url":null,"title":"1-\u043a\u043e\u043c\u043d\u0430\u0442\u043d\u0430\u044f \u043a\u0432\u0430\u0440\u0442\u0438\u0440\u0430 51 \u043c\u00b2, \u044d\u0442\u0430\u0436 6\/10","guidename":"1-\u043a\u043e\u043c\u043d\u0430\u0442\u043d\u044b\u0435 \u043a\u0432\u0430\u0440\u0442\u0438\u0440\u044b","phone":{"number":"+79213139214","link":"+79213139214"},"agents":[{"id":94,"url":"anisa-leusenko","F":"\u041b\u0435\u0443\u0441\u0435\u043d\u043a\u043e","I":"\u0410\u043d\u0438\u0441\u0430","O":"\u0424\u0430\u043d\u0438\u0440\u043e\u0432\u043d\u0430","phone":"+79213139214","email":"LeusenkoAF@itaka.ru","personal_phone":"8-921-313-92-14","personal_email":"LeusenkoAF@itaka.ru","birthday":"1963-11-02","photo_sq":"\/\/homeinspb.ru\/1c\/photo\/FL94.jpg","photo_cir":"agent_94_cir.png","photo":null,"online":1,"text":null,"oadm":0,"gender":0,"shows":0,"selfemployed":0,"individual":1,"in_state":0,"in_office":0,"site_post":"","is_fired":0,"direct_submission":0,"direct_submission_id":1,"mim":13434,"change":1,"is_active":1,"noindex":0,"must_index":0,"jivo":1,"basic_office_id":"000000013","precinct":0,"slaves_notifications":1,"is_blocked":0,"overrides":{"about_agent":"<p>&nbsp; \u042f \u0440\u0430\u0431\u043e\u0442\u0430\u044e \u0432 \u043a\u043e\u043c\u043f\u0430\u043d\u0438\u0438&nbsp;\u0441 1997 \u0433\u043e\u0434\u0430!&nbsp; \u041f\u0440\u043e\u0444\u0435\u0441\u0441\u0438\u043e\u043d\u0430\u043b\u0438\u0437\u043c, \u043c\u043d\u043e\u0433\u043e\u043b\u0435\u0442\u043d\u0438\u0439&nbsp;\u043e\u043f\u044b\u0442 \u0438 \u0437\u043d\u0430\u043d\u0438\u044f \u043f\u043e\u0437\u0432\u043e\u043b\u044f\u044e\u0442&nbsp; \u043c\u043d\u0435 \u0440\u0435\u0448\u0430\u0442\u044c&nbsp; \u043b\u044e\u0431\u044b\u0435 \u0436\u0438\u043b\u0438\u0449\u043d\u044b\u0435 \u0432\u043e\u043f\u0440\u043e\u0441\u044b.&nbsp; \u0412\u044b \u043c\u043e\u0436\u0435\u0442\u0435&nbsp;\u0434\u043e\u0432\u0435\u0440\u0438\u0442\u044c \u043c\u043d\u0435&nbsp; \u0441\u043b\u043e\u0436\u043d\u044b\u0435 \u0441\u0434\u0435\u043b\u043a\u0438: \u0440\u0430\u0441\u0441\u0435\u043b\u0435\u043d\u0438\u044f,&nbsp; \u0441\u0443\u0431\u0441\u0438\u0434\u0438\u0438, \u043e\u0431\u043c\u0435\u043d\u044b,&nbsp; \u0438,&nbsp;\u043f\u0440\u043e\u0441\u0442\u043e \u043f\u0440\u043e\u0434\u0430\u0436\u0438.&nbsp; &nbsp; &nbsp; &nbsp; &nbsp; &nbsp; &nbsp; &nbsp; &nbsp; &nbsp; &nbsp; &nbsp; &nbsp; &nbsp; &nbsp; &nbsp; &nbsp; &nbsp; &nbsp; &nbsp; &nbsp; &nbsp; &nbsp; &nbsp; &nbsp; &nbsp; &nbsp; &nbsp; &nbsp; &nbsp; &nbsp; &nbsp; &nbsp; &nbsp; &nbsp; &nbsp; &nbsp; &nbsp; &nbsp; &nbsp; &nbsp; &nbsp; &nbsp; &nbsp;<br><\/p>","about_agent_uin":"p>","phone":"+79213139214","phone_uin":"+79213139214","video":"https:\/\/youtu.be\/RDrjyqXwbC4","video_uin":"RDrjyqXwbC4"},"wp":true,"phone_f":"79213139214","office":{"id":"000000013","url":"ul-malaya-balkanskaya-d-26","name":"\u0443\u043b. \u041c\u0430\u043b\u0430\u044f \u0411\u0430\u043b\u043a\u0430\u043d\u0441\u043a\u0430\u044f, \u0434. 26","adress":"\u0433. \u0421\u0430\u043d\u043a\u0442-\u041f\u0435\u0442\u0435\u0440\u0431\u0443\u0440\u0433, \u0424\u0440\u0443\u043d\u0437\u0435\u043d\u0441\u043a\u0438\u0439 \u0440-\u043d, \u0443\u043b. \u041c\u0430\u043b\u0430\u044f \u0411\u0430\u043b\u043a\u0430\u043d\u0441\u043a\u0430\u044f, \u0434. 26","coords":"59.829442,30.386079","pano_coords":"59.8298972865986,30.384474933","pano_direction":"44.60707084120078,1.1631715886855591","pano_span":"58.033400647822184,30.320036290824245","email":"kup4ino@itaka.ru","phone":"88123477731","metro_stations_id":9,"region_id":78,"district_id":null,"coords_metro":null,"coords_top":null,"coords_left":null,"spbzn_coords_top":null,"spbzn_coords_left":null,"change":1,"td_id":7,"order":70,"deleted_at":null,"SuccessOverrides":[{"id":6887,"model":"Offices","target_id":0,"target_id_str":"000000013","field":"order","value":"129,5017,4141,94,255,11524,9127,5779,570,7832,10411,8923,10124,14723,12440,10827,11255,13615,14933,13616,13397,11863,702,10547,2879,3805,10032,11151,663,15756,10131,13269,284,12585,13651,2234","is_current":0,"is_moderated_adm":1,"is_moderated_tech":1,"is_selected":0,"creator_id":440,"moderator_adm_id":440,"moderator_tech_id":440,"adm_reason":null,"tech_reason":null,"created_at":"2025-09-10T08:59:44.000000Z","updated_at":"2025-09-10T08:59:44.000000Z"},{"id":6886,"model":"Offices","target_id":0,"target_id_str":"000000013","field":"add_agent_id","value":"9557","is_current":0,"is_moderated_adm":1,"is_moderated_tech":1,"is_selected":0,"creator_id":440,"moderator_adm_id":440,"moderator_tech_id":440,"adm_reason":null,"tech_reason":null,"created_at":"2025-09-10T08:59:44.000000Z","updated_at":"2025-09-10T08:59:44.000000Z"},{"id":6885,"model":"Offices","target_id":0,"target_id_str":"000000013","field":"schedule","value":"\u041f\u041d-\u041f\u0422: 10.00-20.00<br \/>\r\n\u0421\u0411-\u0412\u0421: 11.00-18.00","is_current":0,"is_moderated_adm":1,"is_moderated_tech":1,"is_selected":0,"creator_id":440,"moderator_adm_id":440,"moderator_tech_id":440,"adm_reason":null,"tech_reason":null,"created_at":"2025-09-10T08:59:44.000000Z","updated_at":"2025-09-10T08:59:44.000000Z"}],"Hours":null},"Mimfio":{"id":13434,"url":"nataliya-ershova","F":"\u0415\u0440\u0448\u043e\u0432\u0430","I":"\u041d\u0430\u0442\u0430\u043b\u0438\u044f","O":"\u0412\u0430\u043b\u0435\u043d\u0442\u0438\u043d\u043e\u0432\u043d\u0430","phone":"89312042310","email":"ErshovaNV@itaka.ru","personal_phone":"","personal_email":"","birthday":null,"photo_sq":null,"photo_cir":null,"photo":null,"online":0,"text":null,"oadm":1,"gender":null,"shows":1,"selfemployed":0,"individual":0,"in_state":0,"in_office":0,"site_post":"","is_fired":0,"direct_submission":1,"direct_submission_id":11389,"mim":null,"change":1,"is_active":1,"noindex":1,"must_index":1,"jivo":1,"basic_office_id":null,"precinct":0,"slaves_notifications":1,"is_blocked":0,"Mimfio":false},"success_overrides":[{"id":1697,"model":"Agents","target_id":94,"target_id_str":null,"field":"about_agent","value":"<p>&nbsp; \u042f \u0440\u0430\u0431\u043e\u0442\u0430\u044e \u0432 \u043a\u043e\u043c\u043f\u0430\u043d\u0438\u0438&nbsp;\u0441 1997 \u0433\u043e\u0434\u0430!&nbsp; \u041f\u0440\u043e\u0444\u0435\u0441\u0441\u0438\u043e\u043d\u0430\u043b\u0438\u0437\u043c, \u043c\u043d\u043e\u0433\u043e\u043b\u0435\u0442\u043d\u0438\u0439&nbsp;\u043e\u043f\u044b\u0442 \u0438 \u0437\u043d\u0430\u043d\u0438\u044f \u043f\u043e\u0437\u0432\u043e\u043b\u044f\u044e\u0442&nbsp; \u043c\u043d\u0435 \u0440\u0435\u0448\u0430\u0442\u044c&nbsp; \u043b\u044e\u0431\u044b\u0435 \u0436\u0438\u043b\u0438\u0449\u043d\u044b\u0435 \u0432\u043e\u043f\u0440\u043e\u0441\u044b.&nbsp; \u0412\u044b \u043c\u043e\u0436\u0435\u0442\u0435&nbsp;\u0434\u043e\u0432\u0435\u0440\u0438\u0442\u044c \u043c\u043d\u0435&nbsp; \u0441\u043b\u043e\u0436\u043d\u044b\u0435 \u0441\u0434\u0435\u043b\u043a\u0438: \u0440\u0430\u0441\u0441\u0435\u043b\u0435\u043d\u0438\u044f,&nbsp; \u0441\u0443\u0431\u0441\u0438\u0434\u0438\u0438, \u043e\u0431\u043c\u0435\u043d\u044b,&nbsp; \u0438,&nbsp;\u043f\u0440\u043e\u0441\u0442\u043e \u043f\u0440\u043e\u0434\u0430\u0436\u0438.&nbsp; &nbsp; &nbsp; &nbsp; &nbsp; &nbsp; &nbsp; &nbsp; &nbsp; &nbsp; &nbsp; &nbsp; &nbsp; &nbsp; &nbsp; &nbsp; &nbsp; &nbsp; &nbsp; &nbsp; &nbsp; &nbsp; &nbsp; &nbsp; &nbsp; &nbsp; &nbsp; &nbsp; &nbsp; &nbsp; &nbsp; &nbsp; &nbsp; &nbsp; &nbsp; &nbsp; &nbsp; &nbsp; &nbsp; &nbsp; &nbsp; &nbsp; &nbsp; &nbsp;<br><\/p>","is_current":0,"is_moderated_adm":1,"is_moderated_tech":1,"is_selected":0,"creator_id":535,"moderator_adm_id":402,"moderator_tech_id":402,"adm_reason":null,"tech_reason":null,"created_at":"2021-11-23T15:29:41.000000Z","updated_at":"2021-11-25T12:08:49.000000Z"},{"id":1905,"model":"Agents","target_id":94,"target_id_str":null,"field":"phone","value":"88123477731","is_current":0,"is_moderated_adm":1,"is_moderated_tech":1,"is_selected":0,"creator_id":535,"moderator_adm_id":440,"moderator_tech_id":440,"adm_reason":null,"tech_reason":null,"created_at":"2021-12-02T15:23:09.000000Z","updated_at":"2021-12-02T15:56:54.000000Z"},{"id":2004,"model":"Agents","target_id":94,"target_id_str":null,"field":"phone","value":"+79213139214","is_current":0,"is_moderated_adm":1,"is_moderated_tech":1,"is_selected":0,"creator_id":535,"moderator_adm_id":402,"moderator_tech_id":402,"adm_reason":null,"tech_reason":null,"created_at":"2021-12-08T13:56:44.000000Z","updated_at":"2021-12-16T12:41:20.000000Z"},{"id":5132,"model":"Agents","target_id":94,"target_id_str":null,"field":"video","value":"https:\/\/youtu.be\/RDrjyqXwbC4","is_current":0,"is_moderated_adm":1,"is_moderated_tech":1,"is_selected":0,"creator_id":440,"moderator_adm_id":440,"moderator_tech_id":440,"adm_reason":null,"tech_reason":null,"created_at":"2023-11-16T10:08:18.000000Z","updated_at":"2023-11-16T10:08:21.000000Z"}]},{"id":94,"url":"anisa-leusenko","F":"\u041b\u0435\u0443\u0441\u0435\u043d\u043a\u043e","I":"\u0410\u043d\u0438\u0441\u0430","O":"\u0424\u0430\u043d\u0438\u0440\u043e\u0432\u043d\u0430","phone":"+79213139214","email":"LeusenkoAF@itaka.ru","personal_phone":"8-921-313-92-14","personal_email":"LeusenkoAF@itaka.ru","birthday":"1963-11-02","photo_sq":"\/\/homeinspb.ru\/1c\/photo\/FL94.jpg","photo_cir":"agent_94_cir.png","photo":null,"online":1,"text":null,"oadm":0,"gender":0,"shows":0,"selfemployed":0,"individual":1,"in_state":0,"in_office":0,"site_post":"","is_fired":0,"direct_submission":0,"direct_submission_id":1,"mim":13434,"change":1,"is_active":1,"noindex":0,"must_index":0,"jivo":1,"basic_office_id":"000000013","precinct":0,"slaves_notifications":1,"is_blocked":0,"overrides":{"about_agent":"<p>&nbsp; \u042f \u0440\u0430\u0431\u043e\u0442\u0430\u044e \u0432 \u043a\u043e\u043c\u043f\u0430\u043d\u0438\u0438&nbsp;\u0441 1997 \u0433\u043e\u0434\u0430!&nbsp; \u041f\u0440\u043e\u0444\u0435\u0441\u0441\u0438\u043e\u043d\u0430\u043b\u0438\u0437\u043c, \u043c\u043d\u043e\u0433\u043e\u043b\u0435\u0442\u043d\u0438\u0439&nbsp;\u043e\u043f\u044b\u0442 \u0438 \u0437\u043d\u0430\u043d\u0438\u044f \u043f\u043e\u0437\u0432\u043e\u043b\u044f\u044e\u0442&nbsp; \u043c\u043d\u0435 \u0440\u0435\u0448\u0430\u0442\u044c&nbsp; \u043b\u044e\u0431\u044b\u0435 \u0436\u0438\u043b\u0438\u0449\u043d\u044b\u0435 \u0432\u043e\u043f\u0440\u043e\u0441\u044b.&nbsp; \u0412\u044b \u043c\u043e\u0436\u0435\u0442\u0435&nbsp;\u0434\u043e\u0432\u0435\u0440\u0438\u0442\u044c \u043c\u043d\u0435&nbsp; \u0441\u043b\u043e\u0436\u043d\u044b\u0435 \u0441\u0434\u0435\u043b\u043a\u0438: \u0440\u0430\u0441\u0441\u0435\u043b\u0435\u043d\u0438\u044f,&nbsp; \u0441\u0443\u0431\u0441\u0438\u0434\u0438\u0438, \u043e\u0431\u043c\u0435\u043d\u044b,&nbsp; \u0438,&nbsp;\u043f\u0440\u043e\u0441\u0442\u043e \u043f\u0440\u043e\u0434\u0430\u0436\u0438.&nbsp; &nbsp; &nbsp; &nbsp; &nbsp; &nbsp; &nbsp; &nbsp; &nbsp; &nbsp; &nbsp; &nbsp; &nbsp; &nbsp; &nbsp; &nbsp; &nbsp; &nbsp; &nbsp; &nbsp; &nbsp; &nbsp; &nbsp; &nbsp; &nbsp; &nbsp; &nbsp; &nbsp; &nbsp; &nbsp; &nbsp; &nbsp; &nbsp; &nbsp; &nbsp; &nbsp; &nbsp; &nbsp; &nbsp; &nbsp; &nbsp; &nbsp; &nbsp; &nbsp;<br><\/p>","about_agent_uin":"p>","phone":"+79213139214","phone_uin":"+79213139214","video":"https:\/\/youtu.be\/RDrjyqXwbC4","video_uin":"RDrjyqXwbC4"},"wp":true,"phone_f":"79213139214","office":{"id":"000000013","url":"ul-malaya-balkanskaya-d-26","name":"\u0443\u043b. \u041c\u0430\u043b\u0430\u044f \u0411\u0430\u043b\u043a\u0430\u043d\u0441\u043a\u0430\u044f, \u0434. 26","adress":"\u0433. \u0421\u0430\u043d\u043a\u0442-\u041f\u0435\u0442\u0435\u0440\u0431\u0443\u0440\u0433, \u0424\u0440\u0443\u043d\u0437\u0435\u043d\u0441\u043a\u0438\u0439 \u0440-\u043d, \u0443\u043b. \u041c\u0430\u043b\u0430\u044f \u0411\u0430\u043b\u043a\u0430\u043d\u0441\u043a\u0430\u044f, \u0434. 26","coords":"59.829442,30.386079","pano_coords":"59.8298972865986,30.384474933","pano_direction":"44.60707084120078,1.1631715886855591","pano_span":"58.033400647822184,30.320036290824245","email":"kup4ino@itaka.ru","phone":"88123477731","metro_stations_id":9,"region_id":78,"district_id":null,"coords_metro":null,"coords_top":null,"coords_left":null,"spbzn_coords_top":null,"spbzn_coords_left":null,"change":1,"td_id":7,"order":70,"deleted_at":null,"SuccessOverrides":[{"id":6887,"model":"Offices","target_id":0,"target_id_str":"000000013","field":"order","value":"129,5017,4141,94,255,11524,9127,5779,570,7832,10411,8923,10124,14723,12440,10827,11255,13615,14933,13616,13397,11863,702,10547,2879,3805,10032,11151,663,15756,10131,13269,284,12585,13651,2234","is_current":0,"is_moderated_adm":1,"is_moderated_tech":1,"is_selected":0,"creator_id":440,"moderator_adm_id":440,"moderator_tech_id":440,"adm_reason":null,"tech_reason":null,"created_at":"2025-09-10T08:59:44.000000Z","updated_at":"2025-09-10T08:59:44.000000Z"},{"id":6886,"model":"Offices","target_id":0,"target_id_str":"000000013","field":"add_agent_id","value":"9557","is_current":0,"is_moderated_adm":1,"is_moderated_tech":1,"is_selected":0,"creator_id":440,"moderator_adm_id":440,"moderator_tech_id":440,"adm_reason":null,"tech_reason":null,"created_at":"2025-09-10T08:59:44.000000Z","updated_at":"2025-09-10T08:59:44.000000Z"},{"id":6885,"model":"Offices","target_id":0,"target_id_str":"000000013","field":"schedule","value":"\u041f\u041d-\u041f\u0422: 10.00-20.00<br \/>\r\n\u0421\u0411-\u0412\u0421: 11.00-18.00","is_current":0,"is_moderated_adm":1,"is_moderated_tech":1,"is_selected":0,"creator_id":440,"moderator_adm_id":440,"moderator_tech_id":440,"adm_reason":null,"tech_reason":null,"created_at":"2025-09-10T08:59:44.000000Z","updated_at":"2025-09-10T08:59:44.000000Z"}],"Hours":null},"Mimfio":{"id":13434,"url":"nataliya-ershova","F":"\u0415\u0440\u0448\u043e\u0432\u0430","I":"\u041d\u0430\u0442\u0430\u043b\u0438\u044f","O":"\u0412\u0430\u043b\u0435\u043d\u0442\u0438\u043d\u043e\u0432\u043d\u0430","phone":"89312042310","email":"ErshovaNV@itaka.ru","personal_phone":"","personal_email":"","birthday":null,"photo_sq":null,"photo_cir":null,"photo":null,"online":0,"text":null,"oadm":1,"gender":null,"shows":1,"selfemployed":0,"individual":0,"in_state":0,"in_office":0,"site_post":"","is_fired":0,"direct_submission":1,"direct_submission_id":11389,"mim":null,"change":1,"is_active":1,"noindex":1,"must_index":1,"jivo":1,"basic_office_id":null,"precinct":0,"slaves_notifications":1,"is_blocked":0,"Mimfio":false},"success_overrides":[{"id":1697,"model":"Agents","target_id":94,"target_id_str":null,"field":"about_agent","value":"<p>&nbsp; \u042f \u0440\u0430\u0431\u043e\u0442\u0430\u044e \u0432 \u043a\u043e\u043c\u043f\u0430\u043d\u0438\u0438&nbsp;\u0441 1997 \u0433\u043e\u0434\u0430!&nbsp; \u041f\u0440\u043e\u0444\u0435\u0441\u0441\u0438\u043e\u043d\u0430\u043b\u0438\u0437\u043c, \u043c\u043d\u043e\u0433\u043e\u043b\u0435\u0442\u043d\u0438\u0439&nbsp;\u043e\u043f\u044b\u0442 \u0438 \u0437\u043d\u0430\u043d\u0438\u044f \u043f\u043e\u0437\u0432\u043e\u043b\u044f\u044e\u0442&nbsp; \u043c\u043d\u0435 \u0440\u0435\u0448\u0430\u0442\u044c&nbsp; \u043b\u044e\u0431\u044b\u0435 \u0436\u0438\u043b\u0438\u0449\u043d\u044b\u0435 \u0432\u043e\u043f\u0440\u043e\u0441\u044b.&nbsp; \u0412\u044b \u043c\u043e\u0436\u0435\u0442\u0435&nbsp;\u0434\u043e\u0432\u0435\u0440\u0438\u0442\u044c \u043c\u043d\u0435&nbsp; \u0441\u043b\u043e\u0436\u043d\u044b\u0435 \u0441\u0434\u0435\u043b\u043a\u0438: \u0440\u0430\u0441\u0441\u0435\u043b\u0435\u043d\u0438\u044f,&nbsp; \u0441\u0443\u0431\u0441\u0438\u0434\u0438\u0438, \u043e\u0431\u043c\u0435\u043d\u044b,&nbsp; \u0438,&nbsp;\u043f\u0440\u043e\u0441\u0442\u043e \u043f\u0440\u043e\u0434\u0430\u0436\u0438.&nbsp; &nbsp; &nbsp; &nbsp; &nbsp; &nbsp; &nbsp; &nbsp; &nbsp; &nbsp; &nbsp; &nbsp; &nbsp; &nbsp; &nbsp; &nbsp; &nbsp; &nbsp; &nbsp; &nbsp; &nbsp; &nbsp; &nbsp; &nbsp; &nbsp; &nbsp; &nbsp; &nbsp; &nbsp; &nbsp; &nbsp; &nbsp; &nbsp; &nbsp; &nbsp; &nbsp; &nbsp; &nbsp; &nbsp; &nbsp; &nbsp; &nbsp; &nbsp; &nbsp;<br><\/p>","is_current":0,"is_moderated_adm":1,"is_moderated_tech":1,"is_selected":0,"creator_id":535,"moderator_adm_id":402,"moderator_tech_id":402,"adm_reason":null,"tech_reason":null,"created_at":"2021-11-23T15:29:41.000000Z","updated_at":"2021-11-25T12:08:49.000000Z"},{"id":1905,"model":"Agents","target_id":94,"target_id_str":null,"field":"phone","value":"88123477731","is_current":0,"is_moderated_adm":1,"is_moderated_tech":1,"is_selected":0,"creator_id":535,"moderator_adm_id":440,"moderator_tech_id":440,"adm_reason":null,"tech_reason":null,"created_at":"2021-12-02T15:23:09.000000Z","updated_at":"2021-12-02T15:56:54.000000Z"},{"id":2004,"model":"Agents","target_id":94,"target_id_str":null,"field":"phone","value":"+79213139214","is_current":0,"is_moderated_adm":1,"is_moderated_tech":1,"is_selected":0,"creator_id":535,"moderator_adm_id":402,"moderator_tech_id":402,"adm_reason":null,"tech_reason":null,"created_at":"2021-12-08T13:56:44.000000Z","updated_at":"2021-12-16T12:41:20.000000Z"},{"id":5132,"model":"Agents","target_id":94,"target_id_str":null,"field":"video","value":"https:\/\/youtu.be\/RDrjyqXwbC4","is_current":0,"is_moderated_adm":1,"is_moderated_tech":1,"is_selected":0,"creator_id":440,"moderator_adm_id":440,"moderator_tech_id":440,"adm_reason":null,"tech_reason":null,"created_at":"2023-11-16T10:08:18.000000Z","updated_at":"2023-11-16T10:08:21.000000Z"}]}],"metro":{"id":49,"name":"\u041a\u043e\u043c\u0435\u043d\u0434\u0430\u043d\u0442\u0441\u043a\u0438\u0439 \u043f\u0440\u043e\u0441\u043f\u0435\u043a\u0442","chpuName":"komendantskij-prospekt","top":"85","left":"171","metro_lines_id":9,"intersection":null,"r_top":"54","r_side":"450","r_class":"right","r_top_sub":null,"r_side_sub":null,"r_opt_class":null,"yaCoord0":null,"yaCoord1":null,"created_at":null,"updated_at":null,"metro_color":"blueviolet"},"images":[{"id":1305905,"apartment_number":"1-92632","photo":"media.itaka.ru\/homeinspb\/images\/objects\/big_fbe12aee-30df-f011-aa6e-0050568db126.jpg","priority":1},{"id":1305904,"apartment_number":"1-92632","photo":"media.itaka.ru\/homeinspb\/images\/objects\/big_f93c02da-30df-f011-aa6e-0050568db126.jpg","priority":2},{"id":1305758,"apartment_number":"1-92632","photo":"media.itaka.ru\/homeinspb\/images\/objects\/big_a98abc4f-a3dd-f011-aa6e-0050568db126.jpg","priority":3},{"id":1305901,"apartment_number":"1-92632","photo":"media.itaka.ru\/homeinspb\/images\/objects\/big_7c65a750-30df-f011-aa6e-0050568db126.jpg","priority":4},{"id":1305759,"apartment_number":"1-92632","photo":"media.itaka.ru\/homeinspb\/images\/objects\/big_ed8bbc4f-a3dd-f011-aa6e-0050568db126.jpg","priority":5},{"id":1305760,"apartment_number":"1-92632","photo":"media.itaka.ru\/homeinspb\/images\/objects\/big_4b8bbc4f-a3dd-f011-aa6e-0050568db126.jpg","priority":6},{"id":1305761,"apartment_number":"1-92632","photo":"media.itaka.ru\/homeinspb\/images\/objects\/big_388bbc4f-a3dd-f011-aa6e-0050568db126.jpg","priority":7},{"id":1305896,"apartment_number":"1-92632","photo":"media.itaka.ru\/homeinspb\/images\/objects\/big_3aee26d5-2edf-f011-aa6e-0050568db126.jpg","priority":8},{"id":1305762,"apartment_number":"1-92632","photo":"media.itaka.ru\/homeinspb\/images\/objects\/big_f38bbc4f-a3dd-f011-aa6e-0050568db126.jpg","priority":9},{"id":1305886,"apartment_number":"1-92632","photo":"media.itaka.ru\/homeinspb\/images\/objects\/big_2064fe89-2edf-f011-aa6e-0050568db126.jpg","priority":10},{"id":1305883,"apartment_number":"1-92632","photo":"media.itaka.ru\/homeinspb\/images\/objects\/big_1e64fe89-2edf-f011-aa6e-0050568db126.jpg","priority":11},{"id":1305766,"apartment_number":"1-92632","photo":"media.itaka.ru\/homeinspb\/images\/objects\/big_3d8dbc4f-a3dd-f011-aa6e-0050568db126.jpg","priority":12},{"id":1305767,"apartment_number":"1-92632","photo":"media.itaka.ru\/homeinspb\/images\/objects\/big_bf8dbc4f-a3dd-f011-aa6e-0050568db126.jpg","priority":13},{"id":1305768,"apartment_number":"1-92632","photo":"media.itaka.ru\/homeinspb\/images\/objects\/big_a18dbc4f-a3dd-f011-aa6e-0050568db126.jpg","priority":14},{"id":1305769,"apartment_number":"1-92632","photo":"media.itaka.ru\/homeinspb\/images\/objects\/big_c58dbc4f-a3dd-f011-aa6e-0050568db126.jpg","priority":15},{"id":1305897,"apartment_number":"1-92632","photo":"media.itaka.ru\/homeinspb\/images\/objects\/big_3eee26d5-2edf-f011-aa6e-0050568db126.jpg","priority":16},{"id":1305899,"apartment_number":"1-92632","photo":"media.itaka.ru\/homeinspb\/images\/objects\/big_44ee26d5-2edf-f011-aa6e-0050568db126.jpg","priority":17},{"id":1305898,"apartment_number":"1-92632","photo":"media.itaka.ru\/homeinspb\/images\/objects\/big_49ee26d5-2edf-f011-aa6e-0050568db126.jpg","priority":18},{"id":1305770,"apartment_number":"1-92632","photo":"media.itaka.ru\/homeinspb\/images\/objects\/big_5d8ebc4f-a3dd-f011-aa6e-0050568db126.jpg","priority":19},{"id":1305771,"apartment_number":"1-92632","photo":"media.itaka.ru\/homeinspb\/images\/objects\/big_028fbc4f-a3dd-f011-aa6e-0050568db126.jpg","priority":20},{"id":1305772,"apartment_number":"1-92632","photo":"media.itaka.ru\/homeinspb\/images\/objects\/big_138fbc4f-a3dd-f011-aa6e-0050568db126.jpg","priority":21},{"id":1305773,"apartment_number":"1-92632","photo":"media.itaka.ru\/homeinspb\/images\/objects\/big_158fbc4f-a3dd-f011-aa6e-0050568db126.jpg","priority":22},{"id":1305774,"apartment_number":"1-92632","photo":"media.itaka.ru\/homeinspb\/images\/objects\/big_628fbc4f-a3dd-f011-aa6e-0050568db126.jpg","priority":23},{"id":1305775,"apartment_number":"1-92632","photo":"media.itaka.ru\/homeinspb\/images\/objects\/big_8290bc4f-a3dd-f011-aa6e-0050568db126.jpg","priority":24},{"id":1305776,"apartment_number":"1-92632","photo":"media.itaka.ru\/homeinspb\/images\/objects\/big_ba90bc4f-a3dd-f011-aa6e-0050568db126.jpg","priority":25},{"id":1305777,"apartment_number":"1-92632","photo":"media.itaka.ru\/homeinspb\/images\/objects\/big_f490bc4f-a3dd-f011-aa6e-0050568db126.jpg","priority":26}]}

Леусенко Аниса

94 +79213139214
94

94


1-комнатная квартира 45.9 м², этаж 4/5

Проспект Ветеранов

г Санкт-Петербург, г Петергоф, ул Парковая, д. 20, корп. 2, стр. 1

В прямой продаже Евро-2-х комнатная квартира в Петергофе. Петродворцовый район Санкт-Петербурга, городская прописка. Кирпично-монолитный дом, со своей автономной котельной. 4/5 этаж, общая площадь 46 м.кв. Квартира теплая, двусторонняя, не угловая. Красивый вид из окон. Кухня-гостиная 17,7 м.кв., комната 14,2 м.кв. с выходом на застеленную лоджию. Просторная прихожая 9 м.кв. с местом под гардеробную. Раздельный санузел, полноразмерная ванная. Высота потолков 2,75 м. Квартира после косметического ремонта. На полу линолеум и плитка, натяжные потолки. Металлическая входная дверь, хорошие двухкамерные стеклопакеты. Счетчики на воду и электричество. В качестве бонуса остаются шкафы Lazurit, кровать и стеллажи Ikea, стиральная машина Miele, холодильник Siemens, новый добротный раскладной диван (абсолютно ровное спальное место, без стыков). Чистая парадная, есть места для хранения велосипедов и колясок. Хорошая управляющая компания, низкая квартплата. Ухоженный двор, детские и спортивные площадки. Всегда есть парковочные места. Остановка автобуса в 10 минутах от дома. 15 минут пешком до ж/д станции Новый Петергоф и 30 минут на электричке до метро Ленинский проспект. Быстрый выезд на КАД. Рядом с домом парк Александрия и Знаменка. В пешей доступности музей-заповедник Петергоф, фонтаны, масса исторических мест и достопримечательностей, а также водоемы, где можно купаться. У дома два детских сада, детская и взрослая поликлиники, сетевые супермаркеты, аптеки, пекарни, пункты выдачи заказов. До школы 25 минут пешком. В пешей доступности Военно-морская Академия имени Адмирала Кузнецова, Университет МВД России, Высшая Школа Менеджмента СПбГУ. Первая продажа. Один взрослый собственник лично присутствует на сделке. Мат.капитал не использовался

7 980 000 ₽
173 856 ₽/м²
Объект № 1-92289
Специалист по этому объекту:
{"id":"1-92289","object_type":1,"agents_id":13651,"rooms_saled":1,"rooms_total":1,"regions_id":78,"districts_id":"15","station_metro_id":48,"station_rallway":"\u041d\u043e\u0432\u044b\u0439 \u041f\u0435\u0442\u0435\u0440\u0433\u043e\u0444","address":"\u0433 \u0421\u0430\u043d\u043a\u0442-\u041f\u0435\u0442\u0435\u0440\u0431\u0443\u0440\u0433, \u0433 \u041f\u0435\u0442\u0435\u0440\u0433\u043e\u0444, \u0443\u043b \u041f\u0430\u0440\u043a\u043e\u0432\u0430\u044f, \u0434. 20, \u043a\u043e\u0440\u043f. 2, \u0441\u0442\u0440. 1","locality":"\u0433. \u041f\u0435\u0442\u0435\u0440\u0433\u043e\u0444","price":"7 980 000","price_mkv":"173 856","floor":4,"floors":5,"is_first":0,"is_last":0,"floor_height":2.75,"space_habitable":14.25,"space_total":45.9,"space_rooms":"14,25","space_kitchen":17.73,"type_of_building_id":13,"is_phone":0,"wc":"\u0440\u0430\u0437\u0434\u0435\u043b\u044c\u043d\u044b\u0439","is_balcon":1,"is_lift":0,"hotwater":null,"is_ipoteka":1,"is_exclusive":1,"is_unique":1,"is_fake":0,"is_counter":0,"is_cession":0,"build_year":2016,"comments":"\u0412 \u043f\u0440\u044f\u043c\u043e\u0439 \u043f\u0440\u043e\u0434\u0430\u0436\u0435 \u0415\u0432\u0440\u043e-2-\u0445 \u043a\u043e\u043c\u043d\u0430\u0442\u043d\u0430\u044f \u043a\u0432\u0430\u0440\u0442\u0438\u0440\u0430 \u0432 \u041f\u0435\u0442\u0435\u0440\u0433\u043e\u0444\u0435. \u041f\u0435\u0442\u0440\u043e\u0434\u0432\u043e\u0440\u0446\u043e\u0432\u044b\u0439 \u0440\u0430\u0439\u043e\u043d \u0421\u0430\u043d\u043a\u0442-\u041f\u0435\u0442\u0435\u0440\u0431\u0443\u0440\u0433\u0430, \u0433\u043e\u0440\u043e\u0434\u0441\u043a\u0430\u044f \u043f\u0440\u043e\u043f\u0438\u0441\u043a\u0430. \u041a\u0438\u0440\u043f\u0438\u0447\u043d\u043e-\u043c\u043e\u043d\u043e\u043b\u0438\u0442\u043d\u044b\u0439 \u0434\u043e\u043c, \u0441\u043e \u0441\u0432\u043e\u0435\u0439 \u0430\u0432\u0442\u043e\u043d\u043e\u043c\u043d\u043e\u0439 \u043a\u043e\u0442\u0435\u043b\u044c\u043d\u043e\u0439. 4\/5 \u044d\u0442\u0430\u0436, \u043e\u0431\u0449\u0430\u044f \u043f\u043b\u043e\u0449\u0430\u0434\u044c 46 \u043c.\u043a\u0432. \u041a\u0432\u0430\u0440\u0442\u0438\u0440\u0430 \u0442\u0435\u043f\u043b\u0430\u044f, \u0434\u0432\u0443\u0441\u0442\u043e\u0440\u043e\u043d\u043d\u044f\u044f, \u043d\u0435 \u0443\u0433\u043b\u043e\u0432\u0430\u044f. \u041a\u0440\u0430\u0441\u0438\u0432\u044b\u0439 \u0432\u0438\u0434 \u0438\u0437 \u043e\u043a\u043e\u043d. \u041a\u0443\u0445\u043d\u044f-\u0433\u043e\u0441\u0442\u0438\u043d\u0430\u044f 17,7 \u043c.\u043a\u0432., \u043a\u043e\u043c\u043d\u0430\u0442\u0430 14,2 \u043c.\u043a\u0432. \u0441 \u0432\u044b\u0445\u043e\u0434\u043e\u043c \u043d\u0430 \u0437\u0430\u0441\u0442\u0435\u043b\u0435\u043d\u043d\u0443\u044e \u043b\u043e\u0434\u0436\u0438\u044e. \u041f\u0440\u043e\u0441\u0442\u043e\u0440\u043d\u0430\u044f \u043f\u0440\u0438\u0445\u043e\u0436\u0430\u044f 9 \u043c.\u043a\u0432. \u0441 \u043c\u0435\u0441\u0442\u043e\u043c \u043f\u043e\u0434 \u0433\u0430\u0440\u0434\u0435\u0440\u043e\u0431\u043d\u0443\u044e. \u0420\u0430\u0437\u0434\u0435\u043b\u044c\u043d\u044b\u0439 \u0441\u0430\u043d\u0443\u0437\u0435\u043b, \u043f\u043e\u043b\u043d\u043e\u0440\u0430\u0437\u043c\u0435\u0440\u043d\u0430\u044f \u0432\u0430\u043d\u043d\u0430\u044f. \u0412\u044b\u0441\u043e\u0442\u0430 \u043f\u043e\u0442\u043e\u043b\u043a\u043e\u0432 2,75 \u043c. \u041a\u0432\u0430\u0440\u0442\u0438\u0440\u0430 \u043f\u043e\u0441\u043b\u0435 \u043a\u043e\u0441\u043c\u0435\u0442\u0438\u0447\u0435\u0441\u043a\u043e\u0433\u043e \u0440\u0435\u043c\u043e\u043d\u0442\u0430. \u041d\u0430 \u043f\u043e\u043b\u0443 \u043b\u0438\u043d\u043e\u043b\u0435\u0443\u043c \u0438 \u043f\u043b\u0438\u0442\u043a\u0430, \u043d\u0430\u0442\u044f\u0436\u043d\u044b\u0435 \u043f\u043e\u0442\u043e\u043b\u043a\u0438. \u041c\u0435\u0442\u0430\u043b\u043b\u0438\u0447\u0435\u0441\u043a\u0430\u044f \u0432\u0445\u043e\u0434\u043d\u0430\u044f \u0434\u0432\u0435\u0440\u044c, \u0445\u043e\u0440\u043e\u0448\u0438\u0435 \u0434\u0432\u0443\u0445\u043a\u0430\u043c\u0435\u0440\u043d\u044b\u0435 \u0441\u0442\u0435\u043a\u043b\u043e\u043f\u0430\u043a\u0435\u0442\u044b. \u0421\u0447\u0435\u0442\u0447\u0438\u043a\u0438 \u043d\u0430 \u0432\u043e\u0434\u0443 \u0438 \u044d\u043b\u0435\u043a\u0442\u0440\u0438\u0447\u0435\u0441\u0442\u0432\u043e. \u0412 \u043a\u0430\u0447\u0435\u0441\u0442\u0432\u0435 \u0431\u043e\u043d\u0443\u0441\u0430 \u043e\u0441\u0442\u0430\u044e\u0442\u0441\u044f \u0448\u043a\u0430\u0444\u044b Lazurit, \u043a\u0440\u043e\u0432\u0430\u0442\u044c \u0438 \u0441\u0442\u0435\u043b\u043b\u0430\u0436\u0438 Ikea, \u0441\u0442\u0438\u0440\u0430\u043b\u044c\u043d\u0430\u044f \u043c\u0430\u0448\u0438\u043d\u0430 Miele, \u0445\u043e\u043b\u043e\u0434\u0438\u043b\u044c\u043d\u0438\u043a Siemens, \u043d\u043e\u0432\u044b\u0439 \u0434\u043e\u0431\u0440\u043e\u0442\u043d\u044b\u0439 \u0440\u0430\u0441\u043a\u043b\u0430\u0434\u043d\u043e\u0439 \u0434\u0438\u0432\u0430\u043d (\u0430\u0431\u0441\u043e\u043b\u044e\u0442\u043d\u043e \u0440\u043e\u0432\u043d\u043e\u0435 \u0441\u043f\u0430\u043b\u044c\u043d\u043e\u0435 \u043c\u0435\u0441\u0442\u043e, \u0431\u0435\u0437 \u0441\u0442\u044b\u043a\u043e\u0432). \u0427\u0438\u0441\u0442\u0430\u044f \u043f\u0430\u0440\u0430\u0434\u043d\u0430\u044f, \u0435\u0441\u0442\u044c \u043c\u0435\u0441\u0442\u0430 \u0434\u043b\u044f \u0445\u0440\u0430\u043d\u0435\u043d\u0438\u044f \u0432\u0435\u043b\u043e\u0441\u0438\u043f\u0435\u0434\u043e\u0432 \u0438 \u043a\u043e\u043b\u044f\u0441\u043e\u043a. \u0425\u043e\u0440\u043e\u0448\u0430\u044f \u0443\u043f\u0440\u0430\u0432\u043b\u044f\u044e\u0449\u0430\u044f \u043a\u043e\u043c\u043f\u0430\u043d\u0438\u044f, \u043d\u0438\u0437\u043a\u0430\u044f \u043a\u0432\u0430\u0440\u0442\u043f\u043b\u0430\u0442\u0430. \u0423\u0445\u043e\u0436\u0435\u043d\u043d\u044b\u0439 \u0434\u0432\u043e\u0440, \u0434\u0435\u0442\u0441\u043a\u0438\u0435 \u0438 \u0441\u043f\u043e\u0440\u0442\u0438\u0432\u043d\u044b\u0435 \u043f\u043b\u043e\u0449\u0430\u0434\u043a\u0438. \u0412\u0441\u0435\u0433\u0434\u0430 \u0435\u0441\u0442\u044c \u043f\u0430\u0440\u043a\u043e\u0432\u043e\u0447\u043d\u044b\u0435 \u043c\u0435\u0441\u0442\u0430. \u041e\u0441\u0442\u0430\u043d\u043e\u0432\u043a\u0430 \u0430\u0432\u0442\u043e\u0431\u0443\u0441\u0430 \u0432 10 \u043c\u0438\u043d\u0443\u0442\u0430\u0445 \u043e\u0442 \u0434\u043e\u043c\u0430. 15 \u043c\u0438\u043d\u0443\u0442 \u043f\u0435\u0448\u043a\u043e\u043c \u0434\u043e \u0436\/\u0434 \u0441\u0442\u0430\u043d\u0446\u0438\u0438 \u041d\u043e\u0432\u044b\u0439 \u041f\u0435\u0442\u0435\u0440\u0433\u043e\u0444 \u0438 30 \u043c\u0438\u043d\u0443\u0442 \u043d\u0430 \u044d\u043b\u0435\u043a\u0442\u0440\u0438\u0447\u043a\u0435 \u0434\u043e \u043c\u0435\u0442\u0440\u043e \u041b\u0435\u043d\u0438\u043d\u0441\u043a\u0438\u0439 \u043f\u0440\u043e\u0441\u043f\u0435\u043a\u0442. \u0411\u044b\u0441\u0442\u0440\u044b\u0439 \u0432\u044b\u0435\u0437\u0434 \u043d\u0430 \u041a\u0410\u0414. \u0420\u044f\u0434\u043e\u043c \u0441 \u0434\u043e\u043c\u043e\u043c \u043f\u0430\u0440\u043a \u0410\u043b\u0435\u043a\u0441\u0430\u043d\u0434\u0440\u0438\u044f \u0438 \u0417\u043d\u0430\u043c\u0435\u043d\u043a\u0430. \u0412 \u043f\u0435\u0448\u0435\u0439 \u0434\u043e\u0441\u0442\u0443\u043f\u043d\u043e\u0441\u0442\u0438 \u043c\u0443\u0437\u0435\u0439-\u0437\u0430\u043f\u043e\u0432\u0435\u0434\u043d\u0438\u043a \u041f\u0435\u0442\u0435\u0440\u0433\u043e\u0444, \u0444\u043e\u043d\u0442\u0430\u043d\u044b, \u043c\u0430\u0441\u0441\u0430 \u0438\u0441\u0442\u043e\u0440\u0438\u0447\u0435\u0441\u043a\u0438\u0445 \u043c\u0435\u0441\u0442 \u0438 \u0434\u043e\u0441\u0442\u043e\u043f\u0440\u0438\u043c\u0435\u0447\u0430\u0442\u0435\u043b\u044c\u043d\u043e\u0441\u0442\u0435\u0439, \u0430 \u0442\u0430\u043a\u0436\u0435 \u0432\u043e\u0434\u043e\u0435\u043c\u044b, \u0433\u0434\u0435 \u043c\u043e\u0436\u043d\u043e \u043a\u0443\u043f\u0430\u0442\u044c\u0441\u044f. \u0423 \u0434\u043e\u043c\u0430 \u0434\u0432\u0430 \u0434\u0435\u0442\u0441\u043a\u0438\u0445 \u0441\u0430\u0434\u0430, \u0434\u0435\u0442\u0441\u043a\u0430\u044f \u0438 \u0432\u0437\u0440\u043e\u0441\u043b\u0430\u044f \u043f\u043e\u043b\u0438\u043a\u043b\u0438\u043d\u0438\u043a\u0438, \u0441\u0435\u0442\u0435\u0432\u044b\u0435 \u0441\u0443\u043f\u0435\u0440\u043c\u0430\u0440\u043a\u0435\u0442\u044b, \u0430\u043f\u0442\u0435\u043a\u0438, \u043f\u0435\u043a\u0430\u0440\u043d\u0438, \u043f\u0443\u043d\u043a\u0442\u044b \u0432\u044b\u0434\u0430\u0447\u0438 \u0437\u0430\u043a\u0430\u0437\u043e\u0432. \u0414\u043e \u0448\u043a\u043e\u043b\u044b 25 \u043c\u0438\u043d\u0443\u0442 \u043f\u0435\u0448\u043a\u043e\u043c. \u0412 \u043f\u0435\u0448\u0435\u0439 \u0434\u043e\u0441\u0442\u0443\u043f\u043d\u043e\u0441\u0442\u0438 \u0412\u043e\u0435\u043d\u043d\u043e-\u043c\u043e\u0440\u0441\u043a\u0430\u044f \u0410\u043a\u0430\u0434\u0435\u043c\u0438\u044f \u0438\u043c\u0435\u043d\u0438 \u0410\u0434\u043c\u0438\u0440\u0430\u043b\u0430 \u041a\u0443\u0437\u043d\u0435\u0446\u043e\u0432\u0430, \u0423\u043d\u0438\u0432\u0435\u0440\u0441\u0438\u0442\u0435\u0442 \u041c\u0412\u0414 \u0420\u043e\u0441\u0441\u0438\u0438, \u0412\u044b\u0441\u0448\u0430\u044f \u0428\u043a\u043e\u043b\u0430 \u041c\u0435\u043d\u0435\u0434\u0436\u043c\u0435\u043d\u0442\u0430 \u0421\u041f\u0431\u0413\u0423. \u041f\u0435\u0440\u0432\u0430\u044f \u043f\u0440\u043e\u0434\u0430\u0436\u0430. \u041e\u0434\u0438\u043d \u0432\u0437\u0440\u043e\u0441\u043b\u044b\u0439 \u0441\u043e\u0431\u0441\u0442\u0432\u0435\u043d\u043d\u0438\u043a \u043b\u0438\u0447\u043d\u043e \u043f\u0440\u0438\u0441\u0443\u0442\u0441\u0442\u0432\u0443\u0435\u0442 \u043d\u0430 \u0441\u0434\u0435\u043b\u043a\u0435. \u041c\u0430\u0442.\u043a\u0430\u043f\u0438\u0442\u0430\u043b \u043d\u0435 \u0438\u0441\u043f\u043e\u043b\u044c\u0437\u043e\u0432\u0430\u043b\u0441\u044f","date_update":"24.12.2025","yaCoord0":29.938818,"yaCoord1":59.85721,"is_current":1,"is_sold":0,"is_withdrawn":0,"is_private":0,"sale_date":null,"start_date":"2025-10-16","final_price":null,"created_at":"2025-10-17 00:52:57","updated_at":"2025-10-17 06:19:17","checked_at":"2025-10-17 06:19:17","sum":168,"url":null,"title":"1-\u043a\u043e\u043c\u043d\u0430\u0442\u043d\u0430\u044f \u043a\u0432\u0430\u0440\u0442\u0438\u0440\u0430 45.9 \u043c\u00b2, \u044d\u0442\u0430\u0436 4\/5","guidename":"1-\u043a\u043e\u043c\u043d\u0430\u0442\u043d\u044b\u0435 \u043a\u0432\u0430\u0440\u0442\u0438\u0440\u044b","phone":{"number":"+7 (812) 740-70-40","link":"+7 (812) 740-70-40"},"agents":[{"id":13651,"url":"yuliya-tsybulya","F":"\u0426\u044b\u0431\u0443\u043b\u044f","I":"\u042e\u043b\u0438\u044f","O":"\u0421\u0435\u0440\u0433\u0435\u0435\u0432\u043d\u0430","phone":"+7 (812) 740-70-40","email":"CybulyaYuS@itaka.ru","personal_phone":"89052772799","personal_email":"CybulyaYuS@itaka.ru","birthday":"1981-03-24","photo_sq":"\/img\/avatar\/lk_1758561498_86aed7eb5c39d8c6f17f3878b58140a8.png","photo_cir":null,"photo":null,"online":1,"text":"\u041f\u0440\u0438\u0432\u0435\u0442\u0441\u0442\u0432\u0443\u044e \u0412\u0430\u0441 \u043d\u0430 \u0441\u0432\u043e\u0435\u0439 \u0441\u0442\u0440\u0430\u043d\u0438\u0446\u0435!&nbsp;<div>\u0426\u044b\u0431\u0443\u043b\u044f&nbsp;\u042e\u043b\u0438\u044f \u0421\u0435\u0440\u0433\u0435\u0435\u0432\u043d\u0430, \u043f\u0440\u043e\u0444\u0435\u0441\u0441\u0438\u043e\u043d\u0430\u043b\u044c\u043d\u044b\u0439 \u043a\u043e\u043d\u0441\u0443\u043b\u044c\u0442\u0430\u043d\u0442 &nbsp;\u043f\u043e \u043d\u0435\u0434\u0432\u0438\u0436\u0438\u043c\u043e\u0441\u0442\u0438, \u0440\u0438\u044d\u043b\u0442\u043e\u0440 \u0432\u043e \u0432\u0442\u043e\u0440\u043e\u043c \u043f\u043e\u043a\u043e\u043b\u0435\u043d\u0438\u0438.&nbsp; \u0420\u0430\u0431\u043e\u0442\u0430\u044e \u043f\u043e \u0421\u0430\u043d\u043a\u0442-\u041f\u0435\u0442\u0435\u0440\u0431\u0443\u0440\u0433\u0443 \u0438 \u041b\u0435\u043d\u0438\u043d\u0433\u0440\u0430\u0434\u0441\u043a\u043e\u0439 \u043e\u0431\u043b\u0430\u0441\u0442\u0438, \u0432 \u0430\u0433\u0435\u043d\u0442\u0441\u0442\u0432\u0435 \u043d\u0435\u0434\u0432\u0438\u0436\u0438\u043c\u043e\u0441\u0442\u0438 \"\u0418\u0442\u0430\u043a\u0430\". \u0420\u0435\u0433\u0443\u043b\u044f\u0440\u043d\u043e \u043f\u0440\u043e\u0445\u043e\u0436\u0443 \u043f\u043e\u0432\u044b\u0448\u0435\u043d\u0438\u0435 \u043a\u0432\u0430\u043b\u0438\u0444\u0438\u043a\u0430\u0446\u0438\u0438 \u043f\u043e \u0432\u043e\u043f\u0440\u043e\u0441\u0430\u043c \u043f\u0440\u0430\u0432\u0430 \u0438 \u043d\u0430\u043b\u043e\u0433\u043e\u043e\u0431\u043b\u043e\u0436\u0435\u043d\u0438\u044f \u0432 \u0441\u0444\u0435\u0440\u0435 \u043d\u0435\u0434\u0432\u0438\u0436\u0438\u043c\u043e\u0441\u0442\u0438. \u0414\u0435\u0439\u0441\u0442\u0432\u0443\u044e\u0449\u0438\u0439 \u0410\u0442\u0442\u0435\u0441\u0442\u0430\u0442 \u0420\u043e\u0441\u0441\u0438\u0439\u0441\u043a\u043e\u0439 \u0433\u0438\u043b\u044c\u0434\u0438\u0438 \u0440\u0438\u044d\u043b\u0442\u043e\u0440\u043e\u0432 \u2116\u0410\u041d-10229.<\/div><div><br \/>\u0421 \u0447\u0435\u043c \u044f \u0440\u0430\u0431\u043e\u0442\u0430\u044e:<\/div><div><ul><li>\u0412\u0442\u043e\u0440\u0438\u0447\u043d\u043e\u0435 \u0436\u0438\u043b\u044c\u0435, \u0441\u0442\u0430\u0440\u044b\u0439 \u0444\u043e\u043d\u0434.<\/li><li>\u041f\u043e\u043a\u0443\u043f\u043a\u0430 \u0438 \u043f\u0440\u043e\u0434\u0430\u0436\u0430 \u043a\u0432\u0430\u0440\u0442\u0438\u0440, \u043a\u043e\u043c\u043d\u0430\u0442, \u0434\u043e\u043c\u043e\u0432, \u0437\u0435\u043c\u0435\u043b\u044c\u043d\u044b\u0445 \u0443\u0447\u0430\u0441\u0442\u043a\u043e\u0432.<\/li><li>\u0421\u043e\u043f\u0440\u043e\u0432\u043e\u0436\u0434\u0435\u043d\u0438\u0435 \u0441\u0434\u0435\u043b\u043e\u043a \u0441 \u0441\u0443\u0431\u0441\u0438\u0434\u0438\u044f\u043c\u0438, \u043c\u0430\u0442\u0435\u0440\u0438\u043d\u0441\u043a\u0438\u043c \u043a\u0430\u043f\u0438\u0442\u0430\u043b\u043e\u043c, \u043e\u0440\u0433\u0430\u043d\u0430\u043c\u0438 \u043e\u043f\u0435\u043a\u0438.<\/li><li>\u041f\u0440\u043e\u0434\u0430\u0436\u0430 \u043e\u0431\u044a\u0435\u043a\u0442\u043e\u0432 \u0441 \u0437\u0430\u043b\u043e\u0433\u043e\u0432\u044b\u043c \u043e\u0431\u0440\u0435\u043c\u0435\u043d\u0435\u043d\u0438\u0435\u043c, \u0440\u0430\u0441\u0441\u0435\u043b\u0435\u043d\u0438\u0435, \u043f\u0435\u0440\u0435\u0443\u0441\u0442\u0443\u043f\u043a\u0430 \u043f\u0440\u0430\u0432\u0430.<\/li><\/ul><\/div><div><br \/>\u0412 \u043c\u043e\u0435\u0439 \u0440\u0430\u0431\u043e\u0442\u0435 \u0432\u0430\u0436\u043d\u043e \u043e\u0442\u043d\u043e\u0448\u0435\u043d\u0438\u0435 \u043a \u043a\u043b\u0438\u0435\u043d\u0442\u0443, \u043a\u043e\u0442\u043e\u0440\u043e\u0433\u043e \u0432\u0435\u0434\u0443 \u0437\u0430 \u0440\u0443\u043a\u0443 \u0441 \u0441\u0430\u043c\u043e\u0433\u043e \u043d\u0430\u0447\u0430\u043b\u0430 \u0432\u0437\u0430\u0438\u043c\u043e\u0434\u0435\u0439\u0441\u0442\u0432\u0438\u044f \u0434\u043e \u0437\u0430\u0432\u0435\u0440\u0448\u0435\u043d\u0438\u044f \u0441\u0434\u0435\u043b\u043a\u0438.<\/div><div><br \/>\u041e\u0431\u0440\u0430\u0449\u0430\u0439\u0442\u0435\u0441\u044c, \u0431\u0443\u0434\u0443 \u0440\u0430\u0434\u0430 \u043f\u043e\u043c\u043e\u0447\u044c! <\/div>","oadm":0,"gender":0,"shows":1,"selfemployed":0,"individual":1,"in_state":0,"in_office":0,"site_post":"","is_fired":0,"direct_submission":0,"direct_submission_id":1,"mim":null,"change":1,"is_active":1,"noindex":0,"must_index":0,"jivo":1,"basic_office_id":"000000013","precinct":0,"slaves_notifications":0,"is_blocked":0,"overrides":{"vk":"https:\/\/vk.com\/julia.realestate","vk_uin":"julia.realestate","photo_sq":"lk_1758561498_86aed7eb5c39d8c6f17f3878b58140a8.png","photo_sq_uin":"lk_1758561498_86aed7eb5c39d8c6f17f3878b58140a8.png","about_agent":"<p><strong>\u0412\u0441\u0435\u0445 \u043f\u0440\u0438\u0432\u0435\u0442\u0441\u0442\u0432\u0443\u044e! \u0414\u0430\u0432\u0430\u0439\u0442\u0435\r\n\u0437\u043d\u0430\u043a\u043e\u043c\u0438\u0442\u044c\u0441\u044f:<\/strong>\r\n<\/p><p>\r\n\u0426\u044b\u0431\u0443\u043b\u044f \u042e\u043b\u0438\u044f \u0421\u0435\u0440\u0433\u0435\u0435\u0432\u043d\u0430, \u043f\u0440\u043e\u0444\u0435\u0441\u0441\u0438\u043e\u043d\u0430\u043b\u044c\u043d\u044b\u0439\r\n\u043a\u043e\u043d\u0441\u0443\u043b\u044c\u0442\u0430\u043d\u0442 \u043f\u043e \u043d\u0435\u0434\u0432\u0438\u0436\u0438\u043c\u043e\u0441\u0442\u0438, \u0440\u0438\u044d\u043b\u0442\u043e\u0440 \u0432\u043e \u0432\u0442\u043e\u0440\u043e\u043c \u043f\u043e\u043a\u043e\u043b\u0435\u043d\u0438\u0438.&nbsp; \u0420\u0430\u0431\u043e\u0442\u0430\u044e \u043f\u043e \u0421\u0430\u043d\u043a\u0442-\u041f\u0435\u0442\u0435\u0440\u0431\u0443\u0440\u0433\u0443 \u0438 \u041b\u0435\u043d\u0438\u043d\u0433\u0440\u0430\u0434\u0441\u043a\u043e\u0439\r\n\u043e\u0431\u043b\u0430\u0441\u0442\u0438, \u0432 \u0430\u0433\u0435\u043d\u0442\u0441\u0442\u0432\u0435 \u043d\u0435\u0434\u0432\u0438\u0436\u0438\u043c\u043e\u0441\u0442\u0438 \u00ab\u0418\u0422\u0410\u041a\u0410\u00bb. \u0420\u0435\u0433\u0443\u043b\u044f\u0440\u043d\u043e \u043f\u0440\u043e\u0445\u043e\u0436\u0443 \u043f\u043e\u0432\u044b\u0448\u0435\u043d\u0438\u0435\r\n\u043a\u0432\u0430\u043b\u0438\u0444\u0438\u043a\u0430\u0446\u0438\u0438 \u043f\u043e \u0432\u043e\u043f\u0440\u043e\u0441\u0430\u043c \u043f\u0440\u0430\u0432\u0430 \u0438 \u043d\u0430\u043b\u043e\u0433\u043e\u043e\u0431\u043b\u043e\u0436\u0435\u043d\u0438\u044f \u0432 \u0441\u0444\u0435\u0440\u0435 \u043d\u0435\u0434\u0432\u0438\u0436\u0438\u043c\u043e\u0441\u0442\u0438. <\/p><p>\r\n\u041f\u0440\u0438\u0448\u043b\u0430 \u0432 \u044d\u0442\u0443 \u043f\u0440\u043e\u0444\u0435\u0441\u0441\u0438\u044e \u043e\u0441\u043e\u0437\u043d\u0430\u043d\u043d\u043e. \u0423 \u043c\u0435\u043d\u044f \u0431\u044b\u043b \u0432\u044b\u0431\u043e\u0440: \u043f\u0440\u043e\u0434\u043e\u043b\u0436\u0438\u0442\u044c \u0443\u0441\u043f\u0435\u0448\u043d\u0443\u044e \u043a\u0430\u0440\u044c\u0435\u0440\u0443\r\n\u0432 \u043a\u0440\u0443\u043f\u043d\u043e\u0439 \u0441\u0442\u0430\u0431\u0438\u043b\u044c\u043d\u043e\u0439 \u043a\u043e\u043c\u043f\u0430\u043d\u0438\u0438 \u0441 \u0441\u043e\u0446\u0438\u0430\u043b\u044c\u043d\u044b\u043c\u0438 \u0433\u0430\u0440\u0430\u043d\u0442\u0438\u044f\u043c\u0438 \u0438 \u0432\u044b\u0441\u043e\u043a\u0438\u043c \u0434\u043e\u0445\u043e\u0434\u043e\u043c. \u041d\u043e\r\n\u0438\u043c\u0435\u043d\u043d\u043e \u0437\u0434\u0435\u0441\u044c \u043f\u0440\u0438\u0433\u043e\u0434\u0438\u043b\u0441\u044f \u0430\u0431\u0441\u043e\u043b\u044e\u0442\u043d\u043e \u0432\u0435\u0441\u044c \u043e\u043f\u044b\u0442&nbsp;, \u043a\u043e\u0442\u043e\u0440\u044b\u0439 \u044f \u043f\u043e\u043b\u0443\u0447\u0430\u043b\u0430 \u0440\u0430\u043d\u0435\u0435, \u0440\u0430\u0431\u043e\u0442\u0430\u044f \u0441 \u044e\u0440\u0438\u0441\u0442\u0430\u043c\u0438 \u0432\r\n\u043a\u0440\u0443\u043f\u043d\u043e\u0439 \u044e\u0440\u0438\u0434\u0438\u0447\u0435\u0441\u043a\u043e\u0439 \u0444\u0438\u0440\u043c\u0435, \u0441 \u0444\u0438\u043d\u0430\u043d\u0441\u043e\u0432\u044b\u043c\u0438 \u0430\u0443\u0434\u0438\u0442\u043e\u0440\u0430\u043c\u0438, \u043d\u0430\u043b\u043e\u0433\u043e\u0432\u044b\u043c\u0438 \u043a\u043e\u043d\u0441\u0443\u043b\u044c\u0442\u0430\u043d\u0442\u0430\u043c\u0438,\r\n\u0430\u043d\u0430\u043b\u0438\u0442\u0438\u043a\u0430\u043c\u0438, \u043f\u0440\u043e\u0432\u043e\u0434\u044f \u0442\u0440\u0435\u043d\u0438\u043d\u0433\u0438, \u043e\u0440\u0433\u0430\u043d\u0438\u0437\u043e\u0432\u044b\u0432\u0430\u044f \u043c\u0430\u0440\u043a\u0435\u0442\u0438\u043d\u0433\u043e\u0432\u044b\u0435 \u043c\u0435\u0440\u043e\u043f\u0440\u0438\u044f\u0442\u0438\u044f, \u0440\u0430\u0431\u043e\u0442\u0430\u044f\r\n\u043f\u0435\u0440\u0435\u0432\u043e\u0434\u0447\u0438\u043a\u043e\u043c-\u0441\u0438\u043d\u0445\u0440\u043e\u043d\u0438\u0441\u0442\u043e\u043c \u043d\u0430 \u043c\u0435\u0436\u0434\u0443\u043d\u0430\u0440\u043e\u0434\u043d\u044b\u0445 \u043a\u043e\u043d\u0444\u0435\u0440\u0435\u043d\u0446\u0438\u044f\u0445 \u0438\r\n\u0441\u0435\u043a\u0440\u0435\u0442\u0430\u0440\u0435\u043c-\u0434\u0435\u043b\u043e\u043f\u0440\u043e\u0438\u0437\u0432\u043e\u0434\u0438\u0442\u0435\u043b\u0435\u043c.\r\n\r\n&nbsp;<\/p><p>\u0411\u043e\u043b\u0435\u0435 10 \u043b\u0435\u0442 \u044f \u043f\u043e\u0434\u0431\u0438\u0440\u0430\u043b\u0430 \u043b\u044e\u0434\u0435\u0439 \u0434\u043b\u044f \u043a\u0440\u0443\u043f\u043d\u044b\u0445\r\n\u043a\u043e\u043c\u043f\u0430\u043d\u0438\u0439, \u0430 \u0442\u0435\u043f\u0435\u0440\u044c \u0442\u0430\u043a\u0436\u0435 \u0442\u0449\u0430\u0442\u0435\u043b\u044c\u043d\u043e \u0438 \u0432\u043d\u0438\u043c\u0430\u0442\u0435\u043b\u044c\u043d\u043e \u043f\u043e\u0434\u0431\u0438\u0440\u0430\u044e \u041d\u041e\u0412\u041e\u0413\u041e \u0425\u041e\u0417\u042f\u0418\u041d\u0410 \u0434\u043b\u044f\r\n\u043a\u0432\u0430\u0440\u0442\u0438\u0440\u044b \u0438 \u041d\u041e\u0412\u042b\u0419 \u0414\u041e\u041c \u0434\u043b\u044f \u0441\u0432\u043e\u0435\u0433\u043e \u043a\u043b\u0438\u0435\u043d\u0442\u0430.\r\n<\/p><p>\u0412 \u043f\u0440\u0438\u043e\u0440\u0438\u0442\u0435\u0442\u0435 - \u043e\u0442\u043d\u043e\u0448\u0435\u043d\u0438\u0435 \u043a \u043a\u043b\u0438\u0435\u043d\u0442\u0443, \u043a\u043e\u0442\u043e\u0440\u043e\u0433\u043e <strong>\"\u0432\u0435\u0434\u0443 \u0437\u0430 \u0440\u0443\u043a\u0443\"<\/strong> \u0441 \u0441\u0430\u043c\u043e\u0433\u043e\r\n\u043d\u0430\u0447\u0430\u043b\u0430 \u0432\u0437\u0430\u0438\u043c\u043e\u0434\u0435\u0439\u0441\u0442\u0432\u0438\u044f \u0434\u043e \u0437\u0430\u0432\u0435\u0440\u0448\u0435\u043d\u0438\u044f \u0441\u0434\u0435\u043b\u043a\u0438.&nbsp;\r\n<\/p><p>\r\n\u041e\u0431\u0440\u0430\u0449\u0430\u0439\u0442\u0435\u0441\u044c, \u0431\u0443\u0434\u0443 \u0440\u0430\u0434\u0430 \u043f\u043e\u043c\u043e\u0447\u044c!<\/p><p>\r\n\u0421 \u0443\u0432\u0430\u0436\u0435\u043d\u0438\u0435\u043c,<\/p><p>\u0426\u044b\u0431\u0443\u043b\u044f \u042e\u043b\u0438\u044f<\/p><hr><p><br><\/p><p>&nbsp;&nbsp;&nbsp;&nbsp;&nbsp;&nbsp;&nbsp;&nbsp;&nbsp;&nbsp;&nbsp;&nbsp;&nbsp;&nbsp;&nbsp;&nbsp;&nbsp;&nbsp;&nbsp;&nbsp;&nbsp;&nbsp;&nbsp;&nbsp;&nbsp;&nbsp;&nbsp;&nbsp;&nbsp;&nbsp;&nbsp;&nbsp;&nbsp;&nbsp;&nbsp;&nbsp;&nbsp;&nbsp;&nbsp;&nbsp;&nbsp;&nbsp;&nbsp;&nbsp;&nbsp;&nbsp;&nbsp;&nbsp;&nbsp;&nbsp;&nbsp;&nbsp;&nbsp;&nbsp;&nbsp;&nbsp;&nbsp;\r\n <\/p><p><br><\/p>","about_agent_uin":"p>"},"wp":false,"phone_f":"78127407040","office":{"id":"000000013","url":"ul-malaya-balkanskaya-d-26","name":"\u0443\u043b. \u041c\u0430\u043b\u0430\u044f \u0411\u0430\u043b\u043a\u0430\u043d\u0441\u043a\u0430\u044f, \u0434. 26","adress":"\u0433. \u0421\u0430\u043d\u043a\u0442-\u041f\u0435\u0442\u0435\u0440\u0431\u0443\u0440\u0433, \u0424\u0440\u0443\u043d\u0437\u0435\u043d\u0441\u043a\u0438\u0439 \u0440-\u043d, \u0443\u043b. \u041c\u0430\u043b\u0430\u044f \u0411\u0430\u043b\u043a\u0430\u043d\u0441\u043a\u0430\u044f, \u0434. 26","coords":"59.829442,30.386079","pano_coords":"59.8298972865986,30.384474933","pano_direction":"44.60707084120078,1.1631715886855591","pano_span":"58.033400647822184,30.320036290824245","email":"kup4ino@itaka.ru","phone":"88123477731","metro_stations_id":9,"region_id":78,"district_id":null,"coords_metro":null,"coords_top":null,"coords_left":null,"spbzn_coords_top":null,"spbzn_coords_left":null,"change":1,"td_id":7,"order":70,"deleted_at":null,"SuccessOverrides":[{"id":6887,"model":"Offices","target_id":0,"target_id_str":"000000013","field":"order","value":"129,5017,4141,94,255,11524,9127,5779,570,7832,10411,8923,10124,14723,12440,10827,11255,13615,14933,13616,13397,11863,702,10547,2879,3805,10032,11151,663,15756,10131,13269,284,12585,13651,2234","is_current":0,"is_moderated_adm":1,"is_moderated_tech":1,"is_selected":0,"creator_id":440,"moderator_adm_id":440,"moderator_tech_id":440,"adm_reason":null,"tech_reason":null,"created_at":"2025-09-10T08:59:44.000000Z","updated_at":"2025-09-10T08:59:44.000000Z"},{"id":6886,"model":"Offices","target_id":0,"target_id_str":"000000013","field":"add_agent_id","value":"9557","is_current":0,"is_moderated_adm":1,"is_moderated_tech":1,"is_selected":0,"creator_id":440,"moderator_adm_id":440,"moderator_tech_id":440,"adm_reason":null,"tech_reason":null,"created_at":"2025-09-10T08:59:44.000000Z","updated_at":"2025-09-10T08:59:44.000000Z"},{"id":6885,"model":"Offices","target_id":0,"target_id_str":"000000013","field":"schedule","value":"\u041f\u041d-\u041f\u0422: 10.00-20.00<br \/>\r\n\u0421\u0411-\u0412\u0421: 11.00-18.00","is_current":0,"is_moderated_adm":1,"is_moderated_tech":1,"is_selected":0,"creator_id":440,"moderator_adm_id":440,"moderator_tech_id":440,"adm_reason":null,"tech_reason":null,"created_at":"2025-09-10T08:59:44.000000Z","updated_at":"2025-09-10T08:59:44.000000Z"}],"Hours":null},"Mimfio":false,"success_overrides":[{"id":1870,"model":"Agents","target_id":13651,"target_id_str":null,"field":"vk","value":"https:\/\/vk.com\/julia.realestate","is_current":0,"is_moderated_adm":1,"is_moderated_tech":1,"is_selected":0,"creator_id":598,"moderator_adm_id":440,"moderator_tech_id":440,"adm_reason":null,"tech_reason":null,"created_at":"2021-12-01T17:56:32.000000Z","updated_at":"2021-12-02T16:19:33.000000Z"},{"id":2103,"model":"Agents","target_id":13651,"target_id_str":null,"field":"photo_sq","value":"lk_1639472549_6b78df1b1d025dd4bcb5d671ac232712.png","is_current":0,"is_moderated_adm":1,"is_moderated_tech":1,"is_selected":0,"creator_id":598,"moderator_adm_id":440,"moderator_tech_id":440,"adm_reason":null,"tech_reason":null,"created_at":"2021-12-14T12:02:29.000000Z","updated_at":"2023-10-05T14:56:04.000000Z"},{"id":2232,"model":"Agents","target_id":13651,"target_id_str":null,"field":"about_agent","value":"<p><strong>\u0412\u0441\u0435\u0445 \u043f\u0440\u0438\u0432\u0435\u0442\u0441\u0442\u0432\u0443\u044e! \u0414\u0430\u0432\u0430\u0439\u0442\u0435\r\n\u0437\u043d\u0430\u043a\u043e\u043c\u0438\u0442\u044c\u0441\u044f:<\/strong>\r\n<\/p><p>\r\n\u0426\u044b\u0431\u0443\u043b\u044f \u042e\u043b\u0438\u044f \u0421\u0435\u0440\u0433\u0435\u0435\u0432\u043d\u0430, \u043f\u0440\u043e\u0444\u0435\u0441\u0441\u0438\u043e\u043d\u0430\u043b\u044c\u043d\u044b\u0439\r\n\u043a\u043e\u043d\u0441\u0443\u043b\u044c\u0442\u0430\u043d\u0442 \u043f\u043e \u043d\u0435\u0434\u0432\u0438\u0436\u0438\u043c\u043e\u0441\u0442\u0438, \u0440\u0438\u044d\u043b\u0442\u043e\u0440 \u0432\u043e \u0432\u0442\u043e\u0440\u043e\u043c \u043f\u043e\u043a\u043e\u043b\u0435\u043d\u0438\u0438.&nbsp; \u0420\u0430\u0431\u043e\u0442\u0430\u044e \u043f\u043e \u0421\u0430\u043d\u043a\u0442-\u041f\u0435\u0442\u0435\u0440\u0431\u0443\u0440\u0433\u0443 \u0438 \u041b\u0435\u043d\u0438\u043d\u0433\u0440\u0430\u0434\u0441\u043a\u043e\u0439\r\n\u043e\u0431\u043b\u0430\u0441\u0442\u0438, \u0432 \u0430\u0433\u0435\u043d\u0442\u0441\u0442\u0432\u0435 \u043d\u0435\u0434\u0432\u0438\u0436\u0438\u043c\u043e\u0441\u0442\u0438 \u00ab\u0418\u0422\u0410\u041a\u0410\u00bb. \u0420\u0435\u0433\u0443\u043b\u044f\u0440\u043d\u043e \u043f\u0440\u043e\u0445\u043e\u0436\u0443 \u043f\u043e\u0432\u044b\u0448\u0435\u043d\u0438\u0435\r\n\u043a\u0432\u0430\u043b\u0438\u0444\u0438\u043a\u0430\u0446\u0438\u0438 \u043f\u043e \u0432\u043e\u043f\u0440\u043e\u0441\u0430\u043c \u043f\u0440\u0430\u0432\u0430 \u0438 \u043d\u0430\u043b\u043e\u0433\u043e\u043e\u0431\u043b\u043e\u0436\u0435\u043d\u0438\u044f \u0432 \u0441\u0444\u0435\u0440\u0435 \u043d\u0435\u0434\u0432\u0438\u0436\u0438\u043c\u043e\u0441\u0442\u0438. <\/p><p>\r\n\u041f\u0440\u0438\u0448\u043b\u0430 \u0432 \u044d\u0442\u0443 \u043f\u0440\u043e\u0444\u0435\u0441\u0441\u0438\u044e \u043e\u0441\u043e\u0437\u043d\u0430\u043d\u043d\u043e. \u0423 \u043c\u0435\u043d\u044f \u0431\u044b\u043b \u0432\u044b\u0431\u043e\u0440: \u043f\u0440\u043e\u0434\u043e\u043b\u0436\u0438\u0442\u044c \u0443\u0441\u043f\u0435\u0448\u043d\u0443\u044e \u043a\u0430\u0440\u044c\u0435\u0440\u0443\r\n\u0432 \u043a\u0440\u0443\u043f\u043d\u043e\u0439 \u0441\u0442\u0430\u0431\u0438\u043b\u044c\u043d\u043e\u0439 \u043a\u043e\u043c\u043f\u0430\u043d\u0438\u0438 \u0441 \u0441\u043e\u0446\u0438\u0430\u043b\u044c\u043d\u044b\u043c\u0438 \u0433\u0430\u0440\u0430\u043d\u0442\u0438\u044f\u043c\u0438 \u0438 \u0432\u044b\u0441\u043e\u043a\u0438\u043c \u0434\u043e\u0445\u043e\u0434\u043e\u043c. \u041d\u043e\r\n\u0438\u043c\u0435\u043d\u043d\u043e \u0437\u0434\u0435\u0441\u044c \u043f\u0440\u0438\u0433\u043e\u0434\u0438\u043b\u0441\u044f \u0430\u0431\u0441\u043e\u043b\u044e\u0442\u043d\u043e \u0432\u0435\u0441\u044c \u043e\u043f\u044b\u0442&nbsp;, \u043a\u043e\u0442\u043e\u0440\u044b\u0439 \u044f \u043f\u043e\u043b\u0443\u0447\u0430\u043b\u0430 \u0440\u0430\u043d\u0435\u0435, \u0440\u0430\u0431\u043e\u0442\u0430\u044f \u0441 \u044e\u0440\u0438\u0441\u0442\u0430\u043c\u0438 \u0432\r\n\u043a\u0440\u0443\u043f\u043d\u043e\u0439 \u044e\u0440\u0438\u0434\u0438\u0447\u0435\u0441\u043a\u043e\u0439 \u0444\u0438\u0440\u043c\u0435, \u0441 \u0444\u0438\u043d\u0430\u043d\u0441\u043e\u0432\u044b\u043c\u0438 \u0430\u0443\u0434\u0438\u0442\u043e\u0440\u0430\u043c\u0438, \u043d\u0430\u043b\u043e\u0433\u043e\u0432\u044b\u043c\u0438 \u043a\u043e\u043d\u0441\u0443\u043b\u044c\u0442\u0430\u043d\u0442\u0430\u043c\u0438,\r\n\u0430\u043d\u0430\u043b\u0438\u0442\u0438\u043a\u0430\u043c\u0438, \u043f\u0440\u043e\u0432\u043e\u0434\u044f \u0442\u0440\u0435\u043d\u0438\u043d\u0433\u0438, \u043e\u0440\u0433\u0430\u043d\u0438\u0437\u043e\u0432\u044b\u0432\u0430\u044f \u043c\u0430\u0440\u043a\u0435\u0442\u0438\u043d\u0433\u043e\u0432\u044b\u0435 \u043c\u0435\u0440\u043e\u043f\u0440\u0438\u044f\u0442\u0438\u044f, \u0440\u0430\u0431\u043e\u0442\u0430\u044f\r\n\u043f\u0435\u0440\u0435\u0432\u043e\u0434\u0447\u0438\u043a\u043e\u043c-\u0441\u0438\u043d\u0445\u0440\u043e\u043d\u0438\u0441\u0442\u043e\u043c \u043d\u0430 \u043c\u0435\u0436\u0434\u0443\u043d\u0430\u0440\u043e\u0434\u043d\u044b\u0445 \u043a\u043e\u043d\u0444\u0435\u0440\u0435\u043d\u0446\u0438\u044f\u0445 \u0438\r\n\u0441\u0435\u043a\u0440\u0435\u0442\u0430\u0440\u0435\u043c-\u0434\u0435\u043b\u043e\u043f\u0440\u043e\u0438\u0437\u0432\u043e\u0434\u0438\u0442\u0435\u043b\u0435\u043c.\r\n\r\n&nbsp;<\/p><p>\u0411\u043e\u043b\u0435\u0435 10 \u043b\u0435\u0442 \u044f \u043f\u043e\u0434\u0431\u0438\u0440\u0430\u043b\u0430 \u043b\u044e\u0434\u0435\u0439 \u0434\u043b\u044f \u043a\u0440\u0443\u043f\u043d\u044b\u0445\r\n\u043a\u043e\u043c\u043f\u0430\u043d\u0438\u0439, \u0430 \u0442\u0435\u043f\u0435\u0440\u044c \u0442\u0430\u043a\u0436\u0435 \u0442\u0449\u0430\u0442\u0435\u043b\u044c\u043d\u043e \u0438 \u0432\u043d\u0438\u043c\u0430\u0442\u0435\u043b\u044c\u043d\u043e \u043f\u043e\u0434\u0431\u0438\u0440\u0430\u044e \u041d\u041e\u0412\u041e\u0413\u041e \u0425\u041e\u0417\u042f\u0418\u041d\u0410 \u0434\u043b\u044f\r\n\u043a\u0432\u0430\u0440\u0442\u0438\u0440\u044b \u0438 \u041d\u041e\u0412\u042b\u0419 \u0414\u041e\u041c \u0434\u043b\u044f \u0441\u0432\u043e\u0435\u0433\u043e \u043a\u043b\u0438\u0435\u043d\u0442\u0430.\r\n<\/p><p>\u0412 \u043f\u0440\u0438\u043e\u0440\u0438\u0442\u0435\u0442\u0435 - \u043e\u0442\u043d\u043e\u0448\u0435\u043d\u0438\u0435 \u043a \u043a\u043b\u0438\u0435\u043d\u0442\u0443, \u043a\u043e\u0442\u043e\u0440\u043e\u0433\u043e <strong>\"\u0432\u0435\u0434\u0443 \u0437\u0430 \u0440\u0443\u043a\u0443\"<\/strong> \u0441 \u0441\u0430\u043c\u043e\u0433\u043e\r\n\u043d\u0430\u0447\u0430\u043b\u0430 \u0432\u0437\u0430\u0438\u043c\u043e\u0434\u0435\u0439\u0441\u0442\u0432\u0438\u044f \u0434\u043e \u0437\u0430\u0432\u0435\u0440\u0448\u0435\u043d\u0438\u044f \u0441\u0434\u0435\u043b\u043a\u0438.&nbsp;\r\n<\/p><p>\r\n\u041e\u0431\u0440\u0430\u0449\u0430\u0439\u0442\u0435\u0441\u044c, \u0431\u0443\u0434\u0443 \u0440\u0430\u0434\u0430 \u043f\u043e\u043c\u043e\u0447\u044c!<\/p><p>\r\n\u0421 \u0443\u0432\u0430\u0436\u0435\u043d\u0438\u0435\u043c,<\/p><p>\u0426\u044b\u0431\u0443\u043b\u044f \u042e\u043b\u0438\u044f<\/p><hr><p><br><\/p><p>&nbsp;&nbsp;&nbsp;&nbsp;&nbsp;&nbsp;&nbsp;&nbsp;&nbsp;&nbsp;&nbsp;&nbsp;&nbsp;&nbsp;&nbsp;&nbsp;&nbsp;&nbsp;&nbsp;&nbsp;&nbsp;&nbsp;&nbsp;&nbsp;&nbsp;&nbsp;&nbsp;&nbsp;&nbsp;&nbsp;&nbsp;&nbsp;&nbsp;&nbsp;&nbsp;&nbsp;&nbsp;&nbsp;&nbsp;&nbsp;&nbsp;&nbsp;&nbsp;&nbsp;&nbsp;&nbsp;&nbsp;&nbsp;&nbsp;&nbsp;&nbsp;&nbsp;&nbsp;&nbsp;&nbsp;&nbsp;&nbsp;\r\n <\/p><p><br><\/p>","is_current":0,"is_moderated_adm":1,"is_moderated_tech":1,"is_selected":0,"creator_id":598,"moderator_adm_id":440,"moderator_tech_id":440,"adm_reason":null,"tech_reason":null,"created_at":"2021-12-20T21:13:20.000000Z","updated_at":"2021-12-21T10:19:53.000000Z"},{"id":4841,"model":"Agents","target_id":13651,"target_id_str":null,"field":"photo_sq","value":"lk_1696506959_321073861443378db88083d9a0ae8691.png","is_current":0,"is_moderated_adm":1,"is_moderated_tech":1,"is_selected":0,"creator_id":440,"moderator_adm_id":440,"moderator_tech_id":440,"adm_reason":null,"tech_reason":null,"created_at":"2023-10-05T14:55:59.000000Z","updated_at":"2023-10-05T14:56:10.000000Z"},{"id":4980,"model":"Agents","target_id":13651,"target_id_str":null,"field":"photo_sq","value":"lk_1698265331_f46f528521f4a6b3187bb48f17925f28.png","is_current":0,"is_moderated_adm":1,"is_moderated_tech":1,"is_selected":0,"creator_id":598,"moderator_adm_id":440,"moderator_tech_id":440,"adm_reason":null,"tech_reason":null,"created_at":"2023-10-25T23:22:11.000000Z","updated_at":"2023-10-26T09:47:11.000000Z"},{"id":6428,"model":"Agents","target_id":13651,"target_id_str":null,"field":"photo_sq","value":"lk_1738310119_63ddebba878e1a16fbc0444879e726fe.png","is_current":0,"is_moderated_adm":1,"is_moderated_tech":1,"is_selected":0,"creator_id":598,"moderator_adm_id":440,"moderator_tech_id":440,"adm_reason":null,"tech_reason":null,"created_at":"2025-01-31T10:55:19.000000Z","updated_at":"2025-02-07T15:12:07.000000Z"},{"id":6932,"model":"Agents","target_id":13651,"target_id_str":null,"field":"photo_sq","value":"lk_1758561498_86aed7eb5c39d8c6f17f3878b58140a8.png","is_current":0,"is_moderated_adm":1,"is_moderated_tech":1,"is_selected":0,"creator_id":598,"moderator_adm_id":440,"moderator_tech_id":440,"adm_reason":null,"tech_reason":null,"created_at":"2025-09-22T17:18:18.000000Z","updated_at":"2025-09-23T12:21:30.000000Z"}]},{"id":13651,"url":"yuliya-tsybulya","F":"\u0426\u044b\u0431\u0443\u043b\u044f","I":"\u042e\u043b\u0438\u044f","O":"\u0421\u0435\u0440\u0433\u0435\u0435\u0432\u043d\u0430","phone":"+7 (812) 740-70-40","email":"CybulyaYuS@itaka.ru","personal_phone":"89052772799","personal_email":"CybulyaYuS@itaka.ru","birthday":"1981-03-24","photo_sq":"\/img\/avatar\/lk_1758561498_86aed7eb5c39d8c6f17f3878b58140a8.png","photo_cir":null,"photo":null,"online":1,"text":"\u041f\u0440\u0438\u0432\u0435\u0442\u0441\u0442\u0432\u0443\u044e \u0412\u0430\u0441 \u043d\u0430 \u0441\u0432\u043e\u0435\u0439 \u0441\u0442\u0440\u0430\u043d\u0438\u0446\u0435!&nbsp;<div>\u0426\u044b\u0431\u0443\u043b\u044f&nbsp;\u042e\u043b\u0438\u044f \u0421\u0435\u0440\u0433\u0435\u0435\u0432\u043d\u0430, \u043f\u0440\u043e\u0444\u0435\u0441\u0441\u0438\u043e\u043d\u0430\u043b\u044c\u043d\u044b\u0439 \u043a\u043e\u043d\u0441\u0443\u043b\u044c\u0442\u0430\u043d\u0442 &nbsp;\u043f\u043e \u043d\u0435\u0434\u0432\u0438\u0436\u0438\u043c\u043e\u0441\u0442\u0438, \u0440\u0438\u044d\u043b\u0442\u043e\u0440 \u0432\u043e \u0432\u0442\u043e\u0440\u043e\u043c \u043f\u043e\u043a\u043e\u043b\u0435\u043d\u0438\u0438.&nbsp; \u0420\u0430\u0431\u043e\u0442\u0430\u044e \u043f\u043e \u0421\u0430\u043d\u043a\u0442-\u041f\u0435\u0442\u0435\u0440\u0431\u0443\u0440\u0433\u0443 \u0438 \u041b\u0435\u043d\u0438\u043d\u0433\u0440\u0430\u0434\u0441\u043a\u043e\u0439 \u043e\u0431\u043b\u0430\u0441\u0442\u0438, \u0432 \u0430\u0433\u0435\u043d\u0442\u0441\u0442\u0432\u0435 \u043d\u0435\u0434\u0432\u0438\u0436\u0438\u043c\u043e\u0441\u0442\u0438 \"\u0418\u0442\u0430\u043a\u0430\". \u0420\u0435\u0433\u0443\u043b\u044f\u0440\u043d\u043e \u043f\u0440\u043e\u0445\u043e\u0436\u0443 \u043f\u043e\u0432\u044b\u0448\u0435\u043d\u0438\u0435 \u043a\u0432\u0430\u043b\u0438\u0444\u0438\u043a\u0430\u0446\u0438\u0438 \u043f\u043e \u0432\u043e\u043f\u0440\u043e\u0441\u0430\u043c \u043f\u0440\u0430\u0432\u0430 \u0438 \u043d\u0430\u043b\u043e\u0433\u043e\u043e\u0431\u043b\u043e\u0436\u0435\u043d\u0438\u044f \u0432 \u0441\u0444\u0435\u0440\u0435 \u043d\u0435\u0434\u0432\u0438\u0436\u0438\u043c\u043e\u0441\u0442\u0438. \u0414\u0435\u0439\u0441\u0442\u0432\u0443\u044e\u0449\u0438\u0439 \u0410\u0442\u0442\u0435\u0441\u0442\u0430\u0442 \u0420\u043e\u0441\u0441\u0438\u0439\u0441\u043a\u043e\u0439 \u0433\u0438\u043b\u044c\u0434\u0438\u0438 \u0440\u0438\u044d\u043b\u0442\u043e\u0440\u043e\u0432 \u2116\u0410\u041d-10229.<\/div><div><br \/>\u0421 \u0447\u0435\u043c \u044f \u0440\u0430\u0431\u043e\u0442\u0430\u044e:<\/div><div><ul><li>\u0412\u0442\u043e\u0440\u0438\u0447\u043d\u043e\u0435 \u0436\u0438\u043b\u044c\u0435, \u0441\u0442\u0430\u0440\u044b\u0439 \u0444\u043e\u043d\u0434.<\/li><li>\u041f\u043e\u043a\u0443\u043f\u043a\u0430 \u0438 \u043f\u0440\u043e\u0434\u0430\u0436\u0430 \u043a\u0432\u0430\u0440\u0442\u0438\u0440, \u043a\u043e\u043c\u043d\u0430\u0442, \u0434\u043e\u043c\u043e\u0432, \u0437\u0435\u043c\u0435\u043b\u044c\u043d\u044b\u0445 \u0443\u0447\u0430\u0441\u0442\u043a\u043e\u0432.<\/li><li>\u0421\u043e\u043f\u0440\u043e\u0432\u043e\u0436\u0434\u0435\u043d\u0438\u0435 \u0441\u0434\u0435\u043b\u043e\u043a \u0441 \u0441\u0443\u0431\u0441\u0438\u0434\u0438\u044f\u043c\u0438, \u043c\u0430\u0442\u0435\u0440\u0438\u043d\u0441\u043a\u0438\u043c \u043a\u0430\u043f\u0438\u0442\u0430\u043b\u043e\u043c, \u043e\u0440\u0433\u0430\u043d\u0430\u043c\u0438 \u043e\u043f\u0435\u043a\u0438.<\/li><li>\u041f\u0440\u043e\u0434\u0430\u0436\u0430 \u043e\u0431\u044a\u0435\u043a\u0442\u043e\u0432 \u0441 \u0437\u0430\u043b\u043e\u0433\u043e\u0432\u044b\u043c \u043e\u0431\u0440\u0435\u043c\u0435\u043d\u0435\u043d\u0438\u0435\u043c, \u0440\u0430\u0441\u0441\u0435\u043b\u0435\u043d\u0438\u0435, \u043f\u0435\u0440\u0435\u0443\u0441\u0442\u0443\u043f\u043a\u0430 \u043f\u0440\u0430\u0432\u0430.<\/li><\/ul><\/div><div><br \/>\u0412 \u043c\u043e\u0435\u0439 \u0440\u0430\u0431\u043e\u0442\u0435 \u0432\u0430\u0436\u043d\u043e \u043e\u0442\u043d\u043e\u0448\u0435\u043d\u0438\u0435 \u043a \u043a\u043b\u0438\u0435\u043d\u0442\u0443, \u043a\u043e\u0442\u043e\u0440\u043e\u0433\u043e \u0432\u0435\u0434\u0443 \u0437\u0430 \u0440\u0443\u043a\u0443 \u0441 \u0441\u0430\u043c\u043e\u0433\u043e \u043d\u0430\u0447\u0430\u043b\u0430 \u0432\u0437\u0430\u0438\u043c\u043e\u0434\u0435\u0439\u0441\u0442\u0432\u0438\u044f \u0434\u043e \u0437\u0430\u0432\u0435\u0440\u0448\u0435\u043d\u0438\u044f \u0441\u0434\u0435\u043b\u043a\u0438.<\/div><div><br \/>\u041e\u0431\u0440\u0430\u0449\u0430\u0439\u0442\u0435\u0441\u044c, \u0431\u0443\u0434\u0443 \u0440\u0430\u0434\u0430 \u043f\u043e\u043c\u043e\u0447\u044c! <\/div>","oadm":0,"gender":0,"shows":1,"selfemployed":0,"individual":1,"in_state":0,"in_office":0,"site_post":"","is_fired":0,"direct_submission":0,"direct_submission_id":1,"mim":null,"change":1,"is_active":1,"noindex":0,"must_index":0,"jivo":1,"basic_office_id":"000000013","precinct":0,"slaves_notifications":0,"is_blocked":0,"overrides":{"vk":"https:\/\/vk.com\/julia.realestate","vk_uin":"julia.realestate","photo_sq":"lk_1758561498_86aed7eb5c39d8c6f17f3878b58140a8.png","photo_sq_uin":"lk_1758561498_86aed7eb5c39d8c6f17f3878b58140a8.png","about_agent":"<p><strong>\u0412\u0441\u0435\u0445 \u043f\u0440\u0438\u0432\u0435\u0442\u0441\u0442\u0432\u0443\u044e! \u0414\u0430\u0432\u0430\u0439\u0442\u0435\r\n\u0437\u043d\u0430\u043a\u043e\u043c\u0438\u0442\u044c\u0441\u044f:<\/strong>\r\n<\/p><p>\r\n\u0426\u044b\u0431\u0443\u043b\u044f \u042e\u043b\u0438\u044f \u0421\u0435\u0440\u0433\u0435\u0435\u0432\u043d\u0430, \u043f\u0440\u043e\u0444\u0435\u0441\u0441\u0438\u043e\u043d\u0430\u043b\u044c\u043d\u044b\u0439\r\n\u043a\u043e\u043d\u0441\u0443\u043b\u044c\u0442\u0430\u043d\u0442 \u043f\u043e \u043d\u0435\u0434\u0432\u0438\u0436\u0438\u043c\u043e\u0441\u0442\u0438, \u0440\u0438\u044d\u043b\u0442\u043e\u0440 \u0432\u043e \u0432\u0442\u043e\u0440\u043e\u043c \u043f\u043e\u043a\u043e\u043b\u0435\u043d\u0438\u0438.&nbsp; \u0420\u0430\u0431\u043e\u0442\u0430\u044e \u043f\u043e \u0421\u0430\u043d\u043a\u0442-\u041f\u0435\u0442\u0435\u0440\u0431\u0443\u0440\u0433\u0443 \u0438 \u041b\u0435\u043d\u0438\u043d\u0433\u0440\u0430\u0434\u0441\u043a\u043e\u0439\r\n\u043e\u0431\u043b\u0430\u0441\u0442\u0438, \u0432 \u0430\u0433\u0435\u043d\u0442\u0441\u0442\u0432\u0435 \u043d\u0435\u0434\u0432\u0438\u0436\u0438\u043c\u043e\u0441\u0442\u0438 \u00ab\u0418\u0422\u0410\u041a\u0410\u00bb. \u0420\u0435\u0433\u0443\u043b\u044f\u0440\u043d\u043e \u043f\u0440\u043e\u0445\u043e\u0436\u0443 \u043f\u043e\u0432\u044b\u0448\u0435\u043d\u0438\u0435\r\n\u043a\u0432\u0430\u043b\u0438\u0444\u0438\u043a\u0430\u0446\u0438\u0438 \u043f\u043e \u0432\u043e\u043f\u0440\u043e\u0441\u0430\u043c \u043f\u0440\u0430\u0432\u0430 \u0438 \u043d\u0430\u043b\u043e\u0433\u043e\u043e\u0431\u043b\u043e\u0436\u0435\u043d\u0438\u044f \u0432 \u0441\u0444\u0435\u0440\u0435 \u043d\u0435\u0434\u0432\u0438\u0436\u0438\u043c\u043e\u0441\u0442\u0438. <\/p><p>\r\n\u041f\u0440\u0438\u0448\u043b\u0430 \u0432 \u044d\u0442\u0443 \u043f\u0440\u043e\u0444\u0435\u0441\u0441\u0438\u044e \u043e\u0441\u043e\u0437\u043d\u0430\u043d\u043d\u043e. \u0423 \u043c\u0435\u043d\u044f \u0431\u044b\u043b \u0432\u044b\u0431\u043e\u0440: \u043f\u0440\u043e\u0434\u043e\u043b\u0436\u0438\u0442\u044c \u0443\u0441\u043f\u0435\u0448\u043d\u0443\u044e \u043a\u0430\u0440\u044c\u0435\u0440\u0443\r\n\u0432 \u043a\u0440\u0443\u043f\u043d\u043e\u0439 \u0441\u0442\u0430\u0431\u0438\u043b\u044c\u043d\u043e\u0439 \u043a\u043e\u043c\u043f\u0430\u043d\u0438\u0438 \u0441 \u0441\u043e\u0446\u0438\u0430\u043b\u044c\u043d\u044b\u043c\u0438 \u0433\u0430\u0440\u0430\u043d\u0442\u0438\u044f\u043c\u0438 \u0438 \u0432\u044b\u0441\u043e\u043a\u0438\u043c \u0434\u043e\u0445\u043e\u0434\u043e\u043c. \u041d\u043e\r\n\u0438\u043c\u0435\u043d\u043d\u043e \u0437\u0434\u0435\u0441\u044c \u043f\u0440\u0438\u0433\u043e\u0434\u0438\u043b\u0441\u044f \u0430\u0431\u0441\u043e\u043b\u044e\u0442\u043d\u043e \u0432\u0435\u0441\u044c \u043e\u043f\u044b\u0442&nbsp;, \u043a\u043e\u0442\u043e\u0440\u044b\u0439 \u044f \u043f\u043e\u043b\u0443\u0447\u0430\u043b\u0430 \u0440\u0430\u043d\u0435\u0435, \u0440\u0430\u0431\u043e\u0442\u0430\u044f \u0441 \u044e\u0440\u0438\u0441\u0442\u0430\u043c\u0438 \u0432\r\n\u043a\u0440\u0443\u043f\u043d\u043e\u0439 \u044e\u0440\u0438\u0434\u0438\u0447\u0435\u0441\u043a\u043e\u0439 \u0444\u0438\u0440\u043c\u0435, \u0441 \u0444\u0438\u043d\u0430\u043d\u0441\u043e\u0432\u044b\u043c\u0438 \u0430\u0443\u0434\u0438\u0442\u043e\u0440\u0430\u043c\u0438, \u043d\u0430\u043b\u043e\u0433\u043e\u0432\u044b\u043c\u0438 \u043a\u043e\u043d\u0441\u0443\u043b\u044c\u0442\u0430\u043d\u0442\u0430\u043c\u0438,\r\n\u0430\u043d\u0430\u043b\u0438\u0442\u0438\u043a\u0430\u043c\u0438, \u043f\u0440\u043e\u0432\u043e\u0434\u044f \u0442\u0440\u0435\u043d\u0438\u043d\u0433\u0438, \u043e\u0440\u0433\u0430\u043d\u0438\u0437\u043e\u0432\u044b\u0432\u0430\u044f \u043c\u0430\u0440\u043a\u0435\u0442\u0438\u043d\u0433\u043e\u0432\u044b\u0435 \u043c\u0435\u0440\u043e\u043f\u0440\u0438\u044f\u0442\u0438\u044f, \u0440\u0430\u0431\u043e\u0442\u0430\u044f\r\n\u043f\u0435\u0440\u0435\u0432\u043e\u0434\u0447\u0438\u043a\u043e\u043c-\u0441\u0438\u043d\u0445\u0440\u043e\u043d\u0438\u0441\u0442\u043e\u043c \u043d\u0430 \u043c\u0435\u0436\u0434\u0443\u043d\u0430\u0440\u043e\u0434\u043d\u044b\u0445 \u043a\u043e\u043d\u0444\u0435\u0440\u0435\u043d\u0446\u0438\u044f\u0445 \u0438\r\n\u0441\u0435\u043a\u0440\u0435\u0442\u0430\u0440\u0435\u043c-\u0434\u0435\u043b\u043e\u043f\u0440\u043e\u0438\u0437\u0432\u043e\u0434\u0438\u0442\u0435\u043b\u0435\u043c.\r\n\r\n&nbsp;<\/p><p>\u0411\u043e\u043b\u0435\u0435 10 \u043b\u0435\u0442 \u044f \u043f\u043e\u0434\u0431\u0438\u0440\u0430\u043b\u0430 \u043b\u044e\u0434\u0435\u0439 \u0434\u043b\u044f \u043a\u0440\u0443\u043f\u043d\u044b\u0445\r\n\u043a\u043e\u043c\u043f\u0430\u043d\u0438\u0439, \u0430 \u0442\u0435\u043f\u0435\u0440\u044c \u0442\u0430\u043a\u0436\u0435 \u0442\u0449\u0430\u0442\u0435\u043b\u044c\u043d\u043e \u0438 \u0432\u043d\u0438\u043c\u0430\u0442\u0435\u043b\u044c\u043d\u043e \u043f\u043e\u0434\u0431\u0438\u0440\u0430\u044e \u041d\u041e\u0412\u041e\u0413\u041e \u0425\u041e\u0417\u042f\u0418\u041d\u0410 \u0434\u043b\u044f\r\n\u043a\u0432\u0430\u0440\u0442\u0438\u0440\u044b \u0438 \u041d\u041e\u0412\u042b\u0419 \u0414\u041e\u041c \u0434\u043b\u044f \u0441\u0432\u043e\u0435\u0433\u043e \u043a\u043b\u0438\u0435\u043d\u0442\u0430.\r\n<\/p><p>\u0412 \u043f\u0440\u0438\u043e\u0440\u0438\u0442\u0435\u0442\u0435 - \u043e\u0442\u043d\u043e\u0448\u0435\u043d\u0438\u0435 \u043a \u043a\u043b\u0438\u0435\u043d\u0442\u0443, \u043a\u043e\u0442\u043e\u0440\u043e\u0433\u043e <strong>\"\u0432\u0435\u0434\u0443 \u0437\u0430 \u0440\u0443\u043a\u0443\"<\/strong> \u0441 \u0441\u0430\u043c\u043e\u0433\u043e\r\n\u043d\u0430\u0447\u0430\u043b\u0430 \u0432\u0437\u0430\u0438\u043c\u043e\u0434\u0435\u0439\u0441\u0442\u0432\u0438\u044f \u0434\u043e \u0437\u0430\u0432\u0435\u0440\u0448\u0435\u043d\u0438\u044f \u0441\u0434\u0435\u043b\u043a\u0438.&nbsp;\r\n<\/p><p>\r\n\u041e\u0431\u0440\u0430\u0449\u0430\u0439\u0442\u0435\u0441\u044c, \u0431\u0443\u0434\u0443 \u0440\u0430\u0434\u0430 \u043f\u043e\u043c\u043e\u0447\u044c!<\/p><p>\r\n\u0421 \u0443\u0432\u0430\u0436\u0435\u043d\u0438\u0435\u043c,<\/p><p>\u0426\u044b\u0431\u0443\u043b\u044f \u042e\u043b\u0438\u044f<\/p><hr><p><br><\/p><p>&nbsp;&nbsp;&nbsp;&nbsp;&nbsp;&nbsp;&nbsp;&nbsp;&nbsp;&nbsp;&nbsp;&nbsp;&nbsp;&nbsp;&nbsp;&nbsp;&nbsp;&nbsp;&nbsp;&nbsp;&nbsp;&nbsp;&nbsp;&nbsp;&nbsp;&nbsp;&nbsp;&nbsp;&nbsp;&nbsp;&nbsp;&nbsp;&nbsp;&nbsp;&nbsp;&nbsp;&nbsp;&nbsp;&nbsp;&nbsp;&nbsp;&nbsp;&nbsp;&nbsp;&nbsp;&nbsp;&nbsp;&nbsp;&nbsp;&nbsp;&nbsp;&nbsp;&nbsp;&nbsp;&nbsp;&nbsp;&nbsp;\r\n <\/p><p><br><\/p>","about_agent_uin":"p>"},"wp":false,"phone_f":"78127407040","office":{"id":"000000013","url":"ul-malaya-balkanskaya-d-26","name":"\u0443\u043b. \u041c\u0430\u043b\u0430\u044f \u0411\u0430\u043b\u043a\u0430\u043d\u0441\u043a\u0430\u044f, \u0434. 26","adress":"\u0433. \u0421\u0430\u043d\u043a\u0442-\u041f\u0435\u0442\u0435\u0440\u0431\u0443\u0440\u0433, \u0424\u0440\u0443\u043d\u0437\u0435\u043d\u0441\u043a\u0438\u0439 \u0440-\u043d, \u0443\u043b. \u041c\u0430\u043b\u0430\u044f \u0411\u0430\u043b\u043a\u0430\u043d\u0441\u043a\u0430\u044f, \u0434. 26","coords":"59.829442,30.386079","pano_coords":"59.8298972865986,30.384474933","pano_direction":"44.60707084120078,1.1631715886855591","pano_span":"58.033400647822184,30.320036290824245","email":"kup4ino@itaka.ru","phone":"88123477731","metro_stations_id":9,"region_id":78,"district_id":null,"coords_metro":null,"coords_top":null,"coords_left":null,"spbzn_coords_top":null,"spbzn_coords_left":null,"change":1,"td_id":7,"order":70,"deleted_at":null,"SuccessOverrides":[{"id":6887,"model":"Offices","target_id":0,"target_id_str":"000000013","field":"order","value":"129,5017,4141,94,255,11524,9127,5779,570,7832,10411,8923,10124,14723,12440,10827,11255,13615,14933,13616,13397,11863,702,10547,2879,3805,10032,11151,663,15756,10131,13269,284,12585,13651,2234","is_current":0,"is_moderated_adm":1,"is_moderated_tech":1,"is_selected":0,"creator_id":440,"moderator_adm_id":440,"moderator_tech_id":440,"adm_reason":null,"tech_reason":null,"created_at":"2025-09-10T08:59:44.000000Z","updated_at":"2025-09-10T08:59:44.000000Z"},{"id":6886,"model":"Offices","target_id":0,"target_id_str":"000000013","field":"add_agent_id","value":"9557","is_current":0,"is_moderated_adm":1,"is_moderated_tech":1,"is_selected":0,"creator_id":440,"moderator_adm_id":440,"moderator_tech_id":440,"adm_reason":null,"tech_reason":null,"created_at":"2025-09-10T08:59:44.000000Z","updated_at":"2025-09-10T08:59:44.000000Z"},{"id":6885,"model":"Offices","target_id":0,"target_id_str":"000000013","field":"schedule","value":"\u041f\u041d-\u041f\u0422: 10.00-20.00<br \/>\r\n\u0421\u0411-\u0412\u0421: 11.00-18.00","is_current":0,"is_moderated_adm":1,"is_moderated_tech":1,"is_selected":0,"creator_id":440,"moderator_adm_id":440,"moderator_tech_id":440,"adm_reason":null,"tech_reason":null,"created_at":"2025-09-10T08:59:44.000000Z","updated_at":"2025-09-10T08:59:44.000000Z"}],"Hours":null},"Mimfio":false,"success_overrides":[{"id":1870,"model":"Agents","target_id":13651,"target_id_str":null,"field":"vk","value":"https:\/\/vk.com\/julia.realestate","is_current":0,"is_moderated_adm":1,"is_moderated_tech":1,"is_selected":0,"creator_id":598,"moderator_adm_id":440,"moderator_tech_id":440,"adm_reason":null,"tech_reason":null,"created_at":"2021-12-01T17:56:32.000000Z","updated_at":"2021-12-02T16:19:33.000000Z"},{"id":2103,"model":"Agents","target_id":13651,"target_id_str":null,"field":"photo_sq","value":"lk_1639472549_6b78df1b1d025dd4bcb5d671ac232712.png","is_current":0,"is_moderated_adm":1,"is_moderated_tech":1,"is_selected":0,"creator_id":598,"moderator_adm_id":440,"moderator_tech_id":440,"adm_reason":null,"tech_reason":null,"created_at":"2021-12-14T12:02:29.000000Z","updated_at":"2023-10-05T14:56:04.000000Z"},{"id":2232,"model":"Agents","target_id":13651,"target_id_str":null,"field":"about_agent","value":"<p><strong>\u0412\u0441\u0435\u0445 \u043f\u0440\u0438\u0432\u0435\u0442\u0441\u0442\u0432\u0443\u044e! \u0414\u0430\u0432\u0430\u0439\u0442\u0435\r\n\u0437\u043d\u0430\u043a\u043e\u043c\u0438\u0442\u044c\u0441\u044f:<\/strong>\r\n<\/p><p>\r\n\u0426\u044b\u0431\u0443\u043b\u044f \u042e\u043b\u0438\u044f \u0421\u0435\u0440\u0433\u0435\u0435\u0432\u043d\u0430, \u043f\u0440\u043e\u0444\u0435\u0441\u0441\u0438\u043e\u043d\u0430\u043b\u044c\u043d\u044b\u0439\r\n\u043a\u043e\u043d\u0441\u0443\u043b\u044c\u0442\u0430\u043d\u0442 \u043f\u043e \u043d\u0435\u0434\u0432\u0438\u0436\u0438\u043c\u043e\u0441\u0442\u0438, \u0440\u0438\u044d\u043b\u0442\u043e\u0440 \u0432\u043e \u0432\u0442\u043e\u0440\u043e\u043c \u043f\u043e\u043a\u043e\u043b\u0435\u043d\u0438\u0438.&nbsp; \u0420\u0430\u0431\u043e\u0442\u0430\u044e \u043f\u043e \u0421\u0430\u043d\u043a\u0442-\u041f\u0435\u0442\u0435\u0440\u0431\u0443\u0440\u0433\u0443 \u0438 \u041b\u0435\u043d\u0438\u043d\u0433\u0440\u0430\u0434\u0441\u043a\u043e\u0439\r\n\u043e\u0431\u043b\u0430\u0441\u0442\u0438, \u0432 \u0430\u0433\u0435\u043d\u0442\u0441\u0442\u0432\u0435 \u043d\u0435\u0434\u0432\u0438\u0436\u0438\u043c\u043e\u0441\u0442\u0438 \u00ab\u0418\u0422\u0410\u041a\u0410\u00bb. \u0420\u0435\u0433\u0443\u043b\u044f\u0440\u043d\u043e \u043f\u0440\u043e\u0445\u043e\u0436\u0443 \u043f\u043e\u0432\u044b\u0448\u0435\u043d\u0438\u0435\r\n\u043a\u0432\u0430\u043b\u0438\u0444\u0438\u043a\u0430\u0446\u0438\u0438 \u043f\u043e \u0432\u043e\u043f\u0440\u043e\u0441\u0430\u043c \u043f\u0440\u0430\u0432\u0430 \u0438 \u043d\u0430\u043b\u043e\u0433\u043e\u043e\u0431\u043b\u043e\u0436\u0435\u043d\u0438\u044f \u0432 \u0441\u0444\u0435\u0440\u0435 \u043d\u0435\u0434\u0432\u0438\u0436\u0438\u043c\u043e\u0441\u0442\u0438. <\/p><p>\r\n\u041f\u0440\u0438\u0448\u043b\u0430 \u0432 \u044d\u0442\u0443 \u043f\u0440\u043e\u0444\u0435\u0441\u0441\u0438\u044e \u043e\u0441\u043e\u0437\u043d\u0430\u043d\u043d\u043e. \u0423 \u043c\u0435\u043d\u044f \u0431\u044b\u043b \u0432\u044b\u0431\u043e\u0440: \u043f\u0440\u043e\u0434\u043e\u043b\u0436\u0438\u0442\u044c \u0443\u0441\u043f\u0435\u0448\u043d\u0443\u044e \u043a\u0430\u0440\u044c\u0435\u0440\u0443\r\n\u0432 \u043a\u0440\u0443\u043f\u043d\u043e\u0439 \u0441\u0442\u0430\u0431\u0438\u043b\u044c\u043d\u043e\u0439 \u043a\u043e\u043c\u043f\u0430\u043d\u0438\u0438 \u0441 \u0441\u043e\u0446\u0438\u0430\u043b\u044c\u043d\u044b\u043c\u0438 \u0433\u0430\u0440\u0430\u043d\u0442\u0438\u044f\u043c\u0438 \u0438 \u0432\u044b\u0441\u043e\u043a\u0438\u043c \u0434\u043e\u0445\u043e\u0434\u043e\u043c. \u041d\u043e\r\n\u0438\u043c\u0435\u043d\u043d\u043e \u0437\u0434\u0435\u0441\u044c \u043f\u0440\u0438\u0433\u043e\u0434\u0438\u043b\u0441\u044f \u0430\u0431\u0441\u043e\u043b\u044e\u0442\u043d\u043e \u0432\u0435\u0441\u044c \u043e\u043f\u044b\u0442&nbsp;, \u043a\u043e\u0442\u043e\u0440\u044b\u0439 \u044f \u043f\u043e\u043b\u0443\u0447\u0430\u043b\u0430 \u0440\u0430\u043d\u0435\u0435, \u0440\u0430\u0431\u043e\u0442\u0430\u044f \u0441 \u044e\u0440\u0438\u0441\u0442\u0430\u043c\u0438 \u0432\r\n\u043a\u0440\u0443\u043f\u043d\u043e\u0439 \u044e\u0440\u0438\u0434\u0438\u0447\u0435\u0441\u043a\u043e\u0439 \u0444\u0438\u0440\u043c\u0435, \u0441 \u0444\u0438\u043d\u0430\u043d\u0441\u043e\u0432\u044b\u043c\u0438 \u0430\u0443\u0434\u0438\u0442\u043e\u0440\u0430\u043c\u0438, \u043d\u0430\u043b\u043e\u0433\u043e\u0432\u044b\u043c\u0438 \u043a\u043e\u043d\u0441\u0443\u043b\u044c\u0442\u0430\u043d\u0442\u0430\u043c\u0438,\r\n\u0430\u043d\u0430\u043b\u0438\u0442\u0438\u043a\u0430\u043c\u0438, \u043f\u0440\u043e\u0432\u043e\u0434\u044f \u0442\u0440\u0435\u043d\u0438\u043d\u0433\u0438, \u043e\u0440\u0433\u0430\u043d\u0438\u0437\u043e\u0432\u044b\u0432\u0430\u044f \u043c\u0430\u0440\u043a\u0435\u0442\u0438\u043d\u0433\u043e\u0432\u044b\u0435 \u043c\u0435\u0440\u043e\u043f\u0440\u0438\u044f\u0442\u0438\u044f, \u0440\u0430\u0431\u043e\u0442\u0430\u044f\r\n\u043f\u0435\u0440\u0435\u0432\u043e\u0434\u0447\u0438\u043a\u043e\u043c-\u0441\u0438\u043d\u0445\u0440\u043e\u043d\u0438\u0441\u0442\u043e\u043c \u043d\u0430 \u043c\u0435\u0436\u0434\u0443\u043d\u0430\u0440\u043e\u0434\u043d\u044b\u0445 \u043a\u043e\u043d\u0444\u0435\u0440\u0435\u043d\u0446\u0438\u044f\u0445 \u0438\r\n\u0441\u0435\u043a\u0440\u0435\u0442\u0430\u0440\u0435\u043c-\u0434\u0435\u043b\u043e\u043f\u0440\u043e\u0438\u0437\u0432\u043e\u0434\u0438\u0442\u0435\u043b\u0435\u043c.\r\n\r\n&nbsp;<\/p><p>\u0411\u043e\u043b\u0435\u0435 10 \u043b\u0435\u0442 \u044f \u043f\u043e\u0434\u0431\u0438\u0440\u0430\u043b\u0430 \u043b\u044e\u0434\u0435\u0439 \u0434\u043b\u044f \u043a\u0440\u0443\u043f\u043d\u044b\u0445\r\n\u043a\u043e\u043c\u043f\u0430\u043d\u0438\u0439, \u0430 \u0442\u0435\u043f\u0435\u0440\u044c \u0442\u0430\u043a\u0436\u0435 \u0442\u0449\u0430\u0442\u0435\u043b\u044c\u043d\u043e \u0438 \u0432\u043d\u0438\u043c\u0430\u0442\u0435\u043b\u044c\u043d\u043e \u043f\u043e\u0434\u0431\u0438\u0440\u0430\u044e \u041d\u041e\u0412\u041e\u0413\u041e \u0425\u041e\u0417\u042f\u0418\u041d\u0410 \u0434\u043b\u044f\r\n\u043a\u0432\u0430\u0440\u0442\u0438\u0440\u044b \u0438 \u041d\u041e\u0412\u042b\u0419 \u0414\u041e\u041c \u0434\u043b\u044f \u0441\u0432\u043e\u0435\u0433\u043e \u043a\u043b\u0438\u0435\u043d\u0442\u0430.\r\n<\/p><p>\u0412 \u043f\u0440\u0438\u043e\u0440\u0438\u0442\u0435\u0442\u0435 - \u043e\u0442\u043d\u043e\u0448\u0435\u043d\u0438\u0435 \u043a \u043a\u043b\u0438\u0435\u043d\u0442\u0443, \u043a\u043e\u0442\u043e\u0440\u043e\u0433\u043e <strong>\"\u0432\u0435\u0434\u0443 \u0437\u0430 \u0440\u0443\u043a\u0443\"<\/strong> \u0441 \u0441\u0430\u043c\u043e\u0433\u043e\r\n\u043d\u0430\u0447\u0430\u043b\u0430 \u0432\u0437\u0430\u0438\u043c\u043e\u0434\u0435\u0439\u0441\u0442\u0432\u0438\u044f \u0434\u043e \u0437\u0430\u0432\u0435\u0440\u0448\u0435\u043d\u0438\u044f \u0441\u0434\u0435\u043b\u043a\u0438.&nbsp;\r\n<\/p><p>\r\n\u041e\u0431\u0440\u0430\u0449\u0430\u0439\u0442\u0435\u0441\u044c, \u0431\u0443\u0434\u0443 \u0440\u0430\u0434\u0430 \u043f\u043e\u043c\u043e\u0447\u044c!<\/p><p>\r\n\u0421 \u0443\u0432\u0430\u0436\u0435\u043d\u0438\u0435\u043c,<\/p><p>\u0426\u044b\u0431\u0443\u043b\u044f \u042e\u043b\u0438\u044f<\/p><hr><p><br><\/p><p>&nbsp;&nbsp;&nbsp;&nbsp;&nbsp;&nbsp;&nbsp;&nbsp;&nbsp;&nbsp;&nbsp;&nbsp;&nbsp;&nbsp;&nbsp;&nbsp;&nbsp;&nbsp;&nbsp;&nbsp;&nbsp;&nbsp;&nbsp;&nbsp;&nbsp;&nbsp;&nbsp;&nbsp;&nbsp;&nbsp;&nbsp;&nbsp;&nbsp;&nbsp;&nbsp;&nbsp;&nbsp;&nbsp;&nbsp;&nbsp;&nbsp;&nbsp;&nbsp;&nbsp;&nbsp;&nbsp;&nbsp;&nbsp;&nbsp;&nbsp;&nbsp;&nbsp;&nbsp;&nbsp;&nbsp;&nbsp;&nbsp;\r\n <\/p><p><br><\/p>","is_current":0,"is_moderated_adm":1,"is_moderated_tech":1,"is_selected":0,"creator_id":598,"moderator_adm_id":440,"moderator_tech_id":440,"adm_reason":null,"tech_reason":null,"created_at":"2021-12-20T21:13:20.000000Z","updated_at":"2021-12-21T10:19:53.000000Z"},{"id":4841,"model":"Agents","target_id":13651,"target_id_str":null,"field":"photo_sq","value":"lk_1696506959_321073861443378db88083d9a0ae8691.png","is_current":0,"is_moderated_adm":1,"is_moderated_tech":1,"is_selected":0,"creator_id":440,"moderator_adm_id":440,"moderator_tech_id":440,"adm_reason":null,"tech_reason":null,"created_at":"2023-10-05T14:55:59.000000Z","updated_at":"2023-10-05T14:56:10.000000Z"},{"id":4980,"model":"Agents","target_id":13651,"target_id_str":null,"field":"photo_sq","value":"lk_1698265331_f46f528521f4a6b3187bb48f17925f28.png","is_current":0,"is_moderated_adm":1,"is_moderated_tech":1,"is_selected":0,"creator_id":598,"moderator_adm_id":440,"moderator_tech_id":440,"adm_reason":null,"tech_reason":null,"created_at":"2023-10-25T23:22:11.000000Z","updated_at":"2023-10-26T09:47:11.000000Z"},{"id":6428,"model":"Agents","target_id":13651,"target_id_str":null,"field":"photo_sq","value":"lk_1738310119_63ddebba878e1a16fbc0444879e726fe.png","is_current":0,"is_moderated_adm":1,"is_moderated_tech":1,"is_selected":0,"creator_id":598,"moderator_adm_id":440,"moderator_tech_id":440,"adm_reason":null,"tech_reason":null,"created_at":"2025-01-31T10:55:19.000000Z","updated_at":"2025-02-07T15:12:07.000000Z"},{"id":6932,"model":"Agents","target_id":13651,"target_id_str":null,"field":"photo_sq","value":"lk_1758561498_86aed7eb5c39d8c6f17f3878b58140a8.png","is_current":0,"is_moderated_adm":1,"is_moderated_tech":1,"is_selected":0,"creator_id":598,"moderator_adm_id":440,"moderator_tech_id":440,"adm_reason":null,"tech_reason":null,"created_at":"2025-09-22T17:18:18.000000Z","updated_at":"2025-09-23T12:21:30.000000Z"}]}],"metro":{"id":48,"name":"\u041f\u0440\u043e\u0441\u043f\u0435\u043a\u0442 \u0412\u0435\u0442\u0435\u0440\u0430\u043d\u043e\u0432","chpuName":"prospekt-veteranov","top":"666","left":"140","metro_lines_id":6,"intersection":null,"r_top":"560","r_side":"421","r_class":"right","r_top_sub":null,"r_side_sub":null,"r_opt_class":null,"yaCoord0":null,"yaCoord1":null,"created_at":null,"updated_at":null,"metro_color":"red"},"images":[{"id":1290200,"apartment_number":"1-92289","photo":"media.itaka.ru\/homeinspb\/images\/objects\/big_7846e5c6-d9aa-f011-91e0-0050568db126.jpg","priority":1},{"id":1301188,"apartment_number":"1-92289","photo":"media.itaka.ru\/homeinspb\/images\/objects\/big_c4ecaa89-c8ca-f011-aa6e-0050568db126.jpg","priority":2},{"id":1290202,"apartment_number":"1-92289","photo":"media.itaka.ru\/homeinspb\/images\/objects\/big_97d22036-d9aa-f011-91e0-0050568db126.jpg","priority":3},{"id":1290199,"apartment_number":"1-92289","photo":"media.itaka.ru\/homeinspb\/images\/objects\/big_4cd12036-d9aa-f011-91e0-0050568db126.jpg","priority":4},{"id":1290204,"apartment_number":"1-92289","photo":"media.itaka.ru\/homeinspb\/images\/objects\/big_7a82ef2f-d9aa-f011-91e0-0050568db126.jpg","priority":5},{"id":1290205,"apartment_number":"1-92289","photo":"media.itaka.ru\/homeinspb\/images\/objects\/big_3d83ef2f-d9aa-f011-91e0-0050568db126.jpg","priority":8},{"id":1290206,"apartment_number":"1-92289","photo":"media.itaka.ru\/homeinspb\/images\/objects\/big_d5d82036-d9aa-f011-91e0-0050568db126.jpg","priority":9},{"id":1290207,"apartment_number":"1-92289","photo":"media.itaka.ru\/homeinspb\/images\/objects\/big_8b84ef2f-d9aa-f011-91e0-0050568db126.jpg","priority":10},{"id":1290208,"apartment_number":"1-92289","photo":"media.itaka.ru\/homeinspb\/images\/objects\/big_1481ef2f-d9aa-f011-91e0-0050568db126.jpg","priority":11},{"id":1290209,"apartment_number":"1-92289","photo":"media.itaka.ru\/homeinspb\/images\/objects\/big_c5c92036-d9aa-f011-91e0-0050568db126.jpg","priority":12},{"id":1290210,"apartment_number":"1-92289","photo":"media.itaka.ru\/homeinspb\/images\/objects\/big_8184ef2f-d9aa-f011-91e0-0050568db126.jpg","priority":13},{"id":1290212,"apartment_number":"1-92289","photo":"media.itaka.ru\/homeinspb\/images\/objects\/big_8784ef2f-d9aa-f011-91e0-0050568db126.jpg","priority":15},{"id":1290213,"apartment_number":"1-92289","photo":"media.itaka.ru\/homeinspb\/images\/objects\/big_ef80ef2f-d9aa-f011-91e0-0050568db126.jpg","priority":16},{"id":1290215,"apartment_number":"1-92289","photo":"media.itaka.ru\/homeinspb\/images\/objects\/big_b5ec652b-d9aa-f011-91e0-0050568db126.jpg","priority":18},{"id":1290216,"apartment_number":"1-92289","photo":"media.itaka.ru\/homeinspb\/images\/objects\/big_cdea652b-d9aa-f011-91e0-0050568db126.jpg","priority":19},{"id":1290217,"apartment_number":"1-92289","photo":"media.itaka.ru\/homeinspb\/images\/objects\/big_d7ec652b-d9aa-f011-91e0-0050568db126.jpg","priority":20},{"id":1290218,"apartment_number":"1-92289","photo":"media.itaka.ru\/homeinspb\/images\/objects\/big_76e3652b-d9aa-f011-91e0-0050568db126.jpg","priority":21},{"id":1290219,"apartment_number":"1-92289","photo":"media.itaka.ru\/homeinspb\/images\/objects\/big_08ea652b-d9aa-f011-91e0-0050568db126.jpg","priority":22},{"id":1290220,"apartment_number":"1-92289","photo":"media.itaka.ru\/homeinspb\/images\/objects\/big_87d36d2e-d9aa-f011-91e0-0050568db126.jpg","priority":23},{"id":1290221,"apartment_number":"1-92289","photo":"media.itaka.ru\/homeinspb\/images\/objects\/big_5ee8652b-d9aa-f011-91e0-0050568db126.jpg","priority":24},{"id":1290877,"apartment_number":"1-92289","photo":"media.itaka.ru\/homeinspb\/images\/objects\/big_592f8bbd-1cac-f011-91e0-0050568db126.jpg","priority":25},{"id":1290223,"apartment_number":"1-92289","photo":"media.itaka.ru\/homeinspb\/images\/objects\/big_d3d36d2e-d9aa-f011-91e0-0050568db126.jpg","priority":26},{"id":1290224,"apartment_number":"1-92289","photo":"media.itaka.ru\/homeinspb\/images\/objects\/big_2aed652b-d9aa-f011-91e0-0050568db126.jpg","priority":27},{"id":1290225,"apartment_number":"1-92289","photo":"media.itaka.ru\/homeinspb\/images\/objects\/big_83d66d2e-d9aa-f011-91e0-0050568db126.jpg","priority":28},{"id":1300945,"apartment_number":"1-92289","photo":"media.itaka.ru\/homeinspb\/images\/objects\/big_4e3f50be-e9c9-f011-aa6e-0050568db126.jpg","priority":29},{"id":1300940,"apartment_number":"1-92289","photo":"media.itaka.ru\/homeinspb\/images\/objects\/big_da4103bb-e9c9-f011-aa6e-0050568db126.jpg","priority":30},{"id":1300946,"apartment_number":"1-92289","photo":"media.itaka.ru\/homeinspb\/images\/objects\/big_554650be-e9c9-f011-aa6e-0050568db126.jpg","priority":31},{"id":1300947,"apartment_number":"1-92289","photo":"media.itaka.ru\/homeinspb\/images\/objects\/big_984a50be-e9c9-f011-aa6e-0050568db126.jpg","priority":32},{"id":1300941,"apartment_number":"1-92289","photo":"media.itaka.ru\/homeinspb\/images\/objects\/big_dc3f03bb-e9c9-f011-aa6e-0050568db126.jpg","priority":33},{"id":1300942,"apartment_number":"1-92289","photo":"media.itaka.ru\/homeinspb\/images\/objects\/big_a24303bb-e9c9-f011-aa6e-0050568db126.jpg","priority":34},{"id":1290231,"apartment_number":"1-92289","photo":"media.itaka.ru\/homeinspb\/images\/objects\/big_fa80ef2f-d9aa-f011-91e0-0050568db126.jpg","priority":35},{"id":1300943,"apartment_number":"1-92289","photo":"media.itaka.ru\/homeinspb\/images\/objects\/big_1f3350be-e9c9-f011-aa6e-0050568db126.jpg","priority":36},{"id":1300944,"apartment_number":"1-92289","photo":"media.itaka.ru\/homeinspb\/images\/objects\/big_fe3950be-e9c9-f011-aa6e-0050568db126.jpg","priority":37},{"id":1290232,"apartment_number":"1-92289","photo":"media.itaka.ru\/homeinspb\/images\/objects\/big_ec80ef2f-d9aa-f011-91e0-0050568db126.jpg","priority":38},{"id":1290233,"apartment_number":"1-92289","photo":"media.itaka.ru\/homeinspb\/images\/objects\/big_eb80ef2f-d9aa-f011-91e0-0050568db126.jpg","priority":39}]}

Цыбуля Юлия

13651 +7 (812) 740-70-40
13651

13651


1-комнатная квартира 43 м², этаж 3/7

Старая деревня

г Санкт-Петербург, пр-кт Приморский, д. 46, стр. 1

Очень функциональная и просторная квартира в жилом комплексе на первой береговой линии Малой Невки со своей набережной! Один из самых красивых и комфортных жилых комплексов Приморского района Санкт-Петербурга — ЖК «STOCKHOLM». Интересная реализация шведского проекта 2018 года. Камерный дом, семиэтажный, с небольшим количеством квартир, закрытой охраняемой территорией, огромной площадью остекления, подземным паркингом, видами на Елагин остров и благоустроенной набережной — настоящий оазис в городской суете! Нет никакой коммерции, но есть своя поликлиника. В каждой парадной есть свои колясочные, зоны хранения для велосипедов, большие стеклянные лифты, выход во внутренний благоустроенный двор с игровыми зонами и местами для расслабленного отдыха. На этаже всего четыре квартиры. Продуманная полноценная однокомнатная квартира с шикарными бельгийскими увеличенными алюминиевыми окнами оливкового цвета, высокими потолками - 3 метра, просторной гардеробной и санузлом, великолепной лоджией-террасой, где вы можете видеть красивые рассветы и наслаждаться водной гладью. Произведен качественный ремонт и полное оснащение всем необходимым для комфортного проживания. Квартира очень уютная, теплая, ухоженная. Сразу обращает на себя внимание — светлые окрашенные стены, красивая паркетная доска на полу, каменные подоконники и столешница, полностью оснащенная встроенная кухня и многое другое. Приходите и сами все увидите! Квартирой владеет один собственник более 5 лет, без каких-либо ограничений!

23 300 000 ₽
541 860 ₽/м²
Объект № 1-92598
Специалист по этому объекту:
{"id":"1-92598","object_type":1,"agents_id":5017,"rooms_saled":1,"rooms_total":1,"regions_id":78,"districts_id":"16","station_metro_id":50,"station_rallway":null,"address":"\u0433 \u0421\u0430\u043d\u043a\u0442-\u041f\u0435\u0442\u0435\u0440\u0431\u0443\u0440\u0433, \u043f\u0440-\u043a\u0442 \u041f\u0440\u0438\u043c\u043e\u0440\u0441\u043a\u0438\u0439, \u0434. 46, \u0441\u0442\u0440. 1","locality":"\u0433. \u0421\u0430\u043d\u043a\u0442-\u041f\u0435\u0442\u0435\u0440\u0431\u0443\u0440\u0433","price":"23 300 000","price_mkv":"541 860","floor":3,"floors":7,"is_first":0,"is_last":0,"floor_height":3,"space_habitable":17.5,"space_total":43,"space_rooms":"17,5","space_kitchen":11.8,"type_of_building_id":13,"is_phone":0,"wc":"\u0441\u043e\u0432\u043c\u0435\u0449\u0435\u043d.","is_balcon":1,"is_lift":1,"hotwater":"\u0412\u043e\u0434\u043e\u043f\u0440\u043e\u0432\u043e\u0434","is_ipoteka":1,"is_exclusive":1,"is_unique":0,"is_fake":0,"is_counter":0,"is_cession":0,"build_year":2018,"comments":"\u041e\u0447\u0435\u043d\u044c \u0444\u0443\u043d\u043a\u0446\u0438\u043e\u043d\u0430\u043b\u044c\u043d\u0430\u044f \u0438 \u043f\u0440\u043e\u0441\u0442\u043e\u0440\u043d\u0430\u044f \u043a\u0432\u0430\u0440\u0442\u0438\u0440\u0430 \u0432 \u0436\u0438\u043b\u043e\u043c \u043a\u043e\u043c\u043f\u043b\u0435\u043a\u0441\u0435 \u043d\u0430 \u043f\u0435\u0440\u0432\u043e\u0439 \u0431\u0435\u0440\u0435\u0433\u043e\u0432\u043e\u0439 \u043b\u0438\u043d\u0438\u0438 \u041c\u0430\u043b\u043e\u0439 \u041d\u0435\u0432\u043a\u0438 \u0441\u043e \u0441\u0432\u043e\u0435\u0439 \u043d\u0430\u0431\u0435\u0440\u0435\u0436\u043d\u043e\u0439! \u041e\u0434\u0438\u043d \u0438\u0437 \u0441\u0430\u043c\u044b\u0445 \u043a\u0440\u0430\u0441\u0438\u0432\u044b\u0445 \u0438 \u043a\u043e\u043c\u0444\u043e\u0440\u0442\u043d\u044b\u0445 \u0436\u0438\u043b\u044b\u0445 \u043a\u043e\u043c\u043f\u043b\u0435\u043a\u0441\u043e\u0432 \u041f\u0440\u0438\u043c\u043e\u0440\u0441\u043a\u043e\u0433\u043e \u0440\u0430\u0439\u043e\u043d\u0430 \u0421\u0430\u043d\u043a\u0442-\u041f\u0435\u0442\u0435\u0440\u0431\u0443\u0440\u0433\u0430 \u2014 \u0416\u041a \u00abSTOCKHOLM\u00bb. \u0418\u043d\u0442\u0435\u0440\u0435\u0441\u043d\u0430\u044f \u0440\u0435\u0430\u043b\u0438\u0437\u0430\u0446\u0438\u044f \u0448\u0432\u0435\u0434\u0441\u043a\u043e\u0433\u043e \u043f\u0440\u043e\u0435\u043a\u0442\u0430 2018 \u0433\u043e\u0434\u0430. \u041a\u0430\u043c\u0435\u0440\u043d\u044b\u0439 \u0434\u043e\u043c, \u0441\u0435\u043c\u0438\u044d\u0442\u0430\u0436\u043d\u044b\u0439, \u0441 \u043d\u0435\u0431\u043e\u043b\u044c\u0448\u0438\u043c \u043a\u043e\u043b\u0438\u0447\u0435\u0441\u0442\u0432\u043e\u043c \u043a\u0432\u0430\u0440\u0442\u0438\u0440, \u0437\u0430\u043a\u0440\u044b\u0442\u043e\u0439 \u043e\u0445\u0440\u0430\u043d\u044f\u0435\u043c\u043e\u0439 \u0442\u0435\u0440\u0440\u0438\u0442\u043e\u0440\u0438\u0435\u0439, \u043e\u0433\u0440\u043e\u043c\u043d\u043e\u0439 \u043f\u043b\u043e\u0449\u0430\u0434\u044c\u044e \u043e\u0441\u0442\u0435\u043a\u043b\u0435\u043d\u0438\u044f, \u043f\u043e\u0434\u0437\u0435\u043c\u043d\u044b\u043c \u043f\u0430\u0440\u043a\u0438\u043d\u0433\u043e\u043c, \u0432\u0438\u0434\u0430\u043c\u0438 \u043d\u0430 \u0415\u043b\u0430\u0433\u0438\u043d \u043e\u0441\u0442\u0440\u043e\u0432 \u0438 \u0431\u043b\u0430\u0433\u043e\u0443\u0441\u0442\u0440\u043e\u0435\u043d\u043d\u043e\u0439 \u043d\u0430\u0431\u0435\u0440\u0435\u0436\u043d\u043e\u0439 \u2014 \u043d\u0430\u0441\u0442\u043e\u044f\u0449\u0438\u0439 \u043e\u0430\u0437\u0438\u0441 \u0432 \u0433\u043e\u0440\u043e\u0434\u0441\u043a\u043e\u0439 \u0441\u0443\u0435\u0442\u0435! \u041d\u0435\u0442 \u043d\u0438\u043a\u0430\u043a\u043e\u0439 \u043a\u043e\u043c\u043c\u0435\u0440\u0446\u0438\u0438, \u043d\u043e \u0435\u0441\u0442\u044c \u0441\u0432\u043e\u044f \u043f\u043e\u043b\u0438\u043a\u043b\u0438\u043d\u0438\u043a\u0430. \u0412 \u043a\u0430\u0436\u0434\u043e\u0439 \u043f\u0430\u0440\u0430\u0434\u043d\u043e\u0439 \u0435\u0441\u0442\u044c \u0441\u0432\u043e\u0438 \u043a\u043e\u043b\u044f\u0441\u043e\u0447\u043d\u044b\u0435, \u0437\u043e\u043d\u044b \u0445\u0440\u0430\u043d\u0435\u043d\u0438\u044f \u0434\u043b\u044f \u0432\u0435\u043b\u043e\u0441\u0438\u043f\u0435\u0434\u043e\u0432, \u0431\u043e\u043b\u044c\u0448\u0438\u0435 \u0441\u0442\u0435\u043a\u043b\u044f\u043d\u043d\u044b\u0435 \u043b\u0438\u0444\u0442\u044b, \u0432\u044b\u0445\u043e\u0434 \u0432\u043e \u0432\u043d\u0443\u0442\u0440\u0435\u043d\u043d\u0438\u0439 \u0431\u043b\u0430\u0433\u043e\u0443\u0441\u0442\u0440\u043e\u0435\u043d\u043d\u044b\u0439 \u0434\u0432\u043e\u0440 \u0441 \u0438\u0433\u0440\u043e\u0432\u044b\u043c\u0438 \u0437\u043e\u043d\u0430\u043c\u0438 \u0438 \u043c\u0435\u0441\u0442\u0430\u043c\u0438 \u0434\u043b\u044f \u0440\u0430\u0441\u0441\u043b\u0430\u0431\u043b\u0435\u043d\u043d\u043e\u0433\u043e \u043e\u0442\u0434\u044b\u0445\u0430. \u041d\u0430 \u044d\u0442\u0430\u0436\u0435 \u0432\u0441\u0435\u0433\u043e \u0447\u0435\u0442\u044b\u0440\u0435 \u043a\u0432\u0430\u0440\u0442\u0438\u0440\u044b. \u041f\u0440\u043e\u0434\u0443\u043c\u0430\u043d\u043d\u0430\u044f \u043f\u043e\u043b\u043d\u043e\u0446\u0435\u043d\u043d\u0430\u044f \u043e\u0434\u043d\u043e\u043a\u043e\u043c\u043d\u0430\u0442\u043d\u0430\u044f \u043a\u0432\u0430\u0440\u0442\u0438\u0440\u0430 \u0441 \u0448\u0438\u043a\u0430\u0440\u043d\u044b\u043c\u0438 \u0431\u0435\u043b\u044c\u0433\u0438\u0439\u0441\u043a\u0438\u043c\u0438 \u0443\u0432\u0435\u043b\u0438\u0447\u0435\u043d\u043d\u044b\u043c\u0438 \u0430\u043b\u044e\u043c\u0438\u043d\u0438\u0435\u0432\u044b\u043c\u0438 \u043e\u043a\u043d\u0430\u043c\u0438 \u043e\u043b\u0438\u0432\u043a\u043e\u0432\u043e\u0433\u043e \u0446\u0432\u0435\u0442\u0430, \u0432\u044b\u0441\u043e\u043a\u0438\u043c\u0438 \u043f\u043e\u0442\u043e\u043b\u043a\u0430\u043c\u0438 - 3 \u043c\u0435\u0442\u0440\u0430, \u043f\u0440\u043e\u0441\u0442\u043e\u0440\u043d\u043e\u0439 \u0433\u0430\u0440\u0434\u0435\u0440\u043e\u0431\u043d\u043e\u0439 \u0438 \u0441\u0430\u043d\u0443\u0437\u043b\u043e\u043c, \u0432\u0435\u043b\u0438\u043a\u043e\u043b\u0435\u043f\u043d\u043e\u0439 \u043b\u043e\u0434\u0436\u0438\u0435\u0439-\u0442\u0435\u0440\u0440\u0430\u0441\u043e\u0439, \u0433\u0434\u0435 \u0432\u044b \u043c\u043e\u0436\u0435\u0442\u0435 \u0432\u0438\u0434\u0435\u0442\u044c \u043a\u0440\u0430\u0441\u0438\u0432\u044b\u0435 \u0440\u0430\u0441\u0441\u0432\u0435\u0442\u044b \u0438 \u043d\u0430\u0441\u043b\u0430\u0436\u0434\u0430\u0442\u044c\u0441\u044f \u0432\u043e\u0434\u043d\u043e\u0439 \u0433\u043b\u0430\u0434\u044c\u044e. \u041f\u0440\u043e\u0438\u0437\u0432\u0435\u0434\u0435\u043d \u043a\u0430\u0447\u0435\u0441\u0442\u0432\u0435\u043d\u043d\u044b\u0439 \u0440\u0435\u043c\u043e\u043d\u0442 \u0438 \u043f\u043e\u043b\u043d\u043e\u0435 \u043e\u0441\u043d\u0430\u0449\u0435\u043d\u0438\u0435 \u0432\u0441\u0435\u043c \u043d\u0435\u043e\u0431\u0445\u043e\u0434\u0438\u043c\u044b\u043c \u0434\u043b\u044f \u043a\u043e\u043c\u0444\u043e\u0440\u0442\u043d\u043e\u0433\u043e \u043f\u0440\u043e\u0436\u0438\u0432\u0430\u043d\u0438\u044f. \u041a\u0432\u0430\u0440\u0442\u0438\u0440\u0430 \u043e\u0447\u0435\u043d\u044c \u0443\u044e\u0442\u043d\u0430\u044f, \u0442\u0435\u043f\u043b\u0430\u044f, \u0443\u0445\u043e\u0436\u0435\u043d\u043d\u0430\u044f. \u0421\u0440\u0430\u0437\u0443 \u043e\u0431\u0440\u0430\u0449\u0430\u0435\u0442 \u043d\u0430 \u0441\u0435\u0431\u044f \u0432\u043d\u0438\u043c\u0430\u043d\u0438\u0435 \u2014 \u0441\u0432\u0435\u0442\u043b\u044b\u0435 \u043e\u043a\u0440\u0430\u0448\u0435\u043d\u043d\u044b\u0435 \u0441\u0442\u0435\u043d\u044b, \u043a\u0440\u0430\u0441\u0438\u0432\u0430\u044f \u043f\u0430\u0440\u043a\u0435\u0442\u043d\u0430\u044f \u0434\u043e\u0441\u043a\u0430 \u043d\u0430 \u043f\u043e\u043b\u0443, \u043a\u0430\u043c\u0435\u043d\u043d\u044b\u0435 \u043f\u043e\u0434\u043e\u043a\u043e\u043d\u043d\u0438\u043a\u0438 \u0438 \u0441\u0442\u043e\u043b\u0435\u0448\u043d\u0438\u0446\u0430, \u043f\u043e\u043b\u043d\u043e\u0441\u0442\u044c\u044e \u043e\u0441\u043d\u0430\u0449\u0435\u043d\u043d\u0430\u044f \u0432\u0441\u0442\u0440\u043e\u0435\u043d\u043d\u0430\u044f \u043a\u0443\u0445\u043d\u044f \u0438 \u043c\u043d\u043e\u0433\u043e\u0435 \u0434\u0440\u0443\u0433\u043e\u0435. \u041f\u0440\u0438\u0445\u043e\u0434\u0438\u0442\u0435 \u0438 \u0441\u0430\u043c\u0438 \u0432\u0441\u0435 \u0443\u0432\u0438\u0434\u0438\u0442\u0435! \u041a\u0432\u0430\u0440\u0442\u0438\u0440\u043e\u0439 \u0432\u043b\u0430\u0434\u0435\u0435\u0442 \u043e\u0434\u0438\u043d \u0441\u043e\u0431\u0441\u0442\u0432\u0435\u043d\u043d\u0438\u043a \u0431\u043e\u043b\u0435\u0435 5 \u043b\u0435\u0442, \u0431\u0435\u0437 \u043a\u0430\u043a\u0438\u0445-\u043b\u0438\u0431\u043e \u043e\u0433\u0440\u0430\u043d\u0438\u0447\u0435\u043d\u0438\u0439!","date_update":"24.12.2025","yaCoord0":30.2439236,"yaCoord1":59.9831516,"is_current":1,"is_sold":0,"is_withdrawn":0,"is_private":0,"sale_date":null,"start_date":"2025-12-11","final_price":null,"created_at":"2025-12-11 14:26:38","updated_at":"2025-12-11 18:19:36","checked_at":"2025-12-11 18:19:36","sum":168,"url":null,"title":"1-\u043a\u043e\u043c\u043d\u0430\u0442\u043d\u0430\u044f \u043a\u0432\u0430\u0440\u0442\u0438\u0440\u0430 43 \u043c\u00b2, \u044d\u0442\u0430\u0436 3\/7","guidename":"1-\u043a\u043e\u043c\u043d\u0430\u0442\u043d\u044b\u0435 \u043a\u0432\u0430\u0440\u0442\u0438\u0440\u044b","phone":{"number":"+7 (921) 5555319","link":"+7 (921) 5555319"},"agents":[{"id":5017,"url":"olga-metsler","F":"\u041c\u0435\u0446\u043b\u0435\u0440","I":"\u041e\u043b\u044c\u0433\u0430","O":"\u0412\u0430\u043b\u0435\u0440\u044c\u0435\u0432\u043d\u0430","phone":"+7 (921) 5555319","email":"MeclerOV@itaka.ru","personal_phone":"8-921-555-53-19","personal_email":"MeclerOV@itaka.ru","birthday":"1975-08-16","photo_sq":"\/\/homeinspb.ru\/1c\/photo\/FL5017.jpg","photo_cir":"agent_5017_cir.png","photo":null,"online":1,"text":null,"oadm":0,"gender":0,"shows":0,"selfemployed":0,"individual":1,"in_state":0,"in_office":0,"site_post":"","is_fired":0,"direct_submission":0,"direct_submission_id":1,"mim":13434,"change":1,"is_active":1,"noindex":0,"must_index":0,"jivo":0,"basic_office_id":"000000013","precinct":0,"slaves_notifications":1,"is_blocked":0,"overrides":{"about_agent":"<p>\u0420\u0430\u0431\u043e\u0442\u0430\u044e \u0432 \u043a\u043e\u043c\u043f\u0430\u043d\u0438\u0438 \u0418\u0442\u0430\u043a\u0430 \u0441 2004 \u0433\u043e\u0434\u0430, \u0438\u043c\u0435\u044e \u0432\u044b\u0441\u0448\u0435\u0435 \u044d\u043a\u043e\u043d\u043e\u043c\u0438\u0447\u0435\u0441\u043a\u043e\u0435 \u0438 \u044e\u0440\u0438\u0434\u0438\u0447\u0435\u0441\u043a\u043e\u0435&nbsp; \u043e\u0431\u0440\u0430\u0437\u043e\u0432\u0430\u043d\u0438\u0435. \u0426\u0435\u043d\u044e \u043f\u0440\u043e\u0444\u0435\u0441\u0441\u0438\u043e\u043d\u0430\u043b\u0438\u0437\u043c! \u0421\u0447\u0438\u0442\u0430\u044e \u0441\u0432\u043e\u0435\u0439 \u043c\u0438\u0441\u0441\u0438\u0435\u0439 - \u0433\u0440\u0430\u043c\u043e\u0442\u043d\u043e \u0438 \u043a\u0430\u0447\u0435\u0441\u0442\u0432\u0435\u043d\u043d\u043e \u043e\u043a\u0430\u0437\u044b\u0432\u0430\u0442\u044c \u0443\u0441\u043b\u0443\u0433\u0438 \u043d\u0430\u0448\u0438\u043c \u043a\u043b\u0438\u0435\u043d\u0442\u0430\u043c \u0432 \u0440\u0435\u0448\u0435\u043d\u0438\u0438 \u0438\u0445 \u0436\u0438\u043b\u0438\u0449\u043d\u043e\u0433\u043e \u0432\u043e\u043f\u0440\u043e\u0441\u0430. \u041b\u044e\u0431\u043b\u044e \u0438 \u0446\u0435\u043d\u044e \u043b\u044e\u0434\u0435\u0439!&nbsp;<\/p>","about_agent_uin":"p>","phone":"+7 (921) 5555319","phone_uin":"+7 (921) 5555319","instagram":"https:\/\/instagram.com\/olga_mecler?utm_medium=copy_link","instagram_uin":"olga_mecler?utm_medium=copy_link","facebook":"https:\/\/www.facebook.com\/profile.php?id=100023193378676","facebook_uin":"profile.php?id=100023193378676","telegram":"@OlgaMetsler","telegram_uin":"@OlgaMetsler","video":"https:\/\/youtu.be\/VieSmzqw6So","video_uin":"VieSmzqw6So"},"wp":true,"phone_f":"79215555319","office":{"id":"000000013","url":"ul-malaya-balkanskaya-d-26","name":"\u0443\u043b. \u041c\u0430\u043b\u0430\u044f \u0411\u0430\u043b\u043a\u0430\u043d\u0441\u043a\u0430\u044f, \u0434. 26","adress":"\u0433. \u0421\u0430\u043d\u043a\u0442-\u041f\u0435\u0442\u0435\u0440\u0431\u0443\u0440\u0433, \u0424\u0440\u0443\u043d\u0437\u0435\u043d\u0441\u043a\u0438\u0439 \u0440-\u043d, \u0443\u043b. \u041c\u0430\u043b\u0430\u044f \u0411\u0430\u043b\u043a\u0430\u043d\u0441\u043a\u0430\u044f, \u0434. 26","coords":"59.829442,30.386079","pano_coords":"59.8298972865986,30.384474933","pano_direction":"44.60707084120078,1.1631715886855591","pano_span":"58.033400647822184,30.320036290824245","email":"kup4ino@itaka.ru","phone":"88123477731","metro_stations_id":9,"region_id":78,"district_id":null,"coords_metro":null,"coords_top":null,"coords_left":null,"spbzn_coords_top":null,"spbzn_coords_left":null,"change":1,"td_id":7,"order":70,"deleted_at":null,"SuccessOverrides":[{"id":6887,"model":"Offices","target_id":0,"target_id_str":"000000013","field":"order","value":"129,5017,4141,94,255,11524,9127,5779,570,7832,10411,8923,10124,14723,12440,10827,11255,13615,14933,13616,13397,11863,702,10547,2879,3805,10032,11151,663,15756,10131,13269,284,12585,13651,2234","is_current":0,"is_moderated_adm":1,"is_moderated_tech":1,"is_selected":0,"creator_id":440,"moderator_adm_id":440,"moderator_tech_id":440,"adm_reason":null,"tech_reason":null,"created_at":"2025-09-10T08:59:44.000000Z","updated_at":"2025-09-10T08:59:44.000000Z"},{"id":6886,"model":"Offices","target_id":0,"target_id_str":"000000013","field":"add_agent_id","value":"9557","is_current":0,"is_moderated_adm":1,"is_moderated_tech":1,"is_selected":0,"creator_id":440,"moderator_adm_id":440,"moderator_tech_id":440,"adm_reason":null,"tech_reason":null,"created_at":"2025-09-10T08:59:44.000000Z","updated_at":"2025-09-10T08:59:44.000000Z"},{"id":6885,"model":"Offices","target_id":0,"target_id_str":"000000013","field":"schedule","value":"\u041f\u041d-\u041f\u0422: 10.00-20.00<br \/>\r\n\u0421\u0411-\u0412\u0421: 11.00-18.00","is_current":0,"is_moderated_adm":1,"is_moderated_tech":1,"is_selected":0,"creator_id":440,"moderator_adm_id":440,"moderator_tech_id":440,"adm_reason":null,"tech_reason":null,"created_at":"2025-09-10T08:59:44.000000Z","updated_at":"2025-09-10T08:59:44.000000Z"}],"Hours":null},"Mimfio":{"id":13434,"url":"nataliya-ershova","F":"\u0415\u0440\u0448\u043e\u0432\u0430","I":"\u041d\u0430\u0442\u0430\u043b\u0438\u044f","O":"\u0412\u0430\u043b\u0435\u043d\u0442\u0438\u043d\u043e\u0432\u043d\u0430","phone":"89312042310","email":"ErshovaNV@itaka.ru","personal_phone":"","personal_email":"","birthday":null,"photo_sq":null,"photo_cir":null,"photo":null,"online":0,"text":null,"oadm":1,"gender":null,"shows":1,"selfemployed":0,"individual":0,"in_state":0,"in_office":0,"site_post":"","is_fired":0,"direct_submission":1,"direct_submission_id":11389,"mim":null,"change":1,"is_active":1,"noindex":1,"must_index":1,"jivo":1,"basic_office_id":null,"precinct":0,"slaves_notifications":1,"is_blocked":0,"Mimfio":false},"success_overrides":[{"id":1694,"model":"Agents","target_id":5017,"target_id_str":null,"field":"about_agent","value":"<p>\u0420\u0430\u0431\u043e\u0442\u0430\u044e \u0432 \u043a\u043e\u043c\u043f\u0430\u043d\u0438\u0438 \u0418\u0442\u0430\u043a\u0430 \u0441 2004 \u0433\u043e\u0434\u0430, \u0438\u043c\u0435\u044e \u0432\u044b\u0441\u0448\u0435\u0435 \u044d\u043a\u043e\u043d\u043e\u043c\u0438\u0447\u0435\u0441\u043a\u043e\u0435 \u0438 \u044e\u0440\u0438\u0434\u0438\u0447\u0435\u0441\u043a\u043e\u0435&nbsp; \u043e\u0431\u0440\u0430\u0437\u043e\u0432\u0430\u043d\u0438\u0435. \u0426\u0435\u043d\u044e \u043f\u0440\u043e\u0444\u0435\u0441\u0441\u0438\u043e\u043d\u0430\u043b\u0438\u0437\u043c! \u0421\u0447\u0438\u0442\u0430\u044e \u0441\u0432\u043e\u0435\u0439 \u043c\u0438\u0441\u0441\u0438\u0435\u0439 - \u0433\u0440\u0430\u043c\u043e\u0442\u043d\u043e \u0438 \u043a\u0430\u0447\u0435\u0441\u0442\u0432\u0435\u043d\u043d\u043e \u043e\u043a\u0430\u0437\u044b\u0432\u0430\u0442\u044c \u0443\u0441\u043b\u0443\u0433\u0438 \u043d\u0430\u0448\u0438\u043c \u043a\u043b\u0438\u0435\u043d\u0442\u0430\u043c \u0432 \u0440\u0435\u0448\u0435\u043d\u0438\u0438 \u0438\u0445 \u0436\u0438\u043b\u0438\u0449\u043d\u043e\u0433\u043e \u0432\u043e\u043f\u0440\u043e\u0441\u0430. \u041b\u044e\u0431\u043b\u044e \u0438 \u0446\u0435\u043d\u044e \u043b\u044e\u0434\u0435\u0439!&nbsp;<\/p>","is_current":0,"is_moderated_adm":1,"is_moderated_tech":1,"is_selected":0,"creator_id":536,"moderator_adm_id":402,"moderator_tech_id":402,"adm_reason":null,"tech_reason":null,"created_at":"2021-11-23T15:07:48.000000Z","updated_at":"2021-11-25T12:13:58.000000Z"},{"id":1695,"model":"Agents","target_id":5017,"target_id_str":null,"field":"phone","value":"+7 (921) 5555319","is_current":0,"is_moderated_adm":1,"is_moderated_tech":1,"is_selected":0,"creator_id":536,"moderator_adm_id":402,"moderator_tech_id":402,"adm_reason":null,"tech_reason":null,"created_at":"2021-11-23T15:14:09.000000Z","updated_at":"2021-11-25T12:14:11.000000Z"},{"id":1696,"model":"Agents","target_id":5017,"target_id_str":null,"field":"instagram","value":"https:\/\/instagram.com\/olga_mecler?utm_medium=copy_link","is_current":0,"is_moderated_adm":1,"is_moderated_tech":1,"is_selected":0,"creator_id":536,"moderator_adm_id":402,"moderator_tech_id":402,"adm_reason":null,"tech_reason":null,"created_at":"2021-11-23T15:16:01.000000Z","updated_at":"2021-11-25T12:14:54.000000Z"},{"id":1700,"model":"Agents","target_id":5017,"target_id_str":null,"field":"facebook","value":"https:\/\/www.facebook.com\/profile.php?id=100023193378676","is_current":0,"is_moderated_adm":1,"is_moderated_tech":1,"is_selected":0,"creator_id":536,"moderator_adm_id":402,"moderator_tech_id":402,"adm_reason":null,"tech_reason":null,"created_at":"2021-11-23T15:42:31.000000Z","updated_at":"2021-11-25T12:14:29.000000Z"},{"id":1701,"model":"Agents","target_id":5017,"target_id_str":null,"field":"telegram","value":"@OlgaMetsler","is_current":0,"is_moderated_adm":1,"is_moderated_tech":1,"is_selected":0,"creator_id":536,"moderator_adm_id":402,"moderator_tech_id":402,"adm_reason":null,"tech_reason":null,"created_at":"2021-11-23T15:43:36.000000Z","updated_at":"2021-11-25T12:15:13.000000Z"},{"id":5134,"model":"Agents","target_id":5017,"target_id_str":null,"field":"video","value":"https:\/\/youtu.be\/VieSmzqw6So","is_current":0,"is_moderated_adm":1,"is_moderated_tech":1,"is_selected":0,"creator_id":440,"moderator_adm_id":440,"moderator_tech_id":440,"adm_reason":null,"tech_reason":null,"created_at":"2023-11-16T10:09:12.000000Z","updated_at":"2023-11-16T10:09:16.000000Z"}]},{"id":5017,"url":"olga-metsler","F":"\u041c\u0435\u0446\u043b\u0435\u0440","I":"\u041e\u043b\u044c\u0433\u0430","O":"\u0412\u0430\u043b\u0435\u0440\u044c\u0435\u0432\u043d\u0430","phone":"+7 (921) 5555319","email":"MeclerOV@itaka.ru","personal_phone":"8-921-555-53-19","personal_email":"MeclerOV@itaka.ru","birthday":"1975-08-16","photo_sq":"\/\/homeinspb.ru\/1c\/photo\/FL5017.jpg","photo_cir":"agent_5017_cir.png","photo":null,"online":1,"text":null,"oadm":0,"gender":0,"shows":0,"selfemployed":0,"individual":1,"in_state":0,"in_office":0,"site_post":"","is_fired":0,"direct_submission":0,"direct_submission_id":1,"mim":13434,"change":1,"is_active":1,"noindex":0,"must_index":0,"jivo":0,"basic_office_id":"000000013","precinct":0,"slaves_notifications":1,"is_blocked":0,"overrides":{"about_agent":"<p>\u0420\u0430\u0431\u043e\u0442\u0430\u044e \u0432 \u043a\u043e\u043c\u043f\u0430\u043d\u0438\u0438 \u0418\u0442\u0430\u043a\u0430 \u0441 2004 \u0433\u043e\u0434\u0430, \u0438\u043c\u0435\u044e \u0432\u044b\u0441\u0448\u0435\u0435 \u044d\u043a\u043e\u043d\u043e\u043c\u0438\u0447\u0435\u0441\u043a\u043e\u0435 \u0438 \u044e\u0440\u0438\u0434\u0438\u0447\u0435\u0441\u043a\u043e\u0435&nbsp; \u043e\u0431\u0440\u0430\u0437\u043e\u0432\u0430\u043d\u0438\u0435. \u0426\u0435\u043d\u044e \u043f\u0440\u043e\u0444\u0435\u0441\u0441\u0438\u043e\u043d\u0430\u043b\u0438\u0437\u043c! \u0421\u0447\u0438\u0442\u0430\u044e \u0441\u0432\u043e\u0435\u0439 \u043c\u0438\u0441\u0441\u0438\u0435\u0439 - \u0433\u0440\u0430\u043c\u043e\u0442\u043d\u043e \u0438 \u043a\u0430\u0447\u0435\u0441\u0442\u0432\u0435\u043d\u043d\u043e \u043e\u043a\u0430\u0437\u044b\u0432\u0430\u0442\u044c \u0443\u0441\u043b\u0443\u0433\u0438 \u043d\u0430\u0448\u0438\u043c \u043a\u043b\u0438\u0435\u043d\u0442\u0430\u043c \u0432 \u0440\u0435\u0448\u0435\u043d\u0438\u0438 \u0438\u0445 \u0436\u0438\u043b\u0438\u0449\u043d\u043e\u0433\u043e \u0432\u043e\u043f\u0440\u043e\u0441\u0430. \u041b\u044e\u0431\u043b\u044e \u0438 \u0446\u0435\u043d\u044e \u043b\u044e\u0434\u0435\u0439!&nbsp;<\/p>","about_agent_uin":"p>","phone":"+7 (921) 5555319","phone_uin":"+7 (921) 5555319","instagram":"https:\/\/instagram.com\/olga_mecler?utm_medium=copy_link","instagram_uin":"olga_mecler?utm_medium=copy_link","facebook":"https:\/\/www.facebook.com\/profile.php?id=100023193378676","facebook_uin":"profile.php?id=100023193378676","telegram":"@OlgaMetsler","telegram_uin":"@OlgaMetsler","video":"https:\/\/youtu.be\/VieSmzqw6So","video_uin":"VieSmzqw6So"},"wp":true,"phone_f":"79215555319","office":{"id":"000000013","url":"ul-malaya-balkanskaya-d-26","name":"\u0443\u043b. \u041c\u0430\u043b\u0430\u044f \u0411\u0430\u043b\u043a\u0430\u043d\u0441\u043a\u0430\u044f, \u0434. 26","adress":"\u0433. \u0421\u0430\u043d\u043a\u0442-\u041f\u0435\u0442\u0435\u0440\u0431\u0443\u0440\u0433, \u0424\u0440\u0443\u043d\u0437\u0435\u043d\u0441\u043a\u0438\u0439 \u0440-\u043d, \u0443\u043b. \u041c\u0430\u043b\u0430\u044f \u0411\u0430\u043b\u043a\u0430\u043d\u0441\u043a\u0430\u044f, \u0434. 26","coords":"59.829442,30.386079","pano_coords":"59.8298972865986,30.384474933","pano_direction":"44.60707084120078,1.1631715886855591","pano_span":"58.033400647822184,30.320036290824245","email":"kup4ino@itaka.ru","phone":"88123477731","metro_stations_id":9,"region_id":78,"district_id":null,"coords_metro":null,"coords_top":null,"coords_left":null,"spbzn_coords_top":null,"spbzn_coords_left":null,"change":1,"td_id":7,"order":70,"deleted_at":null,"SuccessOverrides":[{"id":6887,"model":"Offices","target_id":0,"target_id_str":"000000013","field":"order","value":"129,5017,4141,94,255,11524,9127,5779,570,7832,10411,8923,10124,14723,12440,10827,11255,13615,14933,13616,13397,11863,702,10547,2879,3805,10032,11151,663,15756,10131,13269,284,12585,13651,2234","is_current":0,"is_moderated_adm":1,"is_moderated_tech":1,"is_selected":0,"creator_id":440,"moderator_adm_id":440,"moderator_tech_id":440,"adm_reason":null,"tech_reason":null,"created_at":"2025-09-10T08:59:44.000000Z","updated_at":"2025-09-10T08:59:44.000000Z"},{"id":6886,"model":"Offices","target_id":0,"target_id_str":"000000013","field":"add_agent_id","value":"9557","is_current":0,"is_moderated_adm":1,"is_moderated_tech":1,"is_selected":0,"creator_id":440,"moderator_adm_id":440,"moderator_tech_id":440,"adm_reason":null,"tech_reason":null,"created_at":"2025-09-10T08:59:44.000000Z","updated_at":"2025-09-10T08:59:44.000000Z"},{"id":6885,"model":"Offices","target_id":0,"target_id_str":"000000013","field":"schedule","value":"\u041f\u041d-\u041f\u0422: 10.00-20.00<br \/>\r\n\u0421\u0411-\u0412\u0421: 11.00-18.00","is_current":0,"is_moderated_adm":1,"is_moderated_tech":1,"is_selected":0,"creator_id":440,"moderator_adm_id":440,"moderator_tech_id":440,"adm_reason":null,"tech_reason":null,"created_at":"2025-09-10T08:59:44.000000Z","updated_at":"2025-09-10T08:59:44.000000Z"}],"Hours":null},"Mimfio":{"id":13434,"url":"nataliya-ershova","F":"\u0415\u0440\u0448\u043e\u0432\u0430","I":"\u041d\u0430\u0442\u0430\u043b\u0438\u044f","O":"\u0412\u0430\u043b\u0435\u043d\u0442\u0438\u043d\u043e\u0432\u043d\u0430","phone":"89312042310","email":"ErshovaNV@itaka.ru","personal_phone":"","personal_email":"","birthday":null,"photo_sq":null,"photo_cir":null,"photo":null,"online":0,"text":null,"oadm":1,"gender":null,"shows":1,"selfemployed":0,"individual":0,"in_state":0,"in_office":0,"site_post":"","is_fired":0,"direct_submission":1,"direct_submission_id":11389,"mim":null,"change":1,"is_active":1,"noindex":1,"must_index":1,"jivo":1,"basic_office_id":null,"precinct":0,"slaves_notifications":1,"is_blocked":0,"Mimfio":false},"success_overrides":[{"id":1694,"model":"Agents","target_id":5017,"target_id_str":null,"field":"about_agent","value":"<p>\u0420\u0430\u0431\u043e\u0442\u0430\u044e \u0432 \u043a\u043e\u043c\u043f\u0430\u043d\u0438\u0438 \u0418\u0442\u0430\u043a\u0430 \u0441 2004 \u0433\u043e\u0434\u0430, \u0438\u043c\u0435\u044e \u0432\u044b\u0441\u0448\u0435\u0435 \u044d\u043a\u043e\u043d\u043e\u043c\u0438\u0447\u0435\u0441\u043a\u043e\u0435 \u0438 \u044e\u0440\u0438\u0434\u0438\u0447\u0435\u0441\u043a\u043e\u0435&nbsp; \u043e\u0431\u0440\u0430\u0437\u043e\u0432\u0430\u043d\u0438\u0435. \u0426\u0435\u043d\u044e \u043f\u0440\u043e\u0444\u0435\u0441\u0441\u0438\u043e\u043d\u0430\u043b\u0438\u0437\u043c! \u0421\u0447\u0438\u0442\u0430\u044e \u0441\u0432\u043e\u0435\u0439 \u043c\u0438\u0441\u0441\u0438\u0435\u0439 - \u0433\u0440\u0430\u043c\u043e\u0442\u043d\u043e \u0438 \u043a\u0430\u0447\u0435\u0441\u0442\u0432\u0435\u043d\u043d\u043e \u043e\u043a\u0430\u0437\u044b\u0432\u0430\u0442\u044c \u0443\u0441\u043b\u0443\u0433\u0438 \u043d\u0430\u0448\u0438\u043c \u043a\u043b\u0438\u0435\u043d\u0442\u0430\u043c \u0432 \u0440\u0435\u0448\u0435\u043d\u0438\u0438 \u0438\u0445 \u0436\u0438\u043b\u0438\u0449\u043d\u043e\u0433\u043e \u0432\u043e\u043f\u0440\u043e\u0441\u0430. \u041b\u044e\u0431\u043b\u044e \u0438 \u0446\u0435\u043d\u044e \u043b\u044e\u0434\u0435\u0439!&nbsp;<\/p>","is_current":0,"is_moderated_adm":1,"is_moderated_tech":1,"is_selected":0,"creator_id":536,"moderator_adm_id":402,"moderator_tech_id":402,"adm_reason":null,"tech_reason":null,"created_at":"2021-11-23T15:07:48.000000Z","updated_at":"2021-11-25T12:13:58.000000Z"},{"id":1695,"model":"Agents","target_id":5017,"target_id_str":null,"field":"phone","value":"+7 (921) 5555319","is_current":0,"is_moderated_adm":1,"is_moderated_tech":1,"is_selected":0,"creator_id":536,"moderator_adm_id":402,"moderator_tech_id":402,"adm_reason":null,"tech_reason":null,"created_at":"2021-11-23T15:14:09.000000Z","updated_at":"2021-11-25T12:14:11.000000Z"},{"id":1696,"model":"Agents","target_id":5017,"target_id_str":null,"field":"instagram","value":"https:\/\/instagram.com\/olga_mecler?utm_medium=copy_link","is_current":0,"is_moderated_adm":1,"is_moderated_tech":1,"is_selected":0,"creator_id":536,"moderator_adm_id":402,"moderator_tech_id":402,"adm_reason":null,"tech_reason":null,"created_at":"2021-11-23T15:16:01.000000Z","updated_at":"2021-11-25T12:14:54.000000Z"},{"id":1700,"model":"Agents","target_id":5017,"target_id_str":null,"field":"facebook","value":"https:\/\/www.facebook.com\/profile.php?id=100023193378676","is_current":0,"is_moderated_adm":1,"is_moderated_tech":1,"is_selected":0,"creator_id":536,"moderator_adm_id":402,"moderator_tech_id":402,"adm_reason":null,"tech_reason":null,"created_at":"2021-11-23T15:42:31.000000Z","updated_at":"2021-11-25T12:14:29.000000Z"},{"id":1701,"model":"Agents","target_id":5017,"target_id_str":null,"field":"telegram","value":"@OlgaMetsler","is_current":0,"is_moderated_adm":1,"is_moderated_tech":1,"is_selected":0,"creator_id":536,"moderator_adm_id":402,"moderator_tech_id":402,"adm_reason":null,"tech_reason":null,"created_at":"2021-11-23T15:43:36.000000Z","updated_at":"2021-11-25T12:15:13.000000Z"},{"id":5134,"model":"Agents","target_id":5017,"target_id_str":null,"field":"video","value":"https:\/\/youtu.be\/VieSmzqw6So","is_current":0,"is_moderated_adm":1,"is_moderated_tech":1,"is_selected":0,"creator_id":440,"moderator_adm_id":440,"moderator_tech_id":440,"adm_reason":null,"tech_reason":null,"created_at":"2023-11-16T10:09:12.000000Z","updated_at":"2023-11-16T10:09:16.000000Z"}]}],"metro":{"id":50,"name":"\u0421\u0442\u0430\u0440\u0430\u044f \u0434\u0435\u0440\u0435\u0432\u043d\u044f","chpuName":"staraja-derevnja","top":"143","left":"171","metro_lines_id":9,"intersection":null,"r_top":"90","r_side":"450","r_class":"right","r_top_sub":null,"r_side_sub":null,"r_opt_class":null,"yaCoord0":null,"yaCoord1":null,"created_at":null,"updated_at":null,"metro_color":"blueviolet"},"images":[{"id":1303443,"apartment_number":"1-92598","photo":"media.itaka.ru\/homeinspb\/images\/objects\/big_2ea1f15f-84d6-f011-aa6e-0050568db126.jpg","priority":1},{"id":1303444,"apartment_number":"1-92598","photo":"media.itaka.ru\/homeinspb\/images\/objects\/big_2fa1f15f-84d6-f011-aa6e-0050568db126.jpg","priority":2},{"id":1303445,"apartment_number":"1-92598","photo":"media.itaka.ru\/homeinspb\/images\/objects\/big_3da1f15f-84d6-f011-aa6e-0050568db126.jpg","priority":3},{"id":1303446,"apartment_number":"1-92598","photo":"media.itaka.ru\/homeinspb\/images\/objects\/big_36a1f15f-84d6-f011-aa6e-0050568db126.jpg","priority":4},{"id":1303447,"apartment_number":"1-92598","photo":"media.itaka.ru\/homeinspb\/images\/objects\/big_46a1f15f-84d6-f011-aa6e-0050568db126.jpg","priority":5},{"id":1303448,"apartment_number":"1-92598","photo":"media.itaka.ru\/homeinspb\/images\/objects\/big_4aa1f15f-84d6-f011-aa6e-0050568db126.jpg","priority":6},{"id":1303449,"apartment_number":"1-92598","photo":"media.itaka.ru\/homeinspb\/images\/objects\/big_58a1f15f-84d6-f011-aa6e-0050568db126.jpg","priority":7},{"id":1303450,"apartment_number":"1-92598","photo":"media.itaka.ru\/homeinspb\/images\/objects\/big_4ba1f15f-84d6-f011-aa6e-0050568db126.jpg","priority":8},{"id":1303451,"apartment_number":"1-92598","photo":"media.itaka.ru\/homeinspb\/images\/objects\/big_5aa1f15f-84d6-f011-aa6e-0050568db126.jpg","priority":9},{"id":1303452,"apartment_number":"1-92598","photo":"media.itaka.ru\/homeinspb\/images\/objects\/big_5ea1f15f-84d6-f011-aa6e-0050568db126.jpg","priority":10},{"id":1303453,"apartment_number":"1-92598","photo":"media.itaka.ru\/homeinspb\/images\/objects\/big_63a1f15f-84d6-f011-aa6e-0050568db126.jpg","priority":11},{"id":1303454,"apartment_number":"1-92598","photo":"media.itaka.ru\/homeinspb\/images\/objects\/big_66a1f15f-84d6-f011-aa6e-0050568db126.jpg","priority":12},{"id":1303455,"apartment_number":"1-92598","photo":"media.itaka.ru\/homeinspb\/images\/objects\/big_6aa1f15f-84d6-f011-aa6e-0050568db126.jpg","priority":13},{"id":1303456,"apartment_number":"1-92598","photo":"media.itaka.ru\/homeinspb\/images\/objects\/big_7aa1f15f-84d6-f011-aa6e-0050568db126.jpg","priority":14},{"id":1303457,"apartment_number":"1-92598","photo":"media.itaka.ru\/homeinspb\/images\/objects\/big_83a1f15f-84d6-f011-aa6e-0050568db126.jpg","priority":15},{"id":1303458,"apartment_number":"1-92598","photo":"media.itaka.ru\/homeinspb\/images\/objects\/big_7fa1f15f-84d6-f011-aa6e-0050568db126.jpg","priority":16},{"id":1303459,"apartment_number":"1-92598","photo":"media.itaka.ru\/homeinspb\/images\/objects\/big_89a1f15f-84d6-f011-aa6e-0050568db126.jpg","priority":17},{"id":1303460,"apartment_number":"1-92598","photo":"media.itaka.ru\/homeinspb\/images\/objects\/big_92a1f15f-84d6-f011-aa6e-0050568db126.jpg","priority":18},{"id":1303461,"apartment_number":"1-92598","photo":"media.itaka.ru\/homeinspb\/images\/objects\/big_97a1f15f-84d6-f011-aa6e-0050568db126.jpg","priority":19},{"id":1303462,"apartment_number":"1-92598","photo":"media.itaka.ru\/homeinspb\/images\/objects\/big_9ba1f15f-84d6-f011-aa6e-0050568db126.jpg","priority":20},{"id":1303463,"apartment_number":"1-92598","photo":"media.itaka.ru\/homeinspb\/images\/objects\/big_a6a1f15f-84d6-f011-aa6e-0050568db126.jpg","priority":21},{"id":1303464,"apartment_number":"1-92598","photo":"media.itaka.ru\/homeinspb\/images\/objects\/big_a9a1f15f-84d6-f011-aa6e-0050568db126.jpg","priority":22},{"id":1303465,"apartment_number":"1-92598","photo":"media.itaka.ru\/homeinspb\/images\/objects\/big_b0a1f15f-84d6-f011-aa6e-0050568db126.jpg","priority":23},{"id":1303466,"apartment_number":"1-92598","photo":"media.itaka.ru\/homeinspb\/images\/objects\/big_afa1f15f-84d6-f011-aa6e-0050568db126.jpg","priority":24},{"id":1303467,"apartment_number":"1-92598","photo":"media.itaka.ru\/homeinspb\/images\/objects\/big_baa1f15f-84d6-f011-aa6e-0050568db126.jpg","priority":25},{"id":1303468,"apartment_number":"1-92598","photo":"media.itaka.ru\/homeinspb\/images\/objects\/big_c0a1f15f-84d6-f011-aa6e-0050568db126.jpg","priority":26},{"id":1303469,"apartment_number":"1-92598","photo":"media.itaka.ru\/homeinspb\/images\/objects\/big_c8a1f15f-84d6-f011-aa6e-0050568db126.jpg","priority":27},{"id":1303470,"apartment_number":"1-92598","photo":"media.itaka.ru\/homeinspb\/images\/objects\/big_d5a1f15f-84d6-f011-aa6e-0050568db126.jpg","priority":28},{"id":1303471,"apartment_number":"1-92598","photo":"media.itaka.ru\/homeinspb\/images\/objects\/big_cfa1f15f-84d6-f011-aa6e-0050568db126.jpg","priority":29},{"id":1303472,"apartment_number":"1-92598","photo":"media.itaka.ru\/homeinspb\/images\/objects\/big_e6a1f15f-84d6-f011-aa6e-0050568db126.jpg","priority":30},{"id":1303473,"apartment_number":"1-92598","photo":"media.itaka.ru\/homeinspb\/images\/objects\/big_d9a1f15f-84d6-f011-aa6e-0050568db126.jpg","priority":31},{"id":1303474,"apartment_number":"1-92598","photo":"media.itaka.ru\/homeinspb\/images\/objects\/big_dfa1f15f-84d6-f011-aa6e-0050568db126.jpg","priority":32}]}

Мецлер Ольга

5017 +7 (921) 5555319
5017

5017


3-комнатная квартира 103 м², этаж 14/16

Проспект Ветеранов

г Санкт-Петербург, ш Красносельское (Горелово), д. 54, корп. 3, лит. А

Продается идеальная 3-комнатная квартира для жизни на долгие годы. Не просто квартира, а место силы и счастливых воспоминаний! Почему эта квартира — ваш правильный выбор: 1. Продуманная и честная планировка: Каждая комната — изолированная. Нет бесполезных коридоров, которые «съедают» метры. Это пространство, где комфортно каждому члену семьи: родителям, детям, гостям. 2. Обилие света и воздуха: Квартира трехсторонняя — солнце здесь гость с утра до вечера. Плюс два балкона — для утреннего кофе и вечерних раздумий, для цветов и летних посиделок. 3. Семейная история: Эта квартира хранит тепло и положительную энергетику. Здесь выросли замечательные дети, собирались за большим столом родные, отмечались праздники. Она готова принять новую счастливую историю — вашу. 4. Отличная локация в Красносельском районе: Развитая инфраструктура, парки (Южно-Приморский, Сосновая Поляна), школы, детские сады и поликлиники в шаговой доступности. Отличная транспортная доступность в любую часть города. Идеально для семьи с детьми, кто ценит приватность, свет и пространство. Звоните, чтобы забронировать просмотр и ощутить эту особую атмосферу !

14 100 000 ₽
136 893 ₽/м²
Объект № 1-92519
Специалист по этому объекту:
{"id":"1-92519","object_type":1,"agents_id":10124,"rooms_saled":3,"rooms_total":3,"regions_id":78,"districts_id":"8","station_metro_id":48,"station_rallway":null,"address":"\u0433 \u0421\u0430\u043d\u043a\u0442-\u041f\u0435\u0442\u0435\u0440\u0431\u0443\u0440\u0433, \u0448 \u041a\u0440\u0430\u0441\u043d\u043e\u0441\u0435\u043b\u044c\u0441\u043a\u043e\u0435 (\u0413\u043e\u0440\u0435\u043b\u043e\u0432\u043e), \u0434. 54, \u043a\u043e\u0440\u043f. 3, \u043b\u0438\u0442. \u0410","locality":"\u0433. \u0421\u0430\u043d\u043a\u0442-\u041f\u0435\u0442\u0435\u0440\u0431\u0443\u0440\u0433","price":"14 100 000","price_mkv":"136 893","floor":14,"floors":16,"is_first":0,"is_last":0,"floor_height":null,"space_habitable":62,"space_total":103,"space_rooms":"25+23+14","space_kitchen":14,"type_of_building_id":3,"is_phone":1,"wc":"2\u0441\/\u0443\u0437,","is_balcon":1,"is_lift":1,"hotwater":null,"is_ipoteka":1,"is_exclusive":1,"is_unique":1,"is_fake":0,"is_counter":1,"is_cession":0,"build_year":null,"comments":"\u041f\u0440\u043e\u0434\u0430\u0435\u0442\u0441\u044f \u0438\u0434\u0435\u0430\u043b\u044c\u043d\u0430\u044f 3-\u043a\u043e\u043c\u043d\u0430\u0442\u043d\u0430\u044f \u043a\u0432\u0430\u0440\u0442\u0438\u0440\u0430 \u0434\u043b\u044f \u0436\u0438\u0437\u043d\u0438 \u043d\u0430 \u0434\u043e\u043b\u0433\u0438\u0435 \u0433\u043e\u0434\u044b. \u041d\u0435 \u043f\u0440\u043e\u0441\u0442\u043e \u043a\u0432\u0430\u0440\u0442\u0438\u0440\u0430, \u0430 \u043c\u0435\u0441\u0442\u043e \u0441\u0438\u043b\u044b \u0438 \u0441\u0447\u0430\u0441\u0442\u043b\u0438\u0432\u044b\u0445 \u0432\u043e\u0441\u043f\u043e\u043c\u0438\u043d\u0430\u043d\u0438\u0439! \u041f\u043e\u0447\u0435\u043c\u0443 \u044d\u0442\u0430 \u043a\u0432\u0430\u0440\u0442\u0438\u0440\u0430 \u2014 \u0432\u0430\u0448 \u043f\u0440\u0430\u0432\u0438\u043b\u044c\u043d\u044b\u0439 \u0432\u044b\u0431\u043e\u0440: 1. \u041f\u0440\u043e\u0434\u0443\u043c\u0430\u043d\u043d\u0430\u044f \u0438 \u0447\u0435\u0441\u0442\u043d\u0430\u044f \u043f\u043b\u0430\u043d\u0438\u0440\u043e\u0432\u043a\u0430: \u041a\u0430\u0436\u0434\u0430\u044f \u043a\u043e\u043c\u043d\u0430\u0442\u0430 \u2014 \u0438\u0437\u043e\u043b\u0438\u0440\u043e\u0432\u0430\u043d\u043d\u0430\u044f. \u041d\u0435\u0442 \u0431\u0435\u0441\u043f\u043e\u043b\u0435\u0437\u043d\u044b\u0445 \u043a\u043e\u0440\u0438\u0434\u043e\u0440\u043e\u0432, \u043a\u043e\u0442\u043e\u0440\u044b\u0435 \u00ab\u0441\u044a\u0435\u0434\u0430\u044e\u0442\u00bb \u043c\u0435\u0442\u0440\u044b. \u042d\u0442\u043e \u043f\u0440\u043e\u0441\u0442\u0440\u0430\u043d\u0441\u0442\u0432\u043e, \u0433\u0434\u0435 \u043a\u043e\u043c\u0444\u043e\u0440\u0442\u043d\u043e \u043a\u0430\u0436\u0434\u043e\u043c\u0443 \u0447\u043b\u0435\u043d\u0443 \u0441\u0435\u043c\u044c\u0438: \u0440\u043e\u0434\u0438\u0442\u0435\u043b\u044f\u043c, \u0434\u0435\u0442\u044f\u043c, \u0433\u043e\u0441\u0442\u044f\u043c. 2. \u041e\u0431\u0438\u043b\u0438\u0435 \u0441\u0432\u0435\u0442\u0430 \u0438 \u0432\u043e\u0437\u0434\u0443\u0445\u0430: \u041a\u0432\u0430\u0440\u0442\u0438\u0440\u0430 \u0442\u0440\u0435\u0445\u0441\u0442\u043e\u0440\u043e\u043d\u043d\u044f\u044f \u2014 \u0441\u043e\u043b\u043d\u0446\u0435 \u0437\u0434\u0435\u0441\u044c \u0433\u043e\u0441\u0442\u044c \u0441 \u0443\u0442\u0440\u0430 \u0434\u043e \u0432\u0435\u0447\u0435\u0440\u0430. \u041f\u043b\u044e\u0441 \u0434\u0432\u0430 \u0431\u0430\u043b\u043a\u043e\u043d\u0430 \u2014 \u0434\u043b\u044f \u0443\u0442\u0440\u0435\u043d\u043d\u0435\u0433\u043e \u043a\u043e\u0444\u0435 \u0438 \u0432\u0435\u0447\u0435\u0440\u043d\u0438\u0445 \u0440\u0430\u0437\u0434\u0443\u043c\u0438\u0439, \u0434\u043b\u044f \u0446\u0432\u0435\u0442\u043e\u0432 \u0438 \u043b\u0435\u0442\u043d\u0438\u0445 \u043f\u043e\u0441\u0438\u0434\u0435\u043b\u043e\u043a. 3. \u0421\u0435\u043c\u0435\u0439\u043d\u0430\u044f \u0438\u0441\u0442\u043e\u0440\u0438\u044f: \u042d\u0442\u0430 \u043a\u0432\u0430\u0440\u0442\u0438\u0440\u0430 \u0445\u0440\u0430\u043d\u0438\u0442 \u0442\u0435\u043f\u043b\u043e \u0438 \u043f\u043e\u043b\u043e\u0436\u0438\u0442\u0435\u043b\u044c\u043d\u0443\u044e \u044d\u043d\u0435\u0440\u0433\u0435\u0442\u0438\u043a\u0443. \u0417\u0434\u0435\u0441\u044c \u0432\u044b\u0440\u043e\u0441\u043b\u0438 \u0437\u0430\u043c\u0435\u0447\u0430\u0442\u0435\u043b\u044c\u043d\u044b\u0435 \u0434\u0435\u0442\u0438, \u0441\u043e\u0431\u0438\u0440\u0430\u043b\u0438\u0441\u044c \u0437\u0430 \u0431\u043e\u043b\u044c\u0448\u0438\u043c \u0441\u0442\u043e\u043b\u043e\u043c \u0440\u043e\u0434\u043d\u044b\u0435, \u043e\u0442\u043c\u0435\u0447\u0430\u043b\u0438\u0441\u044c \u043f\u0440\u0430\u0437\u0434\u043d\u0438\u043a\u0438. \u041e\u043d\u0430 \u0433\u043e\u0442\u043e\u0432\u0430 \u043f\u0440\u0438\u043d\u044f\u0442\u044c \u043d\u043e\u0432\u0443\u044e \u0441\u0447\u0430\u0441\u0442\u043b\u0438\u0432\u0443\u044e \u0438\u0441\u0442\u043e\u0440\u0438\u044e \u2014 \u0432\u0430\u0448\u0443. 4. \u041e\u0442\u043b\u0438\u0447\u043d\u0430\u044f \u043b\u043e\u043a\u0430\u0446\u0438\u044f \u0432 \u041a\u0440\u0430\u0441\u043d\u043e\u0441\u0435\u043b\u044c\u0441\u043a\u043e\u043c \u0440\u0430\u0439\u043e\u043d\u0435: \u0420\u0430\u0437\u0432\u0438\u0442\u0430\u044f \u0438\u043d\u0444\u0440\u0430\u0441\u0442\u0440\u0443\u043a\u0442\u0443\u0440\u0430, \u043f\u0430\u0440\u043a\u0438 (\u042e\u0436\u043d\u043e-\u041f\u0440\u0438\u043c\u043e\u0440\u0441\u043a\u0438\u0439, \u0421\u043e\u0441\u043d\u043e\u0432\u0430\u044f \u041f\u043e\u043b\u044f\u043d\u0430), \u0448\u043a\u043e\u043b\u044b, \u0434\u0435\u0442\u0441\u043a\u0438\u0435 \u0441\u0430\u0434\u044b \u0438 \u043f\u043e\u043b\u0438\u043a\u043b\u0438\u043d\u0438\u043a\u0438 \u0432 \u0448\u0430\u0433\u043e\u0432\u043e\u0439 \u0434\u043e\u0441\u0442\u0443\u043f\u043d\u043e\u0441\u0442\u0438. \u041e\u0442\u043b\u0438\u0447\u043d\u0430\u044f \u0442\u0440\u0430\u043d\u0441\u043f\u043e\u0440\u0442\u043d\u0430\u044f \u0434\u043e\u0441\u0442\u0443\u043f\u043d\u043e\u0441\u0442\u044c \u0432 \u043b\u044e\u0431\u0443\u044e \u0447\u0430\u0441\u0442\u044c \u0433\u043e\u0440\u043e\u0434\u0430. \u0418\u0434\u0435\u0430\u043b\u044c\u043d\u043e \u0434\u043b\u044f \u0441\u0435\u043c\u044c\u0438 \u0441 \u0434\u0435\u0442\u044c\u043c\u0438, \u043a\u0442\u043e \u0446\u0435\u043d\u0438\u0442 \u043f\u0440\u0438\u0432\u0430\u0442\u043d\u043e\u0441\u0442\u044c, \u0441\u0432\u0435\u0442 \u0438 \u043f\u0440\u043e\u0441\u0442\u0440\u0430\u043d\u0441\u0442\u0432\u043e. \u0417\u0432\u043e\u043d\u0438\u0442\u0435, \u0447\u0442\u043e\u0431\u044b \u0437\u0430\u0431\u0440\u043e\u043d\u0438\u0440\u043e\u0432\u0430\u0442\u044c \u043f\u0440\u043e\u0441\u043c\u043e\u0442\u0440 \u0438 \u043e\u0449\u0443\u0442\u0438\u0442\u044c \u044d\u0442\u0443 \u043e\u0441\u043e\u0431\u0443\u044e \u0430\u0442\u043c\u043e\u0441\u0444\u0435\u0440\u0443 !","date_update":"24.12.2025","yaCoord0":30.148799,"yaCoord1":59.792029,"is_current":1,"is_sold":0,"is_withdrawn":0,"is_private":0,"sale_date":null,"start_date":"2025-11-27","final_price":null,"created_at":"2025-12-04 19:47:10","updated_at":"2025-12-04 22:19:43","checked_at":"2025-12-04 22:19:43","sum":167,"url":null,"title":"3-\u043a\u043e\u043c\u043d\u0430\u0442\u043d\u0430\u044f \u043a\u0432\u0430\u0440\u0442\u0438\u0440\u0430 103 \u043c\u00b2, \u044d\u0442\u0430\u0436 14\/16","guidename":"3-\u043a\u043e\u043c\u043d\u0430\u0442\u043d\u044b\u0435 \u043a\u0432\u0430\u0440\u0442\u0438\u0440\u044b","phone":{"number":"+7 (812) 740-70-40","link":"+7 (812) 740-70-40"},"agents":[{"id":10124,"url":"elena-timofeeva","F":"\u0422\u0438\u043c\u043e\u0444\u0435\u0435\u0432\u0430","I":"\u0415\u043b\u0435\u043d\u0430","O":"\u0410\u043d\u0430\u0442\u043e\u043b\u044c\u0435\u0432\u043d\u0430","phone":"+7 (812) 740-70-40","email":"TimofeevaEA@itaka.ru","personal_phone":"8-904-513-39-78","personal_email":"TimofeevaEA@itaka.ru","birthday":"1978-11-20","photo_sq":"\/img\/avatar\/lk_1639670680_6dfc238000ea33f750e5174f997d5880.png","photo_cir":"agent_10124_cir.png","photo":null,"online":1,"text":"<p style=\"text-align:justify\">\u0418\u043c\u0435\u044e \u0431\u043e\u043b\u044c\u0448\u043e\u0439 \u043e\u043f\u044b\u0442 \u043f\u043e\r\n\u043f\u043e\u043a\u0443\u043f\u043a\u0435 \u0438 \u043f\u0440\u043e\u0434\u0430\u0436\u0435 \u043e\u0431\u044a\u0435\u043a\u0442\u043e\u0432 \u043d\u0435\u0434\u0432\u0438\u0436\u0438\u043c\u043e\u0441\u0442\u0438. \u0413\u043e\u0442\u043e\u0432\u0430 \u043f\u0440\u043e\u0444\u0435\u0441\u0441\u0438\u043e\u043d\u0430\u043b\u044c\u043d\u043e \u0438 \u043a\u0430\u0447\u0435\u0441\u0442\u0432\u0435\u043d\u043d\u043e\r\n\u043f\u043e\u043c\u043e\u0447\u044c \u0440\u0435\u0448\u0438\u0442\u044c \u0432\u043e\u043f\u0440\u043e\u0441\u044b, \u0441\u0432\u044f\u0437\u0430\u043d\u043d\u044b\u0435 \u0441 \u043f\u0440\u043e\u0434\u0430\u0436\u0435\u0439 \u0438 \u043f\u043e\u043a\u0443\u043f\u043a\u043e\u0439 \u043d\u0435\u0434\u0432\u0438\u0436\u0438\u043c\u043e\u0441\u0442\u0438 \u043d\u0435 \u0442\u043e\u043b\u044c\u043a\u043e \u0432\r\n\u0421\u0430\u043d\u043a\u0442-\u041f\u0435\u0442\u0435\u0440\u0431\u0443\u0440\u0433\u0435, \u043d\u043e \u0438 \u0432 \u041b\u0435\u043d\u0438\u043d\u0433\u0440\u0430\u0434\u0441\u043a\u043e\u0439 \u043e\u0431\u043b\u0430\u0441\u0442\u0438.&nbsp;<\/p>\r\n<p><span style=\"font-style: italic;\" class=\"<img src=\" http:=\"\" homeinspb.ru=\"\" assets=\"\" efdcc0f2=\"\" images=\"\" pixel.gif\"=\"\" title=\"\" rel=\"media5186965223401785\" width=\"150\" height=\"100\" \/>\u042f\u0432\u043b\u044f\u044f\u0441\u044c \u0410\u0413\u0415\u041d\u0422\u041e\u041c\r\n\u043f\u0440\u043e\u0434\u0430\u0432\u0446\u0430, \u0441\u043f\u043e\u0441\u043e\u0431\u0441\u0442\u0432\u0443\u044e \u0432:<\/span><\/p>\r\n<ul type=\"disc\">\r\n <li style=\"\" color:#343434;line-height:15.0pt;background:white;box-sizing:border-box;max-width:100%;position:inherit=\"\" !important\";margin-top:auto;margin-bottom:auto\"=\"\">\u041a\u043e\u043d\u0441\u0443\u043b\u044c\u0442\u0438\u0440\u043e\u0432\u0430\u043d\u0438\u0438 \u043f\u043e \u0441\u0442\u0440\u0430\u0442\u0435\u0433\u0438\u0438\r\n \u043f\u043e\u0437\u0438\u0446\u0438\u043e\u043d\u0438\u0440\u043e\u0432\u0430\u043d\u0438\u044f \u043d\u0435\u0434\u0432\u0438\u0436\u0438\u043c\u043e\u0441\u0442\u0438 \u043d\u0430 \u0441\u043e\u0432\u0440\u0435\u043c\u0435\u043d\u043d\u043e\u043c \u0440\u044b\u043d\u043a\u0435.<\/li>\r\n <li style=\"\" color:#343434;line-height:15.0pt;background:white;box-sizing:border-box;max-width:100%;position:inherit=\"\" !important\";margin-top:auto;margin-bottom:auto\"=\"\">\u041e\u0446\u0435\u043d\u043a\u0435 \u043d\u0435\u0434\u0432\u0438\u0436\u0438\u043c\u043e\u0441\u0442\u0438 \u0434\u043b\u044f \u043f\u0440\u043e\u0434\u0430\u0436\u0438.<\/li>\r\n <li style=\"\" color:#343434;line-height:15.0pt;background:white;box-sizing:border-box;max-width:100%;position:inherit=\"\" !important\";margin-top:auto;margin-bottom:auto\"=\"\">\u041a\u043e\u043d\u0441\u0443\u043b\u044c\u0442\u0438\u0440\u043e\u0432\u0430\u043d\u0438\u0438 \u043e \u0434\u0435\u0439\u0441\u0442\u0432\u0438\u044f\u0445\r\n \u0434\u043b\u044f \u0443\u0432\u0435\u043b\u0438\u0447\u0435\u043d\u0438\u044f \u0441\u0442\u043e\u0438\u043c\u043e\u0441\u0442\u0438 \u043d\u0435\u0434\u0432\u0438\u0436\u0438\u043c\u043e\u0441\u0442\u0438 \u043d\u0430 \u043f\u0440\u0435\u0434\u043f\u0440\u043e\u0434\u0430\u0436\u043d\u043e\u0439 \u0441\u0442\u0430\u0434\u0438\u0438.<\/li>\r\n <li style=\"\" color:#343434;line-height:15.0pt;background:white;box-sizing:border-box;max-width:100%;position:inherit=\"\" !important\";margin-top:auto;margin-bottom:auto\"=\"\">\u0413\u0430\u0440\u0430\u043d\u0442\u0438\u0438 \u0442\u043e\u0433\u043e, \u0447\u0442\u043e \u0440\u0435\u043a\u043b\u0430\u043c\u043d\u044b\u0435\r\n \u043c\u0430\u0442\u0435\u0440\u0438\u0430\u043b\u044b \u0440\u0430\u0441\u043f\u0440\u043e\u0441\u0442\u0440\u0430\u043d\u044f\u044e\u0442\u0441\u044f \u043d\u0430 \u043e\u0441\u043d\u043e\u0432\u043d\u044b\u0445 \u0438\u043d\u0442\u0435\u0440\u043d\u0435\u0442-\u0441\u0430\u0439\u0442\u0430\u0445 \u043e\u0442\u0440\u0430\u0441\u043b\u0438.<\/li>\r\n <li style=\"\" color:#343434;line-height:15.0pt;background:white;box-sizing:border-box;max-width:100%;position:inherit=\"\" !important\";margin-top:auto;margin-bottom:auto\"=\"\">\u041f\u0440\u0435\u0434\u043e\u0441\u0442\u0430\u0432\u043b\u0435\u043d\u0438\u0438 \u0438\u043d\u0444\u043e\u0440\u043c\u0430\u0446\u0438\u0438 \u043f\u043e\r\n \u043f\u043e\u0447\u0442\u0435, \u044d\u043b\u0435\u043a\u0442\u0440\u043e\u043d\u043d\u043e\u0439 \u043f\u043e\u0447\u0442\u0435 \u0438 \u0442\u0435\u043b\u0435\u0444\u043e\u043d\u0443.<\/li>\r\n <li style=\"\" color:#343434;line-height:15.0pt;background:white;box-sizing:border-box;max-width:100%;position:inherit=\"\" !important\";margin-top:auto;margin-bottom:auto\"=\"\">\u041f\u0440\u043e\u0432\u0435\u0440\u043a\u0435 \u043f\u043e\u0442\u0435\u043d\u0446\u0438\u0430\u043b\u044c\u043d\u044b\u0445\r\n \u043f\u043e\u043a\u0443\u043f\u0430\u0442\u0435\u043b\u0435\u0439 \u043d\u0430 \u0441\u0447\u0435\u0442 \u0434\u0435\u0439\u0441\u0442\u0432\u0438\u0442\u0435\u043b\u044c\u043d\u043e\u0439 \u0441\u043f\u043e\u0441\u043e\u0431\u043d\u043e\u0441\u0442\u0438 \u0441\u043e\u0432\u0435\u0440\u0448\u0438\u0442\u044c \u043f\u043e\u043a\u0443\u043f\u043a\u0443.<\/li>\r\n <li style=\"\" color:#343434;line-height:15.0pt;background:white;box-sizing:border-box;max-width:100%;position:inherit=\"\" !important\";margin-top:auto;margin-bottom:auto\"=\"\">\u041e\u0440\u0433\u0430\u043d\u0438\u0437\u0430\u0446\u0438\u0438 \u043f\u0440\u043e\u0441\u043c\u043e\u0442\u0440\u043e\u0432\r\n \u043d\u0435\u0434\u0432\u0438\u0436\u0438\u043c\u043e\u0441\u0442\u0438 \u0434\u043b\u044f \u043f\u043e\u0442\u0435\u043d\u0446\u0438\u0430\u043b\u044c\u043d\u044b\u0445 \u043f\u043e\u043a\u0443\u043f\u0430\u0442\u0435\u043b\u0435\u0439.<\/li>\r\n <li style=\"\" color:#343434;line-height:15.0pt;background:white;box-sizing:border-box;max-width:100%;position:inherit=\"\" !important\";margin-top:auto;margin-bottom:auto\"=\"\">\u041f\u043e\u0434\u0434\u0435\u0440\u0436\u0438\u0432\u0430\u043d\u0438\u0438 \u043e\u0442\u043d\u043e\u0448\u0435\u043d\u0438\u0439 \u0441\r\n \u0430\u0433\u0435\u043d\u0442\u0430\u043c\u0438 \u043f\u043e\u043a\u0443\u043f\u0430\u0442\u0435\u043b\u0435\u0439.<\/li>\r\n <li style=\"\" color:#343434;line-height:15.0pt;background:white;box-sizing:border-box;max-width:100%;position:inherit=\"\" !important\";margin-top:auto;margin-bottom:auto\"=\"\">\u0412\u0435\u0434\u0435\u043d\u0438\u0438 \u043f\u0435\u0440\u0435\u0433\u043e\u0432\u043e\u0440\u043e\u0432 \u043f\u043e \u0434\u043e\u0433\u043e\u0432\u043e\u0440\u0443\r\n \u043a\u0443\u043f\u043b\u0438-\u043f\u0440\u043e\u0434\u0430\u0436\u0438 \u0441 \u043f\u043e\u043a\u0443\u043f\u0430\u0442\u0435\u043b\u0435\u043c.<\/li>\r\n<\/ul>\r\n<p><span style=\"font-style: italic;\" class=\"<img src=\" http:=\"\" homeinspb.ru=\"\" assets=\"\" efdcc0f2=\"\" images=\"\" pixel.gif\"=\"\" title=\"\" rel=\"media7473517383914441\" width=\"150\" height=\"100\" \/>\u042f\u0432\u043b\u044f\u044f\u0441\u044c \u0410\u0413\u0415\u041d\u0422\u041e\u041c \u043f\u043e\u043a\u0443\u043f\u0430\u0442\u0435\u043b\u044f,\r\n\u043f\u043e\u043c\u043e\u0433\u0430\u044e \u0432 \u0442\u043e\u043c, \u0447\u0442\u043e:<\/span><\/p>\r\n<ul type=\"disc\">\r\n <li style=\"\" color:#343434;line-height:15.0pt;background:white;box-sizing:border-box;max-width:100%;position:inherit=\"\" !important\";margin-top:auto;margin-bottom:auto\"=\"\">\u041a\u043e\u043d\u0441\u0443\u043b\u044c\u0442\u0438\u0440\u0443\u044e \u043e \u0442\u043e\u043c, \u0447\u0442\u043e \u043a\u043b\u0438\u0435\u043d\u0442\r\n \u043c\u043e\u0436\u0435\u0442 \u043f\u043e\u043b\u0443\u0447\u0438\u0442\u044c \u043d\u0430 \u0440\u044b\u043d\u043a\u0435, \u0443\u0447\u0438\u0442\u044b\u0432\u0430\u044f \u0435\u0433\u043e \u0444\u0438\u043d\u0430\u043d\u0441\u043e\u0432\u044b\u0439 \u043f\u0440\u043e\u0444\u0438\u043b\u044c.<\/li>\r\n <li style=\"\" color:#343434;line-height:15.0pt;background:white;box-sizing:border-box;max-width:100%;position:inherit=\"\" !important\";margin-top:auto;margin-bottom:auto\"=\"\">\u041a\u043e\u043d\u0441\u0443\u043b\u044c\u0442\u0438\u0440\u0443\u044e \u043f\u043e \u043f\u043e\u0434\u0431\u043e\u0440\u0443\r\n \u043e\u043f\u0440\u0435\u0434\u0435\u043b\u0435\u043d\u043d\u043e\u0433\u043e \u0442\u0438\u043f\u0430 \u043d\u0435\u0434\u0432\u0438\u0436\u0438\u043c\u043e\u0441\u0442\u0438, \u043a\u043e\u0442\u043e\u0440\u044b\u0439 \u043d\u0430\u0438\u043b\u0443\u0447\u0448\u0438\u043c \u043e\u0431\u0440\u0430\u0437\u043e\u043c \u0431\u0443\u0434\u0435\u0442 \u043e\u0442\u0432\u0435\u0447\u0430\u0442\u044c\r\n \u0442\u0440\u0435\u0431\u043e\u0432\u0430\u043d\u0438\u044f\u043c \u043f\u043e\u043a\u0443\u043f\u0430\u0442\u0435\u043b\u044f.<\/li>\r\n <li style=\"\" color:#343434;line-height:15.0pt;background:white;box-sizing:border-box;max-width:100%;position:inherit=\"\" !important\";margin-top:auto;margin-bottom:auto\"=\"\">\u041a\u043e\u043d\u0441\u0443\u043b\u044c\u0442\u0438\u0440\u0443\u044e \u043f\u043e\u043a\u0443\u043f\u0430\u0442\u0435\u043b\u044f \u043e\r\n \u0432\u044b\u0433\u043e\u0434\u0435 \u043a\u043e\u043d\u043a\u0440\u0435\u0442\u043d\u043e\u0433\u043e \u043e\u0431\u044a\u0435\u043a\u0442\u0430 \u0434\u043b\u044f \u0438\u043d\u0432\u0435\u0441\u0442\u0438\u0446\u0438\u0439, \u0441\u043e\u043e\u0442\u043d\u043e\u0441\u044f \u0440\u0438\u0441\u043a\u0438 \u043a\u0430\u043a \u0441\u0430\u043c\u043e\u0439\r\n \u0441\u043e\u0431\u0441\u0442\u0432\u0435\u043d\u043d\u043e\u0441\u0442\u0438, \u0442\u0430\u043a \u0438 \u043d\u0430 \u0440\u044b\u043d\u043e\u0447\u043d\u043e\u043c \u0443\u0440\u043e\u0432\u043d\u0435.<\/li>\r\n <li style=\"\" color:#343434;line-height:15.0pt;background:white;box-sizing:border-box;max-width:100%;position:inherit=\"\" !important\";margin-top:auto;margin-bottom:auto\"=\"\">\u0418\u0441\u0441\u043b\u0435\u0434\u0443\u044e \u043f\u0440\u0435\u0434\u043b\u043e\u0436\u0435\u043d\u0438\u044f \u043d\u0430 \u0440\u044b\u043d\u043a\u0435,\r\n \u043a\u043e\u0442\u043e\u0440\u044b\u0435 \u0441\u043e\u043e\u0442\u0432\u0435\u0442\u0441\u0442\u0432\u0443\u044e\u0442 \u043f\u0440\u0435\u0434\u043f\u043e\u0447\u0442\u0435\u043d\u0438\u044f\u043c \u043a\u043b\u0438\u0435\u043d\u0442\u0430 \u0438 \u043a\u043e\u043d\u0441\u0443\u043b\u044c\u0442\u0438\u0440\u0443\u044e \u043f\u043e \u0432\u043e\u043f\u0440\u043e\u0441\u0430\u043c \u0446\u0435\u043d\r\n \u043d\u0430 \u0442\u0430\u043a\u043e\u0435 \u0438\u043c\u0443\u0449\u0435\u0441\u0442\u0432\u043e.<\/li>\r\n <li style=\"\" color:#343434;line-height:15.0pt;background:white;box-sizing:border-box;max-width:100%;position:inherit=\"\" !important\";margin-top:auto;margin-bottom:auto\"=\"\">\u041f\u0440\u043e\u0432\u043e\u0436\u0443 \u043f\u043e\u0438\u0441\u043a \u043f\u0440\u0435\u0434\u043b\u043e\u0436\u0435\u043d\u0438\u0439,\r\n \u043a\u043e\u0442\u043e\u0440\u044b\u0435 \u043d\u0435 \u043f\u0440\u0435\u0434\u0441\u0442\u0430\u0432\u043b\u0435\u043d\u044b \u0432 \u043d\u0430\u0441\u0442\u043e\u044f\u0449\u0435\u0435 \u0432\u0440\u0435\u043c\u044f \u043d\u0430 \u0440\u044b\u043d\u043a\u0435, \u0434\u043b\u044f \u0432\u044b\u044f\u0432\u043b\u0435\u043d\u0438\u044f \u0431\u0443\u0434\u0443\u0449\u0435\u0439 \u043f\u0440\u043e\u0434\u0430\u0436\u0438.<\/li>\r\n <li style=\"\" color:#343434;line-height:15.0pt;background:white;box-sizing:border-box;max-width:100%;position:inherit=\"\" !important\";margin-top:auto;margin-bottom:auto\"=\"\">\u041f\u0440\u0435\u0434\u043e\u0441\u0442\u0430\u0432\u043b\u044f\u044e \u0430\u043d\u0430\u043b\u0438\u0437\r\n \u0438\u043d\u0432\u0435\u0441\u0442\u0438\u0446\u0438\u043e\u043d\u043d\u044b\u0445 \u0432\u043e\u0437\u043c\u043e\u0436\u043d\u043e\u0441\u0442\u0435\u0439.<\/li>\r\n <li style=\"\" color:#343434;line-height:15.0pt;background:white;box-sizing:border-box;max-width:100%;position:inherit=\"\" !important\";margin-top:auto;margin-bottom:auto\"=\"\">\u041f\u0440\u0435\u0434\u043e\u0441\u0442\u0430\u0432\u043b\u044f\u044e \u0440\u0435\u043a\u043e\u043c\u0435\u043d\u0434\u0430\u0446\u0438\u0438\r\n \u043a\u043b\u0438\u0435\u043d\u0442\u0430\u043c \u043e \u0442\u043e\u043c, \u043a\u0443\u0434\u0430 \u0438\u043d\u0432\u0435\u0441\u0442\u0438\u0440\u043e\u0432\u0430\u0442\u044c \u0432 \u0446\u0435\u043b\u044f\u0445 \u0441\u0432\u0435\u0434\u0435\u043d\u0438\u044f \u043a \u043c\u0438\u043d\u0438\u043c\u0443\u043c\u0443 \u0440\u0438\u0441\u043a\u043e\u0432 \u0438\r\n \u043f\u043e\u043b\u0443\u0447\u0435\u043d\u0438\u044f \u043c\u0430\u043a\u0441\u0438\u043c\u0430\u043b\u044c\u043d\u043e\u0439 \u043e\u0442\u0434\u0430\u0447\u0438.<\/li>\r\n <li style=\"\" color:#343434;line-height:15.0pt;background:white;box-sizing:border-box;max-width:100%;position:inherit=\"\" !important\";margin-top:auto;margin-bottom:auto\"=\"\">\u041e\u0441\u0443\u0449\u0435\u0441\u0442\u0432\u043b\u044f\u044e \u043f\u0440\u043e\u0432\u0435\u0440\u043a\u0443 \u0432\u044b\u0431\u0440\u0430\u043d\u043d\u043e\u0439\r\n \u043d\u0435\u0434\u0432\u0438\u0436\u0438\u043c\u043e\u0441\u0442\u0438 \u043f\u043e\u043a\u0443\u043f\u0430\u0442\u0435\u043b\u0435\u043c \u0441\u043e\u0432\u043c\u0435\u0441\u0442\u043d\u043e \u0441 \u044e\u0440\u0438\u0441\u0442\u0430\u043c\u0438 \u043a\u043e\u043c\u043f\u0430\u043d\u0438\u0438 \u00ab\u0418\u0442\u0430\u043a\u0430\u00bb<\/li>\r\n <li style=\"\" color:#343434;line-height:15.0pt;background:white;box-sizing:border-box;max-width:100%;position:inherit=\"\" !important\";margin-top:auto;margin-bottom:auto\"=\"\">\u041f\u0440\u043e\u0432\u043e\u0436\u0443 \u044e\u0440\u0438\u0434\u0438\u0447\u0435\u0441\u043a\u0438 \u0447\u0438\u0441\u0442\u0443\u044e\r\n \u0441\u0434\u0435\u043b\u043a\u0443 \u043b\u044e\u0431\u043e\u0439 \u0441\u043b\u043e\u0436\u043d\u043e\u0441\u0442\u0438.<\/li>\r\n<\/ul>\r\n<p style=\"color:#000000;text-align:justify\">\u042f\u0432\u043b\u044f\u044f\u0441\u044c \u043f\u0440\u043e\u0444\u0435\u0441\u0441\u0438\u043e\u043d\u0430\u043b\u043e\u043c \u0441\u0432\u043e\u0435\u0433\u043e \u0434\u0435\u043b\u0430, \u043f\u043e\u043c\u0438\u043c\u043e \u043f\u0440\u043e\u0447\u0435\u0433\u043e, \u0438\u043c\u0435\u044e \u0441\u043b\u0435\u0434\u0443\u044e\u0449\u0438\u0435\r\n\u043e\u0431\u044f\u0437\u0430\u043d\u043d\u043e\u0441\u0442\u0438 \u043f\u0435\u0440\u0435\u0434 \u0441\u0432\u043e\u0438\u043c\u0438 \u043a\u043b\u0438\u0435\u043d\u0442\u0430\u043c\u0438: \u0434\u043e\u0431\u0440\u043e\u0441\u043e\u0432\u0435\u0441\u0442\u043d\u043e\u0441\u0442\u044c, \u043b\u043e\u044f\u043b\u044c\u043d\u043e\u0441\u0442\u044c,\r\n\u043a\u043e\u043d\u0444\u0438\u0434\u0435\u043d\u0446\u0438\u0430\u043b\u044c\u043d\u043e\u0441\u0442\u044c, \u043f\u043e\u043b\u043d\u043e\u0435 \u0440\u0430\u0441\u043a\u0440\u044b\u0442\u0438\u0435 \u0438\u043d\u0444\u043e\u0440\u043c\u0430\u0446\u0438\u0438 \u0438 \u043e\u0442\u0432\u0435\u0442\u0441\u0442\u0432\u0435\u043d\u043d\u043e\u0441\u0442\u044c.&nbsp;<\/p><p style=\"color:#000000;text-align:justify\">\u042f\u0432\u043b\u044f\u044e\u0441\u044c \u041c\u041e\u0411\u0418\u041b\u042c\u041d\u042b\u041c \u0410\u0413\u0415\u041d\u0422\u041e\u041c! \u0418\u043d\u0442\u0435\u0440\u0435\u0441\u043d\u044b\u0435 \u043d\u043e\u0432\u043e\u0441\u0442\u0438 \u0438 \u0441\u043e\u0432\u0435\u0442\u044b \u043c\u043e\u0436\u043d\u043e \u043f\u043e\u043b\u0443\u0447\u0438\u0442\u044c \u043d\u0430 \u043c\u043e\u0435\u0439 \u0441\u0442\u0440\u0430\u043d\u0438\u0447\u043a\u0438 Instagram:&nbsp;&nbsp;&nbsp;<a href=\"https:\/\/www.instagram.com\/p\/BZ-3knTnIq6\/\" target=\"_blank\" rel=\"noopener\">https:\/\/www.instagram.com\/p\/BZ-3knTnIq6\/<\/a> <\/p>","oadm":0,"gender":0,"shows":1,"selfemployed":0,"individual":1,"in_state":0,"in_office":0,"site_post":"","is_fired":0,"direct_submission":0,"direct_submission_id":1,"mim":13434,"change":1,"is_active":1,"noindex":0,"must_index":1,"jivo":0,"basic_office_id":"000000013","precinct":0,"slaves_notifications":1,"is_blocked":0,"overrides":{"photo_sq":"lk_1639670680_6dfc238000ea33f750e5174f997d5880.png","photo_sq_uin":"lk_1639670680_6dfc238000ea33f750e5174f997d5880.png","about_agent":"<p><span class=\"text-secondary\">\u0420\u0430\u0431\u043e\u0442\u0430\u044e \u0432 \u0410\u041d \"\u0418\u0442\u0430\u043a\u0430\" \u0441 2013 \u0433\u043e\u0434\u0430, \u043e\u0442 \u0441\u0442\u0430\u0436\u0435\u0440\u0430 \u0434\u043e \u043c\u0430\u0441\u0442\u0435\u0440\u0430-\u0430\u0433\u0435\u043d\u0442\u0430.&nbsp;<\/span><\/p><p><span class=\"text-secondary\">\u0418\u043c\u0435\u044e 3 \u0432\u044b\u0441\u0448\u0438\u0445 \u043e\u0431\u0440\u0430\u0437\u043e\u0432\u0430\u043d\u0438\u044f. \u041c\u043e\u0438 \u043a\u043b\u0438\u0435\u043d\u0442\u044b - \u0434\u043e\u0432\u043e\u043b\u044c\u043d\u044b\u0435 \u043a\u043b\u0438\u0435\u043d\u0442\u044b! \u041f\u043e\u0434\u0440\u043e\u0431\u043d\u043e \u043f\u0440\u043e \u0440\u0430\u0431\u043e\u0442\u0443 \u043d\u0430 \u043c\u043e\u0435\u0439 \u0441\u0442\u0440\u0430\u043d\u0438\u0446\u0435 \u0418\u043d\u0441\u0442\u0430\u0433\u0440\u0430\u043c.<\/span><\/p><p><span class=\"text-secondary\"><br><\/span><\/p>","about_agent_uin":"p>","vk":"https:\/\/vk.com\/id495092140","vk_uin":"id495092140","video":"https:\/\/youtu.be\/45vvcr3zBzw","video_uin":"45vvcr3zBzw"},"wp":false,"phone_f":"78127407040","office":{"id":"000000013","url":"ul-malaya-balkanskaya-d-26","name":"\u0443\u043b. \u041c\u0430\u043b\u0430\u044f \u0411\u0430\u043b\u043a\u0430\u043d\u0441\u043a\u0430\u044f, \u0434. 26","adress":"\u0433. \u0421\u0430\u043d\u043a\u0442-\u041f\u0435\u0442\u0435\u0440\u0431\u0443\u0440\u0433, \u0424\u0440\u0443\u043d\u0437\u0435\u043d\u0441\u043a\u0438\u0439 \u0440-\u043d, \u0443\u043b. \u041c\u0430\u043b\u0430\u044f \u0411\u0430\u043b\u043a\u0430\u043d\u0441\u043a\u0430\u044f, \u0434. 26","coords":"59.829442,30.386079","pano_coords":"59.8298972865986,30.384474933","pano_direction":"44.60707084120078,1.1631715886855591","pano_span":"58.033400647822184,30.320036290824245","email":"kup4ino@itaka.ru","phone":"88123477731","metro_stations_id":9,"region_id":78,"district_id":null,"coords_metro":null,"coords_top":null,"coords_left":null,"spbzn_coords_top":null,"spbzn_coords_left":null,"change":1,"td_id":7,"order":70,"deleted_at":null,"SuccessOverrides":[{"id":6887,"model":"Offices","target_id":0,"target_id_str":"000000013","field":"order","value":"129,5017,4141,94,255,11524,9127,5779,570,7832,10411,8923,10124,14723,12440,10827,11255,13615,14933,13616,13397,11863,702,10547,2879,3805,10032,11151,663,15756,10131,13269,284,12585,13651,2234","is_current":0,"is_moderated_adm":1,"is_moderated_tech":1,"is_selected":0,"creator_id":440,"moderator_adm_id":440,"moderator_tech_id":440,"adm_reason":null,"tech_reason":null,"created_at":"2025-09-10T08:59:44.000000Z","updated_at":"2025-09-10T08:59:44.000000Z"},{"id":6886,"model":"Offices","target_id":0,"target_id_str":"000000013","field":"add_agent_id","value":"9557","is_current":0,"is_moderated_adm":1,"is_moderated_tech":1,"is_selected":0,"creator_id":440,"moderator_adm_id":440,"moderator_tech_id":440,"adm_reason":null,"tech_reason":null,"created_at":"2025-09-10T08:59:44.000000Z","updated_at":"2025-09-10T08:59:44.000000Z"},{"id":6885,"model":"Offices","target_id":0,"target_id_str":"000000013","field":"schedule","value":"\u041f\u041d-\u041f\u0422: 10.00-20.00<br \/>\r\n\u0421\u0411-\u0412\u0421: 11.00-18.00","is_current":0,"is_moderated_adm":1,"is_moderated_tech":1,"is_selected":0,"creator_id":440,"moderator_adm_id":440,"moderator_tech_id":440,"adm_reason":null,"tech_reason":null,"created_at":"2025-09-10T08:59:44.000000Z","updated_at":"2025-09-10T08:59:44.000000Z"}],"Hours":null},"Mimfio":{"id":13434,"url":"nataliya-ershova","F":"\u0415\u0440\u0448\u043e\u0432\u0430","I":"\u041d\u0430\u0442\u0430\u043b\u0438\u044f","O":"\u0412\u0430\u043b\u0435\u043d\u0442\u0438\u043d\u043e\u0432\u043d\u0430","phone":"89312042310","email":"ErshovaNV@itaka.ru","personal_phone":"","personal_email":"","birthday":null,"photo_sq":null,"photo_cir":null,"photo":null,"online":0,"text":null,"oadm":1,"gender":null,"shows":1,"selfemployed":0,"individual":0,"in_state":0,"in_office":0,"site_post":"","is_fired":0,"direct_submission":1,"direct_submission_id":11389,"mim":null,"change":1,"is_active":1,"noindex":1,"must_index":1,"jivo":1,"basic_office_id":null,"precinct":0,"slaves_notifications":1,"is_blocked":0,"Mimfio":false},"success_overrides":[{"id":2164,"model":"Agents","target_id":10124,"target_id_str":null,"field":"photo_sq","value":"lk_1639670680_6dfc238000ea33f750e5174f997d5880.png","is_current":0,"is_moderated_adm":1,"is_moderated_tech":1,"is_selected":0,"creator_id":693,"moderator_adm_id":440,"moderator_tech_id":440,"adm_reason":null,"tech_reason":null,"created_at":"2021-12-16T19:04:40.000000Z","updated_at":"2021-12-17T12:00:24.000000Z"},{"id":2165,"model":"Agents","target_id":10124,"target_id_str":null,"field":"about_agent","value":"<p><span class=\"text-secondary\">\u0420\u0430\u0431\u043e\u0442\u0430\u044e \u0432 \u0410\u041d \"\u0418\u0442\u0430\u043a\u0430\" \u0441 2013 \u0433\u043e\u0434\u0430, \u043e\u0442 \u0441\u0442\u0430\u0436\u0435\u0440\u0430 \u0434\u043e \u043c\u0430\u0441\u0442\u0435\u0440\u0430-\u0430\u0433\u0435\u043d\u0442\u0430.&nbsp;<\/span><\/p><p><span class=\"text-secondary\">\u0418\u043c\u0435\u044e 3 \u0432\u044b\u0441\u0448\u0438\u0445 \u043e\u0431\u0440\u0430\u0437\u043e\u0432\u0430\u043d\u0438\u044f. \u041c\u043e\u0438 \u043a\u043b\u0438\u0435\u043d\u0442\u044b - \u0434\u043e\u0432\u043e\u043b\u044c\u043d\u044b\u0435 \u043a\u043b\u0438\u0435\u043d\u0442\u044b! \u041f\u043e\u0434\u0440\u043e\u0431\u043d\u043e \u043f\u0440\u043e \u0440\u0430\u0431\u043e\u0442\u0443 \u043d\u0430 \u043c\u043e\u0435\u0439 \u0441\u0442\u0440\u0430\u043d\u0438\u0446\u0435 \u0418\u043d\u0441\u0442\u0430\u0433\u0440\u0430\u043c.<\/span><\/p><p><span class=\"text-secondary\"><br><\/span><\/p>","is_current":0,"is_moderated_adm":1,"is_moderated_tech":1,"is_selected":0,"creator_id":693,"moderator_adm_id":440,"moderator_tech_id":440,"adm_reason":null,"tech_reason":null,"created_at":"2021-12-16T19:10:29.000000Z","updated_at":"2021-12-17T11:59:22.000000Z"},{"id":2167,"model":"Agents","target_id":10124,"target_id_str":null,"field":"vk","value":"https:\/\/vk.com\/id495092140","is_current":0,"is_moderated_adm":1,"is_moderated_tech":1,"is_selected":0,"creator_id":693,"moderator_adm_id":440,"moderator_tech_id":440,"adm_reason":null,"tech_reason":null,"created_at":"2021-12-16T19:13:48.000000Z","updated_at":"2021-12-17T11:59:54.000000Z"},{"id":5123,"model":"Agents","target_id":10124,"target_id_str":null,"field":"video","value":"https:\/\/youtu.be\/45vvcr3zBzw","is_current":0,"is_moderated_adm":1,"is_moderated_tech":1,"is_selected":0,"creator_id":440,"moderator_adm_id":440,"moderator_tech_id":440,"adm_reason":null,"tech_reason":null,"created_at":"2023-11-16T10:03:11.000000Z","updated_at":"2023-11-16T10:03:15.000000Z"}]},{"id":10124,"url":"elena-timofeeva","F":"\u0422\u0438\u043c\u043e\u0444\u0435\u0435\u0432\u0430","I":"\u0415\u043b\u0435\u043d\u0430","O":"\u0410\u043d\u0430\u0442\u043e\u043b\u044c\u0435\u0432\u043d\u0430","phone":"+7 (812) 740-70-40","email":"TimofeevaEA@itaka.ru","personal_phone":"8-904-513-39-78","personal_email":"TimofeevaEA@itaka.ru","birthday":"1978-11-20","photo_sq":"\/img\/avatar\/lk_1639670680_6dfc238000ea33f750e5174f997d5880.png","photo_cir":"agent_10124_cir.png","photo":null,"online":1,"text":"<p style=\"text-align:justify\">\u0418\u043c\u0435\u044e \u0431\u043e\u043b\u044c\u0448\u043e\u0439 \u043e\u043f\u044b\u0442 \u043f\u043e\r\n\u043f\u043e\u043a\u0443\u043f\u043a\u0435 \u0438 \u043f\u0440\u043e\u0434\u0430\u0436\u0435 \u043e\u0431\u044a\u0435\u043a\u0442\u043e\u0432 \u043d\u0435\u0434\u0432\u0438\u0436\u0438\u043c\u043e\u0441\u0442\u0438. \u0413\u043e\u0442\u043e\u0432\u0430 \u043f\u0440\u043e\u0444\u0435\u0441\u0441\u0438\u043e\u043d\u0430\u043b\u044c\u043d\u043e \u0438 \u043a\u0430\u0447\u0435\u0441\u0442\u0432\u0435\u043d\u043d\u043e\r\n\u043f\u043e\u043c\u043e\u0447\u044c \u0440\u0435\u0448\u0438\u0442\u044c \u0432\u043e\u043f\u0440\u043e\u0441\u044b, \u0441\u0432\u044f\u0437\u0430\u043d\u043d\u044b\u0435 \u0441 \u043f\u0440\u043e\u0434\u0430\u0436\u0435\u0439 \u0438 \u043f\u043e\u043a\u0443\u043f\u043a\u043e\u0439 \u043d\u0435\u0434\u0432\u0438\u0436\u0438\u043c\u043e\u0441\u0442\u0438 \u043d\u0435 \u0442\u043e\u043b\u044c\u043a\u043e \u0432\r\n\u0421\u0430\u043d\u043a\u0442-\u041f\u0435\u0442\u0435\u0440\u0431\u0443\u0440\u0433\u0435, \u043d\u043e \u0438 \u0432 \u041b\u0435\u043d\u0438\u043d\u0433\u0440\u0430\u0434\u0441\u043a\u043e\u0439 \u043e\u0431\u043b\u0430\u0441\u0442\u0438.&nbsp;<\/p>\r\n<p><span style=\"font-style: italic;\" class=\"<img src=\" http:=\"\" homeinspb.ru=\"\" assets=\"\" efdcc0f2=\"\" images=\"\" pixel.gif\"=\"\" title=\"\" rel=\"media5186965223401785\" width=\"150\" height=\"100\" \/>\u042f\u0432\u043b\u044f\u044f\u0441\u044c \u0410\u0413\u0415\u041d\u0422\u041e\u041c\r\n\u043f\u0440\u043e\u0434\u0430\u0432\u0446\u0430, \u0441\u043f\u043e\u0441\u043e\u0431\u0441\u0442\u0432\u0443\u044e \u0432:<\/span><\/p>\r\n<ul type=\"disc\">\r\n <li style=\"\" color:#343434;line-height:15.0pt;background:white;box-sizing:border-box;max-width:100%;position:inherit=\"\" !important\";margin-top:auto;margin-bottom:auto\"=\"\">\u041a\u043e\u043d\u0441\u0443\u043b\u044c\u0442\u0438\u0440\u043e\u0432\u0430\u043d\u0438\u0438 \u043f\u043e \u0441\u0442\u0440\u0430\u0442\u0435\u0433\u0438\u0438\r\n \u043f\u043e\u0437\u0438\u0446\u0438\u043e\u043d\u0438\u0440\u043e\u0432\u0430\u043d\u0438\u044f \u043d\u0435\u0434\u0432\u0438\u0436\u0438\u043c\u043e\u0441\u0442\u0438 \u043d\u0430 \u0441\u043e\u0432\u0440\u0435\u043c\u0435\u043d\u043d\u043e\u043c \u0440\u044b\u043d\u043a\u0435.<\/li>\r\n <li style=\"\" color:#343434;line-height:15.0pt;background:white;box-sizing:border-box;max-width:100%;position:inherit=\"\" !important\";margin-top:auto;margin-bottom:auto\"=\"\">\u041e\u0446\u0435\u043d\u043a\u0435 \u043d\u0435\u0434\u0432\u0438\u0436\u0438\u043c\u043e\u0441\u0442\u0438 \u0434\u043b\u044f \u043f\u0440\u043e\u0434\u0430\u0436\u0438.<\/li>\r\n <li style=\"\" color:#343434;line-height:15.0pt;background:white;box-sizing:border-box;max-width:100%;position:inherit=\"\" !important\";margin-top:auto;margin-bottom:auto\"=\"\">\u041a\u043e\u043d\u0441\u0443\u043b\u044c\u0442\u0438\u0440\u043e\u0432\u0430\u043d\u0438\u0438 \u043e \u0434\u0435\u0439\u0441\u0442\u0432\u0438\u044f\u0445\r\n \u0434\u043b\u044f \u0443\u0432\u0435\u043b\u0438\u0447\u0435\u043d\u0438\u044f \u0441\u0442\u043e\u0438\u043c\u043e\u0441\u0442\u0438 \u043d\u0435\u0434\u0432\u0438\u0436\u0438\u043c\u043e\u0441\u0442\u0438 \u043d\u0430 \u043f\u0440\u0435\u0434\u043f\u0440\u043e\u0434\u0430\u0436\u043d\u043e\u0439 \u0441\u0442\u0430\u0434\u0438\u0438.<\/li>\r\n <li style=\"\" color:#343434;line-height:15.0pt;background:white;box-sizing:border-box;max-width:100%;position:inherit=\"\" !important\";margin-top:auto;margin-bottom:auto\"=\"\">\u0413\u0430\u0440\u0430\u043d\u0442\u0438\u0438 \u0442\u043e\u0433\u043e, \u0447\u0442\u043e \u0440\u0435\u043a\u043b\u0430\u043c\u043d\u044b\u0435\r\n \u043c\u0430\u0442\u0435\u0440\u0438\u0430\u043b\u044b \u0440\u0430\u0441\u043f\u0440\u043e\u0441\u0442\u0440\u0430\u043d\u044f\u044e\u0442\u0441\u044f \u043d\u0430 \u043e\u0441\u043d\u043e\u0432\u043d\u044b\u0445 \u0438\u043d\u0442\u0435\u0440\u043d\u0435\u0442-\u0441\u0430\u0439\u0442\u0430\u0445 \u043e\u0442\u0440\u0430\u0441\u043b\u0438.<\/li>\r\n <li style=\"\" color:#343434;line-height:15.0pt;background:white;box-sizing:border-box;max-width:100%;position:inherit=\"\" !important\";margin-top:auto;margin-bottom:auto\"=\"\">\u041f\u0440\u0435\u0434\u043e\u0441\u0442\u0430\u0432\u043b\u0435\u043d\u0438\u0438 \u0438\u043d\u0444\u043e\u0440\u043c\u0430\u0446\u0438\u0438 \u043f\u043e\r\n \u043f\u043e\u0447\u0442\u0435, \u044d\u043b\u0435\u043a\u0442\u0440\u043e\u043d\u043d\u043e\u0439 \u043f\u043e\u0447\u0442\u0435 \u0438 \u0442\u0435\u043b\u0435\u0444\u043e\u043d\u0443.<\/li>\r\n <li style=\"\" color:#343434;line-height:15.0pt;background:white;box-sizing:border-box;max-width:100%;position:inherit=\"\" !important\";margin-top:auto;margin-bottom:auto\"=\"\">\u041f\u0440\u043e\u0432\u0435\u0440\u043a\u0435 \u043f\u043e\u0442\u0435\u043d\u0446\u0438\u0430\u043b\u044c\u043d\u044b\u0445\r\n \u043f\u043e\u043a\u0443\u043f\u0430\u0442\u0435\u043b\u0435\u0439 \u043d\u0430 \u0441\u0447\u0435\u0442 \u0434\u0435\u0439\u0441\u0442\u0432\u0438\u0442\u0435\u043b\u044c\u043d\u043e\u0439 \u0441\u043f\u043e\u0441\u043e\u0431\u043d\u043e\u0441\u0442\u0438 \u0441\u043e\u0432\u0435\u0440\u0448\u0438\u0442\u044c \u043f\u043e\u043a\u0443\u043f\u043a\u0443.<\/li>\r\n <li style=\"\" color:#343434;line-height:15.0pt;background:white;box-sizing:border-box;max-width:100%;position:inherit=\"\" !important\";margin-top:auto;margin-bottom:auto\"=\"\">\u041e\u0440\u0433\u0430\u043d\u0438\u0437\u0430\u0446\u0438\u0438 \u043f\u0440\u043e\u0441\u043c\u043e\u0442\u0440\u043e\u0432\r\n \u043d\u0435\u0434\u0432\u0438\u0436\u0438\u043c\u043e\u0441\u0442\u0438 \u0434\u043b\u044f \u043f\u043e\u0442\u0435\u043d\u0446\u0438\u0430\u043b\u044c\u043d\u044b\u0445 \u043f\u043e\u043a\u0443\u043f\u0430\u0442\u0435\u043b\u0435\u0439.<\/li>\r\n <li style=\"\" color:#343434;line-height:15.0pt;background:white;box-sizing:border-box;max-width:100%;position:inherit=\"\" !important\";margin-top:auto;margin-bottom:auto\"=\"\">\u041f\u043e\u0434\u0434\u0435\u0440\u0436\u0438\u0432\u0430\u043d\u0438\u0438 \u043e\u0442\u043d\u043e\u0448\u0435\u043d\u0438\u0439 \u0441\r\n \u0430\u0433\u0435\u043d\u0442\u0430\u043c\u0438 \u043f\u043e\u043a\u0443\u043f\u0430\u0442\u0435\u043b\u0435\u0439.<\/li>\r\n <li style=\"\" color:#343434;line-height:15.0pt;background:white;box-sizing:border-box;max-width:100%;position:inherit=\"\" !important\";margin-top:auto;margin-bottom:auto\"=\"\">\u0412\u0435\u0434\u0435\u043d\u0438\u0438 \u043f\u0435\u0440\u0435\u0433\u043e\u0432\u043e\u0440\u043e\u0432 \u043f\u043e \u0434\u043e\u0433\u043e\u0432\u043e\u0440\u0443\r\n \u043a\u0443\u043f\u043b\u0438-\u043f\u0440\u043e\u0434\u0430\u0436\u0438 \u0441 \u043f\u043e\u043a\u0443\u043f\u0430\u0442\u0435\u043b\u0435\u043c.<\/li>\r\n<\/ul>\r\n<p><span style=\"font-style: italic;\" class=\"<img src=\" http:=\"\" homeinspb.ru=\"\" assets=\"\" efdcc0f2=\"\" images=\"\" pixel.gif\"=\"\" title=\"\" rel=\"media7473517383914441\" width=\"150\" height=\"100\" \/>\u042f\u0432\u043b\u044f\u044f\u0441\u044c \u0410\u0413\u0415\u041d\u0422\u041e\u041c \u043f\u043e\u043a\u0443\u043f\u0430\u0442\u0435\u043b\u044f,\r\n\u043f\u043e\u043c\u043e\u0433\u0430\u044e \u0432 \u0442\u043e\u043c, \u0447\u0442\u043e:<\/span><\/p>\r\n<ul type=\"disc\">\r\n <li style=\"\" color:#343434;line-height:15.0pt;background:white;box-sizing:border-box;max-width:100%;position:inherit=\"\" !important\";margin-top:auto;margin-bottom:auto\"=\"\">\u041a\u043e\u043d\u0441\u0443\u043b\u044c\u0442\u0438\u0440\u0443\u044e \u043e \u0442\u043e\u043c, \u0447\u0442\u043e \u043a\u043b\u0438\u0435\u043d\u0442\r\n \u043c\u043e\u0436\u0435\u0442 \u043f\u043e\u043b\u0443\u0447\u0438\u0442\u044c \u043d\u0430 \u0440\u044b\u043d\u043a\u0435, \u0443\u0447\u0438\u0442\u044b\u0432\u0430\u044f \u0435\u0433\u043e \u0444\u0438\u043d\u0430\u043d\u0441\u043e\u0432\u044b\u0439 \u043f\u0440\u043e\u0444\u0438\u043b\u044c.<\/li>\r\n <li style=\"\" color:#343434;line-height:15.0pt;background:white;box-sizing:border-box;max-width:100%;position:inherit=\"\" !important\";margin-top:auto;margin-bottom:auto\"=\"\">\u041a\u043e\u043d\u0441\u0443\u043b\u044c\u0442\u0438\u0440\u0443\u044e \u043f\u043e \u043f\u043e\u0434\u0431\u043e\u0440\u0443\r\n \u043e\u043f\u0440\u0435\u0434\u0435\u043b\u0435\u043d\u043d\u043e\u0433\u043e \u0442\u0438\u043f\u0430 \u043d\u0435\u0434\u0432\u0438\u0436\u0438\u043c\u043e\u0441\u0442\u0438, \u043a\u043e\u0442\u043e\u0440\u044b\u0439 \u043d\u0430\u0438\u043b\u0443\u0447\u0448\u0438\u043c \u043e\u0431\u0440\u0430\u0437\u043e\u043c \u0431\u0443\u0434\u0435\u0442 \u043e\u0442\u0432\u0435\u0447\u0430\u0442\u044c\r\n \u0442\u0440\u0435\u0431\u043e\u0432\u0430\u043d\u0438\u044f\u043c \u043f\u043e\u043a\u0443\u043f\u0430\u0442\u0435\u043b\u044f.<\/li>\r\n <li style=\"\" color:#343434;line-height:15.0pt;background:white;box-sizing:border-box;max-width:100%;position:inherit=\"\" !important\";margin-top:auto;margin-bottom:auto\"=\"\">\u041a\u043e\u043d\u0441\u0443\u043b\u044c\u0442\u0438\u0440\u0443\u044e \u043f\u043e\u043a\u0443\u043f\u0430\u0442\u0435\u043b\u044f \u043e\r\n \u0432\u044b\u0433\u043e\u0434\u0435 \u043a\u043e\u043d\u043a\u0440\u0435\u0442\u043d\u043e\u0433\u043e \u043e\u0431\u044a\u0435\u043a\u0442\u0430 \u0434\u043b\u044f \u0438\u043d\u0432\u0435\u0441\u0442\u0438\u0446\u0438\u0439, \u0441\u043e\u043e\u0442\u043d\u043e\u0441\u044f \u0440\u0438\u0441\u043a\u0438 \u043a\u0430\u043a \u0441\u0430\u043c\u043e\u0439\r\n \u0441\u043e\u0431\u0441\u0442\u0432\u0435\u043d\u043d\u043e\u0441\u0442\u0438, \u0442\u0430\u043a \u0438 \u043d\u0430 \u0440\u044b\u043d\u043e\u0447\u043d\u043e\u043c \u0443\u0440\u043e\u0432\u043d\u0435.<\/li>\r\n <li style=\"\" color:#343434;line-height:15.0pt;background:white;box-sizing:border-box;max-width:100%;position:inherit=\"\" !important\";margin-top:auto;margin-bottom:auto\"=\"\">\u0418\u0441\u0441\u043b\u0435\u0434\u0443\u044e \u043f\u0440\u0435\u0434\u043b\u043e\u0436\u0435\u043d\u0438\u044f \u043d\u0430 \u0440\u044b\u043d\u043a\u0435,\r\n \u043a\u043e\u0442\u043e\u0440\u044b\u0435 \u0441\u043e\u043e\u0442\u0432\u0435\u0442\u0441\u0442\u0432\u0443\u044e\u0442 \u043f\u0440\u0435\u0434\u043f\u043e\u0447\u0442\u0435\u043d\u0438\u044f\u043c \u043a\u043b\u0438\u0435\u043d\u0442\u0430 \u0438 \u043a\u043e\u043d\u0441\u0443\u043b\u044c\u0442\u0438\u0440\u0443\u044e \u043f\u043e \u0432\u043e\u043f\u0440\u043e\u0441\u0430\u043c \u0446\u0435\u043d\r\n \u043d\u0430 \u0442\u0430\u043a\u043e\u0435 \u0438\u043c\u0443\u0449\u0435\u0441\u0442\u0432\u043e.<\/li>\r\n <li style=\"\" color:#343434;line-height:15.0pt;background:white;box-sizing:border-box;max-width:100%;position:inherit=\"\" !important\";margin-top:auto;margin-bottom:auto\"=\"\">\u041f\u0440\u043e\u0432\u043e\u0436\u0443 \u043f\u043e\u0438\u0441\u043a \u043f\u0440\u0435\u0434\u043b\u043e\u0436\u0435\u043d\u0438\u0439,\r\n \u043a\u043e\u0442\u043e\u0440\u044b\u0435 \u043d\u0435 \u043f\u0440\u0435\u0434\u0441\u0442\u0430\u0432\u043b\u0435\u043d\u044b \u0432 \u043d\u0430\u0441\u0442\u043e\u044f\u0449\u0435\u0435 \u0432\u0440\u0435\u043c\u044f \u043d\u0430 \u0440\u044b\u043d\u043a\u0435, \u0434\u043b\u044f \u0432\u044b\u044f\u0432\u043b\u0435\u043d\u0438\u044f \u0431\u0443\u0434\u0443\u0449\u0435\u0439 \u043f\u0440\u043e\u0434\u0430\u0436\u0438.<\/li>\r\n <li style=\"\" color:#343434;line-height:15.0pt;background:white;box-sizing:border-box;max-width:100%;position:inherit=\"\" !important\";margin-top:auto;margin-bottom:auto\"=\"\">\u041f\u0440\u0435\u0434\u043e\u0441\u0442\u0430\u0432\u043b\u044f\u044e \u0430\u043d\u0430\u043b\u0438\u0437\r\n \u0438\u043d\u0432\u0435\u0441\u0442\u0438\u0446\u0438\u043e\u043d\u043d\u044b\u0445 \u0432\u043e\u0437\u043c\u043e\u0436\u043d\u043e\u0441\u0442\u0435\u0439.<\/li>\r\n <li style=\"\" color:#343434;line-height:15.0pt;background:white;box-sizing:border-box;max-width:100%;position:inherit=\"\" !important\";margin-top:auto;margin-bottom:auto\"=\"\">\u041f\u0440\u0435\u0434\u043e\u0441\u0442\u0430\u0432\u043b\u044f\u044e \u0440\u0435\u043a\u043e\u043c\u0435\u043d\u0434\u0430\u0446\u0438\u0438\r\n \u043a\u043b\u0438\u0435\u043d\u0442\u0430\u043c \u043e \u0442\u043e\u043c, \u043a\u0443\u0434\u0430 \u0438\u043d\u0432\u0435\u0441\u0442\u0438\u0440\u043e\u0432\u0430\u0442\u044c \u0432 \u0446\u0435\u043b\u044f\u0445 \u0441\u0432\u0435\u0434\u0435\u043d\u0438\u044f \u043a \u043c\u0438\u043d\u0438\u043c\u0443\u043c\u0443 \u0440\u0438\u0441\u043a\u043e\u0432 \u0438\r\n \u043f\u043e\u043b\u0443\u0447\u0435\u043d\u0438\u044f \u043c\u0430\u043a\u0441\u0438\u043c\u0430\u043b\u044c\u043d\u043e\u0439 \u043e\u0442\u0434\u0430\u0447\u0438.<\/li>\r\n <li style=\"\" color:#343434;line-height:15.0pt;background:white;box-sizing:border-box;max-width:100%;position:inherit=\"\" !important\";margin-top:auto;margin-bottom:auto\"=\"\">\u041e\u0441\u0443\u0449\u0435\u0441\u0442\u0432\u043b\u044f\u044e \u043f\u0440\u043e\u0432\u0435\u0440\u043a\u0443 \u0432\u044b\u0431\u0440\u0430\u043d\u043d\u043e\u0439\r\n \u043d\u0435\u0434\u0432\u0438\u0436\u0438\u043c\u043e\u0441\u0442\u0438 \u043f\u043e\u043a\u0443\u043f\u0430\u0442\u0435\u043b\u0435\u043c \u0441\u043e\u0432\u043c\u0435\u0441\u0442\u043d\u043e \u0441 \u044e\u0440\u0438\u0441\u0442\u0430\u043c\u0438 \u043a\u043e\u043c\u043f\u0430\u043d\u0438\u0438 \u00ab\u0418\u0442\u0430\u043a\u0430\u00bb<\/li>\r\n <li style=\"\" color:#343434;line-height:15.0pt;background:white;box-sizing:border-box;max-width:100%;position:inherit=\"\" !important\";margin-top:auto;margin-bottom:auto\"=\"\">\u041f\u0440\u043e\u0432\u043e\u0436\u0443 \u044e\u0440\u0438\u0434\u0438\u0447\u0435\u0441\u043a\u0438 \u0447\u0438\u0441\u0442\u0443\u044e\r\n \u0441\u0434\u0435\u043b\u043a\u0443 \u043b\u044e\u0431\u043e\u0439 \u0441\u043b\u043e\u0436\u043d\u043e\u0441\u0442\u0438.<\/li>\r\n<\/ul>\r\n<p style=\"color:#000000;text-align:justify\">\u042f\u0432\u043b\u044f\u044f\u0441\u044c \u043f\u0440\u043e\u0444\u0435\u0441\u0441\u0438\u043e\u043d\u0430\u043b\u043e\u043c \u0441\u0432\u043e\u0435\u0433\u043e \u0434\u0435\u043b\u0430, \u043f\u043e\u043c\u0438\u043c\u043e \u043f\u0440\u043e\u0447\u0435\u0433\u043e, \u0438\u043c\u0435\u044e \u0441\u043b\u0435\u0434\u0443\u044e\u0449\u0438\u0435\r\n\u043e\u0431\u044f\u0437\u0430\u043d\u043d\u043e\u0441\u0442\u0438 \u043f\u0435\u0440\u0435\u0434 \u0441\u0432\u043e\u0438\u043c\u0438 \u043a\u043b\u0438\u0435\u043d\u0442\u0430\u043c\u0438: \u0434\u043e\u0431\u0440\u043e\u0441\u043e\u0432\u0435\u0441\u0442\u043d\u043e\u0441\u0442\u044c, \u043b\u043e\u044f\u043b\u044c\u043d\u043e\u0441\u0442\u044c,\r\n\u043a\u043e\u043d\u0444\u0438\u0434\u0435\u043d\u0446\u0438\u0430\u043b\u044c\u043d\u043e\u0441\u0442\u044c, \u043f\u043e\u043b\u043d\u043e\u0435 \u0440\u0430\u0441\u043a\u0440\u044b\u0442\u0438\u0435 \u0438\u043d\u0444\u043e\u0440\u043c\u0430\u0446\u0438\u0438 \u0438 \u043e\u0442\u0432\u0435\u0442\u0441\u0442\u0432\u0435\u043d\u043d\u043e\u0441\u0442\u044c.&nbsp;<\/p><p style=\"color:#000000;text-align:justify\">\u042f\u0432\u043b\u044f\u044e\u0441\u044c \u041c\u041e\u0411\u0418\u041b\u042c\u041d\u042b\u041c \u0410\u0413\u0415\u041d\u0422\u041e\u041c! \u0418\u043d\u0442\u0435\u0440\u0435\u0441\u043d\u044b\u0435 \u043d\u043e\u0432\u043e\u0441\u0442\u0438 \u0438 \u0441\u043e\u0432\u0435\u0442\u044b \u043c\u043e\u0436\u043d\u043e \u043f\u043e\u043b\u0443\u0447\u0438\u0442\u044c \u043d\u0430 \u043c\u043e\u0435\u0439 \u0441\u0442\u0440\u0430\u043d\u0438\u0447\u043a\u0438 Instagram:&nbsp;&nbsp;&nbsp;<a href=\"https:\/\/www.instagram.com\/p\/BZ-3knTnIq6\/\" target=\"_blank\" rel=\"noopener\">https:\/\/www.instagram.com\/p\/BZ-3knTnIq6\/<\/a> <\/p>","oadm":0,"gender":0,"shows":1,"selfemployed":0,"individual":1,"in_state":0,"in_office":0,"site_post":"","is_fired":0,"direct_submission":0,"direct_submission_id":1,"mim":13434,"change":1,"is_active":1,"noindex":0,"must_index":1,"jivo":0,"basic_office_id":"000000013","precinct":0,"slaves_notifications":1,"is_blocked":0,"overrides":{"photo_sq":"lk_1639670680_6dfc238000ea33f750e5174f997d5880.png","photo_sq_uin":"lk_1639670680_6dfc238000ea33f750e5174f997d5880.png","about_agent":"<p><span class=\"text-secondary\">\u0420\u0430\u0431\u043e\u0442\u0430\u044e \u0432 \u0410\u041d \"\u0418\u0442\u0430\u043a\u0430\" \u0441 2013 \u0433\u043e\u0434\u0430, \u043e\u0442 \u0441\u0442\u0430\u0436\u0435\u0440\u0430 \u0434\u043e \u043c\u0430\u0441\u0442\u0435\u0440\u0430-\u0430\u0433\u0435\u043d\u0442\u0430.&nbsp;<\/span><\/p><p><span class=\"text-secondary\">\u0418\u043c\u0435\u044e 3 \u0432\u044b\u0441\u0448\u0438\u0445 \u043e\u0431\u0440\u0430\u0437\u043e\u0432\u0430\u043d\u0438\u044f. \u041c\u043e\u0438 \u043a\u043b\u0438\u0435\u043d\u0442\u044b - \u0434\u043e\u0432\u043e\u043b\u044c\u043d\u044b\u0435 \u043a\u043b\u0438\u0435\u043d\u0442\u044b! \u041f\u043e\u0434\u0440\u043e\u0431\u043d\u043e \u043f\u0440\u043e \u0440\u0430\u0431\u043e\u0442\u0443 \u043d\u0430 \u043c\u043e\u0435\u0439 \u0441\u0442\u0440\u0430\u043d\u0438\u0446\u0435 \u0418\u043d\u0441\u0442\u0430\u0433\u0440\u0430\u043c.<\/span><\/p><p><span class=\"text-secondary\"><br><\/span><\/p>","about_agent_uin":"p>","vk":"https:\/\/vk.com\/id495092140","vk_uin":"id495092140","video":"https:\/\/youtu.be\/45vvcr3zBzw","video_uin":"45vvcr3zBzw"},"wp":false,"phone_f":"78127407040","office":{"id":"000000013","url":"ul-malaya-balkanskaya-d-26","name":"\u0443\u043b. \u041c\u0430\u043b\u0430\u044f \u0411\u0430\u043b\u043a\u0430\u043d\u0441\u043a\u0430\u044f, \u0434. 26","adress":"\u0433. \u0421\u0430\u043d\u043a\u0442-\u041f\u0435\u0442\u0435\u0440\u0431\u0443\u0440\u0433, \u0424\u0440\u0443\u043d\u0437\u0435\u043d\u0441\u043a\u0438\u0439 \u0440-\u043d, \u0443\u043b. \u041c\u0430\u043b\u0430\u044f \u0411\u0430\u043b\u043a\u0430\u043d\u0441\u043a\u0430\u044f, \u0434. 26","coords":"59.829442,30.386079","pano_coords":"59.8298972865986,30.384474933","pano_direction":"44.60707084120078,1.1631715886855591","pano_span":"58.033400647822184,30.320036290824245","email":"kup4ino@itaka.ru","phone":"88123477731","metro_stations_id":9,"region_id":78,"district_id":null,"coords_metro":null,"coords_top":null,"coords_left":null,"spbzn_coords_top":null,"spbzn_coords_left":null,"change":1,"td_id":7,"order":70,"deleted_at":null,"SuccessOverrides":[{"id":6887,"model":"Offices","target_id":0,"target_id_str":"000000013","field":"order","value":"129,5017,4141,94,255,11524,9127,5779,570,7832,10411,8923,10124,14723,12440,10827,11255,13615,14933,13616,13397,11863,702,10547,2879,3805,10032,11151,663,15756,10131,13269,284,12585,13651,2234","is_current":0,"is_moderated_adm":1,"is_moderated_tech":1,"is_selected":0,"creator_id":440,"moderator_adm_id":440,"moderator_tech_id":440,"adm_reason":null,"tech_reason":null,"created_at":"2025-09-10T08:59:44.000000Z","updated_at":"2025-09-10T08:59:44.000000Z"},{"id":6886,"model":"Offices","target_id":0,"target_id_str":"000000013","field":"add_agent_id","value":"9557","is_current":0,"is_moderated_adm":1,"is_moderated_tech":1,"is_selected":0,"creator_id":440,"moderator_adm_id":440,"moderator_tech_id":440,"adm_reason":null,"tech_reason":null,"created_at":"2025-09-10T08:59:44.000000Z","updated_at":"2025-09-10T08:59:44.000000Z"},{"id":6885,"model":"Offices","target_id":0,"target_id_str":"000000013","field":"schedule","value":"\u041f\u041d-\u041f\u0422: 10.00-20.00<br \/>\r\n\u0421\u0411-\u0412\u0421: 11.00-18.00","is_current":0,"is_moderated_adm":1,"is_moderated_tech":1,"is_selected":0,"creator_id":440,"moderator_adm_id":440,"moderator_tech_id":440,"adm_reason":null,"tech_reason":null,"created_at":"2025-09-10T08:59:44.000000Z","updated_at":"2025-09-10T08:59:44.000000Z"}],"Hours":null},"Mimfio":{"id":13434,"url":"nataliya-ershova","F":"\u0415\u0440\u0448\u043e\u0432\u0430","I":"\u041d\u0430\u0442\u0430\u043b\u0438\u044f","O":"\u0412\u0430\u043b\u0435\u043d\u0442\u0438\u043d\u043e\u0432\u043d\u0430","phone":"89312042310","email":"ErshovaNV@itaka.ru","personal_phone":"","personal_email":"","birthday":null,"photo_sq":null,"photo_cir":null,"photo":null,"online":0,"text":null,"oadm":1,"gender":null,"shows":1,"selfemployed":0,"individual":0,"in_state":0,"in_office":0,"site_post":"","is_fired":0,"direct_submission":1,"direct_submission_id":11389,"mim":null,"change":1,"is_active":1,"noindex":1,"must_index":1,"jivo":1,"basic_office_id":null,"precinct":0,"slaves_notifications":1,"is_blocked":0,"Mimfio":false},"success_overrides":[{"id":2164,"model":"Agents","target_id":10124,"target_id_str":null,"field":"photo_sq","value":"lk_1639670680_6dfc238000ea33f750e5174f997d5880.png","is_current":0,"is_moderated_adm":1,"is_moderated_tech":1,"is_selected":0,"creator_id":693,"moderator_adm_id":440,"moderator_tech_id":440,"adm_reason":null,"tech_reason":null,"created_at":"2021-12-16T19:04:40.000000Z","updated_at":"2021-12-17T12:00:24.000000Z"},{"id":2165,"model":"Agents","target_id":10124,"target_id_str":null,"field":"about_agent","value":"<p><span class=\"text-secondary\">\u0420\u0430\u0431\u043e\u0442\u0430\u044e \u0432 \u0410\u041d \"\u0418\u0442\u0430\u043a\u0430\" \u0441 2013 \u0433\u043e\u0434\u0430, \u043e\u0442 \u0441\u0442\u0430\u0436\u0435\u0440\u0430 \u0434\u043e \u043c\u0430\u0441\u0442\u0435\u0440\u0430-\u0430\u0433\u0435\u043d\u0442\u0430.&nbsp;<\/span><\/p><p><span class=\"text-secondary\">\u0418\u043c\u0435\u044e 3 \u0432\u044b\u0441\u0448\u0438\u0445 \u043e\u0431\u0440\u0430\u0437\u043e\u0432\u0430\u043d\u0438\u044f. \u041c\u043e\u0438 \u043a\u043b\u0438\u0435\u043d\u0442\u044b - \u0434\u043e\u0432\u043e\u043b\u044c\u043d\u044b\u0435 \u043a\u043b\u0438\u0435\u043d\u0442\u044b! \u041f\u043e\u0434\u0440\u043e\u0431\u043d\u043e \u043f\u0440\u043e \u0440\u0430\u0431\u043e\u0442\u0443 \u043d\u0430 \u043c\u043e\u0435\u0439 \u0441\u0442\u0440\u0430\u043d\u0438\u0446\u0435 \u0418\u043d\u0441\u0442\u0430\u0433\u0440\u0430\u043c.<\/span><\/p><p><span class=\"text-secondary\"><br><\/span><\/p>","is_current":0,"is_moderated_adm":1,"is_moderated_tech":1,"is_selected":0,"creator_id":693,"moderator_adm_id":440,"moderator_tech_id":440,"adm_reason":null,"tech_reason":null,"created_at":"2021-12-16T19:10:29.000000Z","updated_at":"2021-12-17T11:59:22.000000Z"},{"id":2167,"model":"Agents","target_id":10124,"target_id_str":null,"field":"vk","value":"https:\/\/vk.com\/id495092140","is_current":0,"is_moderated_adm":1,"is_moderated_tech":1,"is_selected":0,"creator_id":693,"moderator_adm_id":440,"moderator_tech_id":440,"adm_reason":null,"tech_reason":null,"created_at":"2021-12-16T19:13:48.000000Z","updated_at":"2021-12-17T11:59:54.000000Z"},{"id":5123,"model":"Agents","target_id":10124,"target_id_str":null,"field":"video","value":"https:\/\/youtu.be\/45vvcr3zBzw","is_current":0,"is_moderated_adm":1,"is_moderated_tech":1,"is_selected":0,"creator_id":440,"moderator_adm_id":440,"moderator_tech_id":440,"adm_reason":null,"tech_reason":null,"created_at":"2023-11-16T10:03:11.000000Z","updated_at":"2023-11-16T10:03:15.000000Z"}]}],"metro":{"id":48,"name":"\u041f\u0440\u043e\u0441\u043f\u0435\u043a\u0442 \u0412\u0435\u0442\u0435\u0440\u0430\u043d\u043e\u0432","chpuName":"prospekt-veteranov","top":"666","left":"140","metro_lines_id":6,"intersection":null,"r_top":"560","r_side":"421","r_class":"right","r_top_sub":null,"r_side_sub":null,"r_opt_class":null,"yaCoord0":null,"yaCoord1":null,"created_at":null,"updated_at":null,"metro_color":"red"},"images":[{"id":1302389,"apartment_number":"1-92519","photo":"media.itaka.ru\/homeinspb\/images\/objects\/big_52c1f8ec-b8d1-f011-aa6e-0050568db126.jpg","priority":1},{"id":1302393,"apartment_number":"1-92519","photo":"media.itaka.ru\/homeinspb\/images\/objects\/big_76c1f8ec-b8d1-f011-aa6e-0050568db126.jpg","priority":1},{"id":1302394,"apartment_number":"1-92519","photo":"media.itaka.ru\/homeinspb\/images\/objects\/big_6ec1f8ec-b8d1-f011-aa6e-0050568db126.jpg","priority":1},{"id":1302392,"apartment_number":"1-92519","photo":"media.itaka.ru\/homeinspb\/images\/objects\/big_57c1f8ec-b8d1-f011-aa6e-0050568db126.jpg","priority":2},{"id":1302391,"apartment_number":"1-92519","photo":"media.itaka.ru\/homeinspb\/images\/objects\/big_5bc1f8ec-b8d1-f011-aa6e-0050568db126.jpg","priority":3},{"id":1302396,"apartment_number":"1-92519","photo":"media.itaka.ru\/homeinspb\/images\/objects\/big_ea9c01f3-b8d1-f011-aa6e-0050568db126.jpg","priority":4},{"id":1302397,"apartment_number":"1-92519","photo":"media.itaka.ru\/homeinspb\/images\/objects\/big_f69c01f3-b8d1-f011-aa6e-0050568db126.jpg","priority":4},{"id":1302395,"apartment_number":"1-92519","photo":"media.itaka.ru\/homeinspb\/images\/objects\/big_ee9c01f3-b8d1-f011-aa6e-0050568db126.jpg","priority":5},{"id":1302401,"apartment_number":"1-92519","photo":"media.itaka.ru\/homeinspb\/images\/objects\/big_f59c01f3-b8d1-f011-aa6e-0050568db126.jpg","priority":6},{"id":1302402,"apartment_number":"1-92519","photo":"media.itaka.ru\/homeinspb\/images\/objects\/big_609d01f3-b8d1-f011-aa6e-0050568db126.jpg","priority":8},{"id":1302398,"apartment_number":"1-92519","photo":"media.itaka.ru\/homeinspb\/images\/objects\/big_659d01f3-b8d1-f011-aa6e-0050568db126.jpg","priority":9},{"id":1302406,"apartment_number":"1-92519","photo":"media.itaka.ru\/homeinspb\/images\/objects\/big_749d01f3-b8d1-f011-aa6e-0050568db126.jpg","priority":10},{"id":1302405,"apartment_number":"1-92519","photo":"media.itaka.ru\/homeinspb\/images\/objects\/big_729d01f3-b8d1-f011-aa6e-0050568db126.jpg","priority":11},{"id":1302399,"apartment_number":"1-92519","photo":"media.itaka.ru\/homeinspb\/images\/objects\/big_739d01f3-b8d1-f011-aa6e-0050568db126.jpg","priority":13},{"id":1302400,"apartment_number":"1-92519","photo":"media.itaka.ru\/homeinspb\/images\/objects\/big_6e9d01f3-b8d1-f011-aa6e-0050568db126.jpg","priority":14}]}

Тимофеева Елена

10124 +7 (812) 740-70-40
10124

10124


2-комнатная квартира 60.2 м², этаж 14/17

Комендантский проспект

г Санкт-Петербург, ул Плесецкая, д. 24, стр. 1

Квартира в уже сданном доме класса комфорт, вы можете встретить Новый год уже на новом месте, в своем уютном гнездышке. Видовая евро-трешка с большой кухней-гостиной на два окна, из которой запросто можно получить еще одну комнату или зонировать пространство самой большой комнаты в квартире. Лучшая полная чистовая отделка ЦДС в цвете LS MODERN, когда обои отлично гармонируют со светлым ламинатом и квартира выглядит еще просторнее и светлее, все готово к новоселью. Два туалета и ванная в кафеле с хорошей сантехникой АМ.РМ, просторный коридор, изолированные комнаты. Большая угловая панорамная лоджия с видом на бесконечную зелень, вдали от любопытных глаз соседей, в окнах напротив. Полы на ней уложены плиткой Marrazzi Gilford, есть светильник и розетка. Много места для встроенных шкафов, что позволит сэкономить пространство в жилой части. Видеодомофон LASKOMEX с LED-экраном 7’. Металлическая дверь. Расположение квартиры на этаже самое выигрышное, она в конце коридора, вдалеке от лифта и лишней суеты. В продаже так же два парковочных места на 2-м этаже, вместе, удаленно от остальных и отгорожены стенкой. Можно купить квартиру с двумя паркингами и никогда не думать, где поставить машину сегодня и сколько снега выпадет завтра. - Закрытые дворы, без машин - Реакционные зоны, это два зелёных парка - Фитнес парк, это всё для спорта - Лаундж парк, это игровые площадки, беседки, скамейки. Рядом магазин Лента, Лемана-про, детский сад, школа, маленькие магазинчики и булочные. Два парка в пешей доступности. До метро Комендантский проспект 10 мин транспортом, а в 2028 откроют метро «Каменка», до которой будет 15 мин пешком. Прямая продажа, быстрый выход на сделку. Подходит под ипотеку. Один собственник, мат.кап не использовался.

15 650 000 ₽
259 966 ₽/м²
Объект № 1-92123
Специалист по этому объекту:
{"id":"1-92123","object_type":1,"agents_id":10210,"rooms_saled":2,"rooms_total":2,"regions_id":78,"districts_id":"16","station_metro_id":49,"station_rallway":null,"address":"\u0433 \u0421\u0430\u043d\u043a\u0442-\u041f\u0435\u0442\u0435\u0440\u0431\u0443\u0440\u0433, \u0443\u043b \u041f\u043b\u0435\u0441\u0435\u0446\u043a\u0430\u044f, \u0434. 24, \u0441\u0442\u0440. 1","locality":"\u0433. \u0421\u0430\u043d\u043a\u0442-\u041f\u0435\u0442\u0435\u0440\u0431\u0443\u0440\u0433","price":"15 650 000","price_mkv":"259 966","floor":14,"floors":17,"is_first":0,"is_last":0,"floor_height":null,"space_habitable":25,"space_total":60.2,"space_rooms":"13+12","space_kitchen":17,"type_of_building_id":13,"is_phone":0,"wc":"2\u0441\/\u0443\u0437.","is_balcon":1,"is_lift":1,"hotwater":"\u0412\u043e\u0434\u043e\u043f\u0440\u043e\u0432\u043e\u0434","is_ipoteka":1,"is_exclusive":0,"is_unique":0,"is_fake":0,"is_counter":0,"is_cession":0,"build_year":2025,"comments":"\u041a\u0432\u0430\u0440\u0442\u0438\u0440\u0430 \u0432 \u0443\u0436\u0435 \u0441\u0434\u0430\u043d\u043d\u043e\u043c \u0434\u043e\u043c\u0435 \u043a\u043b\u0430\u0441\u0441\u0430 \u043a\u043e\u043c\u0444\u043e\u0440\u0442, \u0432\u044b \u043c\u043e\u0436\u0435\u0442\u0435 \u0432\u0441\u0442\u0440\u0435\u0442\u0438\u0442\u044c \u041d\u043e\u0432\u044b\u0439 \u0433\u043e\u0434 \u0443\u0436\u0435 \u043d\u0430 \u043d\u043e\u0432\u043e\u043c \u043c\u0435\u0441\u0442\u0435, \u0432 \u0441\u0432\u043e\u0435\u043c \u0443\u044e\u0442\u043d\u043e\u043c \u0433\u043d\u0435\u0437\u0434\u044b\u0448\u043a\u0435. \u0412\u0438\u0434\u043e\u0432\u0430\u044f \u0435\u0432\u0440\u043e-\u0442\u0440\u0435\u0448\u043a\u0430 \u0441 \u0431\u043e\u043b\u044c\u0448\u043e\u0439 \u043a\u0443\u0445\u043d\u0435\u0439-\u0433\u043e\u0441\u0442\u0438\u043d\u043e\u0439 \u043d\u0430 \u0434\u0432\u0430 \u043e\u043a\u043d\u0430, \u0438\u0437 \u043a\u043e\u0442\u043e\u0440\u043e\u0439 \u0437\u0430\u043f\u0440\u043e\u0441\u0442\u043e \u043c\u043e\u0436\u043d\u043e \u043f\u043e\u043b\u0443\u0447\u0438\u0442\u044c \u0435\u0449\u0435 \u043e\u0434\u043d\u0443 \u043a\u043e\u043c\u043d\u0430\u0442\u0443 \u0438\u043b\u0438 \u0437\u043e\u043d\u0438\u0440\u043e\u0432\u0430\u0442\u044c \u043f\u0440\u043e\u0441\u0442\u0440\u0430\u043d\u0441\u0442\u0432\u043e \u0441\u0430\u043c\u043e\u0439 \u0431\u043e\u043b\u044c\u0448\u043e\u0439 \u043a\u043e\u043c\u043d\u0430\u0442\u044b \u0432 \u043a\u0432\u0430\u0440\u0442\u0438\u0440\u0435. \u041b\u0443\u0447\u0448\u0430\u044f \u043f\u043e\u043b\u043d\u0430\u044f \u0447\u0438\u0441\u0442\u043e\u0432\u0430\u044f \u043e\u0442\u0434\u0435\u043b\u043a\u0430 \u0426\u0414\u0421 \u0432 \u0446\u0432\u0435\u0442\u0435 LS MODERN, \u043a\u043e\u0433\u0434\u0430 \u043e\u0431\u043e\u0438 \u043e\u0442\u043b\u0438\u0447\u043d\u043e \u0433\u0430\u0440\u043c\u043e\u043d\u0438\u0440\u0443\u044e\u0442 \u0441\u043e \u0441\u0432\u0435\u0442\u043b\u044b\u043c \u043b\u0430\u043c\u0438\u043d\u0430\u0442\u043e\u043c \u0438 \u043a\u0432\u0430\u0440\u0442\u0438\u0440\u0430 \u0432\u044b\u0433\u043b\u044f\u0434\u0438\u0442 \u0435\u0449\u0435 \u043f\u0440\u043e\u0441\u0442\u043e\u0440\u043d\u0435\u0435 \u0438 \u0441\u0432\u0435\u0442\u043b\u0435\u0435, \u0432\u0441\u0435 \u0433\u043e\u0442\u043e\u0432\u043e \u043a \u043d\u043e\u0432\u043e\u0441\u0435\u043b\u044c\u044e. \u0414\u0432\u0430 \u0442\u0443\u0430\u043b\u0435\u0442\u0430 \u0438 \u0432\u0430\u043d\u043d\u0430\u044f \u0432 \u043a\u0430\u0444\u0435\u043b\u0435 \u0441 \u0445\u043e\u0440\u043e\u0448\u0435\u0439 \u0441\u0430\u043d\u0442\u0435\u0445\u043d\u0438\u043a\u043e\u0439 \u0410\u041c.\u0420\u041c, \u043f\u0440\u043e\u0441\u0442\u043e\u0440\u043d\u044b\u0439 \u043a\u043e\u0440\u0438\u0434\u043e\u0440, \u0438\u0437\u043e\u043b\u0438\u0440\u043e\u0432\u0430\u043d\u043d\u044b\u0435 \u043a\u043e\u043c\u043d\u0430\u0442\u044b. \u0411\u043e\u043b\u044c\u0448\u0430\u044f \u0443\u0433\u043b\u043e\u0432\u0430\u044f \u043f\u0430\u043d\u043e\u0440\u0430\u043c\u043d\u0430\u044f \u043b\u043e\u0434\u0436\u0438\u044f \u0441 \u0432\u0438\u0434\u043e\u043c \u043d\u0430 \u0431\u0435\u0441\u043a\u043e\u043d\u0435\u0447\u043d\u0443\u044e \u0437\u0435\u043b\u0435\u043d\u044c, \u0432\u0434\u0430\u043b\u0438 \u043e\u0442 \u043b\u044e\u0431\u043e\u043f\u044b\u0442\u043d\u044b\u0445 \u0433\u043b\u0430\u0437 \u0441\u043e\u0441\u0435\u0434\u0435\u0439, \u0432 \u043e\u043a\u043d\u0430\u0445 \u043d\u0430\u043f\u0440\u043e\u0442\u0438\u0432. \u041f\u043e\u043b\u044b \u043d\u0430 \u043d\u0435\u0439 \u0443\u043b\u043e\u0436\u0435\u043d\u044b \u043f\u043b\u0438\u0442\u043a\u043e\u0439 Marrazzi Gilford, \u0435\u0441\u0442\u044c \u0441\u0432\u0435\u0442\u0438\u043b\u044c\u043d\u0438\u043a \u0438 \u0440\u043e\u0437\u0435\u0442\u043a\u0430. \u041c\u043d\u043e\u0433\u043e \u043c\u0435\u0441\u0442\u0430 \u0434\u043b\u044f \u0432\u0441\u0442\u0440\u043e\u0435\u043d\u043d\u044b\u0445 \u0448\u043a\u0430\u0444\u043e\u0432, \u0447\u0442\u043e \u043f\u043e\u0437\u0432\u043e\u043b\u0438\u0442 \u0441\u044d\u043a\u043e\u043d\u043e\u043c\u0438\u0442\u044c \u043f\u0440\u043e\u0441\u0442\u0440\u0430\u043d\u0441\u0442\u0432\u043e \u0432 \u0436\u0438\u043b\u043e\u0439 \u0447\u0430\u0441\u0442\u0438. \u0412\u0438\u0434\u0435\u043e\u0434\u043e\u043c\u043e\u0444\u043e\u043d LASKOMEX \u0441 LED-\u044d\u043a\u0440\u0430\u043d\u043e\u043c 7\u2019. \u041c\u0435\u0442\u0430\u043b\u043b\u0438\u0447\u0435\u0441\u043a\u0430\u044f \u0434\u0432\u0435\u0440\u044c. \u0420\u0430\u0441\u043f\u043e\u043b\u043e\u0436\u0435\u043d\u0438\u0435 \u043a\u0432\u0430\u0440\u0442\u0438\u0440\u044b \u043d\u0430 \u044d\u0442\u0430\u0436\u0435 \u0441\u0430\u043c\u043e\u0435 \u0432\u044b\u0438\u0433\u0440\u044b\u0448\u043d\u043e\u0435, \u043e\u043d\u0430 \u0432 \u043a\u043e\u043d\u0446\u0435 \u043a\u043e\u0440\u0438\u0434\u043e\u0440\u0430, \u0432\u0434\u0430\u043b\u0435\u043a\u0435 \u043e\u0442 \u043b\u0438\u0444\u0442\u0430 \u0438 \u043b\u0438\u0448\u043d\u0435\u0439 \u0441\u0443\u0435\u0442\u044b. \u0412 \u043f\u0440\u043e\u0434\u0430\u0436\u0435 \u0442\u0430\u043a \u0436\u0435 \u0434\u0432\u0430 \u043f\u0430\u0440\u043a\u043e\u0432\u043e\u0447\u043d\u044b\u0445 \u043c\u0435\u0441\u0442\u0430 \u043d\u0430 2-\u043c \u044d\u0442\u0430\u0436\u0435, \u0432\u043c\u0435\u0441\u0442\u0435, \u0443\u0434\u0430\u043b\u0435\u043d\u043d\u043e \u043e\u0442 \u043e\u0441\u0442\u0430\u043b\u044c\u043d\u044b\u0445 \u0438 \u043e\u0442\u0433\u043e\u0440\u043e\u0436\u0435\u043d\u044b \u0441\u0442\u0435\u043d\u043a\u043e\u0439. \u041c\u043e\u0436\u043d\u043e \u043a\u0443\u043f\u0438\u0442\u044c \u043a\u0432\u0430\u0440\u0442\u0438\u0440\u0443 \u0441 \u0434\u0432\u0443\u043c\u044f \u043f\u0430\u0440\u043a\u0438\u043d\u0433\u0430\u043c\u0438 \u0438 \u043d\u0438\u043a\u043e\u0433\u0434\u0430 \u043d\u0435 \u0434\u0443\u043c\u0430\u0442\u044c, \u0433\u0434\u0435 \u043f\u043e\u0441\u0442\u0430\u0432\u0438\u0442\u044c \u043c\u0430\u0448\u0438\u043d\u0443 \u0441\u0435\u0433\u043e\u0434\u043d\u044f \u0438 \u0441\u043a\u043e\u043b\u044c\u043a\u043e \u0441\u043d\u0435\u0433\u0430 \u0432\u044b\u043f\u0430\u0434\u0435\u0442 \u0437\u0430\u0432\u0442\u0440\u0430. - \u0417\u0430\u043a\u0440\u044b\u0442\u044b\u0435 \u0434\u0432\u043e\u0440\u044b, \u0431\u0435\u0437 \u043c\u0430\u0448\u0438\u043d - \u0420\u0435\u0430\u043a\u0446\u0438\u043e\u043d\u043d\u044b\u0435 \u0437\u043e\u043d\u044b, \u044d\u0442\u043e \u0434\u0432\u0430 \u0437\u0435\u043b\u0451\u043d\u044b\u0445 \u043f\u0430\u0440\u043a\u0430 - \u0424\u0438\u0442\u043d\u0435\u0441 \u043f\u0430\u0440\u043a, \u044d\u0442\u043e \u0432\u0441\u0451 \u0434\u043b\u044f \u0441\u043f\u043e\u0440\u0442\u0430 - \u041b\u0430\u0443\u043d\u0434\u0436 \u043f\u0430\u0440\u043a, \u044d\u0442\u043e \u0438\u0433\u0440\u043e\u0432\u044b\u0435 \u043f\u043b\u043e\u0449\u0430\u0434\u043a\u0438, \u0431\u0435\u0441\u0435\u0434\u043a\u0438, \u0441\u043a\u0430\u043c\u0435\u0439\u043a\u0438. \u0420\u044f\u0434\u043e\u043c \u043c\u0430\u0433\u0430\u0437\u0438\u043d \u041b\u0435\u043d\u0442\u0430, \u041b\u0435\u043c\u0430\u043d\u0430-\u043f\u0440\u043e, \u0434\u0435\u0442\u0441\u043a\u0438\u0439 \u0441\u0430\u0434, \u0448\u043a\u043e\u043b\u0430, \u043c\u0430\u043b\u0435\u043d\u044c\u043a\u0438\u0435 \u043c\u0430\u0433\u0430\u0437\u0438\u043d\u0447\u0438\u043a\u0438 \u0438 \u0431\u0443\u043b\u043e\u0447\u043d\u044b\u0435. \u0414\u0432\u0430 \u043f\u0430\u0440\u043a\u0430 \u0432 \u043f\u0435\u0448\u0435\u0439 \u0434\u043e\u0441\u0442\u0443\u043f\u043d\u043e\u0441\u0442\u0438. \u0414\u043e \u043c\u0435\u0442\u0440\u043e \u041a\u043e\u043c\u0435\u043d\u0434\u0430\u043d\u0442\u0441\u043a\u0438\u0439 \u043f\u0440\u043e\u0441\u043f\u0435\u043a\u0442 10 \u043c\u0438\u043d \u0442\u0440\u0430\u043d\u0441\u043f\u043e\u0440\u0442\u043e\u043c, \u0430 \u0432 2028 \u043e\u0442\u043a\u0440\u043e\u044e\u0442 \u043c\u0435\u0442\u0440\u043e \u00ab\u041a\u0430\u043c\u0435\u043d\u043a\u0430\u00bb, \u0434\u043e \u043a\u043e\u0442\u043e\u0440\u043e\u0439 \u0431\u0443\u0434\u0435\u0442 15 \u043c\u0438\u043d \u043f\u0435\u0448\u043a\u043e\u043c. \u041f\u0440\u044f\u043c\u0430\u044f \u043f\u0440\u043e\u0434\u0430\u0436\u0430, \u0431\u044b\u0441\u0442\u0440\u044b\u0439 \u0432\u044b\u0445\u043e\u0434 \u043d\u0430 \u0441\u0434\u0435\u043b\u043a\u0443. \u041f\u043e\u0434\u0445\u043e\u0434\u0438\u0442 \u043f\u043e\u0434 \u0438\u043f\u043e\u0442\u0435\u043a\u0443. \u041e\u0434\u0438\u043d \u0441\u043e\u0431\u0441\u0442\u0432\u0435\u043d\u043d\u0438\u043a, \u043c\u0430\u0442.\u043a\u0430\u043f \u043d\u0435 \u0438\u0441\u043f\u043e\u043b\u044c\u0437\u043e\u0432\u0430\u043b\u0441\u044f.","date_update":"20.12.2025","yaCoord0":30.23643,"yaCoord1":60.04007,"is_current":1,"is_sold":0,"is_withdrawn":0,"is_private":0,"sale_date":null,"start_date":"2025-09-20","final_price":null,"created_at":"2025-09-20 14:08:42","updated_at":"2025-09-20 16:19:19","checked_at":"2025-09-20 16:19:19","sum":164,"url":null,"title":"2-\u043a\u043e\u043c\u043d\u0430\u0442\u043d\u0430\u044f \u043a\u0432\u0430\u0440\u0442\u0438\u0440\u0430 60.2 \u043c\u00b2, \u044d\u0442\u0430\u0436 14\/17","guidename":"2-\u043a\u043e\u043c\u043d\u0430\u0442\u043d\u044b\u0435 \u043a\u0432\u0430\u0440\u0442\u0438\u0440\u044b","phone":{"number":"+7 (812) 740-70-40","link":"+7 (812) 740-70-40"},"agents":[{"id":10210,"url":"yadviga-lesnevskaya","F":"\u041b\u0435\u0441\u043d\u0435\u0432\u0441\u043a\u0430\u044f","I":"\u042f\u0434\u0432\u0438\u0433\u0430","O":"\u0413\u0435\u043d\u043d\u0430\u0434\u044c\u0435\u0432\u043d\u0430","phone":"+7 (812) 740-70-40","email":"LesnevskajaYG@itaka.ru","personal_phone":"8-921-317-37-93","personal_email":"LesnevskajaYG@itaka.ru","birthday":"1974-09-12","photo_sq":"\/img\/avatar\/lk_1641975543_1ff394c00617545ccdd7c6af6060b0f0.png","photo_cir":"agent_10210_cir.png","photo":null,"online":1,"text":"<h3>\u0418\u043d\u0444\u043e\u0440\u043c\u0430\u0446\u0438\u044f \u043e\u0431 \u0430\u0433\u0435\u043d\u0442\u0435<\/h3><div>\u041b\u0435\u0441\u043d\u0435\u0432\u0441\u043a\u0430\u044f \u042f\u0434\u0432\u0438\u0433\u0430 \u0413\u0435\u043d\u043d\u0430\u0434\u044c\u0435\u0432\u043d\u0430, \u0438\u043c\u0435\u0435\u0442&nbsp;\u0432\u044b\u0441\u0448\u0435\u0435 \u044d\u043a\u043e\u043d\u043e\u043c\u0438\u0447\u0435\u0441\u043a\u043e\u0435 \u043e\u0431\u0440\u0430\u0437\u043e\u0432\u0430\u043d\u0438\u0435, \u0441 \u043e\u0442\u043b\u0438\u0447\u0438\u0435\u043c \u0437\u0430\u043a\u043e\u043d\u0447\u0438\u043b\u0430 \u041c\u043e\u0441\u043a\u043e\u0432\u0441\u043a\u0438\u0439 \u0420\u043e\u0441\u0441\u0438\u0439\u0441\u043a\u0438\u0439 \u0413\u043e\u0441\u0443\u0434\u0430\u0440\u0441\u0442\u0432\u0435\u043d\u043d\u044b\u0439 \u0413\u0443\u043c\u0430\u043d\u0438\u0442\u0430\u0440\u043d\u044b\u0439 \u0423\u043d\u0438\u0432\u0435\u0440\u0441\u0438\u0442\u0435\u0442.<\/div><div>\u0421 2010 \u0440\u0430\u0431\u043e\u0442\u0430\u0435\u0442 \u0432 \u041a\u043e\u043c\u043f\u0430\u043d\u0438\u0438, \u0443\u0441\u043f\u0435\u0448\u043d\u043e \u0440\u0430\u0431\u043e\u0442\u0430\u0435\u0442 \u043f\u043e \u043d\u0430\u043f\u0440\u0430\u0432\u043b\u0435\u043d\u0438\u044f\u043c : \u0432\u0442\u043e\u0440\u0438\u0447\u043d\u044b\u0439 \u0440\u044b\u043d\u043e\u043a, \u0437\u0430\u0433\u043e\u0440\u043e\u0434\u043d\u0430\u044f \u043d\u0435\u0434\u0432\u0438\u0436\u0438\u043c\u043e\u0441\u0442\u044c \u0438 \u0430\u0440\u0435\u043d\u0434\u0430 \u0436\u0438\u043b\u044b\u0445 \u043f\u043e\u043c\u0435\u0449\u0435\u043d\u0438\u0439.&nbsp;\u041c\u044b \u043e\u0440\u0438\u0435\u043d\u0442\u0438\u0440\u043e\u0432\u0430\u043d\u044b \u043d\u0430 \u0434\u043e\u043b\u0433\u043e\u0441\u0440\u043e\u0447\u043d\u043e\u0435 \u0441\u043e\u0442\u0440\u0443\u0434\u043d\u0438\u0447\u0435\u0441\u0442\u0432\u043e \u0441 \u043d\u0430\u0448\u0438\u043c\u0438 \u043a\u043b\u0438\u0435\u043d\u0442\u0430\u043c\u0438, \u043f\u043e\u044d\u0442\u043e\u043c\u0443 \u0434\u043b\u044f \u043d\u0430\u0441 \u043f\u0440\u0438\u043d\u0446\u0438\u043f\u0438\u0430\u043b\u044c\u043d\u043e \u0432\u0430\u0436\u043d\u043e \u043a\u0430\u0447\u0435\u0441\u0442\u0432\u043e \u043d\u0430\u0448\u0435\u0439 \u0440\u0430\u0431\u043e\u0442\u044b.&nbsp;<\/div><div><br \/><\/div>","oadm":0,"gender":0,"shows":1,"selfemployed":0,"individual":0,"in_state":0,"in_office":0,"site_post":"","is_fired":0,"direct_submission":0,"direct_submission_id":1,"mim":2740,"change":1,"is_active":1,"noindex":0,"must_index":0,"jivo":1,"basic_office_id":"000000012","precinct":0,"slaves_notifications":1,"is_blocked":0,"overrides":{"about_agent":"<p><span class=\"text-secondary\">\u0417\u0434\u0440\u0430\u0432\u0441\u0442\u0432\u0443\u0439\u0442\u0435,&nbsp;\u043c\u0435\u043d\u044f \u0437\u043e\u0432\u0443\u0442 \u2014&nbsp;&nbsp;\u041b\u0435\u0441\u043d\u0435\u0432\u0441\u043a\u0430\u044f \u042f\u0434\u0432\u0438\u0433\u0430 \u0413\u0435\u043d\u043d\u0430\u0434\u044c\u0435\u0432\u043d\u0430,&nbsp;\u0438\u043c\u0435\u044e&nbsp;\u0432\u044b\u0441\u0448\u0435\u0435 \u044d\u043a\u043e\u043d\u043e\u043c\u0438\u0447\u0435\u0441\u043a\u043e\u0435 \u043e\u0431\u0440\u0430\u0437\u043e\u0432\u0430\u043d\u0438\u0435, \u0441 \u043e\u0442\u043b\u0438\u0447\u0438\u0435\u043c \u0437\u0430\u043a\u043e\u043d\u0447\u0438\u043b\u0430 \u0420\u043e\u0441\u0441\u0438\u0439\u0441\u043a\u0438\u0439 \u0413\u043e\u0441\u0443\u0434\u0430\u0440\u0441\u0442\u0432\u0435\u043d\u043d\u044b\u0439 \u0413\u0443\u043c\u0430\u043d\u0438\u0442\u0430\u0440\u043d\u044b\u0439 \u0423\u043d\u0438\u0432\u0435\u0440\u0441\u0438\u0442\u0435\u0442. \u0412&nbsp;\u043a\u043e\u043c\u043f\u0430\u043d\u0438\u0438 \u00ab\u0418\u0442\u0430\u043a\u0430\u00bb&nbsp;\u0440\u0430\u0431\u043e\u0442\u0430\u044e&nbsp;\u0441 2010,&nbsp;\u0437\u0430 \u043f\u043b\u0435\u0447\u0430\u043c\u0438 \u0434\u0435\u0441\u044f\u0442\u043a\u0438 \u0443\u0434\u0430\u0447\u043d\u044b\u0445 \u0441\u0434\u0435\u043b\u043e\u043a&nbsp;\u0441 \u0432\u0442\u043e\u0440\u0438\u0447\u043d\u043e\u0439 \u043d\u0435\u0434\u0432\u0438\u0436\u0438\u043c\u043e\u0441\u0442\u044c\u044e, \u043f\u0435\u0440\u0432\u0438\u0447\u043d\u043e\u0439 \u0438 \u0441\u043e\u0442\u043d\u0438 \u0434\u043e\u0433\u043e\u0432\u043e\u0440\u043e\u0432 \u0430\u0440\u0435\u043d\u0434\u044b. \u0421\u043f\u0435\u0446\u0438\u0430\u043b\u0438\u0441\u0442 \u0438\u0437 \u043a\u0440\u0443\u043f\u043d\u043e\u0439 \u043a\u043e\u043c\u043f\u0430\u043d\u0438\u0438 \u044d\u0442\u043e \u0432\u0441\u0435\u0433\u0434\u0430 \u043e\u0433\u0440\u043e\u043c\u043d\u044b\u0439 \u0431\u0430\u0433\u0430\u0436 \u0437\u043d\u0430\u043d\u0438\u0439,&nbsp;\u044d\u0442\u043e \u0432\u0430\u0436\u043d\u043e, \u0442\u0430\u043a \u043a\u0430\u043a \u0432 \u043d\u0430\u0448\u0435\u0439 \u043f\u0440\u043e\u0444\u0435\u0441\u0441\u0438\u0438 \u043d\u0435 \u0431\u044b\u0432\u0430\u0435\u0442 \u0434\u0432\u0443\u0445 \u043e\u0434\u0438\u043d\u0430\u043a\u043e\u0432\u044b\u0445 \u0441\u0434\u0435\u043b\u043e\u043a \u0438 \u0432\u0441\u0435\u0433\u0434\u0430 \u043f\u043e\u044f\u0432\u043b\u044f\u044e\u0442\u0441\u044f \u043d\u043e\u0432\u0448\u0435\u0441\u0442\u0432\u0430&nbsp;\u0432 \u043e\u0444\u043e\u0440\u043c\u043b\u0435\u043d\u0438\u0438, \u0443\u0441\u043b\u043e\u0432\u0438\u044f\u0445 \u0438 \u0417\u0430\u043a\u043e\u043d\u043e\u0434\u0430\u0442\u0435\u043b\u044c\u0441\u0442\u0432\u0435.&nbsp;\u0412\u0441\u0435\u0433\u0434\u0430 \u043e\u0431\u0443\u0447\u0430\u044e\u0441\u044c&nbsp;\u043d\u0430 \u0440\u0430\u0437\u043b\u0438\u0447\u043d\u044b\u0445 \u043a\u0443\u0440\u0441\u0430\u0445, \u0441\u0435\u043c\u0438\u043d\u0430\u0440\u0430\u0445 \u0438 \u0432\u0435\u0431\u0438\u043d\u0430\u0440\u0430\u0445, \u043f\u043e\u0432\u044b\u0448\u0430\u044f \u0441\u0432\u043e\u0439 \u043f\u0440\u043e\u0444\u0435\u0441\u0441\u0438\u043e\u043d\u0430\u043b\u044c\u043d\u044b\u0439 \u0443\u0440\u043e\u0432\u0435\u043d\u044c.&nbsp;\u042f\u0432\u043b\u044f\u044e\u0441\u044c \u0441\u0435\u0440\u0442\u0438\u0444\u0438\u0446\u0438\u0440\u043e\u0432\u0430\u043d\u043d\u044b\u043c \u0440\u0438\u044d\u043b\u0442\u043e\u0440\u043e\u043c \u0410\u0441\u0441\u043e\u0446\u0438\u0430\u0446\u0438\u0438 \u0420\u0438\u044d\u043b\u0442\u043e\u0440\u043e\u0432 \u0421\u0430\u043d\u043a\u0442-\u041f\u0435\u0442\u0435\u0440\u0431\u0443\u0440\u0433\u0430 \u0438 \u041b\u0435\u043d. \u043e\u0431\u043b\u0430\u0441\u0442\u0438, \u0413\u0438\u043b\u044c\u0434\u0438\u0438 \u0420\u0438\u044d\u043b\u0442\u043e\u0440\u043e\u0432 \u0420\u043e\u0441\u0441\u0438\u0438.&nbsp;\u0417\u0430 \u0433\u043e\u0434\u044b&nbsp;\u0440\u0430\u0431\u043e\u0442\u044b \u043f\u0440\u0438\u043e\u0431\u0440\u0435\u043b\u0430 \u0431\u043e\u043b\u044c\u0448\u043e\u0439 \u043e\u043f\u044b\u0442 \u0438 \u043c\u043d\u043e\u0433\u043e\u0447\u0438\u0441\u043b\u0435\u043d\u043d\u044b\u0445 \u043a\u043b\u0438\u0435\u043d\u0442\u043e\u0432, \u043a\u043e\u0442\u043e\u0440\u044b\u0445 \u043e\u0447\u0435\u043d\u044c \u0443\u0432\u0430\u0436\u0430\u044e \u0438 \u0446\u0435\u043d\u044e.&nbsp;\u041c\u043e\u044f \u0440\u0430\u0431\u043e\u0442\u0430, \u044d\u0442\u043e \u043f\u0440\u043e\u0434\u0430\u0436\u0430&nbsp;\u043d\u0435\u0434\u0432\u0438\u0436\u0438\u043c\u043e\u0441\u0442\u0438, \u043f\u043e\u0434\u0431\u043e\u0440 \u043d\u0435\u0434\u0432\u0438\u0436\u0438\u043c\u043e\u0441\u0442\u0438 \u0434\u043b\u044f \u043f\u043e\u043a\u0443\u043f\u043a\u0438, \u0430\u0440\u0435\u043d\u0434\u0430,&nbsp;\u0434\u043e\u0432\u0435\u0440\u0438\u0442\u0435\u043b\u044c\u043d\u043e\u0435 \u0443\u043f\u0440\u0430\u0432\u043b\u0435\u043d\u0438\u0435 \u0438 \u043f\u0440. \u041f\u0440\u043e\u0432\u043e\u0436\u0443 \u0441\u0434\u0435\u043b\u043a\u0438 \u043b\u044e\u0431\u043e\u0439 \u0441\u043b\u043e\u0436\u043d\u043e\u0441\u0442\u0438, \u0441\u0434\u0435\u043b\u043a\u0438 \u0441 \u0441\u0435\u0440\u0442\u0438\u0444\u0438\u043a\u0430\u0442\u0430\u043c\u0438, \u0441\u0443\u0431\u0441\u0438\u0434\u0438\u044f\u043c\u0438, \u0432\u043e\u0435\u043d\u043d\u043e\u0439&nbsp;\u0438\u043f\u043e\u0442\u0435\u043a\u043e\u0439, \u043e\u0431\u044a\u0435\u043a\u0442\u0430\u043c\u0438 \u043d\u0430\u0445\u043e\u0434\u044f\u0449\u0438\u043c\u0438\u0441\u044f \u0432 \u0437\u0430\u043b\u043e\u0433\u0435 \u0443 \u0431\u0430\u043d\u043a\u0430, \u043e\u0431\u0440\u0435\u043c\u0435\u043d\u0435\u043d\u0438\u044f\u043c\u0438 \u0438&nbsp;\u043d\u0435\u0441\u043e\u0432\u0435\u0440\u0448\u0435\u043d\u043d\u043e\u043b\u0435\u0442\u043d\u0438\u043c\u0438&nbsp;\u0441\u043e\u0431\u0441\u0442\u0432\u0435\u043d\u043d\u0438\u043a\u0430\u043c\u0438.&nbsp;\u0418\u043d\u0434\u0438\u0432\u0438\u0434\u0443\u0430\u043b\u044c\u043d\u044b\u0439 \u043f\u043e\u0434\u0445\u043e\u0434 \u043a \u043a\u0430\u0436\u0434\u043e\u043c\u0443 \u043a\u043b\u0438\u0435\u043d\u0442\u0443, \u0432\u043d\u0438\u043c\u0430\u0442\u0435\u043b\u044c\u043d\u043e\u0441\u0442\u044c \u043a \u0434\u0435\u0442\u0430\u043b\u044f\u043c, \u0448\u0438\u0440\u043e\u043a\u0438\u0439 \u043a\u0440\u0443\u0433\u043e\u0437\u043e\u0440 \u0438 \u0431\u043e\u043b\u044c\u0448\u043e\u0439 \u043e\u043f\u044b\u0442 - \u043c\u043e\u0438 \u0441\u043f\u0443\u0442\u043d\u0438\u043a\u0438 \u0432 \u0440\u0430\u0431\u043e\u0442\u0435. \u0421\u043e \u043c\u043d\u043e\u0439, \u0412\u0430\u043c \u0431\u0443\u0434\u0435\u0442 \u0441\u043f\u043e\u043a\u043e\u0439\u043d\u043e.<\/span>\r\n \r\n <\/p>","about_agent_uin":"p>","photo_sq":"lk_1641975543_1ff394c00617545ccdd7c6af6060b0f0.png","photo_sq_uin":"lk_1641975543_1ff394c00617545ccdd7c6af6060b0f0.png","video":"https:\/\/youtu.be\/gcWcBE8Cxto","video_uin":"gcWcBE8Cxto"},"wp":false,"phone_f":"78127407040","office":{"id":"000000012","url":"moskovskij-pr-186","name":"\u041c\u043e\u0441\u043a\u043e\u0432\u0441\u043a\u0438\u0439 \u043f\u0440., 186","adress":"\u0433. \u0421\u0430\u043d\u043a\u0442-\u041f\u0435\u0442\u0435\u0440\u0431\u0443\u0440\u0433, \u041c\u043e\u0441\u043a\u043e\u0432\u0441\u043a\u0438\u0439 \u0440-\u043d, \u041c\u043e\u0441\u043a\u043e\u0432\u0441\u043a\u0438\u0439 \u043f\u0440., \u0434. 186","coords":"59.872651,30.321509","pano_coords":"59.8717011700986,30.3213454463","pano_direction":"20.08648461927154,1.127538960384532","pano_span":"58.807766959254884,30.782069456854835","email":"moskovsk@itaka.ru","phone":"88123272717","metro_stations_id":20,"region_id":78,"district_id":null,"coords_metro":null,"coords_top":null,"coords_left":null,"spbzn_coords_top":null,"spbzn_coords_left":null,"change":1,"td_id":7,"order":80,"deleted_at":null,"SuccessOverrides":{"0":{"id":4882,"model":"Offices","target_id":0,"target_id_str":"000000012","field":"order","value":"10032,2234,129,11151,255,2879,284,231,702,663,13651,13819,12585,15322,14846","is_current":0,"is_moderated_adm":1,"is_moderated_tech":1,"is_selected":0,"creator_id":440,"moderator_adm_id":440,"moderator_tech_id":440,"adm_reason":null,"tech_reason":null,"created_at":"2023-10-12T14:15:02.000000Z","updated_at":"2023-10-12T14:15:02.000000Z"},"3":{"id":3748,"model":"Offices","target_id":0,"target_id_str":"000000012","field":"schedule","value":"\u041f\u043d-\u041f\u0442: 10:00-19:00<br \/>\r\n\u0421\u0431, \u0432\u0441 - \u0432\u044b\u0445\u043e\u0434\u043d\u044b\u0435","is_current":0,"is_moderated_adm":1,"is_moderated_tech":1,"is_selected":0,"creator_id":440,"moderator_adm_id":440,"moderator_tech_id":440,"adm_reason":null,"tech_reason":null,"created_at":"2022-10-13T11:50:53.000000Z","updated_at":"2022-10-13T11:50:53.000000Z"},"4":{"id":3571,"model":"Offices","target_id":0,"target_id_str":"000000012","field":"phone","value":"+7 (921) 952-98-32","is_current":0,"is_moderated_adm":1,"is_moderated_tech":1,"is_selected":0,"creator_id":440,"moderator_adm_id":440,"moderator_tech_id":440,"adm_reason":null,"tech_reason":null,"created_at":"2022-08-05T16:55:42.000000Z","updated_at":"2022-08-05T16:55:42.000000Z"},"6":{"id":3044,"model":"Offices","target_id":0,"target_id_str":"000000012","field":"add_agent_id","value":"9557","is_current":0,"is_moderated_adm":1,"is_moderated_tech":1,"is_selected":0,"creator_id":440,"moderator_adm_id":440,"moderator_tech_id":440,"adm_reason":null,"tech_reason":null,"created_at":"2022-03-24T17:13:20.000000Z","updated_at":"2022-03-24T17:13:20.000000Z"}},"Hours":null},"Mimfio":{"id":2740,"url":"anna-kalinichenko","F":"\u041a\u0430\u043b\u0438\u043d\u0438\u0447\u0435\u043d\u043a\u043e","I":"\u0410\u043d\u043d\u0430","O":"\u0412\u0430\u043b\u0435\u0440\u044c\u0435\u0432\u043d\u0430","phone":"89219303896","email":"Anna@itaka.ru","personal_phone":"","personal_email":"","birthday":null,"photo_sq":"agent_2740_sq.jpeg","photo_cir":"agent_2740_cir.jpeg","photo":null,"online":0,"text":null,"oadm":1,"gender":null,"shows":1,"selfemployed":0,"individual":0,"in_state":0,"in_office":0,"site_post":"\u041f\u043e\u043c\u043e\u0448\u043d\u0438\u043a \u0433\u0435\u043d\u0435\u0440\u0430\u043b\u044c\u043d\u043e\u0433\u043e \u0434\u0438\u0440\u0435\u043a\u0442\u043e\u0440\u0430","is_fired":0,"direct_submission":1,"direct_submission_id":1,"mim":null,"change":1,"is_active":1,"noindex":0,"must_index":0,"jivo":0,"basic_office_id":null,"precinct":0,"slaves_notifications":1,"is_blocked":0,"Mimfio":false},"success_overrides":[{"id":2425,"model":"Agents","target_id":10210,"target_id_str":null,"field":"about_agent","value":"<p><span class=\"text-secondary\">\u0417\u0434\u0440\u0430\u0432\u0441\u0442\u0432\u0443\u0439\u0442\u0435,&nbsp;\u043c\u0435\u043d\u044f \u0437\u043e\u0432\u0443\u0442 \u2014&nbsp;&nbsp;\u041b\u0435\u0441\u043d\u0435\u0432\u0441\u043a\u0430\u044f \u042f\u0434\u0432\u0438\u0433\u0430 \u0413\u0435\u043d\u043d\u0430\u0434\u044c\u0435\u0432\u043d\u0430,&nbsp;\u0438\u043c\u0435\u044e&nbsp;\u0432\u044b\u0441\u0448\u0435\u0435 \u044d\u043a\u043e\u043d\u043e\u043c\u0438\u0447\u0435\u0441\u043a\u043e\u0435 \u043e\u0431\u0440\u0430\u0437\u043e\u0432\u0430\u043d\u0438\u0435, \u0441 \u043e\u0442\u043b\u0438\u0447\u0438\u0435\u043c \u0437\u0430\u043a\u043e\u043d\u0447\u0438\u043b\u0430 \u0420\u043e\u0441\u0441\u0438\u0439\u0441\u043a\u0438\u0439 \u0413\u043e\u0441\u0443\u0434\u0430\u0440\u0441\u0442\u0432\u0435\u043d\u043d\u044b\u0439 \u0413\u0443\u043c\u0430\u043d\u0438\u0442\u0430\u0440\u043d\u044b\u0439 \u0423\u043d\u0438\u0432\u0435\u0440\u0441\u0438\u0442\u0435\u0442. \u0412&nbsp;\u043a\u043e\u043c\u043f\u0430\u043d\u0438\u0438 \u00ab\u0418\u0442\u0430\u043a\u0430\u00bb&nbsp;\u0440\u0430\u0431\u043e\u0442\u0430\u044e&nbsp;\u0441 2010,&nbsp;\u0437\u0430 \u043f\u043b\u0435\u0447\u0430\u043c\u0438 \u0434\u0435\u0441\u044f\u0442\u043a\u0438 \u0443\u0434\u0430\u0447\u043d\u044b\u0445 \u0441\u0434\u0435\u043b\u043e\u043a&nbsp;\u0441 \u0432\u0442\u043e\u0440\u0438\u0447\u043d\u043e\u0439 \u043d\u0435\u0434\u0432\u0438\u0436\u0438\u043c\u043e\u0441\u0442\u044c\u044e, \u043f\u0435\u0440\u0432\u0438\u0447\u043d\u043e\u0439 \u0438 \u0441\u043e\u0442\u043d\u0438 \u0434\u043e\u0433\u043e\u0432\u043e\u0440\u043e\u0432 \u0430\u0440\u0435\u043d\u0434\u044b. \u0421\u043f\u0435\u0446\u0438\u0430\u043b\u0438\u0441\u0442 \u0438\u0437 \u043a\u0440\u0443\u043f\u043d\u043e\u0439 \u043a\u043e\u043c\u043f\u0430\u043d\u0438\u0438 \u044d\u0442\u043e \u0432\u0441\u0435\u0433\u0434\u0430 \u043e\u0433\u0440\u043e\u043c\u043d\u044b\u0439 \u0431\u0430\u0433\u0430\u0436 \u0437\u043d\u0430\u043d\u0438\u0439,&nbsp;\u044d\u0442\u043e \u0432\u0430\u0436\u043d\u043e, \u0442\u0430\u043a \u043a\u0430\u043a \u0432 \u043d\u0430\u0448\u0435\u0439 \u043f\u0440\u043e\u0444\u0435\u0441\u0441\u0438\u0438 \u043d\u0435 \u0431\u044b\u0432\u0430\u0435\u0442 \u0434\u0432\u0443\u0445 \u043e\u0434\u0438\u043d\u0430\u043a\u043e\u0432\u044b\u0445 \u0441\u0434\u0435\u043b\u043e\u043a \u0438 \u0432\u0441\u0435\u0433\u0434\u0430 \u043f\u043e\u044f\u0432\u043b\u044f\u044e\u0442\u0441\u044f \u043d\u043e\u0432\u0448\u0435\u0441\u0442\u0432\u0430&nbsp;\u0432 \u043e\u0444\u043e\u0440\u043c\u043b\u0435\u043d\u0438\u0438, \u0443\u0441\u043b\u043e\u0432\u0438\u044f\u0445 \u0438 \u0417\u0430\u043a\u043e\u043d\u043e\u0434\u0430\u0442\u0435\u043b\u044c\u0441\u0442\u0432\u0435.&nbsp;\u0412\u0441\u0435\u0433\u0434\u0430 \u043e\u0431\u0443\u0447\u0430\u044e\u0441\u044c&nbsp;\u043d\u0430 \u0440\u0430\u0437\u043b\u0438\u0447\u043d\u044b\u0445 \u043a\u0443\u0440\u0441\u0430\u0445, \u0441\u0435\u043c\u0438\u043d\u0430\u0440\u0430\u0445 \u0438 \u0432\u0435\u0431\u0438\u043d\u0430\u0440\u0430\u0445, \u043f\u043e\u0432\u044b\u0448\u0430\u044f \u0441\u0432\u043e\u0439 \u043f\u0440\u043e\u0444\u0435\u0441\u0441\u0438\u043e\u043d\u0430\u043b\u044c\u043d\u044b\u0439 \u0443\u0440\u043e\u0432\u0435\u043d\u044c.&nbsp;\u042f\u0432\u043b\u044f\u044e\u0441\u044c \u0441\u0435\u0440\u0442\u0438\u0444\u0438\u0446\u0438\u0440\u043e\u0432\u0430\u043d\u043d\u044b\u043c \u0440\u0438\u044d\u043b\u0442\u043e\u0440\u043e\u043c \u0410\u0441\u0441\u043e\u0446\u0438\u0430\u0446\u0438\u0438 \u0420\u0438\u044d\u043b\u0442\u043e\u0440\u043e\u0432 \u0421\u0430\u043d\u043a\u0442-\u041f\u0435\u0442\u0435\u0440\u0431\u0443\u0440\u0433\u0430 \u0438 \u041b\u0435\u043d. \u043e\u0431\u043b\u0430\u0441\u0442\u0438, \u0413\u0438\u043b\u044c\u0434\u0438\u0438 \u0420\u0438\u044d\u043b\u0442\u043e\u0440\u043e\u0432 \u0420\u043e\u0441\u0441\u0438\u0438.&nbsp;\u0417\u0430 \u0433\u043e\u0434\u044b&nbsp;\u0440\u0430\u0431\u043e\u0442\u044b \u043f\u0440\u0438\u043e\u0431\u0440\u0435\u043b\u0430 \u0431\u043e\u043b\u044c\u0448\u043e\u0439 \u043e\u043f\u044b\u0442 \u0438 \u043c\u043d\u043e\u0433\u043e\u0447\u0438\u0441\u043b\u0435\u043d\u043d\u044b\u0445 \u043a\u043b\u0438\u0435\u043d\u0442\u043e\u0432, \u043a\u043e\u0442\u043e\u0440\u044b\u0445 \u043e\u0447\u0435\u043d\u044c \u0443\u0432\u0430\u0436\u0430\u044e \u0438 \u0446\u0435\u043d\u044e.&nbsp;\u041c\u043e\u044f \u0440\u0430\u0431\u043e\u0442\u0430, \u044d\u0442\u043e \u043f\u0440\u043e\u0434\u0430\u0436\u0430&nbsp;\u043d\u0435\u0434\u0432\u0438\u0436\u0438\u043c\u043e\u0441\u0442\u0438, \u043f\u043e\u0434\u0431\u043e\u0440 \u043d\u0435\u0434\u0432\u0438\u0436\u0438\u043c\u043e\u0441\u0442\u0438 \u0434\u043b\u044f \u043f\u043e\u043a\u0443\u043f\u043a\u0438, \u0430\u0440\u0435\u043d\u0434\u0430,&nbsp;\u0434\u043e\u0432\u0435\u0440\u0438\u0442\u0435\u043b\u044c\u043d\u043e\u0435 \u0443\u043f\u0440\u0430\u0432\u043b\u0435\u043d\u0438\u0435 \u0438 \u043f\u0440. \u041f\u0440\u043e\u0432\u043e\u0436\u0443 \u0441\u0434\u0435\u043b\u043a\u0438 \u043b\u044e\u0431\u043e\u0439 \u0441\u043b\u043e\u0436\u043d\u043e\u0441\u0442\u0438, \u0441\u0434\u0435\u043b\u043a\u0438 \u0441 \u0441\u0435\u0440\u0442\u0438\u0444\u0438\u043a\u0430\u0442\u0430\u043c\u0438, \u0441\u0443\u0431\u0441\u0438\u0434\u0438\u044f\u043c\u0438, \u0432\u043e\u0435\u043d\u043d\u043e\u0439&nbsp;\u0438\u043f\u043e\u0442\u0435\u043a\u043e\u0439, \u043e\u0431\u044a\u0435\u043a\u0442\u0430\u043c\u0438 \u043d\u0430\u0445\u043e\u0434\u044f\u0449\u0438\u043c\u0438\u0441\u044f \u0432 \u0437\u0430\u043b\u043e\u0433\u0435 \u0443 \u0431\u0430\u043d\u043a\u0430, \u043e\u0431\u0440\u0435\u043c\u0435\u043d\u0435\u043d\u0438\u044f\u043c\u0438 \u0438&nbsp;\u043d\u0435\u0441\u043e\u0432\u0435\u0440\u0448\u0435\u043d\u043d\u043e\u043b\u0435\u0442\u043d\u0438\u043c\u0438&nbsp;\u0441\u043e\u0431\u0441\u0442\u0432\u0435\u043d\u043d\u0438\u043a\u0430\u043c\u0438.&nbsp;\u0418\u043d\u0434\u0438\u0432\u0438\u0434\u0443\u0430\u043b\u044c\u043d\u044b\u0439 \u043f\u043e\u0434\u0445\u043e\u0434 \u043a \u043a\u0430\u0436\u0434\u043e\u043c\u0443 \u043a\u043b\u0438\u0435\u043d\u0442\u0443, \u0432\u043d\u0438\u043c\u0430\u0442\u0435\u043b\u044c\u043d\u043e\u0441\u0442\u044c \u043a \u0434\u0435\u0442\u0430\u043b\u044f\u043c, \u0448\u0438\u0440\u043e\u043a\u0438\u0439 \u043a\u0440\u0443\u0433\u043e\u0437\u043e\u0440 \u0438 \u0431\u043e\u043b\u044c\u0448\u043e\u0439 \u043e\u043f\u044b\u0442 - \u043c\u043e\u0438 \u0441\u043f\u0443\u0442\u043d\u0438\u043a\u0438 \u0432 \u0440\u0430\u0431\u043e\u0442\u0435. \u0421\u043e \u043c\u043d\u043e\u0439, \u0412\u0430\u043c \u0431\u0443\u0434\u0435\u0442 \u0441\u043f\u043e\u043a\u043e\u0439\u043d\u043e.<\/span>\r\n \r\n <\/p>","is_current":0,"is_moderated_adm":1,"is_moderated_tech":1,"is_selected":0,"creator_id":768,"moderator_adm_id":440,"moderator_tech_id":440,"adm_reason":null,"tech_reason":null,"created_at":"2022-01-12T10:58:29.000000Z","updated_at":"2022-01-12T11:27:22.000000Z"},{"id":2430,"model":"Agents","target_id":10210,"target_id_str":null,"field":"photo_sq","value":"lk_1641975543_1ff394c00617545ccdd7c6af6060b0f0.png","is_current":0,"is_moderated_adm":1,"is_moderated_tech":1,"is_selected":0,"creator_id":768,"moderator_adm_id":440,"moderator_tech_id":440,"adm_reason":null,"tech_reason":null,"created_at":"2022-01-12T11:19:03.000000Z","updated_at":"2022-01-12T11:27:25.000000Z"},{"id":5131,"model":"Agents","target_id":10210,"target_id_str":null,"field":"video","value":"https:\/\/youtu.be\/gcWcBE8Cxto","is_current":0,"is_moderated_adm":1,"is_moderated_tech":1,"is_selected":0,"creator_id":440,"moderator_adm_id":440,"moderator_tech_id":440,"adm_reason":null,"tech_reason":null,"created_at":"2023-11-16T10:07:46.000000Z","updated_at":"2023-11-16T10:07:49.000000Z"}]},{"id":10210,"url":"yadviga-lesnevskaya","F":"\u041b\u0435\u0441\u043d\u0435\u0432\u0441\u043a\u0430\u044f","I":"\u042f\u0434\u0432\u0438\u0433\u0430","O":"\u0413\u0435\u043d\u043d\u0430\u0434\u044c\u0435\u0432\u043d\u0430","phone":"+7 (812) 740-70-40","email":"LesnevskajaYG@itaka.ru","personal_phone":"8-921-317-37-93","personal_email":"LesnevskajaYG@itaka.ru","birthday":"1974-09-12","photo_sq":"\/img\/avatar\/lk_1641975543_1ff394c00617545ccdd7c6af6060b0f0.png","photo_cir":"agent_10210_cir.png","photo":null,"online":1,"text":"<h3>\u0418\u043d\u0444\u043e\u0440\u043c\u0430\u0446\u0438\u044f \u043e\u0431 \u0430\u0433\u0435\u043d\u0442\u0435<\/h3><div>\u041b\u0435\u0441\u043d\u0435\u0432\u0441\u043a\u0430\u044f \u042f\u0434\u0432\u0438\u0433\u0430 \u0413\u0435\u043d\u043d\u0430\u0434\u044c\u0435\u0432\u043d\u0430, \u0438\u043c\u0435\u0435\u0442&nbsp;\u0432\u044b\u0441\u0448\u0435\u0435 \u044d\u043a\u043e\u043d\u043e\u043c\u0438\u0447\u0435\u0441\u043a\u043e\u0435 \u043e\u0431\u0440\u0430\u0437\u043e\u0432\u0430\u043d\u0438\u0435, \u0441 \u043e\u0442\u043b\u0438\u0447\u0438\u0435\u043c \u0437\u0430\u043a\u043e\u043d\u0447\u0438\u043b\u0430 \u041c\u043e\u0441\u043a\u043e\u0432\u0441\u043a\u0438\u0439 \u0420\u043e\u0441\u0441\u0438\u0439\u0441\u043a\u0438\u0439 \u0413\u043e\u0441\u0443\u0434\u0430\u0440\u0441\u0442\u0432\u0435\u043d\u043d\u044b\u0439 \u0413\u0443\u043c\u0430\u043d\u0438\u0442\u0430\u0440\u043d\u044b\u0439 \u0423\u043d\u0438\u0432\u0435\u0440\u0441\u0438\u0442\u0435\u0442.<\/div><div>\u0421 2010 \u0440\u0430\u0431\u043e\u0442\u0430\u0435\u0442 \u0432 \u041a\u043e\u043c\u043f\u0430\u043d\u0438\u0438, \u0443\u0441\u043f\u0435\u0448\u043d\u043e \u0440\u0430\u0431\u043e\u0442\u0430\u0435\u0442 \u043f\u043e \u043d\u0430\u043f\u0440\u0430\u0432\u043b\u0435\u043d\u0438\u044f\u043c : \u0432\u0442\u043e\u0440\u0438\u0447\u043d\u044b\u0439 \u0440\u044b\u043d\u043e\u043a, \u0437\u0430\u0433\u043e\u0440\u043e\u0434\u043d\u0430\u044f \u043d\u0435\u0434\u0432\u0438\u0436\u0438\u043c\u043e\u0441\u0442\u044c \u0438 \u0430\u0440\u0435\u043d\u0434\u0430 \u0436\u0438\u043b\u044b\u0445 \u043f\u043e\u043c\u0435\u0449\u0435\u043d\u0438\u0439.&nbsp;\u041c\u044b \u043e\u0440\u0438\u0435\u043d\u0442\u0438\u0440\u043e\u0432\u0430\u043d\u044b \u043d\u0430 \u0434\u043e\u043b\u0433\u043e\u0441\u0440\u043e\u0447\u043d\u043e\u0435 \u0441\u043e\u0442\u0440\u0443\u0434\u043d\u0438\u0447\u0435\u0441\u0442\u0432\u043e \u0441 \u043d\u0430\u0448\u0438\u043c\u0438 \u043a\u043b\u0438\u0435\u043d\u0442\u0430\u043c\u0438, \u043f\u043e\u044d\u0442\u043e\u043c\u0443 \u0434\u043b\u044f \u043d\u0430\u0441 \u043f\u0440\u0438\u043d\u0446\u0438\u043f\u0438\u0430\u043b\u044c\u043d\u043e \u0432\u0430\u0436\u043d\u043e \u043a\u0430\u0447\u0435\u0441\u0442\u0432\u043e \u043d\u0430\u0448\u0435\u0439 \u0440\u0430\u0431\u043e\u0442\u044b.&nbsp;<\/div><div><br \/><\/div>","oadm":0,"gender":0,"shows":1,"selfemployed":0,"individual":0,"in_state":0,"in_office":0,"site_post":"","is_fired":0,"direct_submission":0,"direct_submission_id":1,"mim":2740,"change":1,"is_active":1,"noindex":0,"must_index":0,"jivo":1,"basic_office_id":"000000012","precinct":0,"slaves_notifications":1,"is_blocked":0,"overrides":{"about_agent":"<p><span class=\"text-secondary\">\u0417\u0434\u0440\u0430\u0432\u0441\u0442\u0432\u0443\u0439\u0442\u0435,&nbsp;\u043c\u0435\u043d\u044f \u0437\u043e\u0432\u0443\u0442 \u2014&nbsp;&nbsp;\u041b\u0435\u0441\u043d\u0435\u0432\u0441\u043a\u0430\u044f \u042f\u0434\u0432\u0438\u0433\u0430 \u0413\u0435\u043d\u043d\u0430\u0434\u044c\u0435\u0432\u043d\u0430,&nbsp;\u0438\u043c\u0435\u044e&nbsp;\u0432\u044b\u0441\u0448\u0435\u0435 \u044d\u043a\u043e\u043d\u043e\u043c\u0438\u0447\u0435\u0441\u043a\u043e\u0435 \u043e\u0431\u0440\u0430\u0437\u043e\u0432\u0430\u043d\u0438\u0435, \u0441 \u043e\u0442\u043b\u0438\u0447\u0438\u0435\u043c \u0437\u0430\u043a\u043e\u043d\u0447\u0438\u043b\u0430 \u0420\u043e\u0441\u0441\u0438\u0439\u0441\u043a\u0438\u0439 \u0413\u043e\u0441\u0443\u0434\u0430\u0440\u0441\u0442\u0432\u0435\u043d\u043d\u044b\u0439 \u0413\u0443\u043c\u0430\u043d\u0438\u0442\u0430\u0440\u043d\u044b\u0439 \u0423\u043d\u0438\u0432\u0435\u0440\u0441\u0438\u0442\u0435\u0442. \u0412&nbsp;\u043a\u043e\u043c\u043f\u0430\u043d\u0438\u0438 \u00ab\u0418\u0442\u0430\u043a\u0430\u00bb&nbsp;\u0440\u0430\u0431\u043e\u0442\u0430\u044e&nbsp;\u0441 2010,&nbsp;\u0437\u0430 \u043f\u043b\u0435\u0447\u0430\u043c\u0438 \u0434\u0435\u0441\u044f\u0442\u043a\u0438 \u0443\u0434\u0430\u0447\u043d\u044b\u0445 \u0441\u0434\u0435\u043b\u043e\u043a&nbsp;\u0441 \u0432\u0442\u043e\u0440\u0438\u0447\u043d\u043e\u0439 \u043d\u0435\u0434\u0432\u0438\u0436\u0438\u043c\u043e\u0441\u0442\u044c\u044e, \u043f\u0435\u0440\u0432\u0438\u0447\u043d\u043e\u0439 \u0438 \u0441\u043e\u0442\u043d\u0438 \u0434\u043e\u0433\u043e\u0432\u043e\u0440\u043e\u0432 \u0430\u0440\u0435\u043d\u0434\u044b. \u0421\u043f\u0435\u0446\u0438\u0430\u043b\u0438\u0441\u0442 \u0438\u0437 \u043a\u0440\u0443\u043f\u043d\u043e\u0439 \u043a\u043e\u043c\u043f\u0430\u043d\u0438\u0438 \u044d\u0442\u043e \u0432\u0441\u0435\u0433\u0434\u0430 \u043e\u0433\u0440\u043e\u043c\u043d\u044b\u0439 \u0431\u0430\u0433\u0430\u0436 \u0437\u043d\u0430\u043d\u0438\u0439,&nbsp;\u044d\u0442\u043e \u0432\u0430\u0436\u043d\u043e, \u0442\u0430\u043a \u043a\u0430\u043a \u0432 \u043d\u0430\u0448\u0435\u0439 \u043f\u0440\u043e\u0444\u0435\u0441\u0441\u0438\u0438 \u043d\u0435 \u0431\u044b\u0432\u0430\u0435\u0442 \u0434\u0432\u0443\u0445 \u043e\u0434\u0438\u043d\u0430\u043a\u043e\u0432\u044b\u0445 \u0441\u0434\u0435\u043b\u043e\u043a \u0438 \u0432\u0441\u0435\u0433\u0434\u0430 \u043f\u043e\u044f\u0432\u043b\u044f\u044e\u0442\u0441\u044f \u043d\u043e\u0432\u0448\u0435\u0441\u0442\u0432\u0430&nbsp;\u0432 \u043e\u0444\u043e\u0440\u043c\u043b\u0435\u043d\u0438\u0438, \u0443\u0441\u043b\u043e\u0432\u0438\u044f\u0445 \u0438 \u0417\u0430\u043a\u043e\u043d\u043e\u0434\u0430\u0442\u0435\u043b\u044c\u0441\u0442\u0432\u0435.&nbsp;\u0412\u0441\u0435\u0433\u0434\u0430 \u043e\u0431\u0443\u0447\u0430\u044e\u0441\u044c&nbsp;\u043d\u0430 \u0440\u0430\u0437\u043b\u0438\u0447\u043d\u044b\u0445 \u043a\u0443\u0440\u0441\u0430\u0445, \u0441\u0435\u043c\u0438\u043d\u0430\u0440\u0430\u0445 \u0438 \u0432\u0435\u0431\u0438\u043d\u0430\u0440\u0430\u0445, \u043f\u043e\u0432\u044b\u0448\u0430\u044f \u0441\u0432\u043e\u0439 \u043f\u0440\u043e\u0444\u0435\u0441\u0441\u0438\u043e\u043d\u0430\u043b\u044c\u043d\u044b\u0439 \u0443\u0440\u043e\u0432\u0435\u043d\u044c.&nbsp;\u042f\u0432\u043b\u044f\u044e\u0441\u044c \u0441\u0435\u0440\u0442\u0438\u0444\u0438\u0446\u0438\u0440\u043e\u0432\u0430\u043d\u043d\u044b\u043c \u0440\u0438\u044d\u043b\u0442\u043e\u0440\u043e\u043c \u0410\u0441\u0441\u043e\u0446\u0438\u0430\u0446\u0438\u0438 \u0420\u0438\u044d\u043b\u0442\u043e\u0440\u043e\u0432 \u0421\u0430\u043d\u043a\u0442-\u041f\u0435\u0442\u0435\u0440\u0431\u0443\u0440\u0433\u0430 \u0438 \u041b\u0435\u043d. \u043e\u0431\u043b\u0430\u0441\u0442\u0438, \u0413\u0438\u043b\u044c\u0434\u0438\u0438 \u0420\u0438\u044d\u043b\u0442\u043e\u0440\u043e\u0432 \u0420\u043e\u0441\u0441\u0438\u0438.&nbsp;\u0417\u0430 \u0433\u043e\u0434\u044b&nbsp;\u0440\u0430\u0431\u043e\u0442\u044b \u043f\u0440\u0438\u043e\u0431\u0440\u0435\u043b\u0430 \u0431\u043e\u043b\u044c\u0448\u043e\u0439 \u043e\u043f\u044b\u0442 \u0438 \u043c\u043d\u043e\u0433\u043e\u0447\u0438\u0441\u043b\u0435\u043d\u043d\u044b\u0445 \u043a\u043b\u0438\u0435\u043d\u0442\u043e\u0432, \u043a\u043e\u0442\u043e\u0440\u044b\u0445 \u043e\u0447\u0435\u043d\u044c \u0443\u0432\u0430\u0436\u0430\u044e \u0438 \u0446\u0435\u043d\u044e.&nbsp;\u041c\u043e\u044f \u0440\u0430\u0431\u043e\u0442\u0430, \u044d\u0442\u043e \u043f\u0440\u043e\u0434\u0430\u0436\u0430&nbsp;\u043d\u0435\u0434\u0432\u0438\u0436\u0438\u043c\u043e\u0441\u0442\u0438, \u043f\u043e\u0434\u0431\u043e\u0440 \u043d\u0435\u0434\u0432\u0438\u0436\u0438\u043c\u043e\u0441\u0442\u0438 \u0434\u043b\u044f \u043f\u043e\u043a\u0443\u043f\u043a\u0438, \u0430\u0440\u0435\u043d\u0434\u0430,&nbsp;\u0434\u043e\u0432\u0435\u0440\u0438\u0442\u0435\u043b\u044c\u043d\u043e\u0435 \u0443\u043f\u0440\u0430\u0432\u043b\u0435\u043d\u0438\u0435 \u0438 \u043f\u0440. \u041f\u0440\u043e\u0432\u043e\u0436\u0443 \u0441\u0434\u0435\u043b\u043a\u0438 \u043b\u044e\u0431\u043e\u0439 \u0441\u043b\u043e\u0436\u043d\u043e\u0441\u0442\u0438, \u0441\u0434\u0435\u043b\u043a\u0438 \u0441 \u0441\u0435\u0440\u0442\u0438\u0444\u0438\u043a\u0430\u0442\u0430\u043c\u0438, \u0441\u0443\u0431\u0441\u0438\u0434\u0438\u044f\u043c\u0438, \u0432\u043e\u0435\u043d\u043d\u043e\u0439&nbsp;\u0438\u043f\u043e\u0442\u0435\u043a\u043e\u0439, \u043e\u0431\u044a\u0435\u043a\u0442\u0430\u043c\u0438 \u043d\u0430\u0445\u043e\u0434\u044f\u0449\u0438\u043c\u0438\u0441\u044f \u0432 \u0437\u0430\u043b\u043e\u0433\u0435 \u0443 \u0431\u0430\u043d\u043a\u0430, \u043e\u0431\u0440\u0435\u043c\u0435\u043d\u0435\u043d\u0438\u044f\u043c\u0438 \u0438&nbsp;\u043d\u0435\u0441\u043e\u0432\u0435\u0440\u0448\u0435\u043d\u043d\u043e\u043b\u0435\u0442\u043d\u0438\u043c\u0438&nbsp;\u0441\u043e\u0431\u0441\u0442\u0432\u0435\u043d\u043d\u0438\u043a\u0430\u043c\u0438.&nbsp;\u0418\u043d\u0434\u0438\u0432\u0438\u0434\u0443\u0430\u043b\u044c\u043d\u044b\u0439 \u043f\u043e\u0434\u0445\u043e\u0434 \u043a \u043a\u0430\u0436\u0434\u043e\u043c\u0443 \u043a\u043b\u0438\u0435\u043d\u0442\u0443, \u0432\u043d\u0438\u043c\u0430\u0442\u0435\u043b\u044c\u043d\u043e\u0441\u0442\u044c \u043a \u0434\u0435\u0442\u0430\u043b\u044f\u043c, \u0448\u0438\u0440\u043e\u043a\u0438\u0439 \u043a\u0440\u0443\u0433\u043e\u0437\u043e\u0440 \u0438 \u0431\u043e\u043b\u044c\u0448\u043e\u0439 \u043e\u043f\u044b\u0442 - \u043c\u043e\u0438 \u0441\u043f\u0443\u0442\u043d\u0438\u043a\u0438 \u0432 \u0440\u0430\u0431\u043e\u0442\u0435. \u0421\u043e \u043c\u043d\u043e\u0439, \u0412\u0430\u043c \u0431\u0443\u0434\u0435\u0442 \u0441\u043f\u043e\u043a\u043e\u0439\u043d\u043e.<\/span>\r\n \r\n <\/p>","about_agent_uin":"p>","photo_sq":"lk_1641975543_1ff394c00617545ccdd7c6af6060b0f0.png","photo_sq_uin":"lk_1641975543_1ff394c00617545ccdd7c6af6060b0f0.png","video":"https:\/\/youtu.be\/gcWcBE8Cxto","video_uin":"gcWcBE8Cxto"},"wp":false,"phone_f":"78127407040","office":{"id":"000000012","url":"moskovskij-pr-186","name":"\u041c\u043e\u0441\u043a\u043e\u0432\u0441\u043a\u0438\u0439 \u043f\u0440., 186","adress":"\u0433. \u0421\u0430\u043d\u043a\u0442-\u041f\u0435\u0442\u0435\u0440\u0431\u0443\u0440\u0433, \u041c\u043e\u0441\u043a\u043e\u0432\u0441\u043a\u0438\u0439 \u0440-\u043d, \u041c\u043e\u0441\u043a\u043e\u0432\u0441\u043a\u0438\u0439 \u043f\u0440., \u0434. 186","coords":"59.872651,30.321509","pano_coords":"59.8717011700986,30.3213454463","pano_direction":"20.08648461927154,1.127538960384532","pano_span":"58.807766959254884,30.782069456854835","email":"moskovsk@itaka.ru","phone":"88123272717","metro_stations_id":20,"region_id":78,"district_id":null,"coords_metro":null,"coords_top":null,"coords_left":null,"spbzn_coords_top":null,"spbzn_coords_left":null,"change":1,"td_id":7,"order":80,"deleted_at":null,"SuccessOverrides":{"0":{"id":4882,"model":"Offices","target_id":0,"target_id_str":"000000012","field":"order","value":"10032,2234,129,11151,255,2879,284,231,702,663,13651,13819,12585,15322,14846","is_current":0,"is_moderated_adm":1,"is_moderated_tech":1,"is_selected":0,"creator_id":440,"moderator_adm_id":440,"moderator_tech_id":440,"adm_reason":null,"tech_reason":null,"created_at":"2023-10-12T14:15:02.000000Z","updated_at":"2023-10-12T14:15:02.000000Z"},"3":{"id":3748,"model":"Offices","target_id":0,"target_id_str":"000000012","field":"schedule","value":"\u041f\u043d-\u041f\u0442: 10:00-19:00<br \/>\r\n\u0421\u0431, \u0432\u0441 - \u0432\u044b\u0445\u043e\u0434\u043d\u044b\u0435","is_current":0,"is_moderated_adm":1,"is_moderated_tech":1,"is_selected":0,"creator_id":440,"moderator_adm_id":440,"moderator_tech_id":440,"adm_reason":null,"tech_reason":null,"created_at":"2022-10-13T11:50:53.000000Z","updated_at":"2022-10-13T11:50:53.000000Z"},"4":{"id":3571,"model":"Offices","target_id":0,"target_id_str":"000000012","field":"phone","value":"+7 (921) 952-98-32","is_current":0,"is_moderated_adm":1,"is_moderated_tech":1,"is_selected":0,"creator_id":440,"moderator_adm_id":440,"moderator_tech_id":440,"adm_reason":null,"tech_reason":null,"created_at":"2022-08-05T16:55:42.000000Z","updated_at":"2022-08-05T16:55:42.000000Z"},"6":{"id":3044,"model":"Offices","target_id":0,"target_id_str":"000000012","field":"add_agent_id","value":"9557","is_current":0,"is_moderated_adm":1,"is_moderated_tech":1,"is_selected":0,"creator_id":440,"moderator_adm_id":440,"moderator_tech_id":440,"adm_reason":null,"tech_reason":null,"created_at":"2022-03-24T17:13:20.000000Z","updated_at":"2022-03-24T17:13:20.000000Z"}},"Hours":null},"Mimfio":{"id":2740,"url":"anna-kalinichenko","F":"\u041a\u0430\u043b\u0438\u043d\u0438\u0447\u0435\u043d\u043a\u043e","I":"\u0410\u043d\u043d\u0430","O":"\u0412\u0430\u043b\u0435\u0440\u044c\u0435\u0432\u043d\u0430","phone":"89219303896","email":"Anna@itaka.ru","personal_phone":"","personal_email":"","birthday":null,"photo_sq":"agent_2740_sq.jpeg","photo_cir":"agent_2740_cir.jpeg","photo":null,"online":0,"text":null,"oadm":1,"gender":null,"shows":1,"selfemployed":0,"individual":0,"in_state":0,"in_office":0,"site_post":"\u041f\u043e\u043c\u043e\u0448\u043d\u0438\u043a \u0433\u0435\u043d\u0435\u0440\u0430\u043b\u044c\u043d\u043e\u0433\u043e \u0434\u0438\u0440\u0435\u043a\u0442\u043e\u0440\u0430","is_fired":0,"direct_submission":1,"direct_submission_id":1,"mim":null,"change":1,"is_active":1,"noindex":0,"must_index":0,"jivo":0,"basic_office_id":null,"precinct":0,"slaves_notifications":1,"is_blocked":0,"Mimfio":false},"success_overrides":[{"id":2425,"model":"Agents","target_id":10210,"target_id_str":null,"field":"about_agent","value":"<p><span class=\"text-secondary\">\u0417\u0434\u0440\u0430\u0432\u0441\u0442\u0432\u0443\u0439\u0442\u0435,&nbsp;\u043c\u0435\u043d\u044f \u0437\u043e\u0432\u0443\u0442 \u2014&nbsp;&nbsp;\u041b\u0435\u0441\u043d\u0435\u0432\u0441\u043a\u0430\u044f \u042f\u0434\u0432\u0438\u0433\u0430 \u0413\u0435\u043d\u043d\u0430\u0434\u044c\u0435\u0432\u043d\u0430,&nbsp;\u0438\u043c\u0435\u044e&nbsp;\u0432\u044b\u0441\u0448\u0435\u0435 \u044d\u043a\u043e\u043d\u043e\u043c\u0438\u0447\u0435\u0441\u043a\u043e\u0435 \u043e\u0431\u0440\u0430\u0437\u043e\u0432\u0430\u043d\u0438\u0435, \u0441 \u043e\u0442\u043b\u0438\u0447\u0438\u0435\u043c \u0437\u0430\u043a\u043e\u043d\u0447\u0438\u043b\u0430 \u0420\u043e\u0441\u0441\u0438\u0439\u0441\u043a\u0438\u0439 \u0413\u043e\u0441\u0443\u0434\u0430\u0440\u0441\u0442\u0432\u0435\u043d\u043d\u044b\u0439 \u0413\u0443\u043c\u0430\u043d\u0438\u0442\u0430\u0440\u043d\u044b\u0439 \u0423\u043d\u0438\u0432\u0435\u0440\u0441\u0438\u0442\u0435\u0442. \u0412&nbsp;\u043a\u043e\u043c\u043f\u0430\u043d\u0438\u0438 \u00ab\u0418\u0442\u0430\u043a\u0430\u00bb&nbsp;\u0440\u0430\u0431\u043e\u0442\u0430\u044e&nbsp;\u0441 2010,&nbsp;\u0437\u0430 \u043f\u043b\u0435\u0447\u0430\u043c\u0438 \u0434\u0435\u0441\u044f\u0442\u043a\u0438 \u0443\u0434\u0430\u0447\u043d\u044b\u0445 \u0441\u0434\u0435\u043b\u043e\u043a&nbsp;\u0441 \u0432\u0442\u043e\u0440\u0438\u0447\u043d\u043e\u0439 \u043d\u0435\u0434\u0432\u0438\u0436\u0438\u043c\u043e\u0441\u0442\u044c\u044e, \u043f\u0435\u0440\u0432\u0438\u0447\u043d\u043e\u0439 \u0438 \u0441\u043e\u0442\u043d\u0438 \u0434\u043e\u0433\u043e\u0432\u043e\u0440\u043e\u0432 \u0430\u0440\u0435\u043d\u0434\u044b. \u0421\u043f\u0435\u0446\u0438\u0430\u043b\u0438\u0441\u0442 \u0438\u0437 \u043a\u0440\u0443\u043f\u043d\u043e\u0439 \u043a\u043e\u043c\u043f\u0430\u043d\u0438\u0438 \u044d\u0442\u043e \u0432\u0441\u0435\u0433\u0434\u0430 \u043e\u0433\u0440\u043e\u043c\u043d\u044b\u0439 \u0431\u0430\u0433\u0430\u0436 \u0437\u043d\u0430\u043d\u0438\u0439,&nbsp;\u044d\u0442\u043e \u0432\u0430\u0436\u043d\u043e, \u0442\u0430\u043a \u043a\u0430\u043a \u0432 \u043d\u0430\u0448\u0435\u0439 \u043f\u0440\u043e\u0444\u0435\u0441\u0441\u0438\u0438 \u043d\u0435 \u0431\u044b\u0432\u0430\u0435\u0442 \u0434\u0432\u0443\u0445 \u043e\u0434\u0438\u043d\u0430\u043a\u043e\u0432\u044b\u0445 \u0441\u0434\u0435\u043b\u043e\u043a \u0438 \u0432\u0441\u0435\u0433\u0434\u0430 \u043f\u043e\u044f\u0432\u043b\u044f\u044e\u0442\u0441\u044f \u043d\u043e\u0432\u0448\u0435\u0441\u0442\u0432\u0430&nbsp;\u0432 \u043e\u0444\u043e\u0440\u043c\u043b\u0435\u043d\u0438\u0438, \u0443\u0441\u043b\u043e\u0432\u0438\u044f\u0445 \u0438 \u0417\u0430\u043a\u043e\u043d\u043e\u0434\u0430\u0442\u0435\u043b\u044c\u0441\u0442\u0432\u0435.&nbsp;\u0412\u0441\u0435\u0433\u0434\u0430 \u043e\u0431\u0443\u0447\u0430\u044e\u0441\u044c&nbsp;\u043d\u0430 \u0440\u0430\u0437\u043b\u0438\u0447\u043d\u044b\u0445 \u043a\u0443\u0440\u0441\u0430\u0445, \u0441\u0435\u043c\u0438\u043d\u0430\u0440\u0430\u0445 \u0438 \u0432\u0435\u0431\u0438\u043d\u0430\u0440\u0430\u0445, \u043f\u043e\u0432\u044b\u0448\u0430\u044f \u0441\u0432\u043e\u0439 \u043f\u0440\u043e\u0444\u0435\u0441\u0441\u0438\u043e\u043d\u0430\u043b\u044c\u043d\u044b\u0439 \u0443\u0440\u043e\u0432\u0435\u043d\u044c.&nbsp;\u042f\u0432\u043b\u044f\u044e\u0441\u044c \u0441\u0435\u0440\u0442\u0438\u0444\u0438\u0446\u0438\u0440\u043e\u0432\u0430\u043d\u043d\u044b\u043c \u0440\u0438\u044d\u043b\u0442\u043e\u0440\u043e\u043c \u0410\u0441\u0441\u043e\u0446\u0438\u0430\u0446\u0438\u0438 \u0420\u0438\u044d\u043b\u0442\u043e\u0440\u043e\u0432 \u0421\u0430\u043d\u043a\u0442-\u041f\u0435\u0442\u0435\u0440\u0431\u0443\u0440\u0433\u0430 \u0438 \u041b\u0435\u043d. \u043e\u0431\u043b\u0430\u0441\u0442\u0438, \u0413\u0438\u043b\u044c\u0434\u0438\u0438 \u0420\u0438\u044d\u043b\u0442\u043e\u0440\u043e\u0432 \u0420\u043e\u0441\u0441\u0438\u0438.&nbsp;\u0417\u0430 \u0433\u043e\u0434\u044b&nbsp;\u0440\u0430\u0431\u043e\u0442\u044b \u043f\u0440\u0438\u043e\u0431\u0440\u0435\u043b\u0430 \u0431\u043e\u043b\u044c\u0448\u043e\u0439 \u043e\u043f\u044b\u0442 \u0438 \u043c\u043d\u043e\u0433\u043e\u0447\u0438\u0441\u043b\u0435\u043d\u043d\u044b\u0445 \u043a\u043b\u0438\u0435\u043d\u0442\u043e\u0432, \u043a\u043e\u0442\u043e\u0440\u044b\u0445 \u043e\u0447\u0435\u043d\u044c \u0443\u0432\u0430\u0436\u0430\u044e \u0438 \u0446\u0435\u043d\u044e.&nbsp;\u041c\u043e\u044f \u0440\u0430\u0431\u043e\u0442\u0430, \u044d\u0442\u043e \u043f\u0440\u043e\u0434\u0430\u0436\u0430&nbsp;\u043d\u0435\u0434\u0432\u0438\u0436\u0438\u043c\u043e\u0441\u0442\u0438, \u043f\u043e\u0434\u0431\u043e\u0440 \u043d\u0435\u0434\u0432\u0438\u0436\u0438\u043c\u043e\u0441\u0442\u0438 \u0434\u043b\u044f \u043f\u043e\u043a\u0443\u043f\u043a\u0438, \u0430\u0440\u0435\u043d\u0434\u0430,&nbsp;\u0434\u043e\u0432\u0435\u0440\u0438\u0442\u0435\u043b\u044c\u043d\u043e\u0435 \u0443\u043f\u0440\u0430\u0432\u043b\u0435\u043d\u0438\u0435 \u0438 \u043f\u0440. \u041f\u0440\u043e\u0432\u043e\u0436\u0443 \u0441\u0434\u0435\u043b\u043a\u0438 \u043b\u044e\u0431\u043e\u0439 \u0441\u043b\u043e\u0436\u043d\u043e\u0441\u0442\u0438, \u0441\u0434\u0435\u043b\u043a\u0438 \u0441 \u0441\u0435\u0440\u0442\u0438\u0444\u0438\u043a\u0430\u0442\u0430\u043c\u0438, \u0441\u0443\u0431\u0441\u0438\u0434\u0438\u044f\u043c\u0438, \u0432\u043e\u0435\u043d\u043d\u043e\u0439&nbsp;\u0438\u043f\u043e\u0442\u0435\u043a\u043e\u0439, \u043e\u0431\u044a\u0435\u043a\u0442\u0430\u043c\u0438 \u043d\u0430\u0445\u043e\u0434\u044f\u0449\u0438\u043c\u0438\u0441\u044f \u0432 \u0437\u0430\u043b\u043e\u0433\u0435 \u0443 \u0431\u0430\u043d\u043a\u0430, \u043e\u0431\u0440\u0435\u043c\u0435\u043d\u0435\u043d\u0438\u044f\u043c\u0438 \u0438&nbsp;\u043d\u0435\u0441\u043e\u0432\u0435\u0440\u0448\u0435\u043d\u043d\u043e\u043b\u0435\u0442\u043d\u0438\u043c\u0438&nbsp;\u0441\u043e\u0431\u0441\u0442\u0432\u0435\u043d\u043d\u0438\u043a\u0430\u043c\u0438.&nbsp;\u0418\u043d\u0434\u0438\u0432\u0438\u0434\u0443\u0430\u043b\u044c\u043d\u044b\u0439 \u043f\u043e\u0434\u0445\u043e\u0434 \u043a \u043a\u0430\u0436\u0434\u043e\u043c\u0443 \u043a\u043b\u0438\u0435\u043d\u0442\u0443, \u0432\u043d\u0438\u043c\u0430\u0442\u0435\u043b\u044c\u043d\u043e\u0441\u0442\u044c \u043a \u0434\u0435\u0442\u0430\u043b\u044f\u043c, \u0448\u0438\u0440\u043e\u043a\u0438\u0439 \u043a\u0440\u0443\u0433\u043e\u0437\u043e\u0440 \u0438 \u0431\u043e\u043b\u044c\u0448\u043e\u0439 \u043e\u043f\u044b\u0442 - \u043c\u043e\u0438 \u0441\u043f\u0443\u0442\u043d\u0438\u043a\u0438 \u0432 \u0440\u0430\u0431\u043e\u0442\u0435. \u0421\u043e \u043c\u043d\u043e\u0439, \u0412\u0430\u043c \u0431\u0443\u0434\u0435\u0442 \u0441\u043f\u043e\u043a\u043e\u0439\u043d\u043e.<\/span>\r\n \r\n <\/p>","is_current":0,"is_moderated_adm":1,"is_moderated_tech":1,"is_selected":0,"creator_id":768,"moderator_adm_id":440,"moderator_tech_id":440,"adm_reason":null,"tech_reason":null,"created_at":"2022-01-12T10:58:29.000000Z","updated_at":"2022-01-12T11:27:22.000000Z"},{"id":2430,"model":"Agents","target_id":10210,"target_id_str":null,"field":"photo_sq","value":"lk_1641975543_1ff394c00617545ccdd7c6af6060b0f0.png","is_current":0,"is_moderated_adm":1,"is_moderated_tech":1,"is_selected":0,"creator_id":768,"moderator_adm_id":440,"moderator_tech_id":440,"adm_reason":null,"tech_reason":null,"created_at":"2022-01-12T11:19:03.000000Z","updated_at":"2022-01-12T11:27:25.000000Z"},{"id":5131,"model":"Agents","target_id":10210,"target_id_str":null,"field":"video","value":"https:\/\/youtu.be\/gcWcBE8Cxto","is_current":0,"is_moderated_adm":1,"is_moderated_tech":1,"is_selected":0,"creator_id":440,"moderator_adm_id":440,"moderator_tech_id":440,"adm_reason":null,"tech_reason":null,"created_at":"2023-11-16T10:07:46.000000Z","updated_at":"2023-11-16T10:07:49.000000Z"}]}],"metro":{"id":49,"name":"\u041a\u043e\u043c\u0435\u043d\u0434\u0430\u043d\u0442\u0441\u043a\u0438\u0439 \u043f\u0440\u043e\u0441\u043f\u0435\u043a\u0442","chpuName":"komendantskij-prospekt","top":"85","left":"171","metro_lines_id":9,"intersection":null,"r_top":"54","r_side":"450","r_class":"right","r_top_sub":null,"r_side_sub":null,"r_opt_class":null,"yaCoord0":null,"yaCoord1":null,"created_at":null,"updated_at":null,"metro_color":"blueviolet"},"images":[{"id":1274887,"apartment_number":"1-92123","photo":"media.itaka.ru\/homeinspb\/images\/objects\/big_dd30f22f-0f96-f011-91e0-0050568db126.jpg","priority":1},{"id":1274888,"apartment_number":"1-92123","photo":"media.itaka.ru\/homeinspb\/images\/objects\/big_e230f22f-0f96-f011-91e0-0050568db126.jpg","priority":2},{"id":1274889,"apartment_number":"1-92123","photo":"media.itaka.ru\/homeinspb\/images\/objects\/big_ec30f22f-0f96-f011-91e0-0050568db126.jpg","priority":3},{"id":1274890,"apartment_number":"1-92123","photo":"media.itaka.ru\/homeinspb\/images\/objects\/big_e730f22f-0f96-f011-91e0-0050568db126.jpg","priority":4},{"id":1274891,"apartment_number":"1-92123","photo":"media.itaka.ru\/homeinspb\/images\/objects\/big_d830f22f-0f96-f011-91e0-0050568db126.jpg","priority":5},{"id":1274892,"apartment_number":"1-92123","photo":"media.itaka.ru\/homeinspb\/images\/objects\/big_fa30f22f-0f96-f011-91e0-0050568db126.jpg","priority":6},{"id":1274893,"apartment_number":"1-92123","photo":"media.itaka.ru\/homeinspb\/images\/objects\/big_f130f22f-0f96-f011-91e0-0050568db126.jpg","priority":7},{"id":1274894,"apartment_number":"1-92123","photo":"media.itaka.ru\/homeinspb\/images\/objects\/big_fb30f22f-0f96-f011-91e0-0050568db126.jpg","priority":8},{"id":1274895,"apartment_number":"1-92123","photo":"media.itaka.ru\/homeinspb\/images\/objects\/big_0531f22f-0f96-f011-91e0-0050568db126.jpg","priority":9},{"id":1274896,"apartment_number":"1-92123","photo":"media.itaka.ru\/homeinspb\/images\/objects\/big_0f31f22f-0f96-f011-91e0-0050568db126.jpg","priority":10},{"id":1274897,"apartment_number":"1-92123","photo":"media.itaka.ru\/homeinspb\/images\/objects\/big_1631f22f-0f96-f011-91e0-0050568db126.jpg","priority":11},{"id":1274898,"apartment_number":"1-92123","photo":"media.itaka.ru\/homeinspb\/images\/objects\/big_0a31f22f-0f96-f011-91e0-0050568db126.jpg","priority":12},{"id":1274899,"apartment_number":"1-92123","photo":"media.itaka.ru\/homeinspb\/images\/objects\/big_2231f22f-0f96-f011-91e0-0050568db126.jpg","priority":13},{"id":1274900,"apartment_number":"1-92123","photo":"media.itaka.ru\/homeinspb\/images\/objects\/big_1e31f22f-0f96-f011-91e0-0050568db126.jpg","priority":14},{"id":1274901,"apartment_number":"1-92123","photo":"media.itaka.ru\/homeinspb\/images\/objects\/big_2931f22f-0f96-f011-91e0-0050568db126.jpg","priority":15},{"id":1274902,"apartment_number":"1-92123","photo":"media.itaka.ru\/homeinspb\/images\/objects\/big_3a31f22f-0f96-f011-91e0-0050568db126.jpg","priority":16},{"id":1274903,"apartment_number":"1-92123","photo":"media.itaka.ru\/homeinspb\/images\/objects\/big_3631f22f-0f96-f011-91e0-0050568db126.jpg","priority":17},{"id":1274904,"apartment_number":"1-92123","photo":"media.itaka.ru\/homeinspb\/images\/objects\/big_3031f22f-0f96-f011-91e0-0050568db126.jpg","priority":18}]}

Лесневская Ядвига

10210 +7 (812) 740-70-40
10210

10210


2 комнаты 17,5+17,8 м² в 3-комнатной квартире, этаж 5/9

Приморская

г Санкт-Петербург, ул Наличная, д. 49, лит. А

Две смежные комнаты 17,5 кв.м и 17,8 кв.м, одна из них с выходом на лоджию площадью 3,1 кв.м. Общая площадь всей квартиры 66,1 кв.м, площадь кухни 6,3 кв.м. В третьей комнате в этой квартире проживает один человек (молодой мужчина). Комнаты просторные, светлые, тёплые, правильной формы. Состояние продаваемых комнат, как и квартиры в целом – требуется ремонт. В комнатах недавно установлены стеклопакеты. Стояки и фановая труба в санузле новые, есть счётчики на воду и современный двухтарифный счётчик электроэнергии. Окна выходят на Наличную улицу, солнце в квартире во второй половине дня. Парадная чистая и аккуратная, со свежим ремонтом, первый этаж оборудован пандусом для колясок, есть видеодомофон. В шаговой доступности магазины, отделение Сбербанка, почта, поликлиника, пункт выдачи Ozon и т.п. До ст.м. Приморская менее 3 минут пешком спокойным шагом (260 м от парадной). До выезда на ЗСД 1 км. Первая продажа после приватизации. Перепланировок нет. Обременений нет. Один взрослый собственник. Прямая продажа. Нотариальный отказ сособственника получен.

5 800 000 ₽
164 305 ₽/м²
Объект № 1-92544
Специалист по этому объекту:
{"id":"1-92544","object_type":0,"agents_id":10411,"rooms_saled":2,"rooms_total":3,"regions_id":78,"districts_id":"2","station_metro_id":28,"station_rallway":null,"address":"\u0433 \u0421\u0430\u043d\u043a\u0442-\u041f\u0435\u0442\u0435\u0440\u0431\u0443\u0440\u0433, \u0443\u043b \u041d\u0430\u043b\u0438\u0447\u043d\u0430\u044f, \u0434. 49, \u043b\u0438\u0442. \u0410","locality":"\u0433. \u0421\u0430\u043d\u043a\u0442-\u041f\u0435\u0442\u0435\u0440\u0431\u0443\u0440\u0433","price":"5 800 000","price_mkv":"164 305","floor":5,"floors":9,"is_first":0,"is_last":0,"floor_height":2.57,"space_habitable":35.3,"space_total":66.1,"space_rooms":"17,5+17,8","space_kitchen":6.3,"type_of_building_id":1,"is_phone":0,"wc":"\u0440\u0430\u0437\u0434\u0435\u043b\u044c\u043d\u044b\u0439","is_balcon":1,"is_lift":1,"hotwater":"\u0412\u043e\u0434\u043e\u043f\u0440\u043e\u0432\u043e\u0434","is_ipoteka":1,"is_exclusive":1,"is_unique":1,"is_fake":0,"is_counter":0,"is_cession":0,"build_year":1973,"comments":"\u0414\u0432\u0435 \u0441\u043c\u0435\u0436\u043d\u044b\u0435 \u043a\u043e\u043c\u043d\u0430\u0442\u044b 17,5 \u043a\u0432.\u043c \u0438 17,8 \u043a\u0432.\u043c, \u043e\u0434\u043d\u0430 \u0438\u0437 \u043d\u0438\u0445 \u0441 \u0432\u044b\u0445\u043e\u0434\u043e\u043c \u043d\u0430 \u043b\u043e\u0434\u0436\u0438\u044e \u043f\u043b\u043e\u0449\u0430\u0434\u044c\u044e 3,1 \u043a\u0432.\u043c. \u041e\u0431\u0449\u0430\u044f \u043f\u043b\u043e\u0449\u0430\u0434\u044c \u0432\u0441\u0435\u0439 \u043a\u0432\u0430\u0440\u0442\u0438\u0440\u044b 66,1 \u043a\u0432.\u043c, \u043f\u043b\u043e\u0449\u0430\u0434\u044c \u043a\u0443\u0445\u043d\u0438 6,3 \u043a\u0432.\u043c. \u0412 \u0442\u0440\u0435\u0442\u044c\u0435\u0439 \u043a\u043e\u043c\u043d\u0430\u0442\u0435 \u0432 \u044d\u0442\u043e\u0439 \u043a\u0432\u0430\u0440\u0442\u0438\u0440\u0435 \u043f\u0440\u043e\u0436\u0438\u0432\u0430\u0435\u0442 \u043e\u0434\u0438\u043d \u0447\u0435\u043b\u043e\u0432\u0435\u043a (\u043c\u043e\u043b\u043e\u0434\u043e\u0439 \u043c\u0443\u0436\u0447\u0438\u043d\u0430). \u041a\u043e\u043c\u043d\u0430\u0442\u044b \u043f\u0440\u043e\u0441\u0442\u043e\u0440\u043d\u044b\u0435, \u0441\u0432\u0435\u0442\u043b\u044b\u0435, \u0442\u0451\u043f\u043b\u044b\u0435, \u043f\u0440\u0430\u0432\u0438\u043b\u044c\u043d\u043e\u0439 \u0444\u043e\u0440\u043c\u044b. \u0421\u043e\u0441\u0442\u043e\u044f\u043d\u0438\u0435 \u043f\u0440\u043e\u0434\u0430\u0432\u0430\u0435\u043c\u044b\u0445 \u043a\u043e\u043c\u043d\u0430\u0442, \u043a\u0430\u043a \u0438 \u043a\u0432\u0430\u0440\u0442\u0438\u0440\u044b \u0432 \u0446\u0435\u043b\u043e\u043c \u2013 \u0442\u0440\u0435\u0431\u0443\u0435\u0442\u0441\u044f \u0440\u0435\u043c\u043e\u043d\u0442. \u0412 \u043a\u043e\u043c\u043d\u0430\u0442\u0430\u0445 \u043d\u0435\u0434\u0430\u0432\u043d\u043e \u0443\u0441\u0442\u0430\u043d\u043e\u0432\u043b\u0435\u043d\u044b \u0441\u0442\u0435\u043a\u043b\u043e\u043f\u0430\u043a\u0435\u0442\u044b. \u0421\u0442\u043e\u044f\u043a\u0438 \u0438 \u0444\u0430\u043d\u043e\u0432\u0430\u044f \u0442\u0440\u0443\u0431\u0430 \u0432 \u0441\u0430\u043d\u0443\u0437\u043b\u0435 \u043d\u043e\u0432\u044b\u0435, \u0435\u0441\u0442\u044c \u0441\u0447\u0451\u0442\u0447\u0438\u043a\u0438 \u043d\u0430 \u0432\u043e\u0434\u0443 \u0438 \u0441\u043e\u0432\u0440\u0435\u043c\u0435\u043d\u043d\u044b\u0439 \u0434\u0432\u0443\u0445\u0442\u0430\u0440\u0438\u0444\u043d\u044b\u0439 \u0441\u0447\u0451\u0442\u0447\u0438\u043a \u044d\u043b\u0435\u043a\u0442\u0440\u043e\u044d\u043d\u0435\u0440\u0433\u0438\u0438. \u041e\u043a\u043d\u0430 \u0432\u044b\u0445\u043e\u0434\u044f\u0442 \u043d\u0430 \u041d\u0430\u043b\u0438\u0447\u043d\u0443\u044e \u0443\u043b\u0438\u0446\u0443, \u0441\u043e\u043b\u043d\u0446\u0435 \u0432 \u043a\u0432\u0430\u0440\u0442\u0438\u0440\u0435 \u0432\u043e \u0432\u0442\u043e\u0440\u043e\u0439 \u043f\u043e\u043b\u043e\u0432\u0438\u043d\u0435 \u0434\u043d\u044f. \u041f\u0430\u0440\u0430\u0434\u043d\u0430\u044f \u0447\u0438\u0441\u0442\u0430\u044f \u0438 \u0430\u043a\u043a\u0443\u0440\u0430\u0442\u043d\u0430\u044f, \u0441\u043e \u0441\u0432\u0435\u0436\u0438\u043c \u0440\u0435\u043c\u043e\u043d\u0442\u043e\u043c, \u043f\u0435\u0440\u0432\u044b\u0439 \u044d\u0442\u0430\u0436 \u043e\u0431\u043e\u0440\u0443\u0434\u043e\u0432\u0430\u043d \u043f\u0430\u043d\u0434\u0443\u0441\u043e\u043c \u0434\u043b\u044f \u043a\u043e\u043b\u044f\u0441\u043e\u043a, \u0435\u0441\u0442\u044c \u0432\u0438\u0434\u0435\u043e\u0434\u043e\u043c\u043e\u0444\u043e\u043d. \u0412 \u0448\u0430\u0433\u043e\u0432\u043e\u0439 \u0434\u043e\u0441\u0442\u0443\u043f\u043d\u043e\u0441\u0442\u0438 \u043c\u0430\u0433\u0430\u0437\u0438\u043d\u044b, \u043e\u0442\u0434\u0435\u043b\u0435\u043d\u0438\u0435 \u0421\u0431\u0435\u0440\u0431\u0430\u043d\u043a\u0430, \u043f\u043e\u0447\u0442\u0430, \u043f\u043e\u043b\u0438\u043a\u043b\u0438\u043d\u0438\u043a\u0430, \u043f\u0443\u043d\u043a\u0442 \u0432\u044b\u0434\u0430\u0447\u0438 Ozon \u0438 \u0442.\u043f. \u0414\u043e \u0441\u0442.\u043c. \u041f\u0440\u0438\u043c\u043e\u0440\u0441\u043a\u0430\u044f \u043c\u0435\u043d\u0435\u0435 3 \u043c\u0438\u043d\u0443\u0442 \u043f\u0435\u0448\u043a\u043e\u043c \u0441\u043f\u043e\u043a\u043e\u0439\u043d\u044b\u043c \u0448\u0430\u0433\u043e\u043c (260 \u043c \u043e\u0442 \u043f\u0430\u0440\u0430\u0434\u043d\u043e\u0439). \u0414\u043e \u0432\u044b\u0435\u0437\u0434\u0430 \u043d\u0430 \u0417\u0421\u0414 1 \u043a\u043c. \u041f\u0435\u0440\u0432\u0430\u044f \u043f\u0440\u043e\u0434\u0430\u0436\u0430 \u043f\u043e\u0441\u043b\u0435 \u043f\u0440\u0438\u0432\u0430\u0442\u0438\u0437\u0430\u0446\u0438\u0438. \u041f\u0435\u0440\u0435\u043f\u043b\u0430\u043d\u0438\u0440\u043e\u0432\u043e\u043a \u043d\u0435\u0442. \u041e\u0431\u0440\u0435\u043c\u0435\u043d\u0435\u043d\u0438\u0439 \u043d\u0435\u0442. \u041e\u0434\u0438\u043d \u0432\u0437\u0440\u043e\u0441\u043b\u044b\u0439 \u0441\u043e\u0431\u0441\u0442\u0432\u0435\u043d\u043d\u0438\u043a. \u041f\u0440\u044f\u043c\u0430\u044f \u043f\u0440\u043e\u0434\u0430\u0436\u0430. \u041d\u043e\u0442\u0430\u0440\u0438\u0430\u043b\u044c\u043d\u044b\u0439 \u043e\u0442\u043a\u0430\u0437 \u0441\u043e\u0441\u043e\u0431\u0441\u0442\u0432\u0435\u043d\u043d\u0438\u043a\u0430 \u043f\u043e\u043b\u0443\u0447\u0435\u043d.","date_update":"24.12.2025","yaCoord0":30.233529,"yaCoord1":59.949956,"is_current":1,"is_sold":0,"is_withdrawn":0,"is_private":0,"sale_date":null,"start_date":"2025-12-02","final_price":null,"created_at":"2025-12-02 16:37:09","updated_at":"2025-12-02 20:19:56","checked_at":"2025-12-02 20:19:56","sum":164,"url":null,"title":"2 \u043a\u043e\u043c\u043d\u0430\u0442\u044b 17,5+17,8 \u043c\u00b2 \u0432 3-\u043a\u043e\u043c\u043d\u0430\u0442\u043d\u043e\u0439 \u043a\u0432\u0430\u0440\u0442\u0438\u0440\u0435, \u044d\u0442\u0430\u0436 5\/9","guidename":"\u041a\u043e\u043c\u043d\u0430\u0442\u044b","phone":{"number":"+7 (812) 740-70-40","link":"+7 (812) 740-70-40"},"agents":[{"id":10411,"url":"elena-tarasova","F":"\u0422\u0430\u0440\u0430\u0441\u043e\u0432\u0430","I":"\u0415\u043b\u0435\u043d\u0430","O":"\u0412\u0430\u043b\u0435\u0440\u044c\u0435\u0432\u043d\u0430","phone":"+7 (812) 740-70-40","email":"TarasovaEV@itaka.ru","personal_phone":"8-921-18-18-700","personal_email":"TarasovaEV@itaka.ru","birthday":"1977-03-03","photo_sq":"\/\/homeinspb.ru\/1c\/photo\/FL10411.jpg","photo_cir":"agent_10411_cir.png","photo":null,"online":1,"text":"<div>\u041a \u0412\u0430\u0448\u0438\u043c \u0443\u0441\u043b\u0443\u0433\u0430\u043c \u043e\u043f\u044b\u0442\u043d\u044b\u0439 \u0430\u0433\u0435\u043d\u0442 \u043f\u043e \u043d\u0435\u0434\u0432\u0438\u0436\u0438\u043c\u043e\u0441\u0442\u0438. \u041e\u043a\u0430\u0437\u044b\u0432\u0430\u044e \u0432\u0435\u0441\u044c \u0441\u043f\u0435\u043a\u0442\u0440 \u0440\u0438\u044d\u043b\u0442\u043e\u0440\u0441\u043a\u0438\u0445 \u0443\u0441\u043b\u0443\u0433 \u0432 \u0421\u0430\u043d\u043a\u0442-\u041f\u0435\u0442\u0435\u0440\u0431\u0443\u0440\u0433\u0435 \u0438 \u041b\u0435\u043d\u0438\u043d\u0433\u0440\u0430\u0434\u0441\u043a\u043e\u0439 \u043e\u0431\u043b\u0430\u0441\u0442\u0438 \u043f\u043e \u043d\u0430\u043f\u0440\u0430\u0432\u043b\u0435\u043d\u0438\u044f\u043c \u0432\u0442\u043e\u0440\u0438\u0447\u043d\u044b\u0439 \u0440\u044b\u043d\u043e\u043a \u0438 \u0437\u0430\u0433\u043e\u0440\u043e\u0434\u043d\u0430\u044f \u043d\u0435\u0434\u0432\u0438\u0436\u0438\u043c\u043e\u0441\u0442\u044c.<\/div><div>&nbsp;<\/div><div>\u0421 \u0443\u0434\u043e\u0432\u043e\u043b\u044c\u0441\u0442\u0432\u0438\u0435\u043c \u043e\u0442\u0432\u0435\u0447\u0443 \u043d\u0430 \u0432\u0441\u0435 \u0438\u043d\u0442\u0435\u0440\u0435\u0441\u0443\u044e\u0449\u0438\u0435 \u0412\u0430\u0441 \u0432\u043e\u043f\u0440\u043e\u0441\u044b, \u0441\u0432\u044f\u0437\u0430\u043d\u043d\u044b\u0435 \u0441 \u043d\u0435\u0434\u0432\u0438\u0436\u0438\u043c\u043e\u0441\u0442\u044c\u044e<\/div><div>\u043f\u043e \u0442\u0435\u043b\u0435\u0444\u043e\u043d\u0443 89211818700;<\/div><div>\u043f\u043e \u044d\u043b\u0435\u043a\u0442\u0440\u043e\u043d\u043d\u043e\u0439 \u043f\u043e\u0447\u0442\u0435 TarasovaEV@itaka.ru.<\/div><div>&nbsp;<\/div><div>\u041a\u0430\u0447\u0435\u0441\u0442\u0432\u043e, \u043f\u0440\u043e\u0444\u0435\u0441\u0441\u0438\u043e\u043d\u0430\u043b\u0438\u0437\u043c, \u0434\u043e\u0431\u0440\u043e\u0441\u043e\u0432\u0435\u0441\u0442\u043d\u043e\u0441\u0442\u044c, \u0431\u0435\u0437\u043e\u043f\u0430\u0441\u043d\u043e\u0441\u0442\u044c \u0438 \u043e\u043f\u0435\u0440\u0430\u0442\u0438\u0432\u043d\u043e\u0441\u0442\u044c \u0433\u0430\u0440\u0430\u043d\u0442\u0438\u0440\u0443\u044e!<\/div><div>&nbsp;<\/div><div>\u0421 \u0443\u0432\u0430\u0436\u0435\u043d\u0438\u0435\u043c,<\/div><div>\u0430\u0433\u0435\u043d\u0442 \u043f\u043e \u043d\u0435\u0434\u0432\u0438\u0436\u0438\u043c\u043e\u0441\u0442\u0438 \u0410\u041d \u00ab\u0418\u0442\u0430\u043a\u0430\u00bb<\/div><div>\u0422\u0430\u0440\u0430\u0441\u043e\u0432\u0430 \u0415\u043b\u0435\u043d\u0430 \u0412\u0430\u043b\u0435\u0440\u044c\u0435\u0432\u043d\u0430<\/div>","oadm":0,"gender":0,"shows":1,"selfemployed":0,"individual":1,"in_state":0,"in_office":1,"site_post":"","is_fired":0,"direct_submission":0,"direct_submission_id":1,"mim":0,"change":1,"is_active":1,"noindex":0,"must_index":0,"jivo":1,"basic_office_id":"000000013","precinct":0,"slaves_notifications":1,"is_blocked":0,"overrides":{"vk":"https:\/\/vk.com\/id1163451","vk_uin":"id1163451","about_agent":"<p><span style=\"font-size:16.0pt;line-height:107%;\r\nfont-family:&quot;Times New Roman&quot;,serif;mso-fareast-font-family:Calibri;mso-fareast-theme-font:\r\nminor-latin;mso-ansi-language:RU;mso-fareast-language:EN-US;mso-bidi-language:\r\nAR-SA\">\u041a \u0412\u0430\u0448\u0438\u043c \u0443\u0441\u043b\u0443\u0433\u0430\u043c \u043e\u043f\u044b\u0442\u043d\u044b\u0439 \u0430\u0433\u0435\u043d\u0442 \u043f\u043e \u043d\u0435\u0434\u0432\u0438\u0436\u0438\u043c\u043e\u0441\u0442\u0438. \u041e\u043a\u0430\u0437\u044b\u0432\u0430\u044e \u0432\u0435\u0441\u044c \u0441\u043f\u0435\u043a\u0442\u0440\r\n\u0440\u0438\u044d\u043b\u0442\u043e\u0440\u0441\u043a\u0438\u0445 \u0443\u0441\u043b\u0443\u0433 \u0432 \u0421\u0430\u043d\u043a\u0442-\u041f\u0435\u0442\u0435\u0440\u0431\u0443\u0440\u0433\u0435 \u0438 \u041b\u0435\u043d\u0438\u043d\u0433\u0440\u0430\u0434\u0441\u043a\u043e\u0439 \u043e\u0431\u043b\u0430\u0441\u0442\u0438 \u043f\u043e \u043d\u0430\u043f\u0440\u0430\u0432\u043b\u0435\u043d\u0438\u044f\u043c \u0432\u0442\u043e\u0440\u0438\u0447\u043d\u044b\u0439\r\n\u0440\u044b\u043d\u043e\u043a \u0438 \u0437\u0430\u0433\u043e\u0440\u043e\u0434\u043d\u0430\u044f \u043d\u0435\u0434\u0432\u0438\u0436\u0438\u043c\u043e\u0441\u0442\u044c.<\/span><\/p><p><span style=\"font-size:16.0pt;line-height:107%;\r\nfont-family:&quot;Times New Roman&quot;,serif;mso-fareast-font-family:Calibri;mso-fareast-theme-font:\r\nminor-latin;mso-ansi-language:RU;mso-fareast-language:EN-US;mso-bidi-language:\r\nAR-SA\">\u041a\u0430\u0447\u0435\u0441\u0442\u0432\u043e, \u043f\u0440\u043e\u0444\u0435\u0441\u0441\u0438\u043e\u043d\u0430\u043b\u0438\u0437\u043c, \u0434\u043e\u0431\u0440\u043e\u0441\u043e\u0432\u0435\u0441\u0442\u043d\u043e\u0441\u0442\u044c, \u0431\u0435\u0437\u043e\u043f\u0430\u0441\u043d\u043e\u0441\u0442\u044c \u0438 \u043e\u043f\u0435\u0440\u0430\u0442\u0438\u0432\u043d\u043e\u0441\u0442\u044c\r\n\u0433\u0430\u0440\u0430\u043d\u0442\u0438\u0440\u0443\u044e!<\/span><br><\/p>","about_agent_uin":"p>"},"wp":false,"phone_f":"78127407040","office":{"id":"000000013","url":"ul-malaya-balkanskaya-d-26","name":"\u0443\u043b. \u041c\u0430\u043b\u0430\u044f \u0411\u0430\u043b\u043a\u0430\u043d\u0441\u043a\u0430\u044f, \u0434. 26","adress":"\u0433. \u0421\u0430\u043d\u043a\u0442-\u041f\u0435\u0442\u0435\u0440\u0431\u0443\u0440\u0433, \u0424\u0440\u0443\u043d\u0437\u0435\u043d\u0441\u043a\u0438\u0439 \u0440-\u043d, \u0443\u043b. \u041c\u0430\u043b\u0430\u044f \u0411\u0430\u043b\u043a\u0430\u043d\u0441\u043a\u0430\u044f, \u0434. 26","coords":"59.829442,30.386079","pano_coords":"59.8298972865986,30.384474933","pano_direction":"44.60707084120078,1.1631715886855591","pano_span":"58.033400647822184,30.320036290824245","email":"kup4ino@itaka.ru","phone":"88123477731","metro_stations_id":9,"region_id":78,"district_id":null,"coords_metro":null,"coords_top":null,"coords_left":null,"spbzn_coords_top":null,"spbzn_coords_left":null,"change":1,"td_id":7,"order":70,"deleted_at":null,"SuccessOverrides":[{"id":6887,"model":"Offices","target_id":0,"target_id_str":"000000013","field":"order","value":"129,5017,4141,94,255,11524,9127,5779,570,7832,10411,8923,10124,14723,12440,10827,11255,13615,14933,13616,13397,11863,702,10547,2879,3805,10032,11151,663,15756,10131,13269,284,12585,13651,2234","is_current":0,"is_moderated_adm":1,"is_moderated_tech":1,"is_selected":0,"creator_id":440,"moderator_adm_id":440,"moderator_tech_id":440,"adm_reason":null,"tech_reason":null,"created_at":"2025-09-10T08:59:44.000000Z","updated_at":"2025-09-10T08:59:44.000000Z"},{"id":6886,"model":"Offices","target_id":0,"target_id_str":"000000013","field":"add_agent_id","value":"9557","is_current":0,"is_moderated_adm":1,"is_moderated_tech":1,"is_selected":0,"creator_id":440,"moderator_adm_id":440,"moderator_tech_id":440,"adm_reason":null,"tech_reason":null,"created_at":"2025-09-10T08:59:44.000000Z","updated_at":"2025-09-10T08:59:44.000000Z"},{"id":6885,"model":"Offices","target_id":0,"target_id_str":"000000013","field":"schedule","value":"\u041f\u041d-\u041f\u0422: 10.00-20.00<br \/>\r\n\u0421\u0411-\u0412\u0421: 11.00-18.00","is_current":0,"is_moderated_adm":1,"is_moderated_tech":1,"is_selected":0,"creator_id":440,"moderator_adm_id":440,"moderator_tech_id":440,"adm_reason":null,"tech_reason":null,"created_at":"2025-09-10T08:59:44.000000Z","updated_at":"2025-09-10T08:59:44.000000Z"}],"Hours":null},"Mimfio":false,"success_overrides":[{"id":2170,"model":"Agents","target_id":10411,"target_id_str":null,"field":"vk","value":"https:\/\/vk.com\/id1163451","is_current":0,"is_moderated_adm":1,"is_moderated_tech":1,"is_selected":0,"creator_id":690,"moderator_adm_id":440,"moderator_tech_id":440,"adm_reason":null,"tech_reason":null,"created_at":"2021-12-17T08:14:00.000000Z","updated_at":"2021-12-17T12:05:39.000000Z"},{"id":2220,"model":"Agents","target_id":10411,"target_id_str":null,"field":"about_agent","value":"<p><br><\/p><div style=\"color: rgb(0, 0, 0); font-family: Arial; font-size: 12px; font-style: normal; font-variant-ligatures: normal; font-variant-caps: normal; font-weight: 400; letter-spacing: normal; orphans: 2; text-align: start; text-indent: 0px; text-transform: none; white-space: normal; widows: 2; word-spacing: 0px; -webkit-text-stroke-width: 0px; background-color: rgb(237, 225, 199); text-decoration-thickness: initial; text-decoration-style: initial; text-decoration-color: initial;\">\u041a \u0412\u0430\u0448\u0438\u043c \u0443\u0441\u043b\u0443\u0433\u0430\u043c \u043e\u043f\u044b\u0442\u043d\u044b\u0439 \u0430\u0433\u0435\u043d\u0442 \u043f\u043e \u043d\u0435\u0434\u0432\u0438\u0436\u0438\u043c\u043e\u0441\u0442\u0438. \u041e\u043a\u0430\u0437\u044b\u0432\u0430\u044e \u0432\u0435\u0441\u044c \u0441\u043f\u0435\u043a\u0442\u0440 \u0440\u0438\u044d\u043b\u0442\u043e\u0440\u0441\u043a\u0438\u0445 \u0443\u0441\u043b\u0443\u0433 \u0432 \u0421\u0430\u043d\u043a\u0442-\u041f\u0435\u0442\u0435\u0440\u0431\u0443\u0440\u0433\u0435 \u0438 \u041b\u0435\u043d\u0438\u043d\u0433\u0440\u0430\u0434\u0441\u043a\u043e\u0439 \u043e\u0431\u043b\u0430\u0441\u0442\u0438 \u043f\u043e \u043d\u0430\u043f\u0440\u0430\u0432\u043b\u0435\u043d\u0438\u044f\u043c \u0432\u0442\u043e\u0440\u0438\u0447\u043d\u044b\u0439 \u0440\u044b\u043d\u043e\u043a \u0438 \u0437\u0430\u0433\u043e\u0440\u043e\u0434\u043d\u0430\u044f \u043d\u0435\u0434\u0432\u0438\u0436\u0438\u043c\u043e\u0441\u0442\u044c.<\/div><div style=\"color: rgb(0, 0, 0); font-family: Arial; font-size: 12px; font-style: normal; font-variant-ligatures: normal; font-variant-caps: normal; font-weight: 400; letter-spacing: normal; orphans: 2; text-align: start; text-indent: 0px; text-transform: none; white-space: normal; widows: 2; word-spacing: 0px; -webkit-text-stroke-width: 0px; background-color: rgb(237, 225, 199); text-decoration-thickness: initial; text-decoration-style: initial; text-decoration-color: initial;\">\u041a\u0430\u0447\u0435\u0441\u0442\u0432\u043e, \u043f\u0440\u043e\u0444\u0435\u0441\u0441\u0438\u043e\u043d\u0430\u043b\u0438\u0437\u043c, \u0434\u043e\u0431\u0440\u043e\u0441\u043e\u0432\u0435\u0441\u0442\u043d\u043e\u0441\u0442\u044c, \u0431\u0435\u0437\u043e\u043f\u0430\u0441\u043d\u043e\u0441\u0442\u044c \u0438 \u043e\u043f\u0435\u0440\u0430\u0442\u0438\u0432\u043d\u043e\u0441\u0442\u044c \u0433\u0430\u0440\u0430\u043d\u0442\u0438\u0440\u0443\u044e!<\/div>\r\n \r\n <p><br><\/p>","is_current":0,"is_moderated_adm":1,"is_moderated_tech":1,"is_selected":0,"creator_id":690,"moderator_adm_id":402,"moderator_tech_id":402,"adm_reason":null,"tech_reason":null,"created_at":"2021-12-19T07:13:45.000000Z","updated_at":"2021-12-20T13:59:56.000000Z"},{"id":2965,"model":"Agents","target_id":10411,"target_id_str":null,"field":"about_agent","value":"<p><span style=\"font-size:16.0pt;line-height:107%;\r\nfont-family:&quot;Times New Roman&quot;,serif;mso-fareast-font-family:Calibri;mso-fareast-theme-font:\r\nminor-latin;mso-ansi-language:RU;mso-fareast-language:EN-US;mso-bidi-language:\r\nAR-SA\">\u041a \u0412\u0430\u0448\u0438\u043c \u0443\u0441\u043b\u0443\u0433\u0430\u043c \u043e\u043f\u044b\u0442\u043d\u044b\u0439 \u0430\u0433\u0435\u043d\u0442 \u043f\u043e \u043d\u0435\u0434\u0432\u0438\u0436\u0438\u043c\u043e\u0441\u0442\u0438. \u041e\u043a\u0430\u0437\u044b\u0432\u0430\u044e \u0432\u0435\u0441\u044c \u0441\u043f\u0435\u043a\u0442\u0440\r\n\u0440\u0438\u044d\u043b\u0442\u043e\u0440\u0441\u043a\u0438\u0445 \u0443\u0441\u043b\u0443\u0433 \u0432 \u0421\u0430\u043d\u043a\u0442-\u041f\u0435\u0442\u0435\u0440\u0431\u0443\u0440\u0433\u0435 \u0438 \u041b\u0435\u043d\u0438\u043d\u0433\u0440\u0430\u0434\u0441\u043a\u043e\u0439 \u043e\u0431\u043b\u0430\u0441\u0442\u0438 \u043f\u043e \u043d\u0430\u043f\u0440\u0430\u0432\u043b\u0435\u043d\u0438\u044f\u043c \u0432\u0442\u043e\u0440\u0438\u0447\u043d\u044b\u0439\r\n\u0440\u044b\u043d\u043e\u043a \u0438 \u0437\u0430\u0433\u043e\u0440\u043e\u0434\u043d\u0430\u044f \u043d\u0435\u0434\u0432\u0438\u0436\u0438\u043c\u043e\u0441\u0442\u044c.<\/span><\/p><p><span style=\"font-size:16.0pt;line-height:107%;\r\nfont-family:&quot;Times New Roman&quot;,serif;mso-fareast-font-family:Calibri;mso-fareast-theme-font:\r\nminor-latin;mso-ansi-language:RU;mso-fareast-language:EN-US;mso-bidi-language:\r\nAR-SA\">\u041a\u0430\u0447\u0435\u0441\u0442\u0432\u043e, \u043f\u0440\u043e\u0444\u0435\u0441\u0441\u0438\u043e\u043d\u0430\u043b\u0438\u0437\u043c, \u0434\u043e\u0431\u0440\u043e\u0441\u043e\u0432\u0435\u0441\u0442\u043d\u043e\u0441\u0442\u044c, \u0431\u0435\u0437\u043e\u043f\u0430\u0441\u043d\u043e\u0441\u0442\u044c \u0438 \u043e\u043f\u0435\u0440\u0430\u0442\u0438\u0432\u043d\u043e\u0441\u0442\u044c\r\n\u0433\u0430\u0440\u0430\u043d\u0442\u0438\u0440\u0443\u044e!<\/span><br><\/p>","is_current":0,"is_moderated_adm":1,"is_moderated_tech":1,"is_selected":0,"creator_id":690,"moderator_adm_id":440,"moderator_tech_id":440,"adm_reason":null,"tech_reason":null,"created_at":"2022-03-01T08:15:31.000000Z","updated_at":"2022-03-02T15:25:38.000000Z"}]},{"id":10411,"url":"elena-tarasova","F":"\u0422\u0430\u0440\u0430\u0441\u043e\u0432\u0430","I":"\u0415\u043b\u0435\u043d\u0430","O":"\u0412\u0430\u043b\u0435\u0440\u044c\u0435\u0432\u043d\u0430","phone":"+7 (812) 740-70-40","email":"TarasovaEV@itaka.ru","personal_phone":"8-921-18-18-700","personal_email":"TarasovaEV@itaka.ru","birthday":"1977-03-03","photo_sq":"\/\/homeinspb.ru\/1c\/photo\/FL10411.jpg","photo_cir":"agent_10411_cir.png","photo":null,"online":1,"text":"<div>\u041a \u0412\u0430\u0448\u0438\u043c \u0443\u0441\u043b\u0443\u0433\u0430\u043c \u043e\u043f\u044b\u0442\u043d\u044b\u0439 \u0430\u0433\u0435\u043d\u0442 \u043f\u043e \u043d\u0435\u0434\u0432\u0438\u0436\u0438\u043c\u043e\u0441\u0442\u0438. \u041e\u043a\u0430\u0437\u044b\u0432\u0430\u044e \u0432\u0435\u0441\u044c \u0441\u043f\u0435\u043a\u0442\u0440 \u0440\u0438\u044d\u043b\u0442\u043e\u0440\u0441\u043a\u0438\u0445 \u0443\u0441\u043b\u0443\u0433 \u0432 \u0421\u0430\u043d\u043a\u0442-\u041f\u0435\u0442\u0435\u0440\u0431\u0443\u0440\u0433\u0435 \u0438 \u041b\u0435\u043d\u0438\u043d\u0433\u0440\u0430\u0434\u0441\u043a\u043e\u0439 \u043e\u0431\u043b\u0430\u0441\u0442\u0438 \u043f\u043e \u043d\u0430\u043f\u0440\u0430\u0432\u043b\u0435\u043d\u0438\u044f\u043c \u0432\u0442\u043e\u0440\u0438\u0447\u043d\u044b\u0439 \u0440\u044b\u043d\u043e\u043a \u0438 \u0437\u0430\u0433\u043e\u0440\u043e\u0434\u043d\u0430\u044f \u043d\u0435\u0434\u0432\u0438\u0436\u0438\u043c\u043e\u0441\u0442\u044c.<\/div><div>&nbsp;<\/div><div>\u0421 \u0443\u0434\u043e\u0432\u043e\u043b\u044c\u0441\u0442\u0432\u0438\u0435\u043c \u043e\u0442\u0432\u0435\u0447\u0443 \u043d\u0430 \u0432\u0441\u0435 \u0438\u043d\u0442\u0435\u0440\u0435\u0441\u0443\u044e\u0449\u0438\u0435 \u0412\u0430\u0441 \u0432\u043e\u043f\u0440\u043e\u0441\u044b, \u0441\u0432\u044f\u0437\u0430\u043d\u043d\u044b\u0435 \u0441 \u043d\u0435\u0434\u0432\u0438\u0436\u0438\u043c\u043e\u0441\u0442\u044c\u044e<\/div><div>\u043f\u043e \u0442\u0435\u043b\u0435\u0444\u043e\u043d\u0443 89211818700;<\/div><div>\u043f\u043e \u044d\u043b\u0435\u043a\u0442\u0440\u043e\u043d\u043d\u043e\u0439 \u043f\u043e\u0447\u0442\u0435 TarasovaEV@itaka.ru.<\/div><div>&nbsp;<\/div><div>\u041a\u0430\u0447\u0435\u0441\u0442\u0432\u043e, \u043f\u0440\u043e\u0444\u0435\u0441\u0441\u0438\u043e\u043d\u0430\u043b\u0438\u0437\u043c, \u0434\u043e\u0431\u0440\u043e\u0441\u043e\u0432\u0435\u0441\u0442\u043d\u043e\u0441\u0442\u044c, \u0431\u0435\u0437\u043e\u043f\u0430\u0441\u043d\u043e\u0441\u0442\u044c \u0438 \u043e\u043f\u0435\u0440\u0430\u0442\u0438\u0432\u043d\u043e\u0441\u0442\u044c \u0433\u0430\u0440\u0430\u043d\u0442\u0438\u0440\u0443\u044e!<\/div><div>&nbsp;<\/div><div>\u0421 \u0443\u0432\u0430\u0436\u0435\u043d\u0438\u0435\u043c,<\/div><div>\u0430\u0433\u0435\u043d\u0442 \u043f\u043e \u043d\u0435\u0434\u0432\u0438\u0436\u0438\u043c\u043e\u0441\u0442\u0438 \u0410\u041d \u00ab\u0418\u0442\u0430\u043a\u0430\u00bb<\/div><div>\u0422\u0430\u0440\u0430\u0441\u043e\u0432\u0430 \u0415\u043b\u0435\u043d\u0430 \u0412\u0430\u043b\u0435\u0440\u044c\u0435\u0432\u043d\u0430<\/div>","oadm":0,"gender":0,"shows":1,"selfemployed":0,"individual":1,"in_state":0,"in_office":1,"site_post":"","is_fired":0,"direct_submission":0,"direct_submission_id":1,"mim":0,"change":1,"is_active":1,"noindex":0,"must_index":0,"jivo":1,"basic_office_id":"000000013","precinct":0,"slaves_notifications":1,"is_blocked":0,"overrides":{"vk":"https:\/\/vk.com\/id1163451","vk_uin":"id1163451","about_agent":"<p><span style=\"font-size:16.0pt;line-height:107%;\r\nfont-family:&quot;Times New Roman&quot;,serif;mso-fareast-font-family:Calibri;mso-fareast-theme-font:\r\nminor-latin;mso-ansi-language:RU;mso-fareast-language:EN-US;mso-bidi-language:\r\nAR-SA\">\u041a \u0412\u0430\u0448\u0438\u043c \u0443\u0441\u043b\u0443\u0433\u0430\u043c \u043e\u043f\u044b\u0442\u043d\u044b\u0439 \u0430\u0433\u0435\u043d\u0442 \u043f\u043e \u043d\u0435\u0434\u0432\u0438\u0436\u0438\u043c\u043e\u0441\u0442\u0438. \u041e\u043a\u0430\u0437\u044b\u0432\u0430\u044e \u0432\u0435\u0441\u044c \u0441\u043f\u0435\u043a\u0442\u0440\r\n\u0440\u0438\u044d\u043b\u0442\u043e\u0440\u0441\u043a\u0438\u0445 \u0443\u0441\u043b\u0443\u0433 \u0432 \u0421\u0430\u043d\u043a\u0442-\u041f\u0435\u0442\u0435\u0440\u0431\u0443\u0440\u0433\u0435 \u0438 \u041b\u0435\u043d\u0438\u043d\u0433\u0440\u0430\u0434\u0441\u043a\u043e\u0439 \u043e\u0431\u043b\u0430\u0441\u0442\u0438 \u043f\u043e \u043d\u0430\u043f\u0440\u0430\u0432\u043b\u0435\u043d\u0438\u044f\u043c \u0432\u0442\u043e\u0440\u0438\u0447\u043d\u044b\u0439\r\n\u0440\u044b\u043d\u043e\u043a \u0438 \u0437\u0430\u0433\u043e\u0440\u043e\u0434\u043d\u0430\u044f \u043d\u0435\u0434\u0432\u0438\u0436\u0438\u043c\u043e\u0441\u0442\u044c.<\/span><\/p><p><span style=\"font-size:16.0pt;line-height:107%;\r\nfont-family:&quot;Times New Roman&quot;,serif;mso-fareast-font-family:Calibri;mso-fareast-theme-font:\r\nminor-latin;mso-ansi-language:RU;mso-fareast-language:EN-US;mso-bidi-language:\r\nAR-SA\">\u041a\u0430\u0447\u0435\u0441\u0442\u0432\u043e, \u043f\u0440\u043e\u0444\u0435\u0441\u0441\u0438\u043e\u043d\u0430\u043b\u0438\u0437\u043c, \u0434\u043e\u0431\u0440\u043e\u0441\u043e\u0432\u0435\u0441\u0442\u043d\u043e\u0441\u0442\u044c, \u0431\u0435\u0437\u043e\u043f\u0430\u0441\u043d\u043e\u0441\u0442\u044c \u0438 \u043e\u043f\u0435\u0440\u0430\u0442\u0438\u0432\u043d\u043e\u0441\u0442\u044c\r\n\u0433\u0430\u0440\u0430\u043d\u0442\u0438\u0440\u0443\u044e!<\/span><br><\/p>","about_agent_uin":"p>"},"wp":false,"phone_f":"78127407040","office":{"id":"000000013","url":"ul-malaya-balkanskaya-d-26","name":"\u0443\u043b. \u041c\u0430\u043b\u0430\u044f \u0411\u0430\u043b\u043a\u0430\u043d\u0441\u043a\u0430\u044f, \u0434. 26","adress":"\u0433. \u0421\u0430\u043d\u043a\u0442-\u041f\u0435\u0442\u0435\u0440\u0431\u0443\u0440\u0433, \u0424\u0440\u0443\u043d\u0437\u0435\u043d\u0441\u043a\u0438\u0439 \u0440-\u043d, \u0443\u043b. \u041c\u0430\u043b\u0430\u044f \u0411\u0430\u043b\u043a\u0430\u043d\u0441\u043a\u0430\u044f, \u0434. 26","coords":"59.829442,30.386079","pano_coords":"59.8298972865986,30.384474933","pano_direction":"44.60707084120078,1.1631715886855591","pano_span":"58.033400647822184,30.320036290824245","email":"kup4ino@itaka.ru","phone":"88123477731","metro_stations_id":9,"region_id":78,"district_id":null,"coords_metro":null,"coords_top":null,"coords_left":null,"spbzn_coords_top":null,"spbzn_coords_left":null,"change":1,"td_id":7,"order":70,"deleted_at":null,"SuccessOverrides":[{"id":6887,"model":"Offices","target_id":0,"target_id_str":"000000013","field":"order","value":"129,5017,4141,94,255,11524,9127,5779,570,7832,10411,8923,10124,14723,12440,10827,11255,13615,14933,13616,13397,11863,702,10547,2879,3805,10032,11151,663,15756,10131,13269,284,12585,13651,2234","is_current":0,"is_moderated_adm":1,"is_moderated_tech":1,"is_selected":0,"creator_id":440,"moderator_adm_id":440,"moderator_tech_id":440,"adm_reason":null,"tech_reason":null,"created_at":"2025-09-10T08:59:44.000000Z","updated_at":"2025-09-10T08:59:44.000000Z"},{"id":6886,"model":"Offices","target_id":0,"target_id_str":"000000013","field":"add_agent_id","value":"9557","is_current":0,"is_moderated_adm":1,"is_moderated_tech":1,"is_selected":0,"creator_id":440,"moderator_adm_id":440,"moderator_tech_id":440,"adm_reason":null,"tech_reason":null,"created_at":"2025-09-10T08:59:44.000000Z","updated_at":"2025-09-10T08:59:44.000000Z"},{"id":6885,"model":"Offices","target_id":0,"target_id_str":"000000013","field":"schedule","value":"\u041f\u041d-\u041f\u0422: 10.00-20.00<br \/>\r\n\u0421\u0411-\u0412\u0421: 11.00-18.00","is_current":0,"is_moderated_adm":1,"is_moderated_tech":1,"is_selected":0,"creator_id":440,"moderator_adm_id":440,"moderator_tech_id":440,"adm_reason":null,"tech_reason":null,"created_at":"2025-09-10T08:59:44.000000Z","updated_at":"2025-09-10T08:59:44.000000Z"}],"Hours":null},"Mimfio":false,"success_overrides":[{"id":2170,"model":"Agents","target_id":10411,"target_id_str":null,"field":"vk","value":"https:\/\/vk.com\/id1163451","is_current":0,"is_moderated_adm":1,"is_moderated_tech":1,"is_selected":0,"creator_id":690,"moderator_adm_id":440,"moderator_tech_id":440,"adm_reason":null,"tech_reason":null,"created_at":"2021-12-17T08:14:00.000000Z","updated_at":"2021-12-17T12:05:39.000000Z"},{"id":2220,"model":"Agents","target_id":10411,"target_id_str":null,"field":"about_agent","value":"<p><br><\/p><div style=\"color: rgb(0, 0, 0); font-family: Arial; font-size: 12px; font-style: normal; font-variant-ligatures: normal; font-variant-caps: normal; font-weight: 400; letter-spacing: normal; orphans: 2; text-align: start; text-indent: 0px; text-transform: none; white-space: normal; widows: 2; word-spacing: 0px; -webkit-text-stroke-width: 0px; background-color: rgb(237, 225, 199); text-decoration-thickness: initial; text-decoration-style: initial; text-decoration-color: initial;\">\u041a \u0412\u0430\u0448\u0438\u043c \u0443\u0441\u043b\u0443\u0433\u0430\u043c \u043e\u043f\u044b\u0442\u043d\u044b\u0439 \u0430\u0433\u0435\u043d\u0442 \u043f\u043e \u043d\u0435\u0434\u0432\u0438\u0436\u0438\u043c\u043e\u0441\u0442\u0438. \u041e\u043a\u0430\u0437\u044b\u0432\u0430\u044e \u0432\u0435\u0441\u044c \u0441\u043f\u0435\u043a\u0442\u0440 \u0440\u0438\u044d\u043b\u0442\u043e\u0440\u0441\u043a\u0438\u0445 \u0443\u0441\u043b\u0443\u0433 \u0432 \u0421\u0430\u043d\u043a\u0442-\u041f\u0435\u0442\u0435\u0440\u0431\u0443\u0440\u0433\u0435 \u0438 \u041b\u0435\u043d\u0438\u043d\u0433\u0440\u0430\u0434\u0441\u043a\u043e\u0439 \u043e\u0431\u043b\u0430\u0441\u0442\u0438 \u043f\u043e \u043d\u0430\u043f\u0440\u0430\u0432\u043b\u0435\u043d\u0438\u044f\u043c \u0432\u0442\u043e\u0440\u0438\u0447\u043d\u044b\u0439 \u0440\u044b\u043d\u043e\u043a \u0438 \u0437\u0430\u0433\u043e\u0440\u043e\u0434\u043d\u0430\u044f \u043d\u0435\u0434\u0432\u0438\u0436\u0438\u043c\u043e\u0441\u0442\u044c.<\/div><div style=\"color: rgb(0, 0, 0); font-family: Arial; font-size: 12px; font-style: normal; font-variant-ligatures: normal; font-variant-caps: normal; font-weight: 400; letter-spacing: normal; orphans: 2; text-align: start; text-indent: 0px; text-transform: none; white-space: normal; widows: 2; word-spacing: 0px; -webkit-text-stroke-width: 0px; background-color: rgb(237, 225, 199); text-decoration-thickness: initial; text-decoration-style: initial; text-decoration-color: initial;\">\u041a\u0430\u0447\u0435\u0441\u0442\u0432\u043e, \u043f\u0440\u043e\u0444\u0435\u0441\u0441\u0438\u043e\u043d\u0430\u043b\u0438\u0437\u043c, \u0434\u043e\u0431\u0440\u043e\u0441\u043e\u0432\u0435\u0441\u0442\u043d\u043e\u0441\u0442\u044c, \u0431\u0435\u0437\u043e\u043f\u0430\u0441\u043d\u043e\u0441\u0442\u044c \u0438 \u043e\u043f\u0435\u0440\u0430\u0442\u0438\u0432\u043d\u043e\u0441\u0442\u044c \u0433\u0430\u0440\u0430\u043d\u0442\u0438\u0440\u0443\u044e!<\/div>\r\n \r\n <p><br><\/p>","is_current":0,"is_moderated_adm":1,"is_moderated_tech":1,"is_selected":0,"creator_id":690,"moderator_adm_id":402,"moderator_tech_id":402,"adm_reason":null,"tech_reason":null,"created_at":"2021-12-19T07:13:45.000000Z","updated_at":"2021-12-20T13:59:56.000000Z"},{"id":2965,"model":"Agents","target_id":10411,"target_id_str":null,"field":"about_agent","value":"<p><span style=\"font-size:16.0pt;line-height:107%;\r\nfont-family:&quot;Times New Roman&quot;,serif;mso-fareast-font-family:Calibri;mso-fareast-theme-font:\r\nminor-latin;mso-ansi-language:RU;mso-fareast-language:EN-US;mso-bidi-language:\r\nAR-SA\">\u041a \u0412\u0430\u0448\u0438\u043c \u0443\u0441\u043b\u0443\u0433\u0430\u043c \u043e\u043f\u044b\u0442\u043d\u044b\u0439 \u0430\u0433\u0435\u043d\u0442 \u043f\u043e \u043d\u0435\u0434\u0432\u0438\u0436\u0438\u043c\u043e\u0441\u0442\u0438. \u041e\u043a\u0430\u0437\u044b\u0432\u0430\u044e \u0432\u0435\u0441\u044c \u0441\u043f\u0435\u043a\u0442\u0440\r\n\u0440\u0438\u044d\u043b\u0442\u043e\u0440\u0441\u043a\u0438\u0445 \u0443\u0441\u043b\u0443\u0433 \u0432 \u0421\u0430\u043d\u043a\u0442-\u041f\u0435\u0442\u0435\u0440\u0431\u0443\u0440\u0433\u0435 \u0438 \u041b\u0435\u043d\u0438\u043d\u0433\u0440\u0430\u0434\u0441\u043a\u043e\u0439 \u043e\u0431\u043b\u0430\u0441\u0442\u0438 \u043f\u043e \u043d\u0430\u043f\u0440\u0430\u0432\u043b\u0435\u043d\u0438\u044f\u043c \u0432\u0442\u043e\u0440\u0438\u0447\u043d\u044b\u0439\r\n\u0440\u044b\u043d\u043e\u043a \u0438 \u0437\u0430\u0433\u043e\u0440\u043e\u0434\u043d\u0430\u044f \u043d\u0435\u0434\u0432\u0438\u0436\u0438\u043c\u043e\u0441\u0442\u044c.<\/span><\/p><p><span style=\"font-size:16.0pt;line-height:107%;\r\nfont-family:&quot;Times New Roman&quot;,serif;mso-fareast-font-family:Calibri;mso-fareast-theme-font:\r\nminor-latin;mso-ansi-language:RU;mso-fareast-language:EN-US;mso-bidi-language:\r\nAR-SA\">\u041a\u0430\u0447\u0435\u0441\u0442\u0432\u043e, \u043f\u0440\u043e\u0444\u0435\u0441\u0441\u0438\u043e\u043d\u0430\u043b\u0438\u0437\u043c, \u0434\u043e\u0431\u0440\u043e\u0441\u043e\u0432\u0435\u0441\u0442\u043d\u043e\u0441\u0442\u044c, \u0431\u0435\u0437\u043e\u043f\u0430\u0441\u043d\u043e\u0441\u0442\u044c \u0438 \u043e\u043f\u0435\u0440\u0430\u0442\u0438\u0432\u043d\u043e\u0441\u0442\u044c\r\n\u0433\u0430\u0440\u0430\u043d\u0442\u0438\u0440\u0443\u044e!<\/span><br><\/p>","is_current":0,"is_moderated_adm":1,"is_moderated_tech":1,"is_selected":0,"creator_id":690,"moderator_adm_id":440,"moderator_tech_id":440,"adm_reason":null,"tech_reason":null,"created_at":"2022-03-01T08:15:31.000000Z","updated_at":"2022-03-02T15:25:38.000000Z"}]}],"metro":{"id":28,"name":"\u041f\u0440\u0438\u043c\u043e\u0440\u0441\u043a\u0430\u044f","chpuName":"primorskaja","top":"324","left":"52","metro_lines_id":5,"intersection":null,"r_top":"205","r_side":"7","r_class":"left","r_top_sub":"14","r_side_sub":"27","r_opt_class":null,"yaCoord0":null,"yaCoord1":null,"created_at":null,"updated_at":null,"metro_color":"green"},"images":[{"id":1301739,"apartment_number":"1-92544","photo":"media.itaka.ru\/homeinspb\/images\/objects\/big_b7c3ea0c-7acf-f011-aa6e-0050568db126.jpg","priority":1},{"id":1301740,"apartment_number":"1-92544","photo":"media.itaka.ru\/homeinspb\/images\/objects\/big_bcc3ea0c-7acf-f011-aa6e-0050568db126.jpg","priority":2},{"id":1301741,"apartment_number":"1-92544","photo":"media.itaka.ru\/homeinspb\/images\/objects\/big_c1c3ea0c-7acf-f011-aa6e-0050568db126.jpg","priority":3},{"id":1301742,"apartment_number":"1-92544","photo":"media.itaka.ru\/homeinspb\/images\/objects\/big_c4c3ea0c-7acf-f011-aa6e-0050568db126.jpg","priority":4},{"id":1301743,"apartment_number":"1-92544","photo":"media.itaka.ru\/homeinspb\/images\/objects\/big_cac3ea0c-7acf-f011-aa6e-0050568db126.jpg","priority":5},{"id":1301744,"apartment_number":"1-92544","photo":"media.itaka.ru\/homeinspb\/images\/objects\/big_d0c3ea0c-7acf-f011-aa6e-0050568db126.jpg","priority":6},{"id":1301745,"apartment_number":"1-92544","photo":"media.itaka.ru\/homeinspb\/images\/objects\/big_d8c3ea0c-7acf-f011-aa6e-0050568db126.jpg","priority":7},{"id":1301746,"apartment_number":"1-92544","photo":"media.itaka.ru\/homeinspb\/images\/objects\/big_dec3ea0c-7acf-f011-aa6e-0050568db126.jpg","priority":8},{"id":1301747,"apartment_number":"1-92544","photo":"media.itaka.ru\/homeinspb\/images\/objects\/big_e5c3ea0c-7acf-f011-aa6e-0050568db126.jpg","priority":9},{"id":1301748,"apartment_number":"1-92544","photo":"media.itaka.ru\/homeinspb\/images\/objects\/big_e9c3ea0c-7acf-f011-aa6e-0050568db126.jpg","priority":10},{"id":1301749,"apartment_number":"1-92544","photo":"media.itaka.ru\/homeinspb\/images\/objects\/big_f0c3ea0c-7acf-f011-aa6e-0050568db126.jpg","priority":11},{"id":1301750,"apartment_number":"1-92544","photo":"media.itaka.ru\/homeinspb\/images\/objects\/big_f5c3ea0c-7acf-f011-aa6e-0050568db126.jpg","priority":12},{"id":1301751,"apartment_number":"1-92544","photo":"media.itaka.ru\/homeinspb\/images\/objects\/big_02c4ea0c-7acf-f011-aa6e-0050568db126.jpg","priority":13},{"id":1301752,"apartment_number":"1-92544","photo":"media.itaka.ru\/homeinspb\/images\/objects\/big_fdc3ea0c-7acf-f011-aa6e-0050568db126.jpg","priority":14},{"id":1301753,"apartment_number":"1-92544","photo":"media.itaka.ru\/homeinspb\/images\/objects\/big_09c4ea0c-7acf-f011-aa6e-0050568db126.jpg","priority":15},{"id":1301754,"apartment_number":"1-92544","photo":"media.itaka.ru\/homeinspb\/images\/objects\/big_0ec4ea0c-7acf-f011-aa6e-0050568db126.jpg","priority":16},{"id":1301755,"apartment_number":"1-92544","photo":"media.itaka.ru\/homeinspb\/images\/objects\/big_15c4ea0c-7acf-f011-aa6e-0050568db126.jpg","priority":17},{"id":1301756,"apartment_number":"1-92544","photo":"media.itaka.ru\/homeinspb\/images\/objects\/big_17c4ea0c-7acf-f011-aa6e-0050568db126.jpg","priority":18},{"id":1301757,"apartment_number":"1-92544","photo":"media.itaka.ru\/homeinspb\/images\/objects\/big_23c4ea0c-7acf-f011-aa6e-0050568db126.jpg","priority":19},{"id":1301758,"apartment_number":"1-92544","photo":"media.itaka.ru\/homeinspb\/images\/objects\/big_24c4ea0c-7acf-f011-aa6e-0050568db126.jpg","priority":20},{"id":1301759,"apartment_number":"1-92544","photo":"media.itaka.ru\/homeinspb\/images\/objects\/big_2ec4ea0c-7acf-f011-aa6e-0050568db126.jpg","priority":21},{"id":1301760,"apartment_number":"1-92544","photo":"media.itaka.ru\/homeinspb\/images\/objects\/big_33c4ea0c-7acf-f011-aa6e-0050568db126.jpg","priority":22},{"id":1301761,"apartment_number":"1-92544","photo":"media.itaka.ru\/homeinspb\/images\/objects\/big_38c4ea0c-7acf-f011-aa6e-0050568db126.jpg","priority":23}]}

Тарасова Елена

10411 +7 (812) 740-70-40
10411

10411


3-комнатная квартира 100 м², этаж 7/17

Площадь Мужества

г Санкт-Петербург, пр-кт Пархоменко, д. 19, корп. 1, лит. А

Продается просторная трехкомнатная квартира в кирпичном доме 2006 года постройки. Окна выходят во двор. Жилой комплекс построен в самом зеленом районе города, поэтому и название ЖК у него - "Зеленый остров". В квартире сделан евроремонт. Установлены деревянные стеклопакеты, пол с подогревом. Кухонный гарнитур с встроенной техникой фирмы Boch. Бойлер на 145 литров. На полу паркетная доска и плитка. Балконы дополнительно утеплены. Дом находится в отличном состоянии, оборудован пассажирским и грузовым лифтами, а также пандусом для удобства передвижения маломобильных граждан. На территории дома есть наземная парковка, поэтому вы всегда найдете место для своего автомобиля. Район располагает всей необходимой инфраструктурой: в пешей доступности находятся школы, детские сады, школа художественной гимнастики имени Алены Куракиной, клиника В. А.Алмазова и магазины. До станции метро "Площадь Мужества" можно дойти за 20 минут. Метро "Пионерская" также в пешей доступности. Идеальное предложение для большой семьи. Три отдельные спальни. Кухня-гостиная - 21 кв.м. Большой санузел с выходом на застекленный балкон. Квартира в собственности более 5 лет, без обременений. Один взрослый собственник. Звоните, приходите и сами оцените все достоинства настоящей семейной квартиры!

27 490 000 ₽
274 900 ₽/м²
Объект № 1-92066
Специалист по этому объекту:
{"id":"1-92066","object_type":1,"agents_id":570,"rooms_saled":3,"rooms_total":3,"regions_id":78,"districts_id":"3","station_metro_id":34,"station_rallway":null,"address":"\u0433 \u0421\u0430\u043d\u043a\u0442-\u041f\u0435\u0442\u0435\u0440\u0431\u0443\u0440\u0433, \u043f\u0440-\u043a\u0442 \u041f\u0430\u0440\u0445\u043e\u043c\u0435\u043d\u043a\u043e, \u0434. 19, \u043a\u043e\u0440\u043f. 1, \u043b\u0438\u0442. \u0410","locality":"\u0433. \u0421\u0430\u043d\u043a\u0442-\u041f\u0435\u0442\u0435\u0440\u0431\u0443\u0440\u0433","price":"27 490 000","price_mkv":"274 900","floor":7,"floors":17,"is_first":0,"is_last":0,"floor_height":2.71,"space_habitable":51.5,"space_total":100,"space_rooms":"15,6+15,3+20,6","space_kitchen":21,"type_of_building_id":3,"is_phone":0,"wc":"\u0441\u043e\u0432\u043c\u0435\u0449\u0435\u043d.","is_balcon":1,"is_lift":1,"hotwater":"\u0412\u043e\u0434\u043e\u043f\u0440\u043e\u0432\u043e\u0434","is_ipoteka":1,"is_exclusive":1,"is_unique":1,"is_fake":0,"is_counter":1,"is_cession":0,"build_year":2006,"comments":"\u041f\u0440\u043e\u0434\u0430\u0435\u0442\u0441\u044f \u043f\u0440\u043e\u0441\u0442\u043e\u0440\u043d\u0430\u044f \u0442\u0440\u0435\u0445\u043a\u043e\u043c\u043d\u0430\u0442\u043d\u0430\u044f \u043a\u0432\u0430\u0440\u0442\u0438\u0440\u0430 \u0432 \u043a\u0438\u0440\u043f\u0438\u0447\u043d\u043e\u043c \u0434\u043e\u043c\u0435 2006 \u0433\u043e\u0434\u0430 \u043f\u043e\u0441\u0442\u0440\u043e\u0439\u043a\u0438. \u041e\u043a\u043d\u0430 \u0432\u044b\u0445\u043e\u0434\u044f\u0442 \u0432\u043e \u0434\u0432\u043e\u0440. \u0416\u0438\u043b\u043e\u0439 \u043a\u043e\u043c\u043f\u043b\u0435\u043a\u0441 \u043f\u043e\u0441\u0442\u0440\u043e\u0435\u043d \u0432 \u0441\u0430\u043c\u043e\u043c \u0437\u0435\u043b\u0435\u043d\u043e\u043c \u0440\u0430\u0439\u043e\u043d\u0435 \u0433\u043e\u0440\u043e\u0434\u0430, \u043f\u043e\u044d\u0442\u043e\u043c\u0443 \u0438 \u043d\u0430\u0437\u0432\u0430\u043d\u0438\u0435 \u0416\u041a \u0443 \u043d\u0435\u0433\u043e - \"\u0417\u0435\u043b\u0435\u043d\u044b\u0439 \u043e\u0441\u0442\u0440\u043e\u0432\". \u0412 \u043a\u0432\u0430\u0440\u0442\u0438\u0440\u0435 \u0441\u0434\u0435\u043b\u0430\u043d \u0435\u0432\u0440\u043e\u0440\u0435\u043c\u043e\u043d\u0442. \u0423\u0441\u0442\u0430\u043d\u043e\u0432\u043b\u0435\u043d\u044b \u0434\u0435\u0440\u0435\u0432\u044f\u043d\u043d\u044b\u0435 \u0441\u0442\u0435\u043a\u043b\u043e\u043f\u0430\u043a\u0435\u0442\u044b, \u043f\u043e\u043b \u0441 \u043f\u043e\u0434\u043e\u0433\u0440\u0435\u0432\u043e\u043c. \u041a\u0443\u0445\u043e\u043d\u043d\u044b\u0439 \u0433\u0430\u0440\u043d\u0438\u0442\u0443\u0440 \u0441 \u0432\u0441\u0442\u0440\u043e\u0435\u043d\u043d\u043e\u0439 \u0442\u0435\u0445\u043d\u0438\u043a\u043e\u0439 \u0444\u0438\u0440\u043c\u044b Boch. \u0411\u043e\u0439\u043b\u0435\u0440 \u043d\u0430 145 \u043b\u0438\u0442\u0440\u043e\u0432. \u041d\u0430 \u043f\u043e\u043b\u0443 \u043f\u0430\u0440\u043a\u0435\u0442\u043d\u0430\u044f \u0434\u043e\u0441\u043a\u0430 \u0438 \u043f\u043b\u0438\u0442\u043a\u0430. \u0411\u0430\u043b\u043a\u043e\u043d\u044b \u0434\u043e\u043f\u043e\u043b\u043d\u0438\u0442\u0435\u043b\u044c\u043d\u043e \u0443\u0442\u0435\u043f\u043b\u0435\u043d\u044b. \u0414\u043e\u043c \u043d\u0430\u0445\u043e\u0434\u0438\u0442\u0441\u044f \u0432 \u043e\u0442\u043b\u0438\u0447\u043d\u043e\u043c \u0441\u043e\u0441\u0442\u043e\u044f\u043d\u0438\u0438, \u043e\u0431\u043e\u0440\u0443\u0434\u043e\u0432\u0430\u043d \u043f\u0430\u0441\u0441\u0430\u0436\u0438\u0440\u0441\u043a\u0438\u043c \u0438 \u0433\u0440\u0443\u0437\u043e\u0432\u044b\u043c \u043b\u0438\u0444\u0442\u0430\u043c\u0438, \u0430 \u0442\u0430\u043a\u0436\u0435 \u043f\u0430\u043d\u0434\u0443\u0441\u043e\u043c \u0434\u043b\u044f \u0443\u0434\u043e\u0431\u0441\u0442\u0432\u0430 \u043f\u0435\u0440\u0435\u0434\u0432\u0438\u0436\u0435\u043d\u0438\u044f \u043c\u0430\u043b\u043e\u043c\u043e\u0431\u0438\u043b\u044c\u043d\u044b\u0445 \u0433\u0440\u0430\u0436\u0434\u0430\u043d. \u041d\u0430 \u0442\u0435\u0440\u0440\u0438\u0442\u043e\u0440\u0438\u0438 \u0434\u043e\u043c\u0430 \u0435\u0441\u0442\u044c \u043d\u0430\u0437\u0435\u043c\u043d\u0430\u044f \u043f\u0430\u0440\u043a\u043e\u0432\u043a\u0430, \u043f\u043e\u044d\u0442\u043e\u043c\u0443 \u0432\u044b \u0432\u0441\u0435\u0433\u0434\u0430 \u043d\u0430\u0439\u0434\u0435\u0442\u0435 \u043c\u0435\u0441\u0442\u043e \u0434\u043b\u044f \u0441\u0432\u043e\u0435\u0433\u043e \u0430\u0432\u0442\u043e\u043c\u043e\u0431\u0438\u043b\u044f. \u0420\u0430\u0439\u043e\u043d \u0440\u0430\u0441\u043f\u043e\u043b\u0430\u0433\u0430\u0435\u0442 \u0432\u0441\u0435\u0439 \u043d\u0435\u043e\u0431\u0445\u043e\u0434\u0438\u043c\u043e\u0439 \u0438\u043d\u0444\u0440\u0430\u0441\u0442\u0440\u0443\u043a\u0442\u0443\u0440\u043e\u0439: \u0432 \u043f\u0435\u0448\u0435\u0439 \u0434\u043e\u0441\u0442\u0443\u043f\u043d\u043e\u0441\u0442\u0438 \u043d\u0430\u0445\u043e\u0434\u044f\u0442\u0441\u044f \u0448\u043a\u043e\u043b\u044b, \u0434\u0435\u0442\u0441\u043a\u0438\u0435 \u0441\u0430\u0434\u044b, \u0448\u043a\u043e\u043b\u0430 \u0445\u0443\u0434\u043e\u0436\u0435\u0441\u0442\u0432\u0435\u043d\u043d\u043e\u0439 \u0433\u0438\u043c\u043d\u0430\u0441\u0442\u0438\u043a\u0438 \u0438\u043c\u0435\u043d\u0438 \u0410\u043b\u0435\u043d\u044b \u041a\u0443\u0440\u0430\u043a\u0438\u043d\u043e\u0439, \u043a\u043b\u0438\u043d\u0438\u043a\u0430 \u0412. \u0410.\u0410\u043b\u043c\u0430\u0437\u043e\u0432\u0430 \u0438 \u043c\u0430\u0433\u0430\u0437\u0438\u043d\u044b. \u0414\u043e \u0441\u0442\u0430\u043d\u0446\u0438\u0438 \u043c\u0435\u0442\u0440\u043e \"\u041f\u043b\u043e\u0449\u0430\u0434\u044c \u041c\u0443\u0436\u0435\u0441\u0442\u0432\u0430\" \u043c\u043e\u0436\u043d\u043e \u0434\u043e\u0439\u0442\u0438 \u0437\u0430 20 \u043c\u0438\u043d\u0443\u0442. \u041c\u0435\u0442\u0440\u043e \"\u041f\u0438\u043e\u043d\u0435\u0440\u0441\u043a\u0430\u044f\" \u0442\u0430\u043a\u0436\u0435 \u0432 \u043f\u0435\u0448\u0435\u0439 \u0434\u043e\u0441\u0442\u0443\u043f\u043d\u043e\u0441\u0442\u0438. \u0418\u0434\u0435\u0430\u043b\u044c\u043d\u043e\u0435 \u043f\u0440\u0435\u0434\u043b\u043e\u0436\u0435\u043d\u0438\u0435 \u0434\u043b\u044f \u0431\u043e\u043b\u044c\u0448\u043e\u0439 \u0441\u0435\u043c\u044c\u0438. \u0422\u0440\u0438 \u043e\u0442\u0434\u0435\u043b\u044c\u043d\u044b\u0435 \u0441\u043f\u0430\u043b\u044c\u043d\u0438. \u041a\u0443\u0445\u043d\u044f-\u0433\u043e\u0441\u0442\u0438\u043d\u0430\u044f - 21 \u043a\u0432.\u043c. \u0411\u043e\u043b\u044c\u0448\u043e\u0439 \u0441\u0430\u043d\u0443\u0437\u0435\u043b \u0441 \u0432\u044b\u0445\u043e\u0434\u043e\u043c \u043d\u0430 \u0437\u0430\u0441\u0442\u0435\u043a\u043b\u0435\u043d\u043d\u044b\u0439 \u0431\u0430\u043b\u043a\u043e\u043d. \u041a\u0432\u0430\u0440\u0442\u0438\u0440\u0430 \u0432 \u0441\u043e\u0431\u0441\u0442\u0432\u0435\u043d\u043d\u043e\u0441\u0442\u0438 \u0431\u043e\u043b\u0435\u0435 5 \u043b\u0435\u0442, \u0431\u0435\u0437 \u043e\u0431\u0440\u0435\u043c\u0435\u043d\u0435\u043d\u0438\u0439. \u041e\u0434\u0438\u043d \u0432\u0437\u0440\u043e\u0441\u043b\u044b\u0439 \u0441\u043e\u0431\u0441\u0442\u0432\u0435\u043d\u043d\u0438\u043a. \u0417\u0432\u043e\u043d\u0438\u0442\u0435, \u043f\u0440\u0438\u0445\u043e\u0434\u0438\u0442\u0435 \u0438 \u0441\u0430\u043c\u0438 \u043e\u0446\u0435\u043d\u0438\u0442\u0435 \u0432\u0441\u0435 \u0434\u043e\u0441\u0442\u043e\u0438\u043d\u0441\u0442\u0432\u0430 \u043d\u0430\u0441\u0442\u043e\u044f\u0449\u0435\u0439 \u0441\u0435\u043c\u0435\u0439\u043d\u043e\u0439 \u043a\u0432\u0430\u0440\u0442\u0438\u0440\u044b!","date_update":"24.12.2025","yaCoord0":30.3413802,"yaCoord1":59.9991195,"is_current":1,"is_sold":0,"is_withdrawn":0,"is_private":0,"sale_date":null,"start_date":"2025-09-10","final_price":null,"created_at":"2025-09-10 10:51:01","updated_at":"2025-09-10 14:19:48","checked_at":"2025-09-10 14:19:48","sum":162,"url":null,"title":"3-\u043a\u043e\u043c\u043d\u0430\u0442\u043d\u0430\u044f \u043a\u0432\u0430\u0440\u0442\u0438\u0440\u0430 100 \u043c\u00b2, \u044d\u0442\u0430\u0436 7\/17","guidename":"3-\u043a\u043e\u043c\u043d\u0430\u0442\u043d\u044b\u0435 \u043a\u0432\u0430\u0440\u0442\u0438\u0440\u044b","phone":{"number":"+7 (812) 740-70-40","link":"+7 (812) 740-70-40"},"agents":[{"id":570,"url":"elena-lahmina","F":"\u041b\u0430\u0445\u043c\u0438\u043d\u0430","I":"\u0415\u043b\u0435\u043d\u0430","O":"\u041c\u0438\u0445\u0430\u0439\u043b\u043e\u0432\u043d\u0430","phone":"+7 (812) 740-70-40","email":"LakhminaEM@itaka.ru","personal_phone":"8-921-979-22-70","personal_email":"LakhminaEM@itaka.ru","birthday":"1969-07-04","photo_sq":"\/\/homeinspb.ru\/1c\/photo\/FL570.jpg","photo_cir":"agent_570_cir.png","photo":null,"online":1,"text":null,"oadm":0,"gender":0,"shows":0,"selfemployed":1,"individual":0,"in_state":0,"in_office":0,"site_post":"","is_fired":0,"direct_submission":0,"direct_submission_id":1,"mim":5017,"change":1,"is_active":1,"noindex":0,"must_index":1,"jivo":1,"basic_office_id":"000000013","precinct":0,"slaves_notifications":1,"is_blocked":0,"overrides":{"telegram":"@lahmina_lena","telegram_uin":"@lahmina_lena","about_agent":"<p><br><\/p><p class=\"MsoNormal\" style=\"margin: 0px 0px 11px; line-height: 107%; font-size: 15px; font-family: Calibri, sans-serif;\"><span style=\"font-size: 13px; line-height: 107%; font-family: Arial, sans-serif; color: black; background: white;\">\u0417\u0434\u0440\u0430\u0432\u0441\u0442\u0432\u0443\u0439\u0442\u0435, \u043c\u0435\u043d\u044f \u0437\u043e\u0432\u0443\u0442\r\n \u0415\u043b\u0435\u043d\u0430! \u042f \u0432\u0435\u0434\u0443\u0449\u0438\u0439 \u044d\u043a\u0441\u043f\u0435\u0440\u0442 \u0432 \u043e\u0431\u043b\u0430\u0441\u0442\u0438 \u0432\u0442\u043e\u0440\u0438\u0447\u043d\u043e\u0433\u043e \u0436\u0438\u043b\u044c\u044f. \u0418\u043c\u0435\u044e \u0434\u043e\u0441\u0442\u0430\u0442\u043e\u0447\u043d\u043e \u0431\u043e\u043b\u044c\u0448\u043e\u0439\r\n \u043e\u043f\u044b\u0442 \u0440\u0430\u0431\u043e\u0442\u044b \u0432 \u0434\u0430\u043d\u043d\u043e\u0439 \u0441\u0444\u0435\u0440\u0435. \u0420\u0430\u0431\u043e\u0442\u0430\u044e \u0441 \u0441\u0443\u0431\u0441\u0438\u0434\u0438\u044f\u043c\u0438 \u0438 \u0441\u0435\u0440\u0442\u0438\u0444\u0438\u043a\u0430\u0442\u0430\u043c\u0438. \u0421 \u043f\u043e\u043d\u0438\u043c\u0430\u043d\u0438\u0435\u043c\r\n \u043e\u0442\u043d\u0435\u0441\u0443\u0441\u044c \u043a \u043b\u044e\u0431\u043e\u0439 \u0441\u0438\u0442\u0443\u0430\u0446\u0438\u0438 \u0438 \u043e\u043f\u0435\u0440\u0430\u0442\u0438\u0432\u043d\u043e \u0440\u0430\u0437\u0440\u0435\u0448\u0443 \u043a\u0432\u0430\u0440\u0442\u0438\u0440\u043d\u044b\u0439 \u0432\u043e\u043f\u0440\u043e\u0441 (\u0437\u0430 20 \u043b\u0435\u0442\r\n \u0440\u0430\u0431\u043e\u0442\u044b \u0438\u043c\u0435\u044e \u0434\u043e\u0441\u0442\u0430\u0442\u043e\u0447\u043d\u043e \u043e\u043f\u044b\u0442\u0430 \u0434\u043b\u044f \u0440\u0430\u0437\u0440\u0435\u0448\u0435\u043d\u0438\u044f \u0441\u043b\u043e\u0436\u043d\u044b\u0445 \u0432\u043e\u043f\u0440\u043e\u0441\u043e\u0432).<\/span><span style=\"font-size: 13px; line-height: 107%; font-family: Arial, sans-serif; color: black;\"><br style=\"font-variant-ligatures: normal; font-variant-caps: normal; orphans: 2; widows: 2; -webkit-text-stroke-width: 0px; text-decoration-thickness: initial; text-decoration-style: initial; text-decoration-color: initial; word-spacing: 0px;\">\r\n <span style=\"background: white;\"><span style=\"font-variant-ligatures: normal; font-variant-caps: normal; orphans: 2; widows: 2; -webkit-text-stroke-width: 0px; text-decoration-thickness: initial; text-decoration-style: initial; text-decoration-color: initial; float: none; word-spacing: 0px;\">7 \u043b\u0435\u0442 \u044f\u0432\u043b\u044f\u044e\u0441\u044c \u043e\u043f\u044b\u0442\u043d\u044b\u043c \u043d\u0430\u0441\u0442\u0430\u0432\u043d\u0438\u043a\u043e\u043c \u0432 \u043e\u0431\u0443\u0447\u0435\u043d\u0438\u0438\r\n \u0430\u0433\u0435\u043d\u0442\u043e\u0432. \u0421 \u0443\u0434\u043e\u0432\u043e\u043b\u044c\u0441\u0442\u0432\u0438\u0435\u043c \u043d\u0430\u0431\u0435\u0440\u0443 \u0432 \u0441\u0432\u043e\u044e \u043a\u043e\u043c\u0430\u043d\u0434\u0443 \u0438\u043d\u0438\u0446\u0438\u0430\u0442\u0438\u0432\u043d\u044b\u0445, \u0446\u0435\u043b\u0435\u0443\u0441\u0442\u0440\u0435\u043c\u043b\u0435\u043d\u043d\u044b\u0445\r\n \u0435\u0434\u0438\u043d\u043e\u043c\u044b\u0448\u043b\u0435\u043d\u043d\u0438\u043a\u043e\u0432, \u0436\u0435\u043b\u0430\u044e\u0449\u0438\u0445 \u0438\u043c\u0435\u0442\u044c \u0438\u043d\u0442\u0435\u0440\u0435\u0441\u043d\u0443\u044e \u0440\u0430\u0431\u043e\u0442\u0443 \u0438 \u0445\u043e\u0440\u043e\u0448\u043e \u0437\u0430\u0440\u0430\u0431\u0430\u0442\u044b\u0432\u0430\u0442\u044c.<\/span><\/span><br style=\"font-variant-ligatures: normal; font-variant-caps: normal; orphans: 2; widows: 2; -webkit-text-stroke-width: 0px; text-decoration-thickness: initial; text-decoration-style: initial; text-decoration-color: initial; word-spacing: 0px;\">\r\n <span style=\"background: white;\"><span style=\"font-variant-ligatures: normal; font-variant-caps: normal; orphans: 2; widows: 2; -webkit-text-stroke-width: 0px; text-decoration-thickness: initial; text-decoration-style: initial; text-decoration-color: initial; float: none; word-spacing: 0px;\">\u0411\u0443\u0434\u0443 \u0440\u0430\u0434\u0430 \u043f\u0440\u043e\u043a\u043e\u043d\u0441\u0443\u043b\u044c\u0442\u0438\u0440\u043e\u0432\u0430\u0442\u044c \u0432\u0430\u0441 .<\/span><\/span><\/span><span style=\"font-size: 13px; line-height: 107%; font-family: Arial, sans-serif; color: black; background: white;\"><span style=\"font-variant-ligatures: normal; font-variant-caps: normal; orphans: 2; widows: 2; -webkit-text-stroke-width: 0px; text-decoration-thickness: initial; text-decoration-style: initial; text-decoration-color: initial; float: none; word-spacing: 0px;\"> \u0416\u0434\u0443 \u0432\u0430\u0448\u0438\u0445 \u0437\u0432\u043e\u043d\u043a\u043e\u0432 \u0441 9.00 \u0434\u043e 21.00<\/span><\/span><\/p><p><br><\/p><p><br><\/p>","about_agent_uin":"p>"},"wp":false,"phone_f":"78127407040","office":{"id":"000000013","url":"ul-malaya-balkanskaya-d-26","name":"\u0443\u043b. \u041c\u0430\u043b\u0430\u044f \u0411\u0430\u043b\u043a\u0430\u043d\u0441\u043a\u0430\u044f, \u0434. 26","adress":"\u0433. \u0421\u0430\u043d\u043a\u0442-\u041f\u0435\u0442\u0435\u0440\u0431\u0443\u0440\u0433, \u0424\u0440\u0443\u043d\u0437\u0435\u043d\u0441\u043a\u0438\u0439 \u0440-\u043d, \u0443\u043b. \u041c\u0430\u043b\u0430\u044f \u0411\u0430\u043b\u043a\u0430\u043d\u0441\u043a\u0430\u044f, \u0434. 26","coords":"59.829442,30.386079","pano_coords":"59.8298972865986,30.384474933","pano_direction":"44.60707084120078,1.1631715886855591","pano_span":"58.033400647822184,30.320036290824245","email":"kup4ino@itaka.ru","phone":"88123477731","metro_stations_id":9,"region_id":78,"district_id":null,"coords_metro":null,"coords_top":null,"coords_left":null,"spbzn_coords_top":null,"spbzn_coords_left":null,"change":1,"td_id":7,"order":70,"deleted_at":null,"SuccessOverrides":[{"id":6887,"model":"Offices","target_id":0,"target_id_str":"000000013","field":"order","value":"129,5017,4141,94,255,11524,9127,5779,570,7832,10411,8923,10124,14723,12440,10827,11255,13615,14933,13616,13397,11863,702,10547,2879,3805,10032,11151,663,15756,10131,13269,284,12585,13651,2234","is_current":0,"is_moderated_adm":1,"is_moderated_tech":1,"is_selected":0,"creator_id":440,"moderator_adm_id":440,"moderator_tech_id":440,"adm_reason":null,"tech_reason":null,"created_at":"2025-09-10T08:59:44.000000Z","updated_at":"2025-09-10T08:59:44.000000Z"},{"id":6886,"model":"Offices","target_id":0,"target_id_str":"000000013","field":"add_agent_id","value":"9557","is_current":0,"is_moderated_adm":1,"is_moderated_tech":1,"is_selected":0,"creator_id":440,"moderator_adm_id":440,"moderator_tech_id":440,"adm_reason":null,"tech_reason":null,"created_at":"2025-09-10T08:59:44.000000Z","updated_at":"2025-09-10T08:59:44.000000Z"},{"id":6885,"model":"Offices","target_id":0,"target_id_str":"000000013","field":"schedule","value":"\u041f\u041d-\u041f\u0422: 10.00-20.00<br \/>\r\n\u0421\u0411-\u0412\u0421: 11.00-18.00","is_current":0,"is_moderated_adm":1,"is_moderated_tech":1,"is_selected":0,"creator_id":440,"moderator_adm_id":440,"moderator_tech_id":440,"adm_reason":null,"tech_reason":null,"created_at":"2025-09-10T08:59:44.000000Z","updated_at":"2025-09-10T08:59:44.000000Z"}],"Hours":null},"Mimfio":{"id":5017,"url":"olga-metsler","F":"\u041c\u0435\u0446\u043b\u0435\u0440","I":"\u041e\u043b\u044c\u0433\u0430","O":"\u0412\u0430\u043b\u0435\u0440\u044c\u0435\u0432\u043d\u0430","phone":"7407040","email":"MeclerOV@itaka.ru","personal_phone":"8-921-555-53-19","personal_email":"MeclerOV@itaka.ru","birthday":"1975-08-16","photo_sq":"agent_5017_sq.png","photo_cir":"agent_5017_cir.png","photo":null,"online":1,"text":null,"oadm":0,"gender":0,"shows":0,"selfemployed":0,"individual":1,"in_state":0,"in_office":0,"site_post":"","is_fired":0,"direct_submission":0,"direct_submission_id":1,"mim":13434,"change":1,"is_active":1,"noindex":0,"must_index":0,"jivo":0,"basic_office_id":"000000013","precinct":0,"slaves_notifications":1,"is_blocked":0,"Mimfio":{"id":13434,"url":"nataliya-ershova","F":"\u0415\u0440\u0448\u043e\u0432\u0430","I":"\u041d\u0430\u0442\u0430\u043b\u0438\u044f","O":"\u0412\u0430\u043b\u0435\u043d\u0442\u0438\u043d\u043e\u0432\u043d\u0430","phone":"89312042310","email":"ErshovaNV@itaka.ru","personal_phone":"","personal_email":"","birthday":null,"photo_sq":null,"photo_cir":null,"photo":null,"online":0,"text":null,"oadm":1,"gender":null,"shows":1,"selfemployed":0,"individual":0,"in_state":0,"in_office":0,"site_post":"","is_fired":0,"direct_submission":1,"direct_submission_id":11389,"mim":null,"change":1,"is_active":1,"noindex":1,"must_index":1,"jivo":1,"basic_office_id":null,"precinct":0,"slaves_notifications":1,"is_blocked":0,"Mimfio":false}},"success_overrides":[{"id":1596,"model":"Agents","target_id":570,"target_id_str":null,"field":"telegram","value":"@lahmina_lena","is_current":0,"is_moderated_adm":1,"is_moderated_tech":1,"is_selected":0,"creator_id":504,"moderator_adm_id":402,"moderator_tech_id":402,"adm_reason":null,"tech_reason":null,"created_at":"2021-11-18T11:27:08.000000Z","updated_at":"2021-11-18T14:22:13.000000Z"},{"id":1597,"model":"Agents","target_id":570,"target_id_str":null,"field":"about_agent","value":"<p><br><\/p><p class=\"MsoNormal\" style=\"margin: 0px 0px 11px; line-height: 107%; font-size: 15px; font-family: Calibri, sans-serif;\"><span style=\"font-size: 13px; line-height: 107%; font-family: Arial, sans-serif; color: black; background: white;\">\u0417\u0434\u0440\u0430\u0432\u0441\u0442\u0432\u0443\u0439\u0442\u0435, \u043c\u0435\u043d\u044f \u0437\u043e\u0432\u0443\u0442\r\n \u0415\u043b\u0435\u043d\u0430! \u042f \u0432\u0435\u0434\u0443\u0449\u0438\u0439 \u044d\u043a\u0441\u043f\u0435\u0440\u0442 \u0432 \u043e\u0431\u043b\u0430\u0441\u0442\u0438 \u0432\u0442\u043e\u0440\u0438\u0447\u043d\u043e\u0433\u043e \u0436\u0438\u043b\u044c\u044f. \u0418\u043c\u0435\u044e \u0434\u043e\u0441\u0442\u0430\u0442\u043e\u0447\u043d\u043e \u0431\u043e\u043b\u044c\u0448\u043e\u0439\r\n \u043e\u043f\u044b\u0442 \u0440\u0430\u0431\u043e\u0442\u044b \u0432 \u0434\u0430\u043d\u043d\u043e\u0439 \u0441\u0444\u0435\u0440\u0435. \u0420\u0430\u0431\u043e\u0442\u0430\u044e \u0441 \u0441\u0443\u0431\u0441\u0438\u0434\u0438\u044f\u043c\u0438 \u0438 \u0441\u0435\u0440\u0442\u0438\u0444\u0438\u043a\u0430\u0442\u0430\u043c\u0438. \u0421 \u043f\u043e\u043d\u0438\u043c\u0430\u043d\u0438\u0435\u043c\r\n \u043e\u0442\u043d\u0435\u0441\u0443\u0441\u044c \u043a \u043b\u044e\u0431\u043e\u0439 \u0441\u0438\u0442\u0443\u0430\u0446\u0438\u0438 \u0438 \u043e\u043f\u0435\u0440\u0430\u0442\u0438\u0432\u043d\u043e \u0440\u0430\u0437\u0440\u0435\u0448\u0443 \u043a\u0432\u0430\u0440\u0442\u0438\u0440\u043d\u044b\u0439 \u0432\u043e\u043f\u0440\u043e\u0441 (\u0437\u0430 20 \u043b\u0435\u0442\r\n \u0440\u0430\u0431\u043e\u0442\u044b \u0438\u043c\u0435\u044e \u0434\u043e\u0441\u0442\u0430\u0442\u043e\u0447\u043d\u043e \u043e\u043f\u044b\u0442\u0430 \u0434\u043b\u044f \u0440\u0430\u0437\u0440\u0435\u0448\u0435\u043d\u0438\u044f \u0441\u043b\u043e\u0436\u043d\u044b\u0445 \u0432\u043e\u043f\u0440\u043e\u0441\u043e\u0432).<\/span><span style=\"font-size: 13px; line-height: 107%; font-family: Arial, sans-serif; color: black;\"><br style=\"font-variant-ligatures: normal; font-variant-caps: normal; orphans: 2; widows: 2; -webkit-text-stroke-width: 0px; text-decoration-thickness: initial; text-decoration-style: initial; text-decoration-color: initial; word-spacing: 0px;\">\r\n <span style=\"background: white;\"><span style=\"font-variant-ligatures: normal; font-variant-caps: normal; orphans: 2; widows: 2; -webkit-text-stroke-width: 0px; text-decoration-thickness: initial; text-decoration-style: initial; text-decoration-color: initial; float: none; word-spacing: 0px;\">7 \u043b\u0435\u0442 \u044f\u0432\u043b\u044f\u044e\u0441\u044c \u043e\u043f\u044b\u0442\u043d\u044b\u043c \u043d\u0430\u0441\u0442\u0430\u0432\u043d\u0438\u043a\u043e\u043c \u0432 \u043e\u0431\u0443\u0447\u0435\u043d\u0438\u0438\r\n \u0430\u0433\u0435\u043d\u0442\u043e\u0432. \u0421 \u0443\u0434\u043e\u0432\u043e\u043b\u044c\u0441\u0442\u0432\u0438\u0435\u043c \u043d\u0430\u0431\u0435\u0440\u0443 \u0432 \u0441\u0432\u043e\u044e \u043a\u043e\u043c\u0430\u043d\u0434\u0443 \u0438\u043d\u0438\u0446\u0438\u0430\u0442\u0438\u0432\u043d\u044b\u0445, \u0446\u0435\u043b\u0435\u0443\u0441\u0442\u0440\u0435\u043c\u043b\u0435\u043d\u043d\u044b\u0445\r\n \u0435\u0434\u0438\u043d\u043e\u043c\u044b\u0448\u043b\u0435\u043d\u043d\u0438\u043a\u043e\u0432, \u0436\u0435\u043b\u0430\u044e\u0449\u0438\u0445 \u0438\u043c\u0435\u0442\u044c \u0438\u043d\u0442\u0435\u0440\u0435\u0441\u043d\u0443\u044e \u0440\u0430\u0431\u043e\u0442\u0443 \u0438 \u0445\u043e\u0440\u043e\u0448\u043e \u0437\u0430\u0440\u0430\u0431\u0430\u0442\u044b\u0432\u0430\u0442\u044c.<\/span><\/span><br style=\"font-variant-ligatures: normal; font-variant-caps: normal; orphans: 2; widows: 2; -webkit-text-stroke-width: 0px; text-decoration-thickness: initial; text-decoration-style: initial; text-decoration-color: initial; word-spacing: 0px;\">\r\n <span style=\"background: white;\"><span style=\"font-variant-ligatures: normal; font-variant-caps: normal; orphans: 2; widows: 2; -webkit-text-stroke-width: 0px; text-decoration-thickness: initial; text-decoration-style: initial; text-decoration-color: initial; float: none; word-spacing: 0px;\">\u0411\u0443\u0434\u0443 \u0440\u0430\u0434\u0430 \u043f\u0440\u043e\u043a\u043e\u043d\u0441\u0443\u043b\u044c\u0442\u0438\u0440\u043e\u0432\u0430\u0442\u044c \u0432\u0430\u0441 .<\/span><\/span><\/span><span style=\"font-size: 13px; line-height: 107%; font-family: Arial, sans-serif; color: black; background: white;\"><span style=\"font-variant-ligatures: normal; font-variant-caps: normal; orphans: 2; widows: 2; -webkit-text-stroke-width: 0px; text-decoration-thickness: initial; text-decoration-style: initial; text-decoration-color: initial; float: none; word-spacing: 0px;\"> \u0416\u0434\u0443 \u0432\u0430\u0448\u0438\u0445 \u0437\u0432\u043e\u043d\u043a\u043e\u0432 \u0441 9.00 \u0434\u043e 21.00<\/span><\/span><\/p><p><br><\/p><p><br><\/p>","is_current":0,"is_moderated_adm":1,"is_moderated_tech":1,"is_selected":0,"creator_id":504,"moderator_adm_id":402,"moderator_tech_id":402,"adm_reason":null,"tech_reason":null,"created_at":"2021-11-18T11:27:47.000000Z","updated_at":"2021-11-18T14:20:22.000000Z"}]},{"id":570,"url":"elena-lahmina","F":"\u041b\u0430\u0445\u043c\u0438\u043d\u0430","I":"\u0415\u043b\u0435\u043d\u0430","O":"\u041c\u0438\u0445\u0430\u0439\u043b\u043e\u0432\u043d\u0430","phone":"+7 (812) 740-70-40","email":"LakhminaEM@itaka.ru","personal_phone":"8-921-979-22-70","personal_email":"LakhminaEM@itaka.ru","birthday":"1969-07-04","photo_sq":"\/\/homeinspb.ru\/1c\/photo\/FL570.jpg","photo_cir":"agent_570_cir.png","photo":null,"online":1,"text":null,"oadm":0,"gender":0,"shows":0,"selfemployed":1,"individual":0,"in_state":0,"in_office":0,"site_post":"","is_fired":0,"direct_submission":0,"direct_submission_id":1,"mim":5017,"change":1,"is_active":1,"noindex":0,"must_index":1,"jivo":1,"basic_office_id":"000000013","precinct":0,"slaves_notifications":1,"is_blocked":0,"overrides":{"telegram":"@lahmina_lena","telegram_uin":"@lahmina_lena","about_agent":"<p><br><\/p><p class=\"MsoNormal\" style=\"margin: 0px 0px 11px; line-height: 107%; font-size: 15px; font-family: Calibri, sans-serif;\"><span style=\"font-size: 13px; line-height: 107%; font-family: Arial, sans-serif; color: black; background: white;\">\u0417\u0434\u0440\u0430\u0432\u0441\u0442\u0432\u0443\u0439\u0442\u0435, \u043c\u0435\u043d\u044f \u0437\u043e\u0432\u0443\u0442\r\n \u0415\u043b\u0435\u043d\u0430! \u042f \u0432\u0435\u0434\u0443\u0449\u0438\u0439 \u044d\u043a\u0441\u043f\u0435\u0440\u0442 \u0432 \u043e\u0431\u043b\u0430\u0441\u0442\u0438 \u0432\u0442\u043e\u0440\u0438\u0447\u043d\u043e\u0433\u043e \u0436\u0438\u043b\u044c\u044f. \u0418\u043c\u0435\u044e \u0434\u043e\u0441\u0442\u0430\u0442\u043e\u0447\u043d\u043e \u0431\u043e\u043b\u044c\u0448\u043e\u0439\r\n \u043e\u043f\u044b\u0442 \u0440\u0430\u0431\u043e\u0442\u044b \u0432 \u0434\u0430\u043d\u043d\u043e\u0439 \u0441\u0444\u0435\u0440\u0435. \u0420\u0430\u0431\u043e\u0442\u0430\u044e \u0441 \u0441\u0443\u0431\u0441\u0438\u0434\u0438\u044f\u043c\u0438 \u0438 \u0441\u0435\u0440\u0442\u0438\u0444\u0438\u043a\u0430\u0442\u0430\u043c\u0438. \u0421 \u043f\u043e\u043d\u0438\u043c\u0430\u043d\u0438\u0435\u043c\r\n \u043e\u0442\u043d\u0435\u0441\u0443\u0441\u044c \u043a \u043b\u044e\u0431\u043e\u0439 \u0441\u0438\u0442\u0443\u0430\u0446\u0438\u0438 \u0438 \u043e\u043f\u0435\u0440\u0430\u0442\u0438\u0432\u043d\u043e \u0440\u0430\u0437\u0440\u0435\u0448\u0443 \u043a\u0432\u0430\u0440\u0442\u0438\u0440\u043d\u044b\u0439 \u0432\u043e\u043f\u0440\u043e\u0441 (\u0437\u0430 20 \u043b\u0435\u0442\r\n \u0440\u0430\u0431\u043e\u0442\u044b \u0438\u043c\u0435\u044e \u0434\u043e\u0441\u0442\u0430\u0442\u043e\u0447\u043d\u043e \u043e\u043f\u044b\u0442\u0430 \u0434\u043b\u044f \u0440\u0430\u0437\u0440\u0435\u0448\u0435\u043d\u0438\u044f \u0441\u043b\u043e\u0436\u043d\u044b\u0445 \u0432\u043e\u043f\u0440\u043e\u0441\u043e\u0432).<\/span><span style=\"font-size: 13px; line-height: 107%; font-family: Arial, sans-serif; color: black;\"><br style=\"font-variant-ligatures: normal; font-variant-caps: normal; orphans: 2; widows: 2; -webkit-text-stroke-width: 0px; text-decoration-thickness: initial; text-decoration-style: initial; text-decoration-color: initial; word-spacing: 0px;\">\r\n <span style=\"background: white;\"><span style=\"font-variant-ligatures: normal; font-variant-caps: normal; orphans: 2; widows: 2; -webkit-text-stroke-width: 0px; text-decoration-thickness: initial; text-decoration-style: initial; text-decoration-color: initial; float: none; word-spacing: 0px;\">7 \u043b\u0435\u0442 \u044f\u0432\u043b\u044f\u044e\u0441\u044c \u043e\u043f\u044b\u0442\u043d\u044b\u043c \u043d\u0430\u0441\u0442\u0430\u0432\u043d\u0438\u043a\u043e\u043c \u0432 \u043e\u0431\u0443\u0447\u0435\u043d\u0438\u0438\r\n \u0430\u0433\u0435\u043d\u0442\u043e\u0432. \u0421 \u0443\u0434\u043e\u0432\u043e\u043b\u044c\u0441\u0442\u0432\u0438\u0435\u043c \u043d\u0430\u0431\u0435\u0440\u0443 \u0432 \u0441\u0432\u043e\u044e \u043a\u043e\u043c\u0430\u043d\u0434\u0443 \u0438\u043d\u0438\u0446\u0438\u0430\u0442\u0438\u0432\u043d\u044b\u0445, \u0446\u0435\u043b\u0435\u0443\u0441\u0442\u0440\u0435\u043c\u043b\u0435\u043d\u043d\u044b\u0445\r\n \u0435\u0434\u0438\u043d\u043e\u043c\u044b\u0448\u043b\u0435\u043d\u043d\u0438\u043a\u043e\u0432, \u0436\u0435\u043b\u0430\u044e\u0449\u0438\u0445 \u0438\u043c\u0435\u0442\u044c \u0438\u043d\u0442\u0435\u0440\u0435\u0441\u043d\u0443\u044e \u0440\u0430\u0431\u043e\u0442\u0443 \u0438 \u0445\u043e\u0440\u043e\u0448\u043e \u0437\u0430\u0440\u0430\u0431\u0430\u0442\u044b\u0432\u0430\u0442\u044c.<\/span><\/span><br style=\"font-variant-ligatures: normal; font-variant-caps: normal; orphans: 2; widows: 2; -webkit-text-stroke-width: 0px; text-decoration-thickness: initial; text-decoration-style: initial; text-decoration-color: initial; word-spacing: 0px;\">\r\n <span style=\"background: white;\"><span style=\"font-variant-ligatures: normal; font-variant-caps: normal; orphans: 2; widows: 2; -webkit-text-stroke-width: 0px; text-decoration-thickness: initial; text-decoration-style: initial; text-decoration-color: initial; float: none; word-spacing: 0px;\">\u0411\u0443\u0434\u0443 \u0440\u0430\u0434\u0430 \u043f\u0440\u043e\u043a\u043e\u043d\u0441\u0443\u043b\u044c\u0442\u0438\u0440\u043e\u0432\u0430\u0442\u044c \u0432\u0430\u0441 .<\/span><\/span><\/span><span style=\"font-size: 13px; line-height: 107%; font-family: Arial, sans-serif; color: black; background: white;\"><span style=\"font-variant-ligatures: normal; font-variant-caps: normal; orphans: 2; widows: 2; -webkit-text-stroke-width: 0px; text-decoration-thickness: initial; text-decoration-style: initial; text-decoration-color: initial; float: none; word-spacing: 0px;\"> \u0416\u0434\u0443 \u0432\u0430\u0448\u0438\u0445 \u0437\u0432\u043e\u043d\u043a\u043e\u0432 \u0441 9.00 \u0434\u043e 21.00<\/span><\/span><\/p><p><br><\/p><p><br><\/p>","about_agent_uin":"p>"},"wp":false,"phone_f":"78127407040","office":{"id":"000000013","url":"ul-malaya-balkanskaya-d-26","name":"\u0443\u043b. \u041c\u0430\u043b\u0430\u044f \u0411\u0430\u043b\u043a\u0430\u043d\u0441\u043a\u0430\u044f, \u0434. 26","adress":"\u0433. \u0421\u0430\u043d\u043a\u0442-\u041f\u0435\u0442\u0435\u0440\u0431\u0443\u0440\u0433, \u0424\u0440\u0443\u043d\u0437\u0435\u043d\u0441\u043a\u0438\u0439 \u0440-\u043d, \u0443\u043b. \u041c\u0430\u043b\u0430\u044f \u0411\u0430\u043b\u043a\u0430\u043d\u0441\u043a\u0430\u044f, \u0434. 26","coords":"59.829442,30.386079","pano_coords":"59.8298972865986,30.384474933","pano_direction":"44.60707084120078,1.1631715886855591","pano_span":"58.033400647822184,30.320036290824245","email":"kup4ino@itaka.ru","phone":"88123477731","metro_stations_id":9,"region_id":78,"district_id":null,"coords_metro":null,"coords_top":null,"coords_left":null,"spbzn_coords_top":null,"spbzn_coords_left":null,"change":1,"td_id":7,"order":70,"deleted_at":null,"SuccessOverrides":[{"id":6887,"model":"Offices","target_id":0,"target_id_str":"000000013","field":"order","value":"129,5017,4141,94,255,11524,9127,5779,570,7832,10411,8923,10124,14723,12440,10827,11255,13615,14933,13616,13397,11863,702,10547,2879,3805,10032,11151,663,15756,10131,13269,284,12585,13651,2234","is_current":0,"is_moderated_adm":1,"is_moderated_tech":1,"is_selected":0,"creator_id":440,"moderator_adm_id":440,"moderator_tech_id":440,"adm_reason":null,"tech_reason":null,"created_at":"2025-09-10T08:59:44.000000Z","updated_at":"2025-09-10T08:59:44.000000Z"},{"id":6886,"model":"Offices","target_id":0,"target_id_str":"000000013","field":"add_agent_id","value":"9557","is_current":0,"is_moderated_adm":1,"is_moderated_tech":1,"is_selected":0,"creator_id":440,"moderator_adm_id":440,"moderator_tech_id":440,"adm_reason":null,"tech_reason":null,"created_at":"2025-09-10T08:59:44.000000Z","updated_at":"2025-09-10T08:59:44.000000Z"},{"id":6885,"model":"Offices","target_id":0,"target_id_str":"000000013","field":"schedule","value":"\u041f\u041d-\u041f\u0422: 10.00-20.00<br \/>\r\n\u0421\u0411-\u0412\u0421: 11.00-18.00","is_current":0,"is_moderated_adm":1,"is_moderated_tech":1,"is_selected":0,"creator_id":440,"moderator_adm_id":440,"moderator_tech_id":440,"adm_reason":null,"tech_reason":null,"created_at":"2025-09-10T08:59:44.000000Z","updated_at":"2025-09-10T08:59:44.000000Z"}],"Hours":null},"Mimfio":{"id":5017,"url":"olga-metsler","F":"\u041c\u0435\u0446\u043b\u0435\u0440","I":"\u041e\u043b\u044c\u0433\u0430","O":"\u0412\u0430\u043b\u0435\u0440\u044c\u0435\u0432\u043d\u0430","phone":"7407040","email":"MeclerOV@itaka.ru","personal_phone":"8-921-555-53-19","personal_email":"MeclerOV@itaka.ru","birthday":"1975-08-16","photo_sq":"agent_5017_sq.png","photo_cir":"agent_5017_cir.png","photo":null,"online":1,"text":null,"oadm":0,"gender":0,"shows":0,"selfemployed":0,"individual":1,"in_state":0,"in_office":0,"site_post":"","is_fired":0,"direct_submission":0,"direct_submission_id":1,"mim":13434,"change":1,"is_active":1,"noindex":0,"must_index":0,"jivo":0,"basic_office_id":"000000013","precinct":0,"slaves_notifications":1,"is_blocked":0,"Mimfio":{"id":13434,"url":"nataliya-ershova","F":"\u0415\u0440\u0448\u043e\u0432\u0430","I":"\u041d\u0430\u0442\u0430\u043b\u0438\u044f","O":"\u0412\u0430\u043b\u0435\u043d\u0442\u0438\u043d\u043e\u0432\u043d\u0430","phone":"89312042310","email":"ErshovaNV@itaka.ru","personal_phone":"","personal_email":"","birthday":null,"photo_sq":null,"photo_cir":null,"photo":null,"online":0,"text":null,"oadm":1,"gender":null,"shows":1,"selfemployed":0,"individual":0,"in_state":0,"in_office":0,"site_post":"","is_fired":0,"direct_submission":1,"direct_submission_id":11389,"mim":null,"change":1,"is_active":1,"noindex":1,"must_index":1,"jivo":1,"basic_office_id":null,"precinct":0,"slaves_notifications":1,"is_blocked":0,"Mimfio":false}},"success_overrides":[{"id":1596,"model":"Agents","target_id":570,"target_id_str":null,"field":"telegram","value":"@lahmina_lena","is_current":0,"is_moderated_adm":1,"is_moderated_tech":1,"is_selected":0,"creator_id":504,"moderator_adm_id":402,"moderator_tech_id":402,"adm_reason":null,"tech_reason":null,"created_at":"2021-11-18T11:27:08.000000Z","updated_at":"2021-11-18T14:22:13.000000Z"},{"id":1597,"model":"Agents","target_id":570,"target_id_str":null,"field":"about_agent","value":"<p><br><\/p><p class=\"MsoNormal\" style=\"margin: 0px 0px 11px; line-height: 107%; font-size: 15px; font-family: Calibri, sans-serif;\"><span style=\"font-size: 13px; line-height: 107%; font-family: Arial, sans-serif; color: black; background: white;\">\u0417\u0434\u0440\u0430\u0432\u0441\u0442\u0432\u0443\u0439\u0442\u0435, \u043c\u0435\u043d\u044f \u0437\u043e\u0432\u0443\u0442\r\n \u0415\u043b\u0435\u043d\u0430! \u042f \u0432\u0435\u0434\u0443\u0449\u0438\u0439 \u044d\u043a\u0441\u043f\u0435\u0440\u0442 \u0432 \u043e\u0431\u043b\u0430\u0441\u0442\u0438 \u0432\u0442\u043e\u0440\u0438\u0447\u043d\u043e\u0433\u043e \u0436\u0438\u043b\u044c\u044f. \u0418\u043c\u0435\u044e \u0434\u043e\u0441\u0442\u0430\u0442\u043e\u0447\u043d\u043e \u0431\u043e\u043b\u044c\u0448\u043e\u0439\r\n \u043e\u043f\u044b\u0442 \u0440\u0430\u0431\u043e\u0442\u044b \u0432 \u0434\u0430\u043d\u043d\u043e\u0439 \u0441\u0444\u0435\u0440\u0435. \u0420\u0430\u0431\u043e\u0442\u0430\u044e \u0441 \u0441\u0443\u0431\u0441\u0438\u0434\u0438\u044f\u043c\u0438 \u0438 \u0441\u0435\u0440\u0442\u0438\u0444\u0438\u043a\u0430\u0442\u0430\u043c\u0438. \u0421 \u043f\u043e\u043d\u0438\u043c\u0430\u043d\u0438\u0435\u043c\r\n \u043e\u0442\u043d\u0435\u0441\u0443\u0441\u044c \u043a \u043b\u044e\u0431\u043e\u0439 \u0441\u0438\u0442\u0443\u0430\u0446\u0438\u0438 \u0438 \u043e\u043f\u0435\u0440\u0430\u0442\u0438\u0432\u043d\u043e \u0440\u0430\u0437\u0440\u0435\u0448\u0443 \u043a\u0432\u0430\u0440\u0442\u0438\u0440\u043d\u044b\u0439 \u0432\u043e\u043f\u0440\u043e\u0441 (\u0437\u0430 20 \u043b\u0435\u0442\r\n \u0440\u0430\u0431\u043e\u0442\u044b \u0438\u043c\u0435\u044e \u0434\u043e\u0441\u0442\u0430\u0442\u043e\u0447\u043d\u043e \u043e\u043f\u044b\u0442\u0430 \u0434\u043b\u044f \u0440\u0430\u0437\u0440\u0435\u0448\u0435\u043d\u0438\u044f \u0441\u043b\u043e\u0436\u043d\u044b\u0445 \u0432\u043e\u043f\u0440\u043e\u0441\u043e\u0432).<\/span><span style=\"font-size: 13px; line-height: 107%; font-family: Arial, sans-serif; color: black;\"><br style=\"font-variant-ligatures: normal; font-variant-caps: normal; orphans: 2; widows: 2; -webkit-text-stroke-width: 0px; text-decoration-thickness: initial; text-decoration-style: initial; text-decoration-color: initial; word-spacing: 0px;\">\r\n <span style=\"background: white;\"><span style=\"font-variant-ligatures: normal; font-variant-caps: normal; orphans: 2; widows: 2; -webkit-text-stroke-width: 0px; text-decoration-thickness: initial; text-decoration-style: initial; text-decoration-color: initial; float: none; word-spacing: 0px;\">7 \u043b\u0435\u0442 \u044f\u0432\u043b\u044f\u044e\u0441\u044c \u043e\u043f\u044b\u0442\u043d\u044b\u043c \u043d\u0430\u0441\u0442\u0430\u0432\u043d\u0438\u043a\u043e\u043c \u0432 \u043e\u0431\u0443\u0447\u0435\u043d\u0438\u0438\r\n \u0430\u0433\u0435\u043d\u0442\u043e\u0432. \u0421 \u0443\u0434\u043e\u0432\u043e\u043b\u044c\u0441\u0442\u0432\u0438\u0435\u043c \u043d\u0430\u0431\u0435\u0440\u0443 \u0432 \u0441\u0432\u043e\u044e \u043a\u043e\u043c\u0430\u043d\u0434\u0443 \u0438\u043d\u0438\u0446\u0438\u0430\u0442\u0438\u0432\u043d\u044b\u0445, \u0446\u0435\u043b\u0435\u0443\u0441\u0442\u0440\u0435\u043c\u043b\u0435\u043d\u043d\u044b\u0445\r\n \u0435\u0434\u0438\u043d\u043e\u043c\u044b\u0448\u043b\u0435\u043d\u043d\u0438\u043a\u043e\u0432, \u0436\u0435\u043b\u0430\u044e\u0449\u0438\u0445 \u0438\u043c\u0435\u0442\u044c \u0438\u043d\u0442\u0435\u0440\u0435\u0441\u043d\u0443\u044e \u0440\u0430\u0431\u043e\u0442\u0443 \u0438 \u0445\u043e\u0440\u043e\u0448\u043e \u0437\u0430\u0440\u0430\u0431\u0430\u0442\u044b\u0432\u0430\u0442\u044c.<\/span><\/span><br style=\"font-variant-ligatures: normal; font-variant-caps: normal; orphans: 2; widows: 2; -webkit-text-stroke-width: 0px; text-decoration-thickness: initial; text-decoration-style: initial; text-decoration-color: initial; word-spacing: 0px;\">\r\n <span style=\"background: white;\"><span style=\"font-variant-ligatures: normal; font-variant-caps: normal; orphans: 2; widows: 2; -webkit-text-stroke-width: 0px; text-decoration-thickness: initial; text-decoration-style: initial; text-decoration-color: initial; float: none; word-spacing: 0px;\">\u0411\u0443\u0434\u0443 \u0440\u0430\u0434\u0430 \u043f\u0440\u043e\u043a\u043e\u043d\u0441\u0443\u043b\u044c\u0442\u0438\u0440\u043e\u0432\u0430\u0442\u044c \u0432\u0430\u0441 .<\/span><\/span><\/span><span style=\"font-size: 13px; line-height: 107%; font-family: Arial, sans-serif; color: black; background: white;\"><span style=\"font-variant-ligatures: normal; font-variant-caps: normal; orphans: 2; widows: 2; -webkit-text-stroke-width: 0px; text-decoration-thickness: initial; text-decoration-style: initial; text-decoration-color: initial; float: none; word-spacing: 0px;\"> \u0416\u0434\u0443 \u0432\u0430\u0448\u0438\u0445 \u0437\u0432\u043e\u043d\u043a\u043e\u0432 \u0441 9.00 \u0434\u043e 21.00<\/span><\/span><\/p><p><br><\/p><p><br><\/p>","is_current":0,"is_moderated_adm":1,"is_moderated_tech":1,"is_selected":0,"creator_id":504,"moderator_adm_id":402,"moderator_tech_id":402,"adm_reason":null,"tech_reason":null,"created_at":"2021-11-18T11:27:47.000000Z","updated_at":"2021-11-18T14:20:22.000000Z"}]}],"metro":{"id":34,"name":"\u041f\u043b\u043e\u0449\u0430\u0434\u044c \u041c\u0443\u0436\u0435\u0441\u0442\u0432\u0430","chpuName":"ploshchad-muzhestva","top":"157","left":"436","metro_lines_id":6,"intersection":null,"r_top":"99","r_side":"379","r_class":"left","r_top_sub":null,"r_side_sub":null,"r_opt_class":null,"yaCoord0":null,"yaCoord1":null,"created_at":null,"updated_at":null,"metro_color":"red"},"images":[{"id":1271211,"apartment_number":"1-92066","photo":"media.itaka.ru\/homeinspb\/images\/objects\/big_26d11de0-188e-f011-91e0-0050568db126.jpg","priority":1},{"id":1271212,"apartment_number":"1-92066","photo":"media.itaka.ru\/homeinspb\/images\/objects\/big_24d11de0-188e-f011-91e0-0050568db126.jpg","priority":2},{"id":1271213,"apartment_number":"1-92066","photo":"media.itaka.ru\/homeinspb\/images\/objects\/big_36d11de0-188e-f011-91e0-0050568db126.jpg","priority":3},{"id":1271214,"apartment_number":"1-92066","photo":"media.itaka.ru\/homeinspb\/images\/objects\/big_25d11de0-188e-f011-91e0-0050568db126.jpg","priority":4},{"id":1271215,"apartment_number":"1-92066","photo":"media.itaka.ru\/homeinspb\/images\/objects\/big_23d11de0-188e-f011-91e0-0050568db126.jpg","priority":5},{"id":1271216,"apartment_number":"1-92066","photo":"media.itaka.ru\/homeinspb\/images\/objects\/big_3dd11de0-188e-f011-91e0-0050568db126.jpg","priority":6},{"id":1271217,"apartment_number":"1-92066","photo":"media.itaka.ru\/homeinspb\/images\/objects\/big_46d11de0-188e-f011-91e0-0050568db126.jpg","priority":7},{"id":1271218,"apartment_number":"1-92066","photo":"media.itaka.ru\/homeinspb\/images\/objects\/big_4bd11de0-188e-f011-91e0-0050568db126.jpg","priority":8},{"id":1271219,"apartment_number":"1-92066","photo":"media.itaka.ru\/homeinspb\/images\/objects\/big_50d11de0-188e-f011-91e0-0050568db126.jpg","priority":9},{"id":1271220,"apartment_number":"1-92066","photo":"media.itaka.ru\/homeinspb\/images\/objects\/big_58d11de0-188e-f011-91e0-0050568db126.jpg","priority":10},{"id":1271221,"apartment_number":"1-92066","photo":"media.itaka.ru\/homeinspb\/images\/objects\/big_5cd11de0-188e-f011-91e0-0050568db126.jpg","priority":11},{"id":1271222,"apartment_number":"1-92066","photo":"media.itaka.ru\/homeinspb\/images\/objects\/big_63d11de0-188e-f011-91e0-0050568db126.jpg","priority":12},{"id":1271223,"apartment_number":"1-92066","photo":"media.itaka.ru\/homeinspb\/images\/objects\/big_68d11de0-188e-f011-91e0-0050568db126.jpg","priority":13},{"id":1271224,"apartment_number":"1-92066","photo":"media.itaka.ru\/homeinspb\/images\/objects\/big_6ed11de0-188e-f011-91e0-0050568db126.jpg","priority":14},{"id":1271225,"apartment_number":"1-92066","photo":"media.itaka.ru\/homeinspb\/images\/objects\/big_75d11de0-188e-f011-91e0-0050568db126.jpg","priority":15},{"id":1271226,"apartment_number":"1-92066","photo":"media.itaka.ru\/homeinspb\/images\/objects\/big_7bd11de0-188e-f011-91e0-0050568db126.jpg","priority":16},{"id":1271227,"apartment_number":"1-92066","photo":"media.itaka.ru\/homeinspb\/images\/objects\/big_7fd11de0-188e-f011-91e0-0050568db126.jpg","priority":17},{"id":1271228,"apartment_number":"1-92066","photo":"media.itaka.ru\/homeinspb\/images\/objects\/big_84d11de0-188e-f011-91e0-0050568db126.jpg","priority":18},{"id":1271229,"apartment_number":"1-92066","photo":"media.itaka.ru\/homeinspb\/images\/objects\/big_8cd11de0-188e-f011-91e0-0050568db126.jpg","priority":19},{"id":1271230,"apartment_number":"1-92066","photo":"media.itaka.ru\/homeinspb\/images\/objects\/big_94d11de0-188e-f011-91e0-0050568db126.jpg","priority":20},{"id":1271231,"apartment_number":"1-92066","photo":"media.itaka.ru\/homeinspb\/images\/objects\/big_9ad11de0-188e-f011-91e0-0050568db126.jpg","priority":21},{"id":1271232,"apartment_number":"1-92066","photo":"media.itaka.ru\/homeinspb\/images\/objects\/big_9bd11de0-188e-f011-91e0-0050568db126.jpg","priority":22},{"id":1271233,"apartment_number":"1-92066","photo":"media.itaka.ru\/homeinspb\/images\/objects\/big_a5d11de0-188e-f011-91e0-0050568db126.jpg","priority":23},{"id":1271234,"apartment_number":"1-92066","photo":"media.itaka.ru\/homeinspb\/images\/objects\/big_a9d11de0-188e-f011-91e0-0050568db126.jpg","priority":24},{"id":1271235,"apartment_number":"1-92066","photo":"media.itaka.ru\/homeinspb\/images\/objects\/big_b1d11de0-188e-f011-91e0-0050568db126.jpg","priority":25},{"id":1271236,"apartment_number":"1-92066","photo":"media.itaka.ru\/homeinspb\/images\/objects\/big_b8d11de0-188e-f011-91e0-0050568db126.jpg","priority":26},{"id":1271237,"apartment_number":"1-92066","photo":"media.itaka.ru\/homeinspb\/images\/objects\/big_b9d11de0-188e-f011-91e0-0050568db126.jpg","priority":27},{"id":1271238,"apartment_number":"1-92066","photo":"media.itaka.ru\/homeinspb\/images\/objects\/big_d0d11de0-188e-f011-91e0-0050568db126.jpg","priority":28},{"id":1271239,"apartment_number":"1-92066","photo":"media.itaka.ru\/homeinspb\/images\/objects\/big_bad11de0-188e-f011-91e0-0050568db126.jpg","priority":29},{"id":1271384,"apartment_number":"1-92066","photo":"media.itaka.ru\/homeinspb\/images\/objects\/big_3c856c3e-e68e-f011-91e0-0050568db126.jpg","priority":31},{"id":1271385,"apartment_number":"1-92066","photo":"media.itaka.ru\/homeinspb\/images\/objects\/big_43856c3e-e68e-f011-91e0-0050568db126.jpg","priority":32},{"id":1271389,"apartment_number":"1-92066","photo":"media.itaka.ru\/homeinspb\/images\/objects\/big_57856c3e-e68e-f011-91e0-0050568db126.jpg","priority":33},{"id":1271388,"apartment_number":"1-92066","photo":"media.itaka.ru\/homeinspb\/images\/objects\/big_49856c3e-e68e-f011-91e0-0050568db126.jpg","priority":34},{"id":1271387,"apartment_number":"1-92066","photo":"media.itaka.ru\/homeinspb\/images\/objects\/big_3b856c3e-e68e-f011-91e0-0050568db126.jpg","priority":35},{"id":1271386,"apartment_number":"1-92066","photo":"media.itaka.ru\/homeinspb\/images\/objects\/big_44856c3e-e68e-f011-91e0-0050568db126.jpg","priority":36},{"id":1272527,"apartment_number":"1-92066","photo":"media.itaka.ru\/homeinspb\/images\/objects\/big_5172a729-6c92-f011-91e0-0050568db126.jpg","priority":37}]}

Лахмина Елена

570 +7 (812) 740-70-40
570

570


4-комнатная квартира 123.2 м², этаж 2/7

Кировский завод

г Санкт-Петербург, пр-кт Стачек, д. 57, лит. А

Прямая продажа! Без ограничений и обременений ! Предлагаем четырехкомнатную квартиру в кирпичном доме 1960 года постройки , входящего в комплекс жилых домов Комсомольской площади, построенный в стиле Сталинского неоклассицизма . Квартира общей площадью 123,2 м.кв. расположена на 2 этаже / всего этажей 7/. Планировка двухсторонняя; все комнаты/ 25,3 ; 18,8; 18,4 ; 16,0 м.кв/ изолированные. Кухня 11,2 м.кв., плита - газовая. Горячая вода- теплоцентраль. Санузел раздельный . Большой функциональный коридор- прихожая, где есть возможность организовать зону хранения / кладовую либо гардеробную/. Высота помещений 3.30 м. Квартира в хорошем жилом состоянии . Чистая ухоженная парадная. Лифт. Благоустроенный зеленый двор. Прекрасно развита инфраструктура района и транспортное сообщение. В шаговой доступности две станции метро/ до метро Кировский завод 8 минут, до метро Автово -12 минут /, множество маршрутов наземного транспорта. Один взрослый собственник. Во владении с 2016 года по договору купли -продажи . Материнский капитал не использовался . Нет зарегистрированных лиц , никто не проживает. Показы в удобное для вас время. Елена Викторовна

20 000 000 ₽
162 337 ₽/м²
Объект № 1-92348
Специалист по этому объекту:
{"id":"1-92348","object_type":1,"agents_id":11151,"rooms_saled":4,"rooms_total":4,"regions_id":78,"districts_id":"5","station_metro_id":45,"station_rallway":null,"address":"\u0433 \u0421\u0430\u043d\u043a\u0442-\u041f\u0435\u0442\u0435\u0440\u0431\u0443\u0440\u0433, \u043f\u0440-\u043a\u0442 \u0421\u0442\u0430\u0447\u0435\u043a, \u0434. 57, \u043b\u0438\u0442. \u0410","locality":"\u0433. \u0421\u0430\u043d\u043a\u0442-\u041f\u0435\u0442\u0435\u0440\u0431\u0443\u0440\u0433","price":"20 000 000","price_mkv":"162 337","floor":2,"floors":7,"is_first":0,"is_last":0,"floor_height":3.3,"space_habitable":78.5,"space_total":123.2,"space_rooms":"18,8+18,4+16+25,3","space_kitchen":11.2,"type_of_building_id":3,"is_phone":0,"wc":"\u0441\u043e\u0432\u043c\u0435\u0449\u0435\u043d.","is_balcon":0,"is_lift":1,"hotwater":"\u0412\u043e\u0434\u043e\u043f\u0440\u043e\u0432\u043e\u0434","is_ipoteka":1,"is_exclusive":1,"is_unique":1,"is_fake":0,"is_counter":0,"is_cession":0,"build_year":1960,"comments":"\u041f\u0440\u044f\u043c\u0430\u044f \u043f\u0440\u043e\u0434\u0430\u0436\u0430! \u0411\u0435\u0437 \u043e\u0433\u0440\u0430\u043d\u0438\u0447\u0435\u043d\u0438\u0439 \u0438 \u043e\u0431\u0440\u0435\u043c\u0435\u043d\u0435\u043d\u0438\u0439 ! \u041f\u0440\u0435\u0434\u043b\u0430\u0433\u0430\u0435\u043c \u0447\u0435\u0442\u044b\u0440\u0435\u0445\u043a\u043e\u043c\u043d\u0430\u0442\u043d\u0443\u044e \u043a\u0432\u0430\u0440\u0442\u0438\u0440\u0443 \u0432 \u043a\u0438\u0440\u043f\u0438\u0447\u043d\u043e\u043c \u0434\u043e\u043c\u0435 1960 \u0433\u043e\u0434\u0430 \u043f\u043e\u0441\u0442\u0440\u043e\u0439\u043a\u0438 , \u0432\u0445\u043e\u0434\u044f\u0449\u0435\u0433\u043e \u0432 \u043a\u043e\u043c\u043f\u043b\u0435\u043a\u0441 \u0436\u0438\u043b\u044b\u0445 \u0434\u043e\u043c\u043e\u0432 \u041a\u043e\u043c\u0441\u043e\u043c\u043e\u043b\u044c\u0441\u043a\u043e\u0439 \u043f\u043b\u043e\u0449\u0430\u0434\u0438, \u043f\u043e\u0441\u0442\u0440\u043e\u0435\u043d\u043d\u044b\u0439 \u0432 \u0441\u0442\u0438\u043b\u0435 \u0421\u0442\u0430\u043b\u0438\u043d\u0441\u043a\u043e\u0433\u043e \u043d\u0435\u043e\u043a\u043b\u0430\u0441\u0441\u0438\u0446\u0438\u0437\u043c\u0430 . \u041a\u0432\u0430\u0440\u0442\u0438\u0440\u0430 \u043e\u0431\u0449\u0435\u0439 \u043f\u043b\u043e\u0449\u0430\u0434\u044c\u044e 123,2 \u043c.\u043a\u0432. \u0440\u0430\u0441\u043f\u043e\u043b\u043e\u0436\u0435\u043d\u0430 \u043d\u0430 2 \u044d\u0442\u0430\u0436\u0435 \/ \u0432\u0441\u0435\u0433\u043e \u044d\u0442\u0430\u0436\u0435\u0439 7\/. \u041f\u043b\u0430\u043d\u0438\u0440\u043e\u0432\u043a\u0430 \u0434\u0432\u0443\u0445\u0441\u0442\u043e\u0440\u043e\u043d\u043d\u044f\u044f; \u0432\u0441\u0435 \u043a\u043e\u043c\u043d\u0430\u0442\u044b\/ 25,3 ; 18,8; 18,4 ; 16,0 \u043c.\u043a\u0432\/ \u0438\u0437\u043e\u043b\u0438\u0440\u043e\u0432\u0430\u043d\u043d\u044b\u0435. \u041a\u0443\u0445\u043d\u044f 11,2 \u043c.\u043a\u0432., \u043f\u043b\u0438\u0442\u0430 - \u0433\u0430\u0437\u043e\u0432\u0430\u044f. \u0413\u043e\u0440\u044f\u0447\u0430\u044f \u0432\u043e\u0434\u0430- \u0442\u0435\u043f\u043b\u043e\u0446\u0435\u043d\u0442\u0440\u0430\u043b\u044c. \u0421\u0430\u043d\u0443\u0437\u0435\u043b \u0440\u0430\u0437\u0434\u0435\u043b\u044c\u043d\u044b\u0439 . \u0411\u043e\u043b\u044c\u0448\u043e\u0439 \u0444\u0443\u043d\u043a\u0446\u0438\u043e\u043d\u0430\u043b\u044c\u043d\u044b\u0439 \u043a\u043e\u0440\u0438\u0434\u043e\u0440- \u043f\u0440\u0438\u0445\u043e\u0436\u0430\u044f, \u0433\u0434\u0435 \u0435\u0441\u0442\u044c \u0432\u043e\u0437\u043c\u043e\u0436\u043d\u043e\u0441\u0442\u044c \u043e\u0440\u0433\u0430\u043d\u0438\u0437\u043e\u0432\u0430\u0442\u044c \u0437\u043e\u043d\u0443 \u0445\u0440\u0430\u043d\u0435\u043d\u0438\u044f \/ \u043a\u043b\u0430\u0434\u043e\u0432\u0443\u044e \u043b\u0438\u0431\u043e \u0433\u0430\u0440\u0434\u0435\u0440\u043e\u0431\u043d\u0443\u044e\/. \u0412\u044b\u0441\u043e\u0442\u0430 \u043f\u043e\u043c\u0435\u0449\u0435\u043d\u0438\u0439 3.30 \u043c. \u041a\u0432\u0430\u0440\u0442\u0438\u0440\u0430 \u0432 \u0445\u043e\u0440\u043e\u0448\u0435\u043c \u0436\u0438\u043b\u043e\u043c \u0441\u043e\u0441\u0442\u043e\u044f\u043d\u0438\u0438 . \u0427\u0438\u0441\u0442\u0430\u044f \u0443\u0445\u043e\u0436\u0435\u043d\u043d\u0430\u044f \u043f\u0430\u0440\u0430\u0434\u043d\u0430\u044f. \u041b\u0438\u0444\u0442. \u0411\u043b\u0430\u0433\u043e\u0443\u0441\u0442\u0440\u043e\u0435\u043d\u043d\u044b\u0439 \u0437\u0435\u043b\u0435\u043d\u044b\u0439 \u0434\u0432\u043e\u0440. \u041f\u0440\u0435\u043a\u0440\u0430\u0441\u043d\u043e \u0440\u0430\u0437\u0432\u0438\u0442\u0430 \u0438\u043d\u0444\u0440\u0430\u0441\u0442\u0440\u0443\u043a\u0442\u0443\u0440\u0430 \u0440\u0430\u0439\u043e\u043d\u0430 \u0438 \u0442\u0440\u0430\u043d\u0441\u043f\u043e\u0440\u0442\u043d\u043e\u0435 \u0441\u043e\u043e\u0431\u0449\u0435\u043d\u0438\u0435. \u0412 \u0448\u0430\u0433\u043e\u0432\u043e\u0439 \u0434\u043e\u0441\u0442\u0443\u043f\u043d\u043e\u0441\u0442\u0438 \u0434\u0432\u0435 \u0441\u0442\u0430\u043d\u0446\u0438\u0438 \u043c\u0435\u0442\u0440\u043e\/ \u0434\u043e \u043c\u0435\u0442\u0440\u043e \u041a\u0438\u0440\u043e\u0432\u0441\u043a\u0438\u0439 \u0437\u0430\u0432\u043e\u0434 8 \u043c\u0438\u043d\u0443\u0442, \u0434\u043e \u043c\u0435\u0442\u0440\u043e \u0410\u0432\u0442\u043e\u0432\u043e -12 \u043c\u0438\u043d\u0443\u0442 \/, \u043c\u043d\u043e\u0436\u0435\u0441\u0442\u0432\u043e \u043c\u0430\u0440\u0448\u0440\u0443\u0442\u043e\u0432 \u043d\u0430\u0437\u0435\u043c\u043d\u043e\u0433\u043e \u0442\u0440\u0430\u043d\u0441\u043f\u043e\u0440\u0442\u0430. \u041e\u0434\u0438\u043d \u0432\u0437\u0440\u043e\u0441\u043b\u044b\u0439 \u0441\u043e\u0431\u0441\u0442\u0432\u0435\u043d\u043d\u0438\u043a. \u0412\u043e \u0432\u043b\u0430\u0434\u0435\u043d\u0438\u0438 \u0441 2016 \u0433\u043e\u0434\u0430 \u043f\u043e \u0434\u043e\u0433\u043e\u0432\u043e\u0440\u0443 \u043a\u0443\u043f\u043b\u0438 -\u043f\u0440\u043e\u0434\u0430\u0436\u0438 . \u041c\u0430\u0442\u0435\u0440\u0438\u043d\u0441\u043a\u0438\u0439 \u043a\u0430\u043f\u0438\u0442\u0430\u043b \u043d\u0435 \u0438\u0441\u043f\u043e\u043b\u044c\u0437\u043e\u0432\u0430\u043b\u0441\u044f . \u041d\u0435\u0442 \u0437\u0430\u0440\u0435\u0433\u0438\u0441\u0442\u0440\u0438\u0440\u043e\u0432\u0430\u043d\u043d\u044b\u0445 \u043b\u0438\u0446 , \u043d\u0438\u043a\u0442\u043e \u043d\u0435 \u043f\u0440\u043e\u0436\u0438\u0432\u0430\u0435\u0442. \u041f\u043e\u043a\u0430\u0437\u044b \u0432 \u0443\u0434\u043e\u0431\u043d\u043e\u0435 \u0434\u043b\u044f \u0432\u0430\u0441 \u0432\u0440\u0435\u043c\u044f. \u0415\u043b\u0435\u043d\u0430 \u0412\u0438\u043a\u0442\u043e\u0440\u043e\u0432\u043d\u0430","date_update":"24.12.2025","yaCoord0":30.256579,"yaCoord1":59.875781,"is_current":1,"is_sold":0,"is_withdrawn":0,"is_private":0,"sale_date":null,"start_date":"2025-10-24","final_price":null,"created_at":"2025-10-31 19:35:45","updated_at":"2025-10-31 22:19:42","checked_at":"2025-10-31 22:19:42","sum":157,"url":null,"title":"4-\u043a\u043e\u043c\u043d\u0430\u0442\u043d\u0430\u044f \u043a\u0432\u0430\u0440\u0442\u0438\u0440\u0430 123.2 \u043c\u00b2, \u044d\u0442\u0430\u0436 2\/7","guidename":"4-\u043a\u043e\u043c\u043d\u0430\u0442\u043d\u044b\u0435 \u043a\u0432\u0430\u0440\u0442\u0438\u0440\u044b","phone":{"number":"+7 (812) 740-70-40","link":"+7 (812) 740-70-40"},"agents":[{"id":11151,"url":"elena-gajvoronskaya","F":"\u0413\u0430\u0439\u0432\u043e\u0440\u043e\u043d\u0441\u043a\u0430\u044f","I":"\u0415\u043b\u0435\u043d\u0430","O":"\u0412\u0438\u043a\u0442\u043e\u0440\u043e\u0432\u043d\u0430","phone":"+7 (812) 740-70-40","email":"GaivoronskayaEV@itaka.ru","personal_phone":"8-921-432-25-82","personal_email":"GaivoronskayaEV@itaka.ru","birthday":"1970-01-07","photo_sq":"\/\/homeinspb.ru\/1c\/photo\/FL11151.jpg","photo_cir":"agent_11151_cir.png","photo":null,"online":1,"text":null,"oadm":0,"gender":0,"shows":0,"selfemployed":0,"individual":1,"in_state":0,"in_office":0,"site_post":"","is_fired":0,"direct_submission":0,"direct_submission_id":1,"mim":null,"change":1,"is_active":1,"noindex":0,"must_index":0,"jivo":1,"basic_office_id":null,"precinct":0,"slaves_notifications":1,"is_blocked":0,"overrides":[],"wp":false,"phone_f":"78127407040","office":{"id":"000000013","url":"ul-malaya-balkanskaya-d-26","name":"\u0443\u043b. \u041c\u0430\u043b\u0430\u044f \u0411\u0430\u043b\u043a\u0430\u043d\u0441\u043a\u0430\u044f, \u0434. 26","adress":"\u0433. \u0421\u0430\u043d\u043a\u0442-\u041f\u0435\u0442\u0435\u0440\u0431\u0443\u0440\u0433, \u0424\u0440\u0443\u043d\u0437\u0435\u043d\u0441\u043a\u0438\u0439 \u0440-\u043d, \u0443\u043b. \u041c\u0430\u043b\u0430\u044f \u0411\u0430\u043b\u043a\u0430\u043d\u0441\u043a\u0430\u044f, \u0434. 26","coords":"59.829442,30.386079","pano_coords":"59.8298972865986,30.384474933","pano_direction":"44.60707084120078,1.1631715886855591","pano_span":"58.033400647822184,30.320036290824245","email":"kup4ino@itaka.ru","phone":"88123477731","metro_stations_id":9,"region_id":78,"district_id":null,"coords_metro":null,"coords_top":null,"coords_left":null,"spbzn_coords_top":null,"spbzn_coords_left":null,"change":1,"td_id":7,"order":70,"deleted_at":null,"SuccessOverrides":[{"id":6887,"model":"Offices","target_id":0,"target_id_str":"000000013","field":"order","value":"129,5017,4141,94,255,11524,9127,5779,570,7832,10411,8923,10124,14723,12440,10827,11255,13615,14933,13616,13397,11863,702,10547,2879,3805,10032,11151,663,15756,10131,13269,284,12585,13651,2234","is_current":0,"is_moderated_adm":1,"is_moderated_tech":1,"is_selected":0,"creator_id":440,"moderator_adm_id":440,"moderator_tech_id":440,"adm_reason":null,"tech_reason":null,"created_at":"2025-09-10T08:59:44.000000Z","updated_at":"2025-09-10T08:59:44.000000Z"},{"id":6886,"model":"Offices","target_id":0,"target_id_str":"000000013","field":"add_agent_id","value":"9557","is_current":0,"is_moderated_adm":1,"is_moderated_tech":1,"is_selected":0,"creator_id":440,"moderator_adm_id":440,"moderator_tech_id":440,"adm_reason":null,"tech_reason":null,"created_at":"2025-09-10T08:59:44.000000Z","updated_at":"2025-09-10T08:59:44.000000Z"},{"id":6885,"model":"Offices","target_id":0,"target_id_str":"000000013","field":"schedule","value":"\u041f\u041d-\u041f\u0422: 10.00-20.00<br \/>\r\n\u0421\u0411-\u0412\u0421: 11.00-18.00","is_current":0,"is_moderated_adm":1,"is_moderated_tech":1,"is_selected":0,"creator_id":440,"moderator_adm_id":440,"moderator_tech_id":440,"adm_reason":null,"tech_reason":null,"created_at":"2025-09-10T08:59:44.000000Z","updated_at":"2025-09-10T08:59:44.000000Z"}],"Hours":null},"Mimfio":false,"success_overrides":[]},{"id":11151,"url":"elena-gajvoronskaya","F":"\u0413\u0430\u0439\u0432\u043e\u0440\u043e\u043d\u0441\u043a\u0430\u044f","I":"\u0415\u043b\u0435\u043d\u0430","O":"\u0412\u0438\u043a\u0442\u043e\u0440\u043e\u0432\u043d\u0430","phone":"+7 (812) 740-70-40","email":"GaivoronskayaEV@itaka.ru","personal_phone":"8-921-432-25-82","personal_email":"GaivoronskayaEV@itaka.ru","birthday":"1970-01-07","photo_sq":"\/\/homeinspb.ru\/1c\/photo\/FL11151.jpg","photo_cir":"agent_11151_cir.png","photo":null,"online":1,"text":null,"oadm":0,"gender":0,"shows":0,"selfemployed":0,"individual":1,"in_state":0,"in_office":0,"site_post":"","is_fired":0,"direct_submission":0,"direct_submission_id":1,"mim":null,"change":1,"is_active":1,"noindex":0,"must_index":0,"jivo":1,"basic_office_id":null,"precinct":0,"slaves_notifications":1,"is_blocked":0,"overrides":[],"wp":false,"phone_f":"78127407040","office":{"id":"000000013","url":"ul-malaya-balkanskaya-d-26","name":"\u0443\u043b. \u041c\u0430\u043b\u0430\u044f \u0411\u0430\u043b\u043a\u0430\u043d\u0441\u043a\u0430\u044f, \u0434. 26","adress":"\u0433. \u0421\u0430\u043d\u043a\u0442-\u041f\u0435\u0442\u0435\u0440\u0431\u0443\u0440\u0433, \u0424\u0440\u0443\u043d\u0437\u0435\u043d\u0441\u043a\u0438\u0439 \u0440-\u043d, \u0443\u043b. \u041c\u0430\u043b\u0430\u044f \u0411\u0430\u043b\u043a\u0430\u043d\u0441\u043a\u0430\u044f, \u0434. 26","coords":"59.829442,30.386079","pano_coords":"59.8298972865986,30.384474933","pano_direction":"44.60707084120078,1.1631715886855591","pano_span":"58.033400647822184,30.320036290824245","email":"kup4ino@itaka.ru","phone":"88123477731","metro_stations_id":9,"region_id":78,"district_id":null,"coords_metro":null,"coords_top":null,"coords_left":null,"spbzn_coords_top":null,"spbzn_coords_left":null,"change":1,"td_id":7,"order":70,"deleted_at":null,"SuccessOverrides":[{"id":6887,"model":"Offices","target_id":0,"target_id_str":"000000013","field":"order","value":"129,5017,4141,94,255,11524,9127,5779,570,7832,10411,8923,10124,14723,12440,10827,11255,13615,14933,13616,13397,11863,702,10547,2879,3805,10032,11151,663,15756,10131,13269,284,12585,13651,2234","is_current":0,"is_moderated_adm":1,"is_moderated_tech":1,"is_selected":0,"creator_id":440,"moderator_adm_id":440,"moderator_tech_id":440,"adm_reason":null,"tech_reason":null,"created_at":"2025-09-10T08:59:44.000000Z","updated_at":"2025-09-10T08:59:44.000000Z"},{"id":6886,"model":"Offices","target_id":0,"target_id_str":"000000013","field":"add_agent_id","value":"9557","is_current":0,"is_moderated_adm":1,"is_moderated_tech":1,"is_selected":0,"creator_id":440,"moderator_adm_id":440,"moderator_tech_id":440,"adm_reason":null,"tech_reason":null,"created_at":"2025-09-10T08:59:44.000000Z","updated_at":"2025-09-10T08:59:44.000000Z"},{"id":6885,"model":"Offices","target_id":0,"target_id_str":"000000013","field":"schedule","value":"\u041f\u041d-\u041f\u0422: 10.00-20.00<br \/>\r\n\u0421\u0411-\u0412\u0421: 11.00-18.00","is_current":0,"is_moderated_adm":1,"is_moderated_tech":1,"is_selected":0,"creator_id":440,"moderator_adm_id":440,"moderator_tech_id":440,"adm_reason":null,"tech_reason":null,"created_at":"2025-09-10T08:59:44.000000Z","updated_at":"2025-09-10T08:59:44.000000Z"}],"Hours":null},"Mimfio":false,"success_overrides":[]}],"metro":{"id":45,"name":"\u041a\u0438\u0440\u043e\u0432\u0441\u043a\u0438\u0439 \u0437\u0430\u0432\u043e\u0434","chpuName":"kirovskij-zavod","top":"538","left":"140","metro_lines_id":6,"intersection":null,"r_top":"488","r_side":"421","r_class":"right","r_top_sub":null,"r_side_sub":null,"r_opt_class":null,"yaCoord0":null,"yaCoord1":null,"created_at":null,"updated_at":null,"metro_color":"red"},"images":[{"id":1295074,"apartment_number":"1-92348","photo":"media.itaka.ru\/homeinspb\/images\/objects\/big_d58a1640-17b4-f011-91e0-0050568db126.jpg","priority":1},{"id":1295075,"apartment_number":"1-92348","photo":"media.itaka.ru\/homeinspb\/images\/objects\/big_14891640-17b4-f011-91e0-0050568db126.jpg","priority":2},{"id":1295076,"apartment_number":"1-92348","photo":"media.itaka.ru\/homeinspb\/images\/objects\/big_25871640-17b4-f011-91e0-0050568db126.jpg","priority":3},{"id":1295077,"apartment_number":"1-92348","photo":"media.itaka.ru\/homeinspb\/images\/objects\/big_59871640-17b4-f011-91e0-0050568db126.jpg","priority":4},{"id":1295078,"apartment_number":"1-92348","photo":"media.itaka.ru\/homeinspb\/images\/objects\/big_d1871640-17b4-f011-91e0-0050568db126.jpg","priority":5},{"id":1295079,"apartment_number":"1-92348","photo":"media.itaka.ru\/homeinspb\/images\/objects\/big_4e871640-17b4-f011-91e0-0050568db126.jpg","priority":6},{"id":1295080,"apartment_number":"1-92348","photo":"media.itaka.ru\/homeinspb\/images\/objects\/big_bd891640-17b4-f011-91e0-0050568db126.jpg","priority":7},{"id":1295081,"apartment_number":"1-92348","photo":"media.itaka.ru\/homeinspb\/images\/objects\/big_81881640-17b4-f011-91e0-0050568db126.jpg","priority":8},{"id":1295082,"apartment_number":"1-92348","photo":"media.itaka.ru\/homeinspb\/images\/objects\/big_428a1640-17b4-f011-91e0-0050568db126.jpg","priority":9},{"id":1295083,"apartment_number":"1-92348","photo":"media.itaka.ru\/homeinspb\/images\/objects\/big_9e881640-17b4-f011-91e0-0050568db126.jpg","priority":10},{"id":1295084,"apartment_number":"1-92348","photo":"media.itaka.ru\/homeinspb\/images\/objects\/big_438a1640-17b4-f011-91e0-0050568db126.jpg","priority":11},{"id":1295085,"apartment_number":"1-92348","photo":"media.itaka.ru\/homeinspb\/images\/objects\/big_55881640-17b4-f011-91e0-0050568db126.jpg","priority":12},{"id":1295086,"apartment_number":"1-92348","photo":"media.itaka.ru\/homeinspb\/images\/objects\/big_04881640-17b4-f011-91e0-0050568db126.jpg","priority":13},{"id":1295087,"apartment_number":"1-92348","photo":"media.itaka.ru\/homeinspb\/images\/objects\/big_4a871640-17b4-f011-91e0-0050568db126.jpg","priority":14},{"id":1295088,"apartment_number":"1-92348","photo":"media.itaka.ru\/homeinspb\/images\/objects\/big_c6881640-17b4-f011-91e0-0050568db126.jpg","priority":15},{"id":1295089,"apartment_number":"1-92348","photo":"media.itaka.ru\/homeinspb\/images\/objects\/big_47891640-17b4-f011-91e0-0050568db126.jpg","priority":16},{"id":1295090,"apartment_number":"1-92348","photo":"media.itaka.ru\/homeinspb\/images\/objects\/big_358b1640-17b4-f011-91e0-0050568db126.jpg","priority":17},{"id":1295091,"apartment_number":"1-92348","photo":"media.itaka.ru\/homeinspb\/images\/objects\/big_c38b1640-17b4-f011-91e0-0050568db126.jpg","priority":18},{"id":1295092,"apartment_number":"1-92348","photo":"media.itaka.ru\/homeinspb\/images\/objects\/big_f38c1640-17b4-f011-91e0-0050568db126.jpg","priority":19},{"id":1295093,"apartment_number":"1-92348","photo":"media.itaka.ru\/homeinspb\/images\/objects\/big_f08c1640-17b4-f011-91e0-0050568db126.jpg","priority":20},{"id":1295094,"apartment_number":"1-92348","photo":"media.itaka.ru\/homeinspb\/images\/objects\/big_988c1640-17b4-f011-91e0-0050568db126.jpg","priority":21},{"id":1295095,"apartment_number":"1-92348","photo":"media.itaka.ru\/homeinspb\/images\/objects\/big_608b1640-17b4-f011-91e0-0050568db126.jpg","priority":22},{"id":1295096,"apartment_number":"1-92348","photo":"media.itaka.ru\/homeinspb\/images\/objects\/big_d88b1640-17b4-f011-91e0-0050568db126.jpg","priority":23},{"id":1295097,"apartment_number":"1-92348","photo":"media.itaka.ru\/homeinspb\/images\/objects\/big_c98b1640-17b4-f011-91e0-0050568db126.jpg","priority":24},{"id":1295098,"apartment_number":"1-92348","photo":"media.itaka.ru\/homeinspb\/images\/objects\/big_6e8c1640-17b4-f011-91e0-0050568db126.jpg","priority":25},{"id":1295099,"apartment_number":"1-92348","photo":"media.itaka.ru\/homeinspb\/images\/objects\/big_388d1640-17b4-f011-91e0-0050568db126.jpg","priority":26},{"id":1295100,"apartment_number":"1-92348","photo":"media.itaka.ru\/homeinspb\/images\/objects\/big_658d1640-17b4-f011-91e0-0050568db126.jpg","priority":27},{"id":1295101,"apartment_number":"1-92348","photo":"media.itaka.ru\/homeinspb\/images\/objects\/big_6b8d1640-17b4-f011-91e0-0050568db126.jpg","priority":28},{"id":1295102,"apartment_number":"1-92348","photo":"media.itaka.ru\/homeinspb\/images\/objects\/big_a088e845-17b4-f011-91e0-0050568db126.jpg","priority":29},{"id":1295103,"apartment_number":"1-92348","photo":"media.itaka.ru\/homeinspb\/images\/objects\/big_c59e0e46-17b4-f011-91e0-0050568db126.jpg","priority":30}]}

Гайворонская Елена

11151 +7 (812) 740-70-40
11151

11151


4-комнатная квартира 166.9 м², этаж 10/11

Беговая

г Санкт-Петербург, ул Савушкина, д. 118, лит. А

Внимание! Двухэтажная, четырехкомнатная квартира 170 метров по цене трешки! В самом престижном районе города Санкт-Петербург, почти у побережья Финского залива, предлагается к продаже светлая, уютная, комфортная квартира для большой и дружной семьи. Квартира находится в кирпичном доме на 10 и 11 этажах, выше квартир в этой секции дома – нет. В квартире выполнен ремонт с натуральными отделочными материалами. А также очень грамотное зонирование. На первом уровне квартиры расположена кухня-гостиная, санузел, ванна-джакузи, душевая кабина, гардеробная, две спальни, одна из них с выходом на застекленный балкон. На втором уровне большой холл, душевая кабина, финская сауна, санузел, две гардеробные, две спальни, одна из них с выходом на застекленный балкон. Прекрасная локация: 5 минут пешком от метро «Беговая», также рядом находятся ТЦ Атлантик сити, Меркурий, Питерлэнд, парк 300-летия с шикарной набережной и фонтанами, парк ЦПКиО, выезд на ЗСД, все необходимые гипермаркеты, магазины, школы, поликлиники и детские сады. Прямая продажа. Один взрослый собственник. Документы готовы к сделке. Записывайтесь на просмотр, и эта чудесная квартира может стать Вашей!

29 450 000 ₽
176 452 ₽/м²
Объект № 1-90832
Специалист по этому объекту:
{"id":"1-90832","object_type":1,"agents_id":12440,"rooms_saled":4,"rooms_total":4,"regions_id":78,"districts_id":"16","station_metro_id":71,"station_rallway":null,"address":"\u0433 \u0421\u0430\u043d\u043a\u0442-\u041f\u0435\u0442\u0435\u0440\u0431\u0443\u0440\u0433, \u0443\u043b \u0421\u0430\u0432\u0443\u0448\u043a\u0438\u043d\u0430, \u0434. 118, \u043b\u0438\u0442. \u0410","locality":"\u0433. \u0421\u0430\u043d\u043a\u0442-\u041f\u0435\u0442\u0435\u0440\u0431\u0443\u0440\u0433","price":"29 450 000","price_mkv":"176 452","floor":10,"floors":11,"is_first":0,"is_last":0,"floor_height":2.7,"space_habitable":77.7,"space_total":166.9,"space_rooms":"14,4+16+27,5+19,8","space_kitchen":53.2,"type_of_building_id":3,"is_phone":0,"wc":"\u0440\u0430\u0437\u0434\u0435\u043b\u044c\u043d\u044b\u0439","is_balcon":1,"is_lift":1,"hotwater":"\u0412\u043e\u0434\u043e\u043f\u0440\u043e\u0432\u043e\u0434","is_ipoteka":1,"is_exclusive":1,"is_unique":1,"is_fake":0,"is_counter":0,"is_cession":0,"build_year":2001,"comments":"\u0412\u043d\u0438\u043c\u0430\u043d\u0438\u0435! \u0414\u0432\u0443\u0445\u044d\u0442\u0430\u0436\u043d\u0430\u044f, \u0447\u0435\u0442\u044b\u0440\u0435\u0445\u043a\u043e\u043c\u043d\u0430\u0442\u043d\u0430\u044f \u043a\u0432\u0430\u0440\u0442\u0438\u0440\u0430 170 \u043c\u0435\u0442\u0440\u043e\u0432 \u043f\u043e \u0446\u0435\u043d\u0435 \u0442\u0440\u0435\u0448\u043a\u0438! \u0412 \u0441\u0430\u043c\u043e\u043c \u043f\u0440\u0435\u0441\u0442\u0438\u0436\u043d\u043e\u043c \u0440\u0430\u0439\u043e\u043d\u0435 \u0433\u043e\u0440\u043e\u0434\u0430 \u0421\u0430\u043d\u043a\u0442-\u041f\u0435\u0442\u0435\u0440\u0431\u0443\u0440\u0433, \u043f\u043e\u0447\u0442\u0438 \u0443 \u043f\u043e\u0431\u0435\u0440\u0435\u0436\u044c\u044f \u0424\u0438\u043d\u0441\u043a\u043e\u0433\u043e \u0437\u0430\u043b\u0438\u0432\u0430, \u043f\u0440\u0435\u0434\u043b\u0430\u0433\u0430\u0435\u0442\u0441\u044f \u043a \u043f\u0440\u043e\u0434\u0430\u0436\u0435 \u0441\u0432\u0435\u0442\u043b\u0430\u044f, \u0443\u044e\u0442\u043d\u0430\u044f, \u043a\u043e\u043c\u0444\u043e\u0440\u0442\u043d\u0430\u044f \u043a\u0432\u0430\u0440\u0442\u0438\u0440\u0430 \u0434\u043b\u044f \u0431\u043e\u043b\u044c\u0448\u043e\u0439 \u0438 \u0434\u0440\u0443\u0436\u043d\u043e\u0439 \u0441\u0435\u043c\u044c\u0438. \u041a\u0432\u0430\u0440\u0442\u0438\u0440\u0430 \u043d\u0430\u0445\u043e\u0434\u0438\u0442\u0441\u044f \u0432 \u043a\u0438\u0440\u043f\u0438\u0447\u043d\u043e\u043c \u0434\u043e\u043c\u0435 \u043d\u0430 10 \u0438 11 \u044d\u0442\u0430\u0436\u0430\u0445, \u0432\u044b\u0448\u0435 \u043a\u0432\u0430\u0440\u0442\u0438\u0440 \u0432 \u044d\u0442\u043e\u0439 \u0441\u0435\u043a\u0446\u0438\u0438 \u0434\u043e\u043c\u0430 \u2013 \u043d\u0435\u0442. \u0412 \u043a\u0432\u0430\u0440\u0442\u0438\u0440\u0435 \u0432\u044b\u043f\u043e\u043b\u043d\u0435\u043d \u0440\u0435\u043c\u043e\u043d\u0442 \u0441 \u043d\u0430\u0442\u0443\u0440\u0430\u043b\u044c\u043d\u044b\u043c\u0438 \u043e\u0442\u0434\u0435\u043b\u043e\u0447\u043d\u044b\u043c\u0438 \u043c\u0430\u0442\u0435\u0440\u0438\u0430\u043b\u0430\u043c\u0438. \u0410 \u0442\u0430\u043a\u0436\u0435 \u043e\u0447\u0435\u043d\u044c \u0433\u0440\u0430\u043c\u043e\u0442\u043d\u043e\u0435 \u0437\u043e\u043d\u0438\u0440\u043e\u0432\u0430\u043d\u0438\u0435. \u041d\u0430 \u043f\u0435\u0440\u0432\u043e\u043c \u0443\u0440\u043e\u0432\u043d\u0435 \u043a\u0432\u0430\u0440\u0442\u0438\u0440\u044b \u0440\u0430\u0441\u043f\u043e\u043b\u043e\u0436\u0435\u043d\u0430 \u043a\u0443\u0445\u043d\u044f-\u0433\u043e\u0441\u0442\u0438\u043d\u0430\u044f, \u0441\u0430\u043d\u0443\u0437\u0435\u043b, \u0432\u0430\u043d\u043d\u0430-\u0434\u0436\u0430\u043a\u0443\u0437\u0438, \u0434\u0443\u0448\u0435\u0432\u0430\u044f \u043a\u0430\u0431\u0438\u043d\u0430, \u0433\u0430\u0440\u0434\u0435\u0440\u043e\u0431\u043d\u0430\u044f, \u0434\u0432\u0435 \u0441\u043f\u0430\u043b\u044c\u043d\u0438, \u043e\u0434\u043d\u0430 \u0438\u0437 \u043d\u0438\u0445 \u0441 \u0432\u044b\u0445\u043e\u0434\u043e\u043c \u043d\u0430 \u0437\u0430\u0441\u0442\u0435\u043a\u043b\u0435\u043d\u043d\u044b\u0439 \u0431\u0430\u043b\u043a\u043e\u043d. \u041d\u0430 \u0432\u0442\u043e\u0440\u043e\u043c \u0443\u0440\u043e\u0432\u043d\u0435 \u0431\u043e\u043b\u044c\u0448\u043e\u0439 \u0445\u043e\u043b\u043b, \u0434\u0443\u0448\u0435\u0432\u0430\u044f \u043a\u0430\u0431\u0438\u043d\u0430, \u0444\u0438\u043d\u0441\u043a\u0430\u044f \u0441\u0430\u0443\u043d\u0430, \u0441\u0430\u043d\u0443\u0437\u0435\u043b, \u0434\u0432\u0435 \u0433\u0430\u0440\u0434\u0435\u0440\u043e\u0431\u043d\u044b\u0435, \u0434\u0432\u0435 \u0441\u043f\u0430\u043b\u044c\u043d\u0438, \u043e\u0434\u043d\u0430 \u0438\u0437 \u043d\u0438\u0445 \u0441 \u0432\u044b\u0445\u043e\u0434\u043e\u043c \u043d\u0430 \u0437\u0430\u0441\u0442\u0435\u043a\u043b\u0435\u043d\u043d\u044b\u0439 \u0431\u0430\u043b\u043a\u043e\u043d. \u041f\u0440\u0435\u043a\u0440\u0430\u0441\u043d\u0430\u044f \u043b\u043e\u043a\u0430\u0446\u0438\u044f: 5 \u043c\u0438\u043d\u0443\u0442 \u043f\u0435\u0448\u043a\u043e\u043c \u043e\u0442 \u043c\u0435\u0442\u0440\u043e \u00ab\u0411\u0435\u0433\u043e\u0432\u0430\u044f\u00bb, \u0442\u0430\u043a\u0436\u0435 \u0440\u044f\u0434\u043e\u043c \u043d\u0430\u0445\u043e\u0434\u044f\u0442\u0441\u044f \u0422\u0426 \u0410\u0442\u043b\u0430\u043d\u0442\u0438\u043a \u0441\u0438\u0442\u0438, \u041c\u0435\u0440\u043a\u0443\u0440\u0438\u0439, \u041f\u0438\u0442\u0435\u0440\u043b\u044d\u043d\u0434, \u043f\u0430\u0440\u043a 300-\u043b\u0435\u0442\u0438\u044f \u0441 \u0448\u0438\u043a\u0430\u0440\u043d\u043e\u0439 \u043d\u0430\u0431\u0435\u0440\u0435\u0436\u043d\u043e\u0439 \u0438 \u0444\u043e\u043d\u0442\u0430\u043d\u0430\u043c\u0438, \u043f\u0430\u0440\u043a \u0426\u041f\u041a\u0438\u041e, \u0432\u044b\u0435\u0437\u0434 \u043d\u0430 \u0417\u0421\u0414, \u0432\u0441\u0435 \u043d\u0435\u043e\u0431\u0445\u043e\u0434\u0438\u043c\u044b\u0435 \u0433\u0438\u043f\u0435\u0440\u043c\u0430\u0440\u043a\u0435\u0442\u044b, \u043c\u0430\u0433\u0430\u0437\u0438\u043d\u044b, \u0448\u043a\u043e\u043b\u044b, \u043f\u043e\u043b\u0438\u043a\u043b\u0438\u043d\u0438\u043a\u0438 \u0438 \u0434\u0435\u0442\u0441\u043a\u0438\u0435 \u0441\u0430\u0434\u044b. \u041f\u0440\u044f\u043c\u0430\u044f \u043f\u0440\u043e\u0434\u0430\u0436\u0430. \u041e\u0434\u0438\u043d \u0432\u0437\u0440\u043e\u0441\u043b\u044b\u0439 \u0441\u043e\u0431\u0441\u0442\u0432\u0435\u043d\u043d\u0438\u043a. \u0414\u043e\u043a\u0443\u043c\u0435\u043d\u0442\u044b \u0433\u043e\u0442\u043e\u0432\u044b \u043a \u0441\u0434\u0435\u043b\u043a\u0435. \u0417\u0430\u043f\u0438\u0441\u044b\u0432\u0430\u0439\u0442\u0435\u0441\u044c \u043d\u0430 \u043f\u0440\u043e\u0441\u043c\u043e\u0442\u0440, \u0438 \u044d\u0442\u0430 \u0447\u0443\u0434\u0435\u0441\u043d\u0430\u044f \u043a\u0432\u0430\u0440\u0442\u0438\u0440\u0430 \u043c\u043e\u0436\u0435\u0442 \u0441\u0442\u0430\u0442\u044c \u0412\u0430\u0448\u0435\u0439!","date_update":"24.12.2025","yaCoord0":30.212921,"yaCoord1":59.987001,"is_current":1,"is_sold":0,"is_withdrawn":0,"is_private":0,"sale_date":null,"start_date":"2025-03-07","final_price":null,"created_at":"2025-03-10 17:37:48","updated_at":"2025-03-10 20:20:04","checked_at":"2025-03-10 20:20:04","sum":155,"url":null,"title":"4-\u043a\u043e\u043c\u043d\u0430\u0442\u043d\u0430\u044f \u043a\u0432\u0430\u0440\u0442\u0438\u0440\u0430 166.9 \u043c\u00b2, \u044d\u0442\u0430\u0436 10\/11","guidename":"4-\u043a\u043e\u043c\u043d\u0430\u0442\u043d\u044b\u0435 \u043a\u0432\u0430\u0440\u0442\u0438\u0440\u044b","phone":{"number":"+7 (812) 740-70-40","link":"+7 (812) 740-70-40"},"agents":[{"id":12440,"url":"ekaterina-semigradova","F":"\u0421\u0435\u043c\u0438\u0433\u0440\u0430\u0434\u043e\u0432\u0430","I":"\u0415\u043a\u0430\u0442\u0435\u0440\u0438\u043d\u0430","O":"\u0410\u043b\u0435\u043a\u0441\u0430\u043d\u0434\u0440\u043e\u0432\u043d\u0430","phone":"+7 (812) 740-70-40","email":"SemigradovaEA@itaka.ru","personal_phone":"89219625091","personal_email":"SemigradovaEA@itaka.ru","birthday":"1970-11-03","photo_sq":"\/\/homeinspb.ru\/1c\/photo\/FL12440.jpg","photo_cir":null,"photo":null,"online":0,"text":null,"oadm":0,"gender":0,"shows":0,"selfemployed":0,"individual":1,"in_state":0,"in_office":0,"site_post":"","is_fired":0,"direct_submission":0,"direct_submission_id":1,"mim":13434,"change":1,"is_active":1,"noindex":0,"must_index":0,"jivo":1,"basic_office_id":"000000013","precinct":0,"slaves_notifications":1,"is_blocked":0,"overrides":{"video":"https:\/\/youtu.be\/d8ZfTRUP0x0","video_uin":"d8ZfTRUP0x0"},"wp":false,"phone_f":"78127407040","office":{"id":"000000013","url":"ul-malaya-balkanskaya-d-26","name":"\u0443\u043b. \u041c\u0430\u043b\u0430\u044f \u0411\u0430\u043b\u043a\u0430\u043d\u0441\u043a\u0430\u044f, \u0434. 26","adress":"\u0433. \u0421\u0430\u043d\u043a\u0442-\u041f\u0435\u0442\u0435\u0440\u0431\u0443\u0440\u0433, \u0424\u0440\u0443\u043d\u0437\u0435\u043d\u0441\u043a\u0438\u0439 \u0440-\u043d, \u0443\u043b. \u041c\u0430\u043b\u0430\u044f \u0411\u0430\u043b\u043a\u0430\u043d\u0441\u043a\u0430\u044f, \u0434. 26","coords":"59.829442,30.386079","pano_coords":"59.8298972865986,30.384474933","pano_direction":"44.60707084120078,1.1631715886855591","pano_span":"58.033400647822184,30.320036290824245","email":"kup4ino@itaka.ru","phone":"88123477731","metro_stations_id":9,"region_id":78,"district_id":null,"coords_metro":null,"coords_top":null,"coords_left":null,"spbzn_coords_top":null,"spbzn_coords_left":null,"change":1,"td_id":7,"order":70,"deleted_at":null,"SuccessOverrides":[{"id":6887,"model":"Offices","target_id":0,"target_id_str":"000000013","field":"order","value":"129,5017,4141,94,255,11524,9127,5779,570,7832,10411,8923,10124,14723,12440,10827,11255,13615,14933,13616,13397,11863,702,10547,2879,3805,10032,11151,663,15756,10131,13269,284,12585,13651,2234","is_current":0,"is_moderated_adm":1,"is_moderated_tech":1,"is_selected":0,"creator_id":440,"moderator_adm_id":440,"moderator_tech_id":440,"adm_reason":null,"tech_reason":null,"created_at":"2025-09-10T08:59:44.000000Z","updated_at":"2025-09-10T08:59:44.000000Z"},{"id":6886,"model":"Offices","target_id":0,"target_id_str":"000000013","field":"add_agent_id","value":"9557","is_current":0,"is_moderated_adm":1,"is_moderated_tech":1,"is_selected":0,"creator_id":440,"moderator_adm_id":440,"moderator_tech_id":440,"adm_reason":null,"tech_reason":null,"created_at":"2025-09-10T08:59:44.000000Z","updated_at":"2025-09-10T08:59:44.000000Z"},{"id":6885,"model":"Offices","target_id":0,"target_id_str":"000000013","field":"schedule","value":"\u041f\u041d-\u041f\u0422: 10.00-20.00<br \/>\r\n\u0421\u0411-\u0412\u0421: 11.00-18.00","is_current":0,"is_moderated_adm":1,"is_moderated_tech":1,"is_selected":0,"creator_id":440,"moderator_adm_id":440,"moderator_tech_id":440,"adm_reason":null,"tech_reason":null,"created_at":"2025-09-10T08:59:44.000000Z","updated_at":"2025-09-10T08:59:44.000000Z"}],"Hours":null},"Mimfio":{"id":13434,"url":"nataliya-ershova","F":"\u0415\u0440\u0448\u043e\u0432\u0430","I":"\u041d\u0430\u0442\u0430\u043b\u0438\u044f","O":"\u0412\u0430\u043b\u0435\u043d\u0442\u0438\u043d\u043e\u0432\u043d\u0430","phone":"89312042310","email":"ErshovaNV@itaka.ru","personal_phone":"","personal_email":"","birthday":null,"photo_sq":null,"photo_cir":null,"photo":null,"online":0,"text":null,"oadm":1,"gender":null,"shows":1,"selfemployed":0,"individual":0,"in_state":0,"in_office":0,"site_post":"","is_fired":0,"direct_submission":1,"direct_submission_id":11389,"mim":null,"change":1,"is_active":1,"noindex":1,"must_index":1,"jivo":1,"basic_office_id":null,"precinct":0,"slaves_notifications":1,"is_blocked":0,"Mimfio":false},"success_overrides":[{"id":5136,"model":"Agents","target_id":12440,"target_id_str":null,"field":"video","value":"https:\/\/youtu.be\/d8ZfTRUP0x0","is_current":0,"is_moderated_adm":1,"is_moderated_tech":1,"is_selected":0,"creator_id":440,"moderator_adm_id":440,"moderator_tech_id":440,"adm_reason":null,"tech_reason":null,"created_at":"2023-11-16T10:10:02.000000Z","updated_at":"2023-11-16T10:10:06.000000Z"}]},{"id":12440,"url":"ekaterina-semigradova","F":"\u0421\u0435\u043c\u0438\u0433\u0440\u0430\u0434\u043e\u0432\u0430","I":"\u0415\u043a\u0430\u0442\u0435\u0440\u0438\u043d\u0430","O":"\u0410\u043b\u0435\u043a\u0441\u0430\u043d\u0434\u0440\u043e\u0432\u043d\u0430","phone":"+7 (812) 740-70-40","email":"SemigradovaEA@itaka.ru","personal_phone":"89219625091","personal_email":"SemigradovaEA@itaka.ru","birthday":"1970-11-03","photo_sq":"\/\/homeinspb.ru\/1c\/photo\/FL12440.jpg","photo_cir":null,"photo":null,"online":0,"text":null,"oadm":0,"gender":0,"shows":0,"selfemployed":0,"individual":1,"in_state":0,"in_office":0,"site_post":"","is_fired":0,"direct_submission":0,"direct_submission_id":1,"mim":13434,"change":1,"is_active":1,"noindex":0,"must_index":0,"jivo":1,"basic_office_id":"000000013","precinct":0,"slaves_notifications":1,"is_blocked":0,"overrides":{"video":"https:\/\/youtu.be\/d8ZfTRUP0x0","video_uin":"d8ZfTRUP0x0"},"wp":false,"phone_f":"78127407040","office":{"id":"000000013","url":"ul-malaya-balkanskaya-d-26","name":"\u0443\u043b. \u041c\u0430\u043b\u0430\u044f \u0411\u0430\u043b\u043a\u0430\u043d\u0441\u043a\u0430\u044f, \u0434. 26","adress":"\u0433. \u0421\u0430\u043d\u043a\u0442-\u041f\u0435\u0442\u0435\u0440\u0431\u0443\u0440\u0433, \u0424\u0440\u0443\u043d\u0437\u0435\u043d\u0441\u043a\u0438\u0439 \u0440-\u043d, \u0443\u043b. \u041c\u0430\u043b\u0430\u044f \u0411\u0430\u043b\u043a\u0430\u043d\u0441\u043a\u0430\u044f, \u0434. 26","coords":"59.829442,30.386079","pano_coords":"59.8298972865986,30.384474933","pano_direction":"44.60707084120078,1.1631715886855591","pano_span":"58.033400647822184,30.320036290824245","email":"kup4ino@itaka.ru","phone":"88123477731","metro_stations_id":9,"region_id":78,"district_id":null,"coords_metro":null,"coords_top":null,"coords_left":null,"spbzn_coords_top":null,"spbzn_coords_left":null,"change":1,"td_id":7,"order":70,"deleted_at":null,"SuccessOverrides":[{"id":6887,"model":"Offices","target_id":0,"target_id_str":"000000013","field":"order","value":"129,5017,4141,94,255,11524,9127,5779,570,7832,10411,8923,10124,14723,12440,10827,11255,13615,14933,13616,13397,11863,702,10547,2879,3805,10032,11151,663,15756,10131,13269,284,12585,13651,2234","is_current":0,"is_moderated_adm":1,"is_moderated_tech":1,"is_selected":0,"creator_id":440,"moderator_adm_id":440,"moderator_tech_id":440,"adm_reason":null,"tech_reason":null,"created_at":"2025-09-10T08:59:44.000000Z","updated_at":"2025-09-10T08:59:44.000000Z"},{"id":6886,"model":"Offices","target_id":0,"target_id_str":"000000013","field":"add_agent_id","value":"9557","is_current":0,"is_moderated_adm":1,"is_moderated_tech":1,"is_selected":0,"creator_id":440,"moderator_adm_id":440,"moderator_tech_id":440,"adm_reason":null,"tech_reason":null,"created_at":"2025-09-10T08:59:44.000000Z","updated_at":"2025-09-10T08:59:44.000000Z"},{"id":6885,"model":"Offices","target_id":0,"target_id_str":"000000013","field":"schedule","value":"\u041f\u041d-\u041f\u0422: 10.00-20.00<br \/>\r\n\u0421\u0411-\u0412\u0421: 11.00-18.00","is_current":0,"is_moderated_adm":1,"is_moderated_tech":1,"is_selected":0,"creator_id":440,"moderator_adm_id":440,"moderator_tech_id":440,"adm_reason":null,"tech_reason":null,"created_at":"2025-09-10T08:59:44.000000Z","updated_at":"2025-09-10T08:59:44.000000Z"}],"Hours":null},"Mimfio":{"id":13434,"url":"nataliya-ershova","F":"\u0415\u0440\u0448\u043e\u0432\u0430","I":"\u041d\u0430\u0442\u0430\u043b\u0438\u044f","O":"\u0412\u0430\u043b\u0435\u043d\u0442\u0438\u043d\u043e\u0432\u043d\u0430","phone":"89312042310","email":"ErshovaNV@itaka.ru","personal_phone":"","personal_email":"","birthday":null,"photo_sq":null,"photo_cir":null,"photo":null,"online":0,"text":null,"oadm":1,"gender":null,"shows":1,"selfemployed":0,"individual":0,"in_state":0,"in_office":0,"site_post":"","is_fired":0,"direct_submission":1,"direct_submission_id":11389,"mim":null,"change":1,"is_active":1,"noindex":1,"must_index":1,"jivo":1,"basic_office_id":null,"precinct":0,"slaves_notifications":1,"is_blocked":0,"Mimfio":false},"success_overrides":[{"id":5136,"model":"Agents","target_id":12440,"target_id_str":null,"field":"video","value":"https:\/\/youtu.be\/d8ZfTRUP0x0","is_current":0,"is_moderated_adm":1,"is_moderated_tech":1,"is_selected":0,"creator_id":440,"moderator_adm_id":440,"moderator_tech_id":440,"adm_reason":null,"tech_reason":null,"created_at":"2023-11-16T10:10:02.000000Z","updated_at":"2023-11-16T10:10:06.000000Z"}]}],"metro":{"id":71,"name":"\u0411\u0435\u0433\u043e\u0432\u0430\u044f","chpuName":"begovaya","top":null,"left":null,"metro_lines_id":5,"intersection":null,"r_top":null,"r_side":null,"r_class":null,"r_top_sub":null,"r_side_sub":null,"r_opt_class":null,"yaCoord0":null,"yaCoord1":null,"created_at":null,"updated_at":null,"metro_color":"green"},"images":[{"id":1144254,"apartment_number":"1-90832","photo":"media.itaka.ru\/homeinspb\/images\/objects\/big_7936dd9e-67fb-ef11-b305-0050568db126.jpg","priority":1},{"id":1144245,"apartment_number":"1-90832","photo":"media.itaka.ru\/homeinspb\/images\/objects\/big_9436dd9e-67fb-ef11-b305-0050568db126.jpg","priority":2},{"id":1144246,"apartment_number":"1-90832","photo":"media.itaka.ru\/homeinspb\/images\/objects\/big_5836dd9e-67fb-ef11-b305-0050568db126.jpg","priority":3},{"id":1144247,"apartment_number":"1-90832","photo":"media.itaka.ru\/homeinspb\/images\/objects\/big_4e36dd9e-67fb-ef11-b305-0050568db126.jpg","priority":4},{"id":1144248,"apartment_number":"1-90832","photo":"media.itaka.ru\/homeinspb\/images\/objects\/big_5136dd9e-67fb-ef11-b305-0050568db126.jpg","priority":5},{"id":1144249,"apartment_number":"1-90832","photo":"media.itaka.ru\/homeinspb\/images\/objects\/big_7136dd9e-67fb-ef11-b305-0050568db126.jpg","priority":6},{"id":1144250,"apartment_number":"1-90832","photo":"media.itaka.ru\/homeinspb\/images\/objects\/big_6a36dd9e-67fb-ef11-b305-0050568db126.jpg","priority":7},{"id":1144251,"apartment_number":"1-90832","photo":"media.itaka.ru\/homeinspb\/images\/objects\/big_8036dd9e-67fb-ef11-b305-0050568db126.jpg","priority":8},{"id":1144252,"apartment_number":"1-90832","photo":"media.itaka.ru\/homeinspb\/images\/objects\/big_5236dd9e-67fb-ef11-b305-0050568db126.jpg","priority":9},{"id":1144253,"apartment_number":"1-90832","photo":"media.itaka.ru\/homeinspb\/images\/objects\/big_7636dd9e-67fb-ef11-b305-0050568db126.jpg","priority":10},{"id":1144244,"apartment_number":"1-90832","photo":"media.itaka.ru\/homeinspb\/images\/objects\/big_4d36dd9e-67fb-ef11-b305-0050568db126.jpg","priority":11},{"id":1144255,"apartment_number":"1-90832","photo":"media.itaka.ru\/homeinspb\/images\/objects\/big_8836dd9e-67fb-ef11-b305-0050568db126.jpg","priority":12},{"id":1144256,"apartment_number":"1-90832","photo":"media.itaka.ru\/homeinspb\/images\/objects\/big_8936dd9e-67fb-ef11-b305-0050568db126.jpg","priority":13},{"id":1144257,"apartment_number":"1-90832","photo":"media.itaka.ru\/homeinspb\/images\/objects\/big_9b36dd9e-67fb-ef11-b305-0050568db126.jpg","priority":14},{"id":1144258,"apartment_number":"1-90832","photo":"media.itaka.ru\/homeinspb\/images\/objects\/big_9636dd9e-67fb-ef11-b305-0050568db126.jpg","priority":15},{"id":1144259,"apartment_number":"1-90832","photo":"media.itaka.ru\/homeinspb\/images\/objects\/big_a636dd9e-67fb-ef11-b305-0050568db126.jpg","priority":16},{"id":1144260,"apartment_number":"1-90832","photo":"media.itaka.ru\/homeinspb\/images\/objects\/big_c136dd9e-67fb-ef11-b305-0050568db126.jpg","priority":17},{"id":1144261,"apartment_number":"1-90832","photo":"media.itaka.ru\/homeinspb\/images\/objects\/big_b936dd9e-67fb-ef11-b305-0050568db126.jpg","priority":18},{"id":1144262,"apartment_number":"1-90832","photo":"media.itaka.ru\/homeinspb\/images\/objects\/big_e736dd9e-67fb-ef11-b305-0050568db126.jpg","priority":19},{"id":1144263,"apartment_number":"1-90832","photo":"media.itaka.ru\/homeinspb\/images\/objects\/big_0137dd9e-67fb-ef11-b305-0050568db126.jpg","priority":20},{"id":1144264,"apartment_number":"1-90832","photo":"media.itaka.ru\/homeinspb\/images\/objects\/big_d036dd9e-67fb-ef11-b305-0050568db126.jpg","priority":21},{"id":1144265,"apartment_number":"1-90832","photo":"media.itaka.ru\/homeinspb\/images\/objects\/big_f236dd9e-67fb-ef11-b305-0050568db126.jpg","priority":22},{"id":1144266,"apartment_number":"1-90832","photo":"media.itaka.ru\/homeinspb\/images\/objects\/big_1237dd9e-67fb-ef11-b305-0050568db126.jpg","priority":23},{"id":1144267,"apartment_number":"1-90832","photo":"media.itaka.ru\/homeinspb\/images\/objects\/big_0937dd9e-67fb-ef11-b305-0050568db126.jpg","priority":24},{"id":1144268,"apartment_number":"1-90832","photo":"media.itaka.ru\/homeinspb\/images\/objects\/big_ed36dd9e-67fb-ef11-b305-0050568db126.jpg","priority":25},{"id":1144269,"apartment_number":"1-90832","photo":"media.itaka.ru\/homeinspb\/images\/objects\/big_0537dd9e-67fb-ef11-b305-0050568db126.jpg","priority":26},{"id":1144270,"apartment_number":"1-90832","photo":"media.itaka.ru\/homeinspb\/images\/objects\/big_1137dd9e-67fb-ef11-b305-0050568db126.jpg","priority":27},{"id":1144271,"apartment_number":"1-90832","photo":"media.itaka.ru\/homeinspb\/images\/objects\/big_af36dd9e-67fb-ef11-b305-0050568db126.jpg","priority":28},{"id":1144272,"apartment_number":"1-90832","photo":"media.itaka.ru\/homeinspb\/images\/objects\/big_ba36dd9e-67fb-ef11-b305-0050568db126.jpg","priority":29},{"id":1144273,"apartment_number":"1-90832","photo":"media.itaka.ru\/homeinspb\/images\/objects\/big_cb36dd9e-67fb-ef11-b305-0050568db126.jpg","priority":30},{"id":1144274,"apartment_number":"1-90832","photo":"media.itaka.ru\/homeinspb\/images\/objects\/big_a736dd9e-67fb-ef11-b305-0050568db126.jpg","priority":31},{"id":1144275,"apartment_number":"1-90832","photo":"media.itaka.ru\/homeinspb\/images\/objects\/big_d436dd9e-67fb-ef11-b305-0050568db126.jpg","priority":32},{"id":1144276,"apartment_number":"1-90832","photo":"media.itaka.ru\/homeinspb\/images\/objects\/big_dc36dd9e-67fb-ef11-b305-0050568db126.jpg","priority":33},{"id":1144277,"apartment_number":"1-90832","photo":"media.itaka.ru\/homeinspb\/images\/objects\/big_f936dd9e-67fb-ef11-b305-0050568db126.jpg","priority":34},{"id":1144278,"apartment_number":"1-90832","photo":"media.itaka.ru\/homeinspb\/images\/objects\/big_dd36dd9e-67fb-ef11-b305-0050568db126.jpg","priority":35}]}

Семиградова Екатерина

12440 +7 (812) 740-70-40
12440

12440


3-комнатная квартира 70.7 м², этаж 6/7

Шушары

г Санкт-Петербург, г Колпино, ул Коммуны, д. 23, лит. А

Просторная трехкомнатная квартира в добротном кирпичном доме. Дом 1975-го года постройки, находится в одном из самых живописных мест в Колпино. Большая гостиная с двумя окнами и выходом на балкон, с которого открывается живописный вид. Кухня укомплектована всем необходимым, холодильник размещен в отдельной нише. Из кухни выход на второй балкон с видом во двор. На всех окнах в квартире установлены стеклопакеты. Входная дверь двойная. В квартире также есть гардеробная и большая кладовка-мастерская. Парадная и лестничные площадки чистые, без посторонних запахов. Хорошие, дружные и спокойные соседи. Прямая продажа, без обременений и перепланировок. Два взрослых собственника, с момента постройки дома. Первая продажа после приватизации.

9 900 000 ₽
140 028 ₽/м²
Объект № 1-90700
Специалист по этому объекту:
{"id":"1-90700","object_type":1,"agents_id":2234,"rooms_saled":3,"rooms_total":3,"regions_id":78,"districts_id":null,"station_metro_id":70,"station_rallway":"\u041a\u043e\u043b\u043f\u0438\u043d\u043e","address":"\u0433 \u0421\u0430\u043d\u043a\u0442-\u041f\u0435\u0442\u0435\u0440\u0431\u0443\u0440\u0433, \u0433 \u041a\u043e\u043b\u043f\u0438\u043d\u043e, \u0443\u043b \u041a\u043e\u043c\u043c\u0443\u043d\u044b, \u0434. 23, \u043b\u0438\u0442. \u0410","locality":"\u0433. \u041a\u043e\u043b\u043f\u0438\u043d\u043e","price":"9 900 000","price_mkv":"140 028","floor":6,"floors":7,"is_first":0,"is_last":0,"floor_height":null,"space_habitable":44.53,"space_total":70.7,"space_rooms":"21.49+12.65+10.39","space_kitchen":7.2,"type_of_building_id":3,"is_phone":0,"wc":"\u0440\u0430\u0437\u0434\u0435\u043b\u044c\u043d\u044b\u0439","is_balcon":1,"is_lift":1,"hotwater":"\u0412\u043e\u0434\u043e\u043f\u0440\u043e\u0432\u043e\u0434","is_ipoteka":1,"is_exclusive":1,"is_unique":1,"is_fake":0,"is_counter":0,"is_cession":0,"build_year":1975,"comments":"\u041f\u0440\u043e\u0441\u0442\u043e\u0440\u043d\u0430\u044f \u0442\u0440\u0435\u0445\u043a\u043e\u043c\u043d\u0430\u0442\u043d\u0430\u044f \u043a\u0432\u0430\u0440\u0442\u0438\u0440\u0430 \u0432 \u0434\u043e\u0431\u0440\u043e\u0442\u043d\u043e\u043c \u043a\u0438\u0440\u043f\u0438\u0447\u043d\u043e\u043c \u0434\u043e\u043c\u0435. \u0414\u043e\u043c 1975-\u0433\u043e \u0433\u043e\u0434\u0430 \u043f\u043e\u0441\u0442\u0440\u043e\u0439\u043a\u0438, \u043d\u0430\u0445\u043e\u0434\u0438\u0442\u0441\u044f \u0432 \u043e\u0434\u043d\u043e\u043c \u0438\u0437 \u0441\u0430\u043c\u044b\u0445 \u0436\u0438\u0432\u043e\u043f\u0438\u0441\u043d\u044b\u0445 \u043c\u0435\u0441\u0442 \u0432 \u041a\u043e\u043b\u043f\u0438\u043d\u043e. \u0411\u043e\u043b\u044c\u0448\u0430\u044f \u0433\u043e\u0441\u0442\u0438\u043d\u0430\u044f \u0441 \u0434\u0432\u0443\u043c\u044f \u043e\u043a\u043d\u0430\u043c\u0438 \u0438 \u0432\u044b\u0445\u043e\u0434\u043e\u043c \u043d\u0430 \u0431\u0430\u043b\u043a\u043e\u043d, \u0441 \u043a\u043e\u0442\u043e\u0440\u043e\u0433\u043e \u043e\u0442\u043a\u0440\u044b\u0432\u0430\u0435\u0442\u0441\u044f \u0436\u0438\u0432\u043e\u043f\u0438\u0441\u043d\u044b\u0439 \u0432\u0438\u0434. \u041a\u0443\u0445\u043d\u044f \u0443\u043a\u043e\u043c\u043f\u043b\u0435\u043a\u0442\u043e\u0432\u0430\u043d\u0430 \u0432\u0441\u0435\u043c \u043d\u0435\u043e\u0431\u0445\u043e\u0434\u0438\u043c\u044b\u043c, \u0445\u043e\u043b\u043e\u0434\u0438\u043b\u044c\u043d\u0438\u043a \u0440\u0430\u0437\u043c\u0435\u0449\u0435\u043d \u0432 \u043e\u0442\u0434\u0435\u043b\u044c\u043d\u043e\u0439 \u043d\u0438\u0448\u0435. \u0418\u0437 \u043a\u0443\u0445\u043d\u0438 \u0432\u044b\u0445\u043e\u0434 \u043d\u0430 \u0432\u0442\u043e\u0440\u043e\u0439 \u0431\u0430\u043b\u043a\u043e\u043d \u0441 \u0432\u0438\u0434\u043e\u043c \u0432\u043e \u0434\u0432\u043e\u0440. \u041d\u0430 \u0432\u0441\u0435\u0445 \u043e\u043a\u043d\u0430\u0445 \u0432 \u043a\u0432\u0430\u0440\u0442\u0438\u0440\u0435 \u0443\u0441\u0442\u0430\u043d\u043e\u0432\u043b\u0435\u043d\u044b \u0441\u0442\u0435\u043a\u043b\u043e\u043f\u0430\u043a\u0435\u0442\u044b. \u0412\u0445\u043e\u0434\u043d\u0430\u044f \u0434\u0432\u0435\u0440\u044c \u0434\u0432\u043e\u0439\u043d\u0430\u044f. \u0412 \u043a\u0432\u0430\u0440\u0442\u0438\u0440\u0435 \u0442\u0430\u043a\u0436\u0435 \u0435\u0441\u0442\u044c \u0433\u0430\u0440\u0434\u0435\u0440\u043e\u0431\u043d\u0430\u044f \u0438 \u0431\u043e\u043b\u044c\u0448\u0430\u044f \u043a\u043b\u0430\u0434\u043e\u0432\u043a\u0430-\u043c\u0430\u0441\u0442\u0435\u0440\u0441\u043a\u0430\u044f. \u041f\u0430\u0440\u0430\u0434\u043d\u0430\u044f \u0438 \u043b\u0435\u0441\u0442\u043d\u0438\u0447\u043d\u044b\u0435 \u043f\u043b\u043e\u0449\u0430\u0434\u043a\u0438 \u0447\u0438\u0441\u0442\u044b\u0435, \u0431\u0435\u0437 \u043f\u043e\u0441\u0442\u043e\u0440\u043e\u043d\u043d\u0438\u0445 \u0437\u0430\u043f\u0430\u0445\u043e\u0432. \u0425\u043e\u0440\u043e\u0448\u0438\u0435, \u0434\u0440\u0443\u0436\u043d\u044b\u0435 \u0438 \u0441\u043f\u043e\u043a\u043e\u0439\u043d\u044b\u0435 \u0441\u043e\u0441\u0435\u0434\u0438. \u041f\u0440\u044f\u043c\u0430\u044f \u043f\u0440\u043e\u0434\u0430\u0436\u0430, \u0431\u0435\u0437 \u043e\u0431\u0440\u0435\u043c\u0435\u043d\u0435\u043d\u0438\u0439 \u0438 \u043f\u0435\u0440\u0435\u043f\u043b\u0430\u043d\u0438\u0440\u043e\u0432\u043e\u043a. \u0414\u0432\u0430 \u0432\u0437\u0440\u043e\u0441\u043b\u044b\u0445 \u0441\u043e\u0431\u0441\u0442\u0432\u0435\u043d\u043d\u0438\u043a\u0430, \u0441 \u043c\u043e\u043c\u0435\u043d\u0442\u0430 \u043f\u043e\u0441\u0442\u0440\u043e\u0439\u043a\u0438 \u0434\u043e\u043c\u0430. \u041f\u0435\u0440\u0432\u0430\u044f \u043f\u0440\u043e\u0434\u0430\u0436\u0430 \u043f\u043e\u0441\u043b\u0435 \u043f\u0440\u0438\u0432\u0430\u0442\u0438\u0437\u0430\u0446\u0438\u0438.","date_update":"24.12.2025","yaCoord0":30.590209,"yaCoord1":59.748196,"is_current":1,"is_sold":0,"is_withdrawn":0,"is_private":0,"sale_date":null,"start_date":"2025-02-11","final_price":null,"created_at":"2025-02-11 21:05:41","updated_at":"2025-02-12 00:19:18","checked_at":"2025-02-12 00:19:18","sum":152,"url":null,"title":"3-\u043a\u043e\u043c\u043d\u0430\u0442\u043d\u0430\u044f \u043a\u0432\u0430\u0440\u0442\u0438\u0440\u0430 70.7 \u043c\u00b2, \u044d\u0442\u0430\u0436 6\/7","guidename":"3-\u043a\u043e\u043c\u043d\u0430\u0442\u043d\u044b\u0435 \u043a\u0432\u0430\u0440\u0442\u0438\u0440\u044b","phone":{"number":"+7 (812) 740-70-40","link":"+7 (812) 740-70-40"},"agents":[{"id":2234,"url":"aleksandr-geraskin","F":"\u0413\u0435\u0440\u0430\u0441\u044c\u043a\u0438\u043d","I":"\u0410\u043b\u0435\u043a\u0441\u0430\u043d\u0434\u0440","O":"\u0415\u0432\u0433\u0435\u043d\u044c\u0435\u0432\u0438\u0447","phone":"+7 (812) 740-70-40","email":"GerasbkinAE@itaka.ru","personal_phone":"89219572576","personal_email":"GerasbkinAE@itaka.ru","birthday":"1962-12-04","photo_sq":"\/\/homeinspb.ru\/1c\/photo\/FL2234.jpg","photo_cir":"agent_2234_cir.png","photo":null,"online":1,"text":null,"oadm":0,"gender":1,"shows":0,"selfemployed":1,"individual":0,"in_state":0,"in_office":1,"site_post":"","is_fired":0,"direct_submission":0,"direct_submission_id":1,"mim":null,"change":1,"is_active":1,"noindex":0,"must_index":0,"jivo":1,"basic_office_id":"000000012","precinct":0,"slaves_notifications":1,"is_blocked":0,"overrides":{"video":"https:\/\/youtu.be\/9PLxsnTAolM","video_uin":"9PLxsnTAolM"},"wp":false,"phone_f":"78127407040","office":{"id":"000000012","url":"moskovskij-pr-186","name":"\u041c\u043e\u0441\u043a\u043e\u0432\u0441\u043a\u0438\u0439 \u043f\u0440., 186","adress":"\u0433. \u0421\u0430\u043d\u043a\u0442-\u041f\u0435\u0442\u0435\u0440\u0431\u0443\u0440\u0433, \u041c\u043e\u0441\u043a\u043e\u0432\u0441\u043a\u0438\u0439 \u0440-\u043d, \u041c\u043e\u0441\u043a\u043e\u0432\u0441\u043a\u0438\u0439 \u043f\u0440., \u0434. 186","coords":"59.872651,30.321509","pano_coords":"59.8717011700986,30.3213454463","pano_direction":"20.08648461927154,1.127538960384532","pano_span":"58.807766959254884,30.782069456854835","email":"moskovsk@itaka.ru","phone":"88123272717","metro_stations_id":20,"region_id":78,"district_id":null,"coords_metro":null,"coords_top":null,"coords_left":null,"spbzn_coords_top":null,"spbzn_coords_left":null,"change":1,"td_id":7,"order":80,"deleted_at":null,"SuccessOverrides":{"0":{"id":4882,"model":"Offices","target_id":0,"target_id_str":"000000012","field":"order","value":"10032,2234,129,11151,255,2879,284,231,702,663,13651,13819,12585,15322,14846","is_current":0,"is_moderated_adm":1,"is_moderated_tech":1,"is_selected":0,"creator_id":440,"moderator_adm_id":440,"moderator_tech_id":440,"adm_reason":null,"tech_reason":null,"created_at":"2023-10-12T14:15:02.000000Z","updated_at":"2023-10-12T14:15:02.000000Z"},"3":{"id":3748,"model":"Offices","target_id":0,"target_id_str":"000000012","field":"schedule","value":"\u041f\u043d-\u041f\u0442: 10:00-19:00<br \/>\r\n\u0421\u0431, \u0432\u0441 - \u0432\u044b\u0445\u043e\u0434\u043d\u044b\u0435","is_current":0,"is_moderated_adm":1,"is_moderated_tech":1,"is_selected":0,"creator_id":440,"moderator_adm_id":440,"moderator_tech_id":440,"adm_reason":null,"tech_reason":null,"created_at":"2022-10-13T11:50:53.000000Z","updated_at":"2022-10-13T11:50:53.000000Z"},"4":{"id":3571,"model":"Offices","target_id":0,"target_id_str":"000000012","field":"phone","value":"+7 (921) 952-98-32","is_current":0,"is_moderated_adm":1,"is_moderated_tech":1,"is_selected":0,"creator_id":440,"moderator_adm_id":440,"moderator_tech_id":440,"adm_reason":null,"tech_reason":null,"created_at":"2022-08-05T16:55:42.000000Z","updated_at":"2022-08-05T16:55:42.000000Z"},"6":{"id":3044,"model":"Offices","target_id":0,"target_id_str":"000000012","field":"add_agent_id","value":"9557","is_current":0,"is_moderated_adm":1,"is_moderated_tech":1,"is_selected":0,"creator_id":440,"moderator_adm_id":440,"moderator_tech_id":440,"adm_reason":null,"tech_reason":null,"created_at":"2022-03-24T17:13:20.000000Z","updated_at":"2022-03-24T17:13:20.000000Z"}},"Hours":null},"Mimfio":false,"success_overrides":[{"id":5126,"model":"Agents","target_id":2234,"target_id_str":null,"field":"video","value":"https:\/\/youtu.be\/9PLxsnTAolM","is_current":0,"is_moderated_adm":1,"is_moderated_tech":1,"is_selected":0,"creator_id":440,"moderator_adm_id":440,"moderator_tech_id":440,"adm_reason":null,"tech_reason":null,"created_at":"2023-11-16T10:05:20.000000Z","updated_at":"2023-11-16T10:05:24.000000Z"}]},{"id":2234,"url":"aleksandr-geraskin","F":"\u0413\u0435\u0440\u0430\u0441\u044c\u043a\u0438\u043d","I":"\u0410\u043b\u0435\u043a\u0441\u0430\u043d\u0434\u0440","O":"\u0415\u0432\u0433\u0435\u043d\u044c\u0435\u0432\u0438\u0447","phone":"+7 (812) 740-70-40","email":"GerasbkinAE@itaka.ru","personal_phone":"89219572576","personal_email":"GerasbkinAE@itaka.ru","birthday":"1962-12-04","photo_sq":"\/\/homeinspb.ru\/1c\/photo\/FL2234.jpg","photo_cir":"agent_2234_cir.png","photo":null,"online":1,"text":null,"oadm":0,"gender":1,"shows":0,"selfemployed":1,"individual":0,"in_state":0,"in_office":1,"site_post":"","is_fired":0,"direct_submission":0,"direct_submission_id":1,"mim":null,"change":1,"is_active":1,"noindex":0,"must_index":0,"jivo":1,"basic_office_id":"000000012","precinct":0,"slaves_notifications":1,"is_blocked":0,"overrides":{"video":"https:\/\/youtu.be\/9PLxsnTAolM","video_uin":"9PLxsnTAolM"},"wp":false,"phone_f":"78127407040","office":{"id":"000000012","url":"moskovskij-pr-186","name":"\u041c\u043e\u0441\u043a\u043e\u0432\u0441\u043a\u0438\u0439 \u043f\u0440., 186","adress":"\u0433. \u0421\u0430\u043d\u043a\u0442-\u041f\u0435\u0442\u0435\u0440\u0431\u0443\u0440\u0433, \u041c\u043e\u0441\u043a\u043e\u0432\u0441\u043a\u0438\u0439 \u0440-\u043d, \u041c\u043e\u0441\u043a\u043e\u0432\u0441\u043a\u0438\u0439 \u043f\u0440., \u0434. 186","coords":"59.872651,30.321509","pano_coords":"59.8717011700986,30.3213454463","pano_direction":"20.08648461927154,1.127538960384532","pano_span":"58.807766959254884,30.782069456854835","email":"moskovsk@itaka.ru","phone":"88123272717","metro_stations_id":20,"region_id":78,"district_id":null,"coords_metro":null,"coords_top":null,"coords_left":null,"spbzn_coords_top":null,"spbzn_coords_left":null,"change":1,"td_id":7,"order":80,"deleted_at":null,"SuccessOverrides":{"0":{"id":4882,"model":"Offices","target_id":0,"target_id_str":"000000012","field":"order","value":"10032,2234,129,11151,255,2879,284,231,702,663,13651,13819,12585,15322,14846","is_current":0,"is_moderated_adm":1,"is_moderated_tech":1,"is_selected":0,"creator_id":440,"moderator_adm_id":440,"moderator_tech_id":440,"adm_reason":null,"tech_reason":null,"created_at":"2023-10-12T14:15:02.000000Z","updated_at":"2023-10-12T14:15:02.000000Z"},"3":{"id":3748,"model":"Offices","target_id":0,"target_id_str":"000000012","field":"schedule","value":"\u041f\u043d-\u041f\u0442: 10:00-19:00<br \/>\r\n\u0421\u0431, \u0432\u0441 - \u0432\u044b\u0445\u043e\u0434\u043d\u044b\u0435","is_current":0,"is_moderated_adm":1,"is_moderated_tech":1,"is_selected":0,"creator_id":440,"moderator_adm_id":440,"moderator_tech_id":440,"adm_reason":null,"tech_reason":null,"created_at":"2022-10-13T11:50:53.000000Z","updated_at":"2022-10-13T11:50:53.000000Z"},"4":{"id":3571,"model":"Offices","target_id":0,"target_id_str":"000000012","field":"phone","value":"+7 (921) 952-98-32","is_current":0,"is_moderated_adm":1,"is_moderated_tech":1,"is_selected":0,"creator_id":440,"moderator_adm_id":440,"moderator_tech_id":440,"adm_reason":null,"tech_reason":null,"created_at":"2022-08-05T16:55:42.000000Z","updated_at":"2022-08-05T16:55:42.000000Z"},"6":{"id":3044,"model":"Offices","target_id":0,"target_id_str":"000000012","field":"add_agent_id","value":"9557","is_current":0,"is_moderated_adm":1,"is_moderated_tech":1,"is_selected":0,"creator_id":440,"moderator_adm_id":440,"moderator_tech_id":440,"adm_reason":null,"tech_reason":null,"created_at":"2022-03-24T17:13:20.000000Z","updated_at":"2022-03-24T17:13:20.000000Z"}},"Hours":null},"Mimfio":false,"success_overrides":[{"id":5126,"model":"Agents","target_id":2234,"target_id_str":null,"field":"video","value":"https:\/\/youtu.be\/9PLxsnTAolM","is_current":0,"is_moderated_adm":1,"is_moderated_tech":1,"is_selected":0,"creator_id":440,"moderator_adm_id":440,"moderator_tech_id":440,"adm_reason":null,"tech_reason":null,"created_at":"2023-11-16T10:05:20.000000Z","updated_at":"2023-11-16T10:05:24.000000Z"}]}],"metro":{"id":70,"name":"\u0428\u0443\u0448\u0430\u0440\u044b","chpuName":"shushary","top":"740","left":"361","metro_lines_id":9,"intersection":null,"r_top":null,"r_side":null,"r_class":null,"r_top_sub":null,"r_side_sub":null,"r_opt_class":null,"yaCoord0":null,"yaCoord1":null,"created_at":null,"updated_at":null,"metro_color":"blueviolet"},"images":[{"id":1137761,"apartment_number":"1-90700","photo":"media.itaka.ru\/homeinspb\/images\/objects\/big_cc8db7c8-9de8-ef11-b305-0050568db126.jpg","priority":1},{"id":1137762,"apartment_number":"1-90700","photo":"media.itaka.ru\/homeinspb\/images\/objects\/big_7a8db7c8-9de8-ef11-b305-0050568db126.jpg","priority":2},{"id":1137763,"apartment_number":"1-90700","photo":"media.itaka.ru\/homeinspb\/images\/objects\/big_708db7c8-9de8-ef11-b305-0050568db126.jpg","priority":3},{"id":1137764,"apartment_number":"1-90700","photo":"media.itaka.ru\/homeinspb\/images\/objects\/big_658db7c8-9de8-ef11-b305-0050568db126.jpg","priority":4},{"id":1137765,"apartment_number":"1-90700","photo":"media.itaka.ru\/homeinspb\/images\/objects\/big_e28db7c8-9de8-ef11-b305-0050568db126.jpg","priority":5},{"id":1137766,"apartment_number":"1-90700","photo":"media.itaka.ru\/homeinspb\/images\/objects\/big_648db7c8-9de8-ef11-b305-0050568db126.jpg","priority":6},{"id":1137767,"apartment_number":"1-90700","photo":"media.itaka.ru\/homeinspb\/images\/objects\/big_a58db7c8-9de8-ef11-b305-0050568db126.jpg","priority":7},{"id":1137768,"apartment_number":"1-90700","photo":"media.itaka.ru\/homeinspb\/images\/objects\/big_a98db7c8-9de8-ef11-b305-0050568db126.jpg","priority":8},{"id":1137769,"apartment_number":"1-90700","photo":"media.itaka.ru\/homeinspb\/images\/objects\/big_998db7c8-9de8-ef11-b305-0050568db126.jpg","priority":9},{"id":1137770,"apartment_number":"1-90700","photo":"media.itaka.ru\/homeinspb\/images\/objects\/big_9e8db7c8-9de8-ef11-b305-0050568db126.jpg","priority":10},{"id":1137771,"apartment_number":"1-90700","photo":"media.itaka.ru\/homeinspb\/images\/objects\/big_928db7c8-9de8-ef11-b305-0050568db126.jpg","priority":11},{"id":1137772,"apartment_number":"1-90700","photo":"media.itaka.ru\/homeinspb\/images\/objects\/big_818db7c8-9de8-ef11-b305-0050568db126.jpg","priority":12},{"id":1137773,"apartment_number":"1-90700","photo":"media.itaka.ru\/homeinspb\/images\/objects\/big_b08db7c8-9de8-ef11-b305-0050568db126.jpg","priority":13},{"id":1137774,"apartment_number":"1-90700","photo":"media.itaka.ru\/homeinspb\/images\/objects\/big_8d8db7c8-9de8-ef11-b305-0050568db126.jpg","priority":14},{"id":1137775,"apartment_number":"1-90700","photo":"media.itaka.ru\/homeinspb\/images\/objects\/big_b78db7c8-9de8-ef11-b305-0050568db126.jpg","priority":15},{"id":1137776,"apartment_number":"1-90700","photo":"media.itaka.ru\/homeinspb\/images\/objects\/big_868db7c8-9de8-ef11-b305-0050568db126.jpg","priority":16},{"id":1137777,"apartment_number":"1-90700","photo":"media.itaka.ru\/homeinspb\/images\/objects\/big_6a8db7c8-9de8-ef11-b305-0050568db126.jpg","priority":17},{"id":1137778,"apartment_number":"1-90700","photo":"media.itaka.ru\/homeinspb\/images\/objects\/big_5f8db7c8-9de8-ef11-b305-0050568db126.jpg","priority":18},{"id":1137779,"apartment_number":"1-90700","photo":"media.itaka.ru\/homeinspb\/images\/objects\/big_bc8db7c8-9de8-ef11-b305-0050568db126.jpg","priority":19},{"id":1137780,"apartment_number":"1-90700","photo":"media.itaka.ru\/homeinspb\/images\/objects\/big_c78db7c8-9de8-ef11-b305-0050568db126.jpg","priority":20},{"id":1137781,"apartment_number":"1-90700","photo":"media.itaka.ru\/homeinspb\/images\/objects\/big_c28db7c8-9de8-ef11-b305-0050568db126.jpg","priority":21},{"id":1137782,"apartment_number":"1-90700","photo":"media.itaka.ru\/homeinspb\/images\/objects\/big_d28db7c8-9de8-ef11-b305-0050568db126.jpg","priority":22},{"id":1137783,"apartment_number":"1-90700","photo":"media.itaka.ru\/homeinspb\/images\/objects\/big_db8db7c8-9de8-ef11-b305-0050568db126.jpg","priority":23},{"id":1137784,"apartment_number":"1-90700","photo":"media.itaka.ru\/homeinspb\/images\/objects\/big_e18db7c8-9de8-ef11-b305-0050568db126.jpg","priority":24}]}

Гераськин Александр

2234 +7 (812) 740-70-40
2234

2234


загрузка...