С Вами с 1993 года!
0
Статистика просмотров:
130
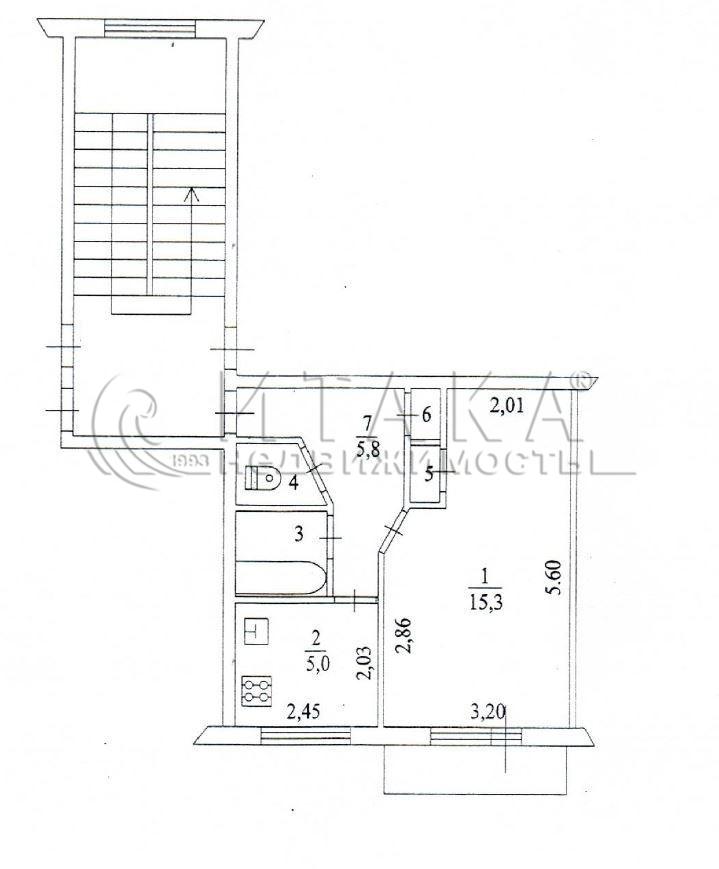
1-комнатная квартира 30.5 м², этаж 3/5
Объект № 129616158
Размещен: 05.04.2026
Московская
обл Ленинградская, р-н Гатчинский, г Гатчина, ул Хохлова, д. 3а
Цена: 4 270 000 ₽
140 000 ₽/м²30.5м² / 15.3м²
Общая/Жилая5м²
Кухня2.5м
Потолкираздельный
Санузелда
Балкон3/5
Этажнет
Лифт1963г.
Год постройки
Продается камерная 1-но комнатная квартира в центре г. Гатчина на ул. Хохлова д3а.Дом 1963 г. постройки ,сделан капремонт фасада, отремонтированы парадные в доме, установлены новые входные двери и домофоны.Квартира расположена на 3 эт 4-х этажного кирпичного дома, Общ. пл 30.5 квм, с коэффициентом балкона 31,3 квм, площадь кухни 5 квм, санузел раздельный, балкон из комнаты не остекленный. Дом расположен во дворе, окна тоже во двор. Квартира чистая, теплая , окна стеклопакеты, новая входная дверь в квартиру. В квартире остается мебель на кухне и стиральная машина. В квартире никто не прописан. Документы готовы. В шаговой доступности магазины ,соборная площадь, стадион и т.д.Прямая продажа, один взрослый собственник. Показы по договоренности. Звоните! Лариса Васильевна
загрузка...
