С Вами с 1993 года!
0
Статистика просмотров:
64
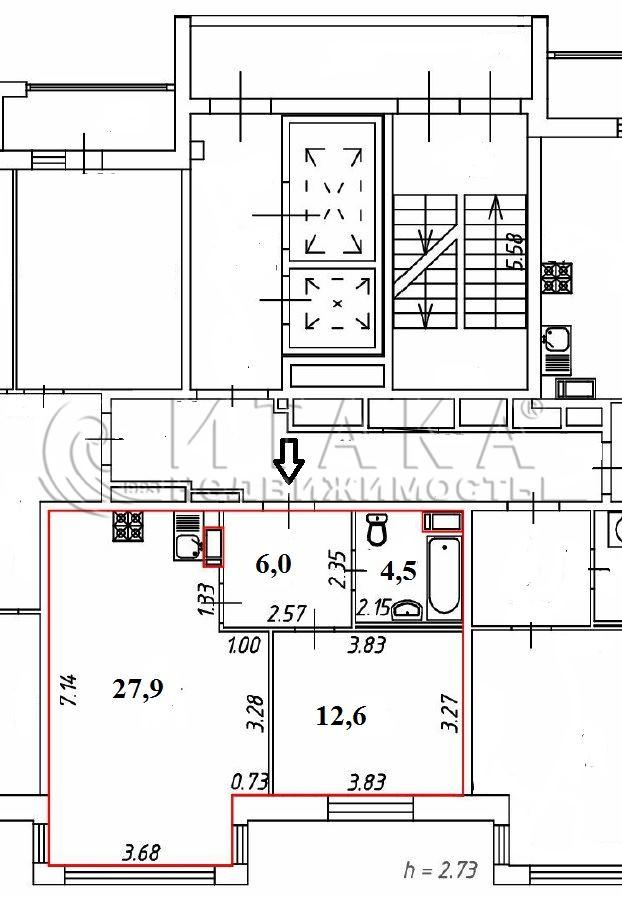
1-комнатная квартира 51 м², этаж 3/12
Объект № 1-93191
Размещен: 29.04.2026
Комендантский проспект
г Санкт-Петербург, пр-кт Авиаконструкторов, д. 54, стр. 1
Цена: 15 700 000 ₽
307 843 ₽/м²51м² / 12.6м²
Общая/Жилая27.9м²
Кухня2.73м
Потолкисовмещен.
Санузелнет
Балкон3/12
Этажда
Лифт2022г.
Год постройки
Большая полноценная однокомнатная квартира, с уже готовым дизайнерским ремонтом и полным оснащением всей необходимой для комфортной жизни мебелью и техникой!!! Просторная и очень уютная кухня-гостиная 28 кв.м., удобная спальня, функциональная прихожая, совмещенный санузел. Продуманы зоны хранения, отдыха, рабочего пространства. Деревянные качественные окна, электронный входной замок по отпечатку пальца, управляемый дистанционно, система освещения «умный дом», водонагреватель на 80 литров и многое другое.Квартира в красивом современном технологичном Жилом комплексе бизнес класса «Modum», 2022 года постройки. Элегантные мраморные лобби, стильные парадные и лифтовые группы, лапомойки для домашних питомцев, кладовые, закрытая охраняемая территория без машин, отапливаемый подземный паркинг, в который можно спуститься на лифте, SPA и бассейн в самом комплексе, детские площадки, ландшафтный дизайн дворовых территорий, высокие потолки, всего четыре квартиры на этаже, и в дополнение - прекрасно развитая социальная и транспортная инфраструктура — всё это делает ЖК «Modum» местом, где хочется жить! Для жителей есть всё необходимое — несколько супермаркетов, кафе, булочная, кондитерская, салоны красоты, барбершоп, фитнес-клубы, пункты выдачи заказов маркетплейсов, 3 детских сада, 2 школы, одна из который с востребованным IT уклоном. Рядом с домом эко-тропа, Юнтоловский заказник, в 10 минутах выезд на КАД и ЗСД, планируется открытие станции метро «Шуваловский проспект». Приобретена у застройщика! Один взрослый собственник. Никто не зарегистрирован. Прямая продажа. Возможен быстрый выход на сделку. Звоните! Отвечу на все интересующие Вас вопросы. Оперативно организуем просмотр и Вы сами оцените все достоинства квартиры!
загрузка...
