С Вами с 1993 года!
0
Статистика просмотров:
153
2-комнатная квартира 54.1 м², этаж 2/18
Объект № 1-92784
Звездная
г Санкт-Петербург, пр-кт Космонавтов, д. 65, корп. 1, лит. А
Объект № 1-92784
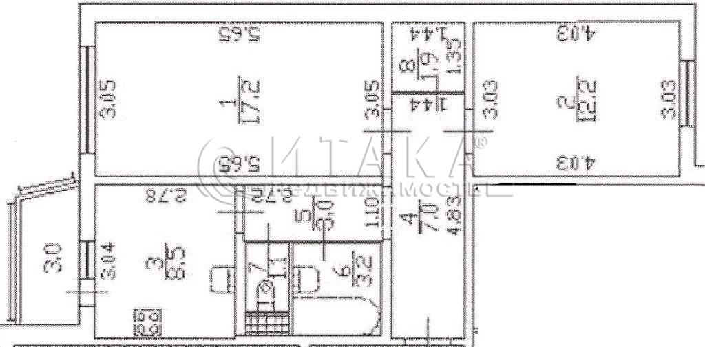
Продается 2-комнатная квартира. Площадь комнат - 17.2+12.2м², площадь квартиры - 54.1м², площадь кухни - 8.5м², этаж - 2 / 18. Ближайшее метро "Звездная"54.1м² / 29.4м²
Общая/Жилая8.5м²
Кухня-
Потолкираздельный
Санузелда
Балкон2/18
Этажда
Лифт-
Год постройки
Обьект актуален .Двухсторонняя квартира,хорошей планировки,54,1( без учета застекленного балкона 3,0),теплая, светлая, окнами в тихий двор с двух сторон,в отличном состоянии,комнаты изолированные,правильной формы 17,2 12,2,раздельный санузел,есть гардеробная 1,9м,просторный коридор 10м.Покупателю остается вся мебель и техника ( варочная поверхность,духовой шкаф,вытяжка,двухкамерный холодильник,телевизор,стиральная машина,микроволновая печь, электрочайник)можно заехать и жить,или сдать в аренду без дополнительных вложений. ЖК Антей, дом 2008 года постройки,современная панель,этаж закрыт,на этаже 4 квартиры,хорошие соседи.Двор закрыт, заезд через шлагбаум,большая парковка во дворе и по периметру дома,фиксированных мест нет, видеонаблюдение по периметру дома в парадной и лифтах. Район с развитой инфраструктурой,метро Звездная 850 метров,это пешком 10минут,выез на КАД и ЗСД 7-10 минут,много торговых ,спортивных и развлекательных центров,супермаркеты ,кафе,рестораны,фитнес центры,МФЦ,школы и дет/сады,магазины шаговой доступности и многое другое. Прямая продажа!!!!Отличная история,взрослый собственник, владеет более 9 лет,на основании ДКП,приобреталась квартира за собственные средства,без привлечения ипотеки,материнского капитала,нет обременений и перепланировок,нет зарегистрированных лиц,личная продажа собственником,вся сумма в договоре,подходит под ипотеку любого банка.Звоните с 9,00 до 21,00
загрузка...
