С Вами с 1993 года!
0
Статистика просмотров:
235
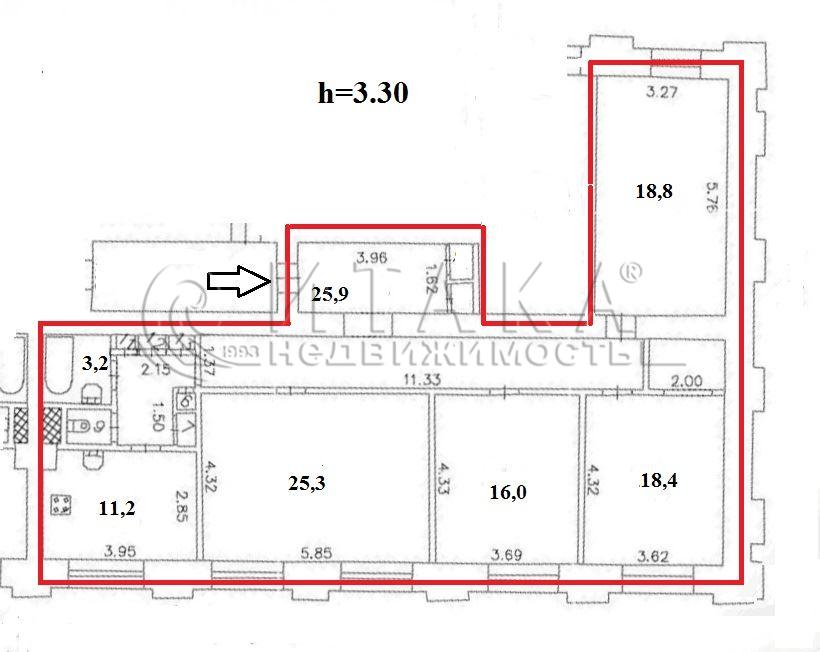
4-комнатная квартира 123.2 м², этаж 2/7
Объект № 1-92348
Размещен: 17.03.2026
Кировский завод
г Санкт-Петербург, пр-кт Стачек, д. 57, лит. А
Цена: 20 000 000 ₽
162 337 ₽/м²123.2м² / 78.5м²
Общая/Жилая11.2м²
Кухня3.3м
Потолкисовмещен.
Санузелнет
Балкон2/7
Этажда
Лифт1960г.
Год постройки
Прямая продажа! Без ограничений и обременений !Предлагаем четырехкомнатную квартиру в кирпичном доме 1960 года постройки , входящего в комплекс жилых домов Комсомольской площади, построенный в стиле Сталинского неоклассицизма .Квартира общей площадью 123,2 м.кв. расположена на 2 этаже / всего этажей 7/. Планировка двухсторонняя; все комнаты/ 25,3 ; 18,8; 18,4 ; 16,0 м.кв/ изолированные. Кухня 11,2 м.кв., плита - газовая. Горячая вода- теплоцентраль.Санузел раздельный . Большой функциональный коридор- прихожая, где есть возможность организовать зону хранения / кладовую либо гардеробную/. Высота помещений 3.30 м.Квартира в хорошем жилом состоянии .Чистая ухоженная парадная. Лифт.Благоустроенный зеленый двор.Прекрасно развита инфраструктура района и транспортное сообщение. В шаговой доступности две станции метро/ до метро Кировский завод 8 минут, до метро Автово -12 минут /, множество маршрутов наземного транспорта.Один взрослый собственник. Во владении с 2016 года по договору купли -продажи . Материнский капитал не использовался . Нет зарегистрированных лиц , никто не проживает.Показы в удобное для вас время. Елена Викторовна
загрузка...
