С Вами с 1993 года!
0
Статистика просмотров:
12
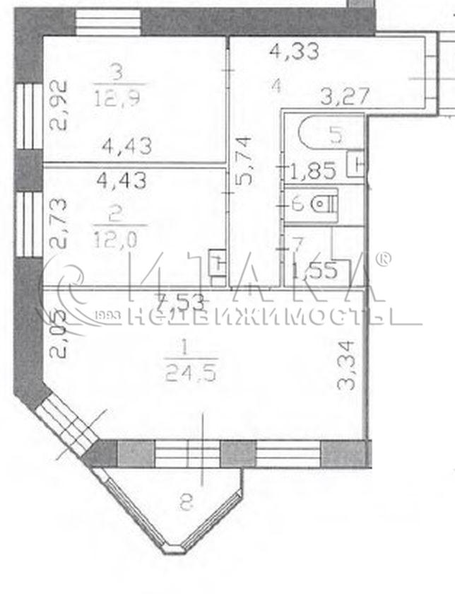
2-комнатная квартира 67.1 м², этаж 3/5
Объект № 1-92323
Размещен: 22.10.2025
обл Ленинградская, р-н Подпорожский, гп Никольский, ул Лисицыной, д. 37
Цена: 1 700 000 ₽
25 335 ₽/м²67.1м² / 37.4м²
Общая/Жилая12м²
Кухня2.6м
Потолкираздельный
Санузелда
Балкон3/5
Этажнет
Лифт2007г.
Год постройки
Продается просторная 67,1 кв.м. , светлая ДВУХКОМНАТНАЯ квартира с балконом на третьем этаже пятиэтажного дома, стоящего на берегу живописной реки Свирь в пос. Никольский Подпорожского района Ленинградской области, в 300 км от Питера. Комнаты изолированные 24,5 кв.м. - с балконом, французским балконом и большим окном, и 12,9 кв.м. - с двумя окнами. кухня 12 кв.м., раздельный санузел - ванная 4 кв.м. и туалет 2,5 кв.м. Большая кладовка, в которой можно оборудовать гардеробную !!! просторная прихожая 17 кв.м. В окнах стеклопакеты, входная дверь железная. На фото видны следы протечки. Сейчас причины устранены, плесени и запаха нет. В 200 метрах от дома красивейшая река Свирь, родник с чистой водой, рядом сосновый парк, песчаный пляж, лес. Рядом с домом автобусная остановка, амбулатория, клуб с отличной библиотекой, обустраивается набережная реки. В поселке есть вся необходимая инфраструктура: школа, детский сад, амбулатория, аптеки, почта, отделение Сбербанка, продовольственные и промышленные магазины, парикмахерские, клуб. До районного центра 5-7 минут на машине, ходят рейсовые автобусы, такси. Ж/д станция Свирь в 5 мин. автотранспортом. До Питера можно добраться поездом, электричкой, Ласточкой или маршрутным такси (3,5 часа). Поселок расположен на полуострове, огибаемом рекой Свирь, в окружении соснового леса, очень чистый, компактный, уютный. Близость реки и леса дает возможность отдыха на любой вкус : рыбалка, охота, прогулки в лесу, ягоды-грибы. По всем вопросам звоните. Просмотр по предварительной договоренности.
загрузка...
