С Вами с 1993 года!
0
Статистика просмотров:
18
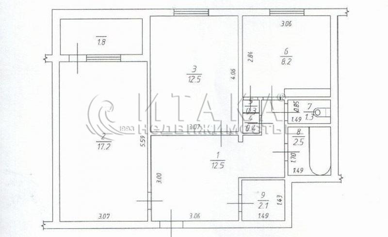
2-комнатная квартира 57.4 м², этаж 5/5
Объект № 1-59513
Автово
обл Ленинградская, р-н Волосовский, г Волосово, пр-кт Вингиссара, д. 53
57.4м² / 29.7м²
Общая/Жилая8.2м²
Кухня2.6м
Потолкираздельный
Санузелнет
Балкон5/5
Этажнет
Лифт1990г.
Год постройки
8-911-755-64-88, СПб 65 км. В центре города Волосово продается просторная 2-х комнатная квартира улучшенной планировки на 5/5 этажного панельного дома, площадью 57,4 кв.м, кухня – 8.2, комнаты раздельные – 17.2 12.5, прихожая-12,5, ванна поперечная (возможность установить стиральную машину), просторная кладовка 2,1 кв.м, большая лоджия. Нормальное состояние. Ухоженная парадная, приличные соседи. В собственности более 6 лет. Прямая продажа. Вся городская инфраструктура. Рядом парк, Дом Культуры, рынок, сетевые магазины, почта, вокзал и др. Регулярное прямое транспортное сообщение с СПб. Елена
загрузка...
