С Вами с 1993 года!
0
Статистика просмотров:
166
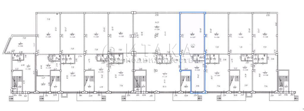
Встроенное помещение, 151.2 м²
Объект № 4-02236
Размещен: 05.05.2026
Санкт-Петербург г, Кустодиева ул, д. 5
Цена: 49 391 000 ₽
326 660 ₽/м²151.2м²
Площадь общая3.35м
Потолки22кВт
Электричество1 / 5
Этаж2024г.
Год постройки
Продается коммерческое помещение свободного назначения на 1-м этаже в современном жилом комплексе комфорт-класса. Район с развитой инфраструктурой и высокой проходимостью. Комплекс расположен вдоль зеленой и тихой ул. Кустодиева в 20 минутах от ст.м. Проспект Просвещения.Основная информация:Площадь: 151.2 м²Высота потолков: 3.35 мОтделка: Без отделкиОкна: ВитринныеВид из окон: На улицуМощность электричества 22.52 кВтРазводка труб: По помещениюТип дома: Кирпично-монолитныйФасад: Вент.фасадКоличество входов: 1Установка вывески: ВозможнаПарковка: ЕстьПерепланировка: ВозможнаНазначение: свободное (подойдет для магазина, офиса, салона красоты, кафе, студии и другого бизнеса)Перспективная локация. Развитая инфраструктура. Рядом с домом находятся детские сады, школы, детская школа искусств им. Свиридова, поликлиники и новые торговые центры. Удобная транспортная доступность, быстрый выезд на КАД . Звоните, чтобы узнать подробности и договориться о просмотре!
загрузка...
