С Вами с 1993 года!
0
Статистика просмотров:
142
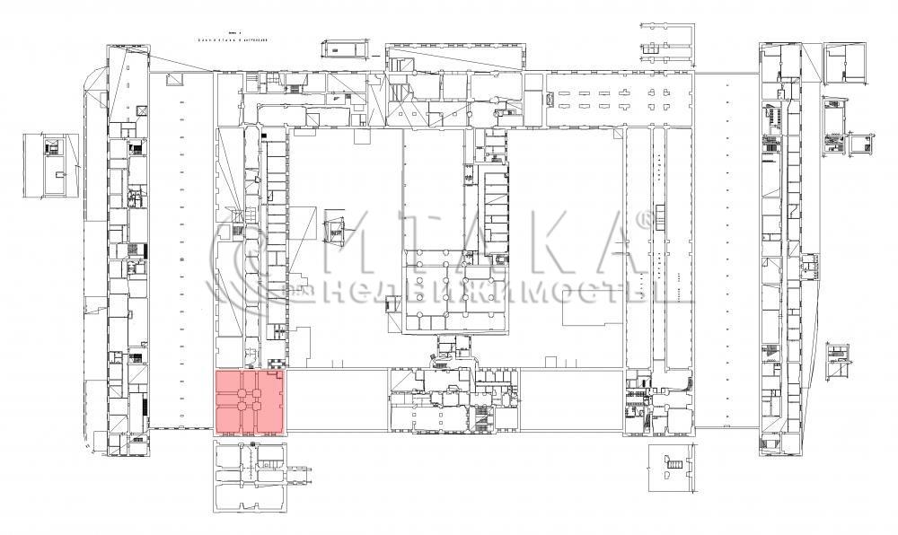
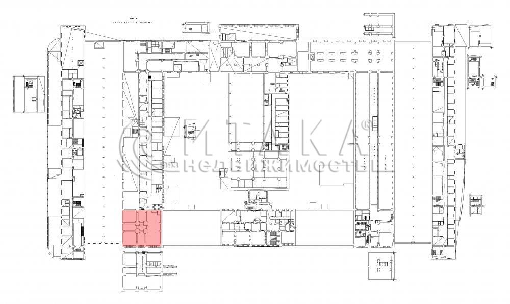
Встроенное помещение, 577 м²
Объект № 4-02239
Размещен: 21.03.2026
Санкт-Петербург г, Комсомола ул, д. 2
Цена: 520000 ₽ / мес
901 ₽ / мес/м²577м²
Площадь общая4.5м
Потолки30кВт
Электричество2 / 2
Этаж-
Год постройки
4-02239 - номер объекта в Базе Агентства.Сдается в аренду уникальное по архитектуре помещение, которое расположено на втором этаже здания Культурно - развлекательного кластера по адресу ул. Комсомола, д. 2.Красивая кирпичная кладка. Высота потолков 4,25 - 4,57 м.Просторные помещения позволят расположить всю необходимую офисную технику и мебель.Можно выполнить зонирование для размещения переговорных комнат, зон отдыха. Есть возможность организовать второй выход.Арендные каникулы обсуждаемы. Инженерные коммуникации: освещение, отопление, пожарная сигнализация.По запросу арендатора доступны для подключения интернет и телефония.Удобное расположение позволяет добраться как на общественном транспорте, так и на автомобиле.Пешая доступность от станции метро "Площадь Ленина", а также Финляндского вокзала.Рядом пролегают Арсенальная и Свердловская набережные, Литейный мост.Есть бесплатная парковка.На территории "Арсенала" есть кофейни и рестораны. Показы по предварительной договоренности.
загрузка...
