С Вами с 1993 года!
0
Статистика просмотров:
20
3-комнатная квартира 94.6 м², этаж 25/26
Объект № 134777183
Размещен: 22.04.2026
Парнас
г Санкт-Петербург, п Парголово, ул Заречная, д. 11, корп. 2, стр. 1
Цена: 18 000 000 ₽
190 274 ₽/м²94.6м² / 53.9м²
Общая/Жилая13.3м²
Кухня2.55м
Потолкираздельный
Санузелда
Балкон25/26
Этажда
Лифт2016г.
Год постройки
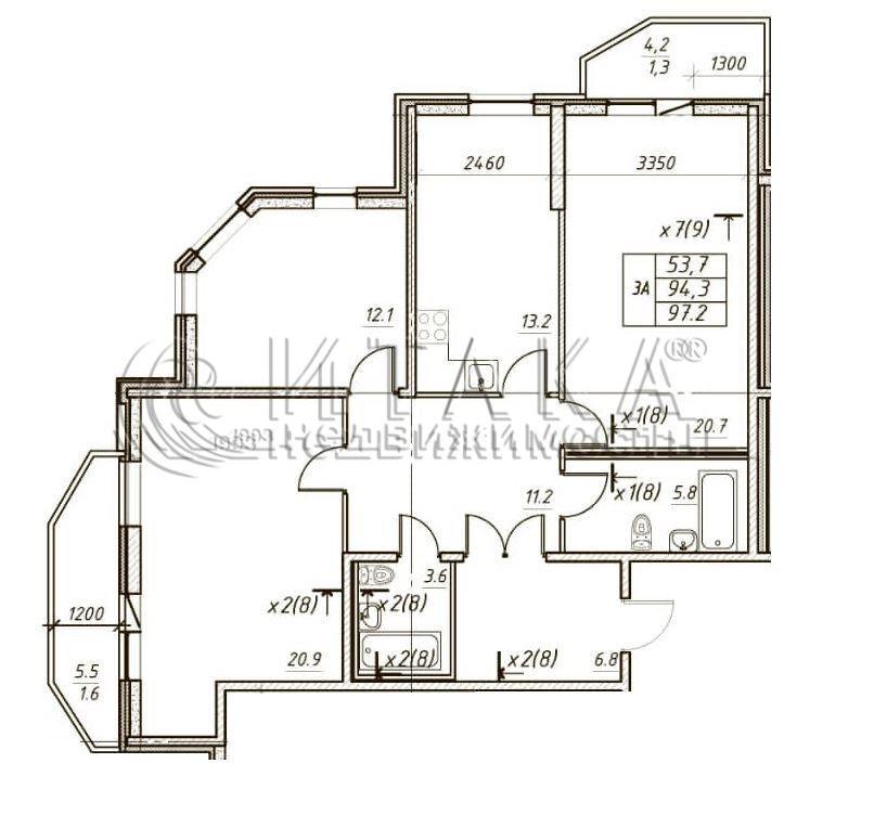
1-93005 В прямой продаже видовая, просторная, меблированная трехкомнатная квартира в ЖК «Три апельсина», с видом из окон на Шуваловский парк. Комнаты изолированные 20,7 20,9 13,2 кв.м., холл 11,2, коридор 6,8 кв.м. Два полноценных санузла- 5,8 и 3,6 кв.м., два больших застекленных балкона- 5,5 и 4,2 кв.м. В квартире остается мебель, встроенная кухня с техникой. Окна-стеклопакеты, на полу в комнатах ламинат, в холле и санузлах высококачественная керамическая плитка, потолки натяжные. Бесшумные лифты Otis повышенной комфортности, в количестве 4-х штук. Во дворе расположены школа, современные тематические детские и спортивные площадки для любого возраста.Район с высокоразвитой инфраструктурой. В шаговой доступности аптеки, супермаркеты, детские развивающие центры, фитнес центры, салоны красоты, отделения банков, ТК Парнас Сити, метро «Парнас» - 20 минут пешком, остановки общественного транспорта, а также прекрасный «Шуваловский парк» для семейного досуга. Квартира без обременений, без материнского капитала, более 5 лет в собственности, подходит под ипотеку. Быстрый выход на сделку. Звоните и приходите на просмотр.Итака. Работаем с 1993 года.
загрузка...
