С Вами с 1993 года!
0
Статистика просмотров:
202
2-комнатная квартира 66 м², этаж 5/15
Объект № 1-92896
Размещен: 17.04.2026
Международная
г Санкт-Петербург, ул Софийская, д. 37, корп. 2
Цена: 15 500 000 ₽
234 848 ₽/м²66м² / 38.5м²
Общая/Жилая10.1м²
Кухня3м
Потолкисовмещен.
Санузелда
Балкон5/15
Этажда
Лифт2007г.
Год постройки
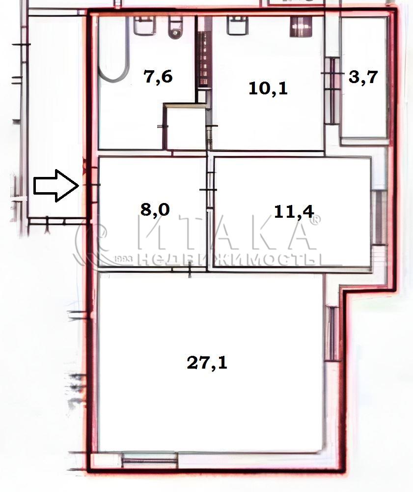
Предлагается к продаже просторная 2 комнатная квартира в современном доме бизнес-класса. 2007 г.п. Жилой комплекс расположен в Фрунзенском районе, 10 минут пешком метро Международная.Система безопасности дома: территория огорожена, охраняемое парковочное место, видеонаблюдение в парадных, во дворе и по периметру дома. О квартире: Квартира расположена на 5 этаже 15 этажного дома. Окна выходят на восток и юг. Состояние отличное. В квартире выполнен качественный ремонт из дорогостоящих и экологических материалов. Очень удобная планировка. Общий метраж квартиры 66 кв.м., комнаты 27,1 и 11,4 кв. м., просторная кухня 10.1 кв. м., выход с кухни на лоджию (она не входит в общий метраж квартиры). В кухне и прихожей тёплые полы, в комнатах - паркетная доска. Натяжные потолки в комнатах и в кухне. Высота помещений 3 м. Остаётся кухонный гарнитур с варочной панелью, вытяжкой, духовым шкафом и полноразмерной посудомоечной машиной, встроенные шкафы в комнате, прихожей, ванной. Остальная мебель по запросу и дополнительной договорённости. Большой совмещенный санузел - 7.6 кв.м. Район с очень развитой инфраструктурой.Документы в порядке, к сделке готовы. Обременений, ограничений нет. Взрослые собственники.Звоните для получения дополнительной информации и просмотра квартиры.
загрузка...
