С Вами с 1993 года!
0
Статистика просмотров:
82
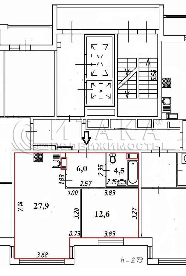
1-комнатная квартира 51 м², этаж 3/12
Объект № 1-92664
Размещен: 16.01.2026
Комендантский проспект
г Санкт-Петербург, пр-кт Авиаконструкторов, д. 54, стр. 1
Цена: 16 500 000 ₽
323 529 ₽/м²51м² / 12.6м²
Общая/Жилая27.9м²
Кухня2.73м
Потолкисовмещен.
Санузелнет
Балкон3/12
Этажда
Лифт2022г.
Год постройки
Продается большая однокомнатная квартира — настоящая 2 евро! — в красивом современном технологичном Жилом комплексе бизнес класса «Modum», 2022 года постройки. Элегантные мраморные лобби, стильные парадные и лифтовые группы, лапомойки для домашних питомцев, кладовые, закрытая охраняемая территория без машин, отапливаемый подземный паркинг, в который можно спуститься на лифте, SPA и бассейн в самом комплексе, детские площадки, ландшафтный дизайн дворовых территорий, высокие потолки, всего четыре квартиры на этаже, и в дополнение прекрасно развитая социальная и транспортная инфраструктура — это и многое другое делает ЖК «Modum» местом, где хочется жить! Для жителей есть всё необходимое — несколько супермаркетов, кафе, булочная, кондитерская, салоны красоты, барбершоп, фитнес-клубы, пункты выдачи заказов маркетплейсов, 3 детских сада, 2 школы, одна из который с востребованным IT уклоном. Рядом с домом эко-тропа, Юнтоловский заказник, в 10 минутах выезд на КАД и ЗСД, планируется открытие станции метро «Шуваловский проспект».Квартира с дизайнерским ремонтом, где на площади 51 кв.м. расположились уютная кухня-гостиная 28 кв.м., спальня, прихожая, просторный санузел, есть вся необходимая для проживания мебель и техника. Деревянные качественные окна, электронный входной замок по отпечатку пальца, управляемый дистанционно, система освещения «умный дом», водонагреватель на 80 литров, продуманные места для хранения.Один собственник, приобретал у застройщика! Прямая продажа.Звоните — обязательно ответим на все интересующие Вас вопросы и покажем, чтобы Вы сами оценили все достоинства квартиры!
загрузка...
