С Вами с 1993 года!
0
Статистика просмотров:
14
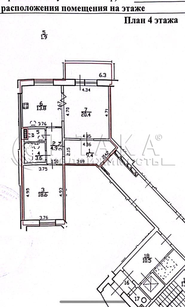
2-комнатная квартира 72.6 м², этаж 4/22
Объект № 1-92361
Размещен: 29.10.2025
Академическая
г Санкт-Петербург, ул Бутлерова, д. 11, корп. 4, лит. А
Цена: 20 500 000 ₽
282 369 ₽/м²72.6м² / 39м²
Общая/Жилая13.8м²
Кухня2.8м
Потолкираздельный
Санузелда
Балкон4/22
Этажда
Лифт2012г.
Год постройки
Отличное предложение!!! Квартира в ЖК «Академ парк» , расположенном в одном из самых озеленённых районов города!Подойдёт, как для собственного проживания, так и для инвестиционных вложений! В квартире есть всё, для комфортного проживания , вплоть до фильтров очистки воды. Не требуется дополнительных вложений, так как ремонт производился для собственного проживания. Все материалы , сантехника, техника, мебель, фурнитура- всё высокого качества.О ЖИЛОМ КОМПЛЕКСЕ-Кирпично- монолитный дом-Закрытая , охраняемая территория с видеонаблюдением. -Современные детские и спортивные площадки.- Красивый , ухоженный двор, с ландшафтным дизайном и прудом!- наличие магазинов, пекарен, обучающих, медицинских центров прямо во дворе.- подземный , тёплый паркинг и свободные места рядом с домом- Дом обслуживает ТСЖ, есть Служба консьержей, лифты “Shindler”ИНФРАСТРУКТУРА -Шаговая доступность к метро Академическая 10 -15мин пешком.Близость к историческому центру города, до метро пл. Восстания 20 мин. на метро. Близость курортного районаУдобный выезд на кольцевую. В 5 минутах спортивный комплекс «Зенит» и хоккейный клуб с катком. В окружении много садов и школ, торговых комплексов, сетевых магазинов, банков, аптек, пекарен, ресторанов и уютных кафе, салонов красоты и фитнесс клубовФизико -математическая гимназия 470. Близость Политехнического института, Военная Академия связи. 2 огромных парка рядом Пискаревский и Муринский ручей с велодорожками и зонами отдыха.Все , что нужно для удобного проживания и досуга находится рядомДОКУМЕНТЫ- 1 собственник .- Никто не прописан.-Обременений нет.- Материнский капитал не использовался- чистая история, 1 собственник с момента постройки дома. Продаётся впервые.- Прямая продажа.- Перепланировки не проводились.-Полная стоимость в договоре.- Возможен быстрый выход на сделку.Не упустите возможность стать счастливым обладателем этой замечательной квартиры!
загрузка...
